NEW BUILD VILLAS IN ROLDAN Luxury 2 one level New Build villas in Roldan, Murcia.
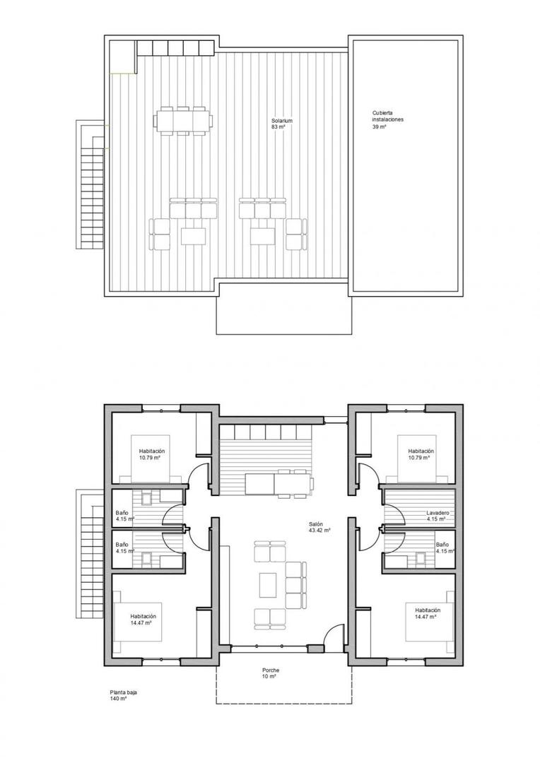
Villas build on the plots of nearly 600 M2 each one, with private pool of 30 M2, garden area and large solarium on the roof.
Each property has 4 bedrooms and 3 fitted bathrooms and have been designed with a contemporary style and an open planned concept, consisting of a fully-fitted kitchen and lounge-dining room.
The property will meet the highest standards and will be equipped with: Private swimming pool of 30 M2 with solar shower.
Pre-installation for heated pump.
Kitchen completely furnished and equipped with raised oven, built-in microwave, integrated dishwasher, fridge and extractor fan.
Island area in the kitchen.
LED Lighting: inside the property (dining room, kitchen, corridors and bathrooms), as well as in outdoor areas.
Lined wardrobes with drawers.
Fully fitted bathrooms with suspended vanity unit and suspended toilet, mirror with light, shower with "rain effect" and shower screens.
Pre-installation for ducted air conditioning.
Summer kitchen with sliding doors in solarium.
Pre-installation for washing machine and fridge socket.
Solar panel.
Parking on the plot.
Roldan itself is a traditional town with all the local amenities you will need including Supermarkets, Restaurants, Bars, Health Clinic, Pharmacy, Police Station, Petrol Station, Mechanics, Dentists, Doctors and more.
The nearby golf resorts of La Torre, & Terrazas are easily accessible, Corvera Airport is 15 minutes away & the beaches of the Mar Menor just 20 minutes drive.
NEU GEBAUTE VILLEN IN ROLDAN Luxuriöse 2 einstöckige Neubauvillen in Roldan, Murcia.
Villen bauen auf den Grundstücken von fast 600 M2 jedes, mit privatem Pool von 30 M2, Gartenbereich und große Sonnenterrasse auf dem Dach.
Jedes Haus verfügt über 4 Schlafzimmer und 3 Bäder und wurde in einem zeitgenössischen Stil und einem offenen Konzept, bestehend aus einer voll ausgestatteten Küche und einem Wohn-Esszimmer, entworfen.
Die Wohnanlage befindet sich in Roldán (Murcia), in einer bewachten und gesicherten Anlage, die in einem Teilplan von 300.000 m2 enthalten ist, umgeben von allen Dienstleistungen, Sportanlagen und in der Nähe mehrerer Golfplätze.
Das Anwesen wird den höchsten Standards entsprechen und wird mit ausgestattet werden: Privates Schwimmbad von 30 M2 mit Solardusche.
Vorinstallation für beheizte Pumpe.
Küche komplett möbliert und ausgestattet mit erhöhtem Backofen, eingebauter Mikrowelle, integriertem Geschirrspüler, Kühlschrank und Dunstabzugshaube.
Inselbereich in der Küche.
LED-Beleuchtung: im Inneren des Hauses (Esszimmer, Küche, Flure und Bäder), sowie im Außenbereich.
Gefütterte Kleiderschränke mit Schubladen.
Voll ausgestattete Bäder mit Hängewaschtisch und Hängetoilette, Spiegel mit Beleuchtung, Dusche mit "Regeneffekt" und Duschabtrennung.
Vorinstallation für eine Kanal-Klimaanlage.
Sommerküche mit Schiebetüren im Solarium.
Vorinstallation für Waschmaschine und Kühlschrankanschluss.
Sonnenkollektor.
Parkplatz auf dem Grundstück.
Roldan selbst ist eine traditionelle Stadt mit allen lokalen Annehmlichkeiten, die Sie benötigen, einschließlich Supermärkte, Restaurants, Bars, Gesundheitsklinik, Apotheke, Polizeistation, Tankstelle, Mechaniker, Zahnärzte, Ärzte und mehr.
Die nahegelegenen Golfplätze von La Torre und Terrazas sind leicht erreichbar, der Flughafen Corvera ist 15 Minuten entfernt und die Strände des Mar Menor sind nur 20 Minuten entfernt.
VILLAS DE OBRA NUEVA EN ROLDAN Lujosas villas de obra nueva de 2 plantas en Roldan, Murcia.
Villas construidas sobre parcelas de casi 600 M2 cada una, con piscina privada de 30 M2, zona ajardinada y amplio solarium en la azotea.
Cada vivienda dispone de 4 dormitorios y 3 baños equipados y han sido diseñadas con un estilo contemporáneo y un concepto diáfano, compuesto por cocina amueblada y salón comedor.
La promoción se encuentra en Roldán (Murcia), en un complejo cerrado y con control de seguridad, incluido en un plan parcial de 300.000 M2, rodeado de todos los servicios, instalaciones deportivas y cerca de varios Campos de Golf.
La propiedad cumplirá con los más altos estándares y estará equipada con: Piscina privada de 30 M2 con ducha solar.
Preinstalación para bomba climatizada.
Cocina completamente amueblada y equipada con horno elevado, microondas integrado, lavavajillas integrado, frigorífico y campana extractora.
Zona de isla en la cocina.
Iluminación LED: en el interior de la vivienda (comedor, cocina, pasillos y baños), así como en zonas exteriores.
Armarios empotrados forrados con cajoneras.
Cuartos de baño totalmente equipados con lavabo suspendido e inodoro suspendido, espejo con luz, ducha con "efecto lluvia" y mamparas de ducha.
Preinstalación de aire acondicionado por conductos.
Cocina de verano con puertas correderas en solarium.
Preinstalación para lavadora y toma de frigorífico.
Placa solar.
Aparcamiento en la parcela.
Roldán en sí es un pueblo tradicional con todos los servicios locales que pueda necesitar, incluyendo supermercados, restaurantes, bares, clínica de salud, farmacia, estación de policía, gasolinera, mecánicos, dentistas, médicos y mucho más.
Los cercanos campos de golf de La Torre y Terrazas son de fácil acceso, el aeropuerto de Corvera está a 15 minutos y las playas del Mar Menor a sólo 20 minutos en coche.
NIEUWBOUW VILLA'S IN ROLDAN Luxe 2 gelijkvloerse nieuwbouw villa's in Roldan, Murcia.
Villa's gebouwd op percelen van bijna 600 M2 elk, met privé zwembad van 30 M2, tuin en groot solarium op het dak.
Elke woning heeft 4 slaapkamers en 3 ingerichte badkamers en zijn ontworpen met een eigentijdse stijl en een open gepland concept, bestaande uit een volledig ingerichte keuken en woon-eetkamer.
De ontwikkeling is gelegen in Roldán (Murcia), in een omheind en beveiligd resort, opgenomen in een deelplan van 300.000 M2, omgeven door alle diensten, sportfaciliteiten en in de buurt van verschillende Golfbanen.
De woning zal voldoen aan de hoogste normen en zal worden uitgerust met: Privé zwembad van 30 M2 met zonnedouche.
Pre-installatie voor verwarmde pomp.
Keuken volledig ingericht en uitgerust met verhoogde oven, ingebouwde magnetron, geïntegreerde vaatwasser, koelkast en afzuigkap.
Eiland in de keuken.
LED verlichting: binnen de woning (eetkamer, keuken, gangen en badkamers), evenals in de buitenruimtes.
Beklede kasten met laden.
Volledig ingerichte badkamers met hangend badmeubel en hangend toilet, spiegel met licht, douche met "regeneffect" en doucheschermen.
Pre-installatie voor gekanaliseerde airconditioning.
Zomerkeuken met schuifdeuren in solarium.
Pre-installatie voor wasmachine en stopcontact voor koelkast.
Zonnepaneel.
Parkeerplaats op het perceel.
Roldan zelf is een traditionele stad met alle lokale voorzieningen die u nodig heeft, zoals supermarkten, restaurants, bars, kliniek, apotheek, politiebureau, benzinestation, monteurs, tandartsen, artsen en nog veel meer.
De nabijgelegen golf resorts van La Torre, & Terrazas zijn gemakkelijk bereikbaar, Corvera Airport ligt op 15 minuten afstand en de stranden van de Mar Menor op slechts 20 minuten rijden.
Thinking of buying in Jávea? Here's what life is really like for foreign residents — the neighbourhoods, lifestyle, cost...
A practical guide for British pensioners retiring to Costa del Sol: real costs, visa requirements, top areas, healthcare...
Complete guide to working remotely in Spain in 2026. Learn about the Digital Nomad Visa, tax implications, cost of livin...