NEW BUILD VILLAS IN FORTUNA New Build villas in Fortuna, Murcia.
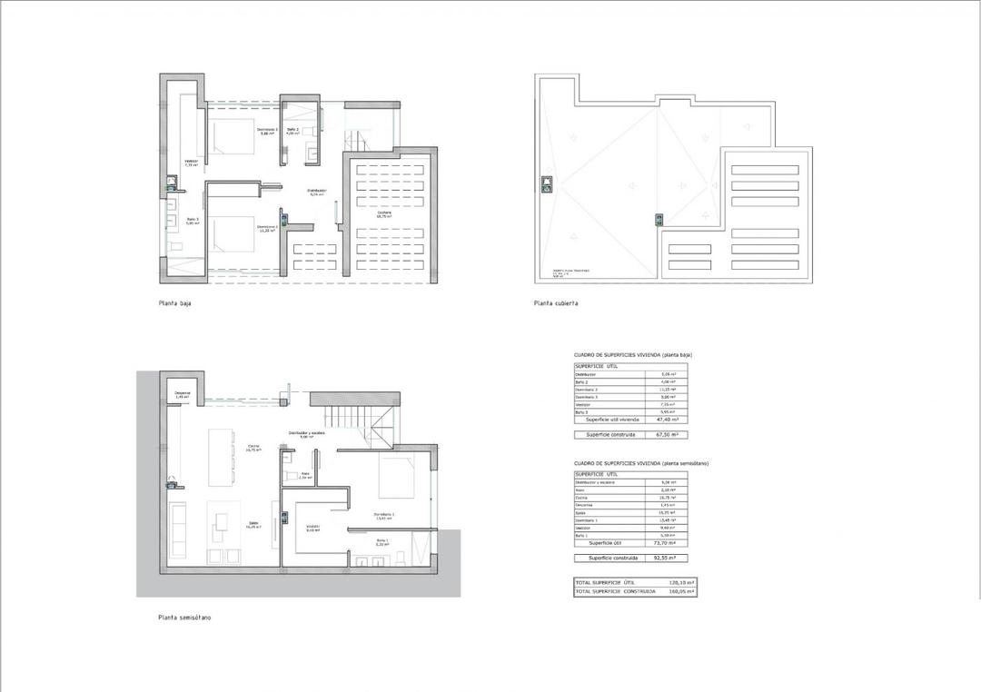
Independent villa build over 2 floors and has 3 bedrooms, 2 bathrooms, 2 dressing rooms, open plan kitchen with the lounge area, garage, private garden with swimming pool.
The town of Fortuna is less than 3km away for day to day shopping and the city of Murcia is 25km away where there is a wide range of gastronomic and leisure facilities.
The Costa Cálida of Murcia has more than 300 days of sunshine a year.
The possibility to enjoy all kinds of cultural and leisure offerings of nearby capitals such as Murcia and Cartagena .
A paradise with excellent connections to the whole of Europe.
NEU GEBAUTE VILLEN IN FORTUNA Neubau Villen in Fortuna, Murcia.
Unabhängige Villa über 2 Etagen gebaut und verfügt über 3 Schlafzimmer, 2 Bäder, 2 Ankleideräume, offene Küche mit dem Wohnbereich, Garage, privater Garten mit Swimmingpool.
Die Stadt Fortuna ist weniger als 3 km entfernt für die täglichen Einkäufe und die Stadt Murcia ist 25 km entfernt, wo es eine große Auswahl an gastronomischen und Freizeiteinrichtungen gibt.
An der Costa Cálida von Murcia gibt es mehr als 300 Sonnentage im Jahr.
Neben den Golfplätzen und Jachthäfen, die Sie entlang der Küste genießen können, bietet die Gegend auch die Möglichkeit zum Skifahren in der nahe gelegenen Sierra Nevada, einem Paradies für Wintersportler, mit wunderschönen Naturlandschaften.
Die Möglichkeit, alle Arten von Kultur- und Freizeitangeboten der nahe gelegenen Hauptstädte wie Murcia und Cartagena zu genießen.
Ein Paradies mit hervorragenden Verbindungen nach ganz Europa.
Die Flughäfen Alicante-Elche und Murcias Corvera sind nur eine Stunde entfernt.
VILLAS DE OBRA NUEVA EN FORTUNA Villas de nueva construcción en Fortuna, Murcia.
Villa independiente construido en 2 plantas y dispone de 3 dormitorios, 2 baños, 2 vestidores, cocina abierta con el salón, garaje, jardín privado con piscina.
El pueblo de Fortuna está a menos de 3km para las compras del día a día y la ciudad de Murcia está a 25km donde hay una amplia oferta gastronómica y de ocio.
El clima de la Costa Cálida, a menudo considerado el mejor de Europa, hace posible un estilo de vida muy sociable y saludable, al aire libre, marcado por fantásticas instalaciones deportivas y de ocio, con ciudades turísticas excitantes y cosmopolitas, que destacan por la prestación de servicios de primera clase, algunos de ellos exclusivos, considerados de verdadero lujo.
La Costa Cálida de Murcia cuenta con más de 300 días de sol al año.
Además de los campos de golf y los puertos deportivos de los que se puede disfrutar a lo largo de la costa, la zona también ofrece la posibilidad de esquiar en la cercana Sierra Nevada, un paraíso para los amantes de los deportes de invierno, con bellos paisajes naturales.
La posibilidad de disfrutar de todo tipo de oferta cultural y de ocio de capitales cercanas como Murcia y Cartagena.
Un paraíso con excelentes conexiones con toda Europa.
Aeropuertos de Alicante-Elche y Murcias Corvera situados a una hora.
NIEUWBOUW VILLA'S IN FORTUNA Nieuwbouw villa's in Fortuna, Murcia.
Onafhankelijke villa gebouwd over 2 verdiepingen en heeft 3 slaapkamers, 2 badkamers, 2 kleedkamers, open keuken met de woonkamer, garage, privé tuin met zwembad.
De stad Fortuna ligt op minder dan 3 km afstand voor de dagelijkse boodschappen en de stad Murcia ligt op 25 km afstand waar er een breed scala aan gastronomische en recreatieve faciliteiten is.
Het klimaat aan de Costa Cálida, vaak beschouwd als het beste van Europa, maakt een zeer gezellige en gezonde levensstijl mogelijk, in de buitenlucht, gekenmerkt door fantastische sport- en vrijetijdsvoorzieningen, met opwindende en kosmopolitische toeristische steden, die zich onderscheiden door het aanbieden van topklasse diensten, waarvan sommige exclusief, als echte luxe worden beschouwd.
De Costa Cálida van Murcia heeft meer dan 300 dagen zon per jaar.
Naast de golfbanen en jachthavens die u langs de hele kust kunt genieten, biedt het gebied ook de mogelijkheid om te skiën in de nabijgelegen Sierra Nevada, een paradijs voor wintersporters, met prachtige natuurlijke landschappen.
De mogelijkheid om te genieten van allerlei culturele en recreatieve aanbiedingen van nabijgelegen hoofdsteden zoals Murcia en Cartagena.
Een paradijs met uitstekende verbindingen naar heel Europa.
De luchthavens Alicante-Elche en Murcias Corvera liggen op een uur afstand.
Thinking of buying in Jávea? Here's what life is really like for foreign residents — the neighbourhoods, lifestyle, cost...
A practical guide for British pensioners retiring to Costa del Sol: real costs, visa requirements, top areas, healthcare...
Complete guide to working remotely in Spain in 2026. Learn about the Digital Nomad Visa, tax implications, cost of livin...