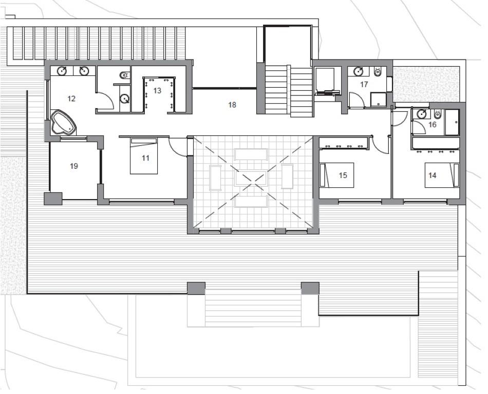
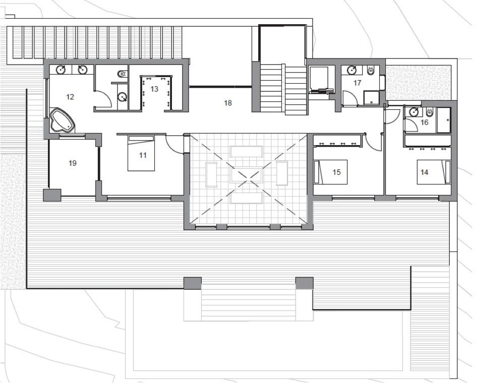
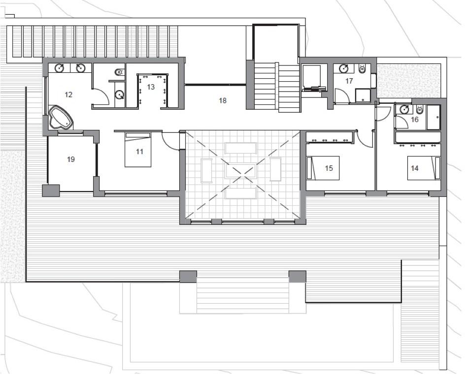
This very spacious villa is spread over 3 floors.
In the general living area are the spacious lounge with dining area, a fully equipped modern kitchen, a guest toilet and 2 double bedrooms with bathroom en suite.
On the top floor there are 2 spacious double bedrooms with bathroom en suite and the master bedroom with dressing area and bathroom en suite.
On the lower floor, next to the garage, there is a large storage room, a laundry room, a home cinema and a gym with Jacuzzi.
In addition to the spacious, partly covered terrace with swimming pool, there are various other seating areas around the house from which you can enjoy the beautiful views that this villa has to offer.
Diese sehr geräumige Villa erstreckt sich über 3 Etagen.
Im allgemeinen Wohnbereich befinden sich das geräumige Wohnzimmer mit Essbereich, eine voll ausgestattete moderne Küche, ein Gäste-WC und 2 Doppelschlafzimmer mit Badezimmer en suite.
Auf der obersten Etage befinden sich 2 geräumige Doppelschlafzimmer mit Badezimmer en suite und das Hauptschlafzimmer mit Ankleidebereich und Badezimmer en suite.
Auf der unteren Etage, neben der Garage, gibt es einen großen Abstellraum, eine Waschküche, ein Heimkino und ein Fitnessstudio mit Jacuzzi.
Neben der großzügigen, teilweise überdachten Terrasse mit Swimmingpool gibt es rund um das Haus verschiedene weitere Sitzgelegenheiten, von denen aus Sie die schöne Aussicht genießen können, die diese Villa zu bieten hat.
Deze zeer ruime villa is verdeeld over 3 verdiepingen.
Op het algemene leefgedeelte bevinden zich de ruime salon met eethoek, een volledig ingerichte moderne keuken, een gastentoilet en 2 tweepersoon slaapkamer met badkamer en suite.
Op de bovenste verdieping bevinden zich 2 ruime tweepersoons slaapkamers met badkamer en suite en de hoofdslaapkamer met kleedruimte en badkamer en suite.
Op de onderste verdieping bevinden zich naast de garage een ruime berging, een wasruimte, een thuisbioscoop en een gym met Jacuzzi.
Naast het ruime deels overdekte terras met zwembad zijn er diverse overige zitgedeelten rondom de woning vanwaar men van de prachtige uitzichten die deze villa te bieden heeft kan genieten.
Thinking of buying in Jávea? Here's what life is really like for foreign residents — the neighbourhoods, lifestyle, cost...
A comprehensive overview of the Spanish real estate market in 2026 — trends, hotspots, prices, and essential tips for in...
Considering living in El Mojón on the Costa Blanca? A practical, honest guide for retirees and second-home buyers explor...