This project has a construction license, construction can start immediately after signing the construction contract.
Modern new build villa with sea views for sale in Benissa.
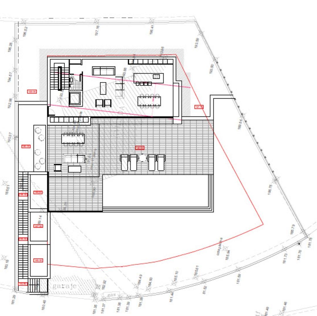
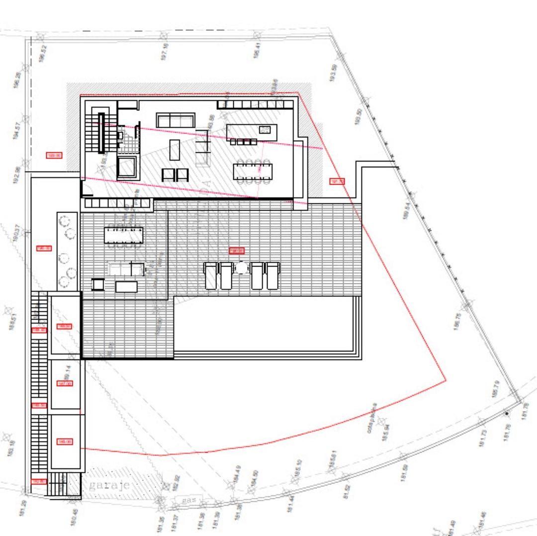
This very large luxury villa consists of 4 floors connected by an elevator, an internal staircase and an external staircase.
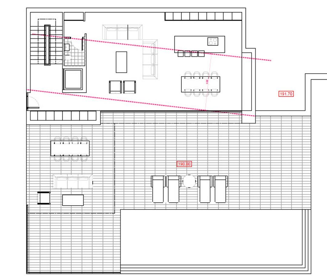
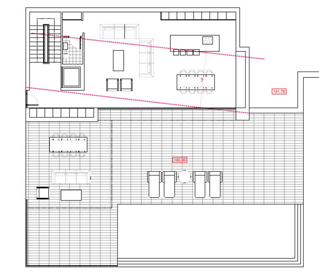
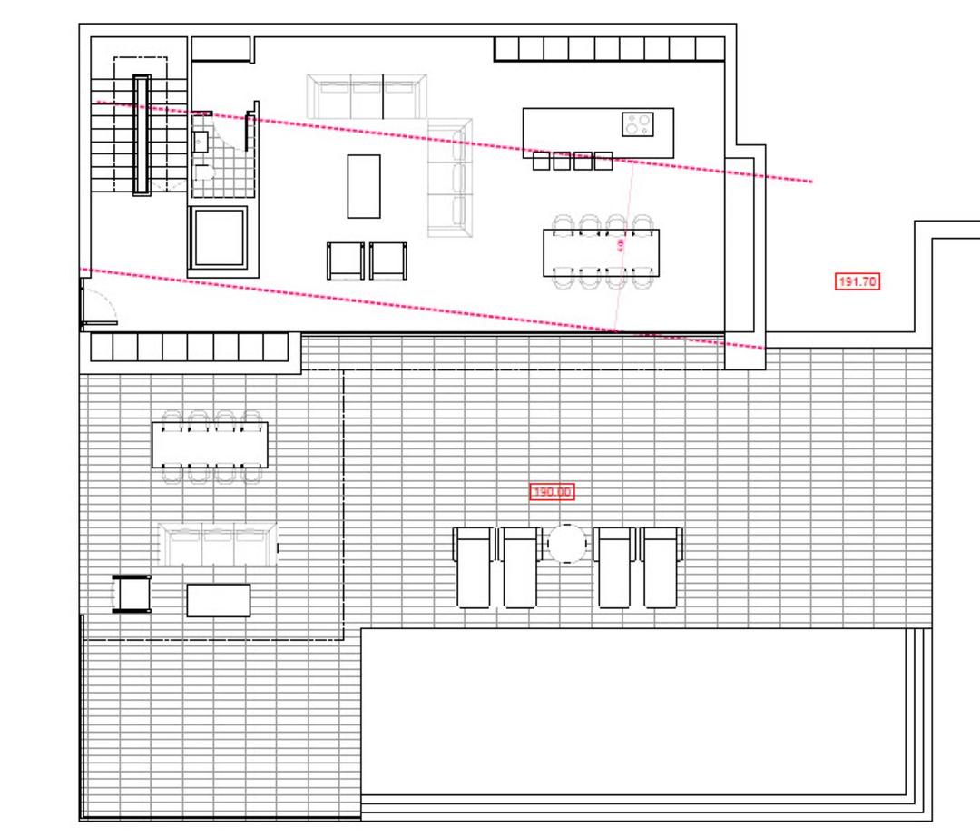
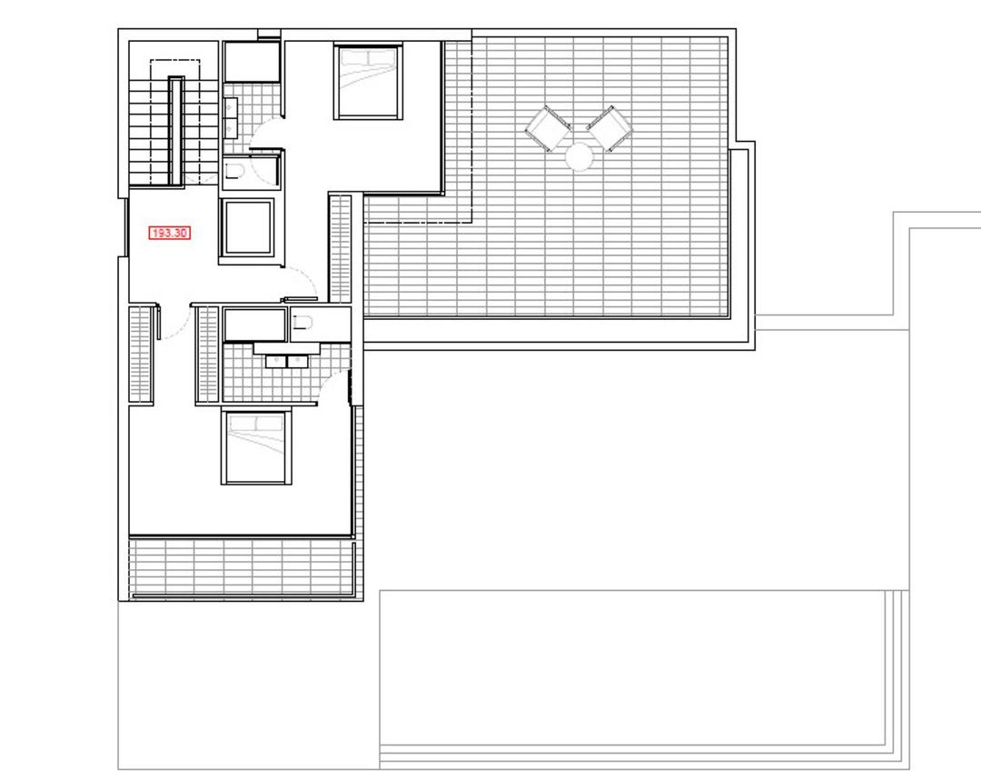
On the ground floor there is an entrance hall with a guest toilet and a very spacious living room with an open kitchen.
Through the large sliding windows you can go outside where there are spectacular sea views from the covered terrace, from the infinity pool and from the sun terrace.
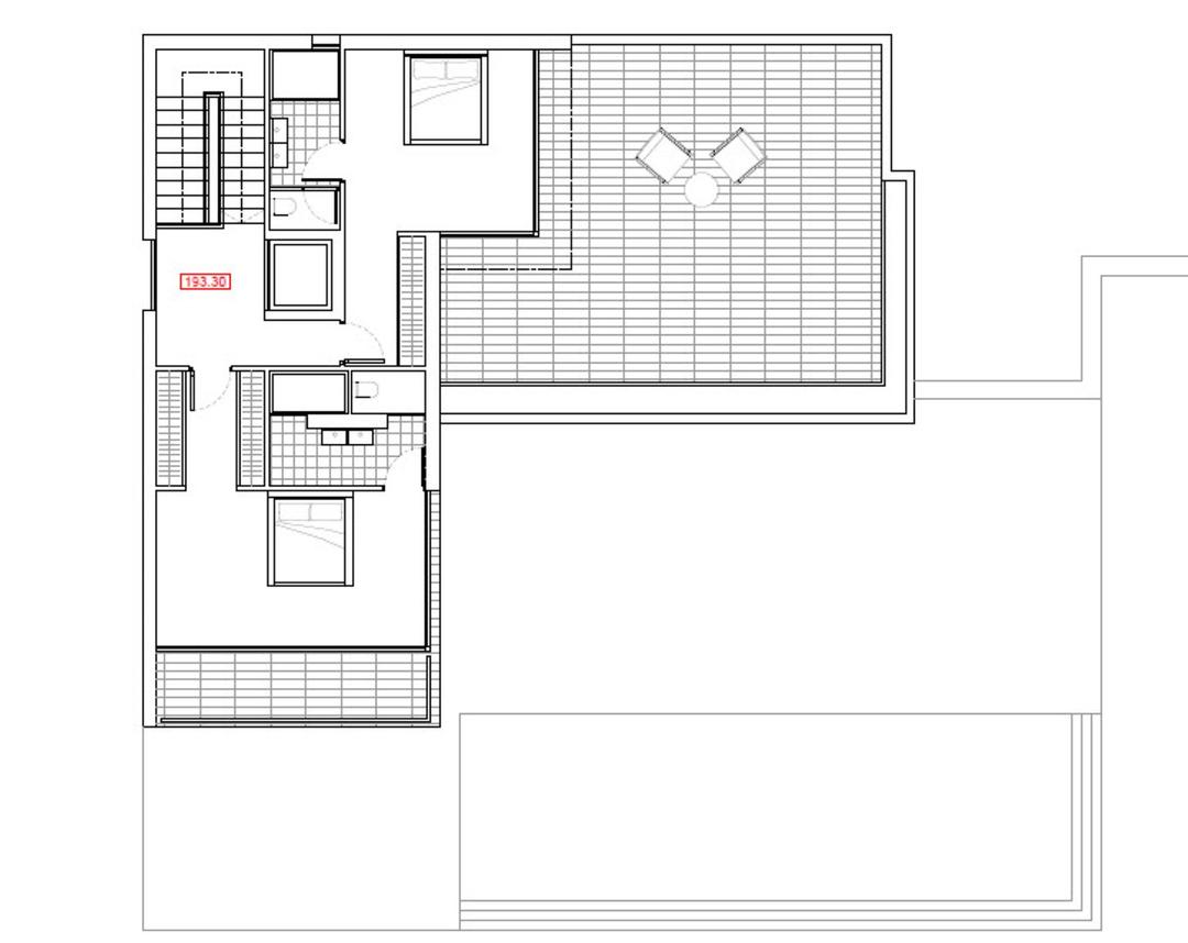
On the second floor there are 2 double bedrooms, both with en suite bathrooms and a private terrace.
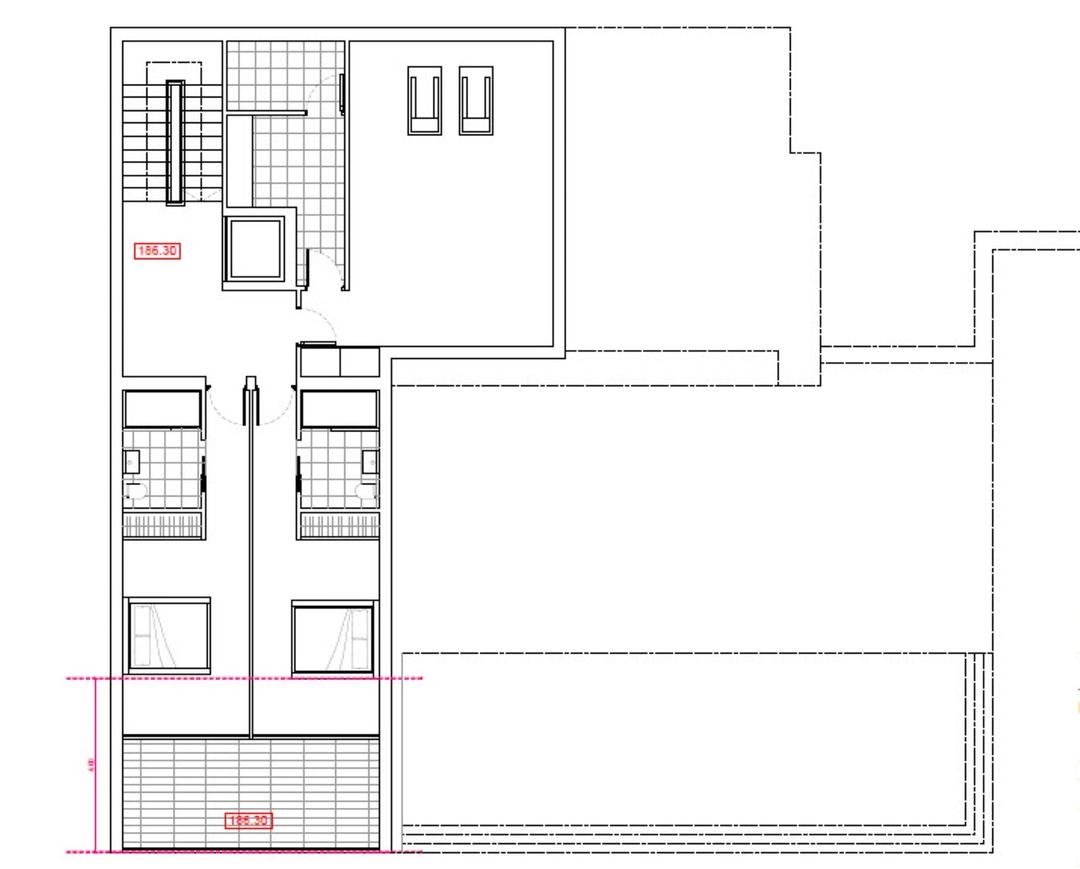
In the first basement there are 2 more double bedrooms, both with en suite bathrooms and access to a terrace.
Furthermore, on this level there is another multipurpose room and storage space.
At the very bottom there is then a garage for 2 cars and the technical room.
Outside in the Mediterranean garden there is parking for 2 cars.
Only top quality materials are used and the house is equipped with all the modern technology.
More information on request.
Dieses Projekt verfügt über eine Baugenehmigung, der Bau kann sofort nach Unterzeichnung des Bauvertrags beginnen.
Moderne Neubauvilla mit Meerblick in Benissa zu verkaufen.
Diese sehr große Luxusvilla besteht aus 4 Etagen, die durch einen Aufzug, eine Innentreppe und eine Außentreppe verbunden sind.
Im Erdgeschoss gibt es eine Eingangshalle mit einer Gästetoilette und ein sehr geräumiges Wohnzimmer mit einer offenen Küche.
Durch große Schiebefenster gelangen Sie nach draußen, wo Sie von der überdachten Terrasse, vom Infinity-Pool und von der Sonnenterrasse aus einen spektakulären Blick auf das Meer haben.
Im ersten Stock befinden sich 2 Doppelschlafzimmer, beide mit eigenem Bad und einer privaten Terrasse.
Im ersten Untergeschoss befinden sich 2 weitere Doppelschlafzimmer, beide mit eigenem Bad und Zugang zu einer Terrasse.
Außerdem gibt es auf dieser Ebene einen weiteren Mehrzweckraum und Stauraum.
Ganz unten befinden sich dann eine Garage für 2 Autos und der Technikraum.
Draußen im mediterranen Garten gibt es weitere Parkplätze für 2 Autos.
Es wurden nur erstklassige Materialien verwendet und das Haus ist mit allen modernen technischen Geräten ausgestattet.
Weitere Informationen auf Anfrage.
Este proyecto tiene licencia de obras, la construcción puede comenzar inmediatamente después de la firma del contrato de construcción.
Moderna villa de nueva construcción con vistas al mar en venta en Benissa.
Esta gran villa de lujo consta de 4 plantas comunicadas por ascensor, escalera interior y escalera exterior.
En la planta baja hay un hall de entrada con un aseo de invitados y un salón muy espacioso con cocina abierta.
Grandes ventanales correderos te permiten salir al exterior, donde hay espectaculares vistas al mar desde la terraza cubierta, desde la piscina infinita y desde la terraza solárium.
En la primera planta hay 2 dormitorios dobles, ambos con baño en suite y terraza privada.
En el primer sótano hay otros 2 dormitorios dobles, ambos con baño en suite y acceso a una terraza.
Además, en este nivel hay otra sala polivalente y espacio de almacenamiento.
En la parte inferior hay un garaje para 2 coches y el cuarto técnico.
Fuera, en el jardín mediterráneo, hay otro aparcamiento para 2 coches.
Sólo se utilizan materiales de primera calidad y la casa está equipada con todos los artilugios tecnológicos actuales.
Más información a petición.
Dit project beschikt over een bouwlicentie, de bouw kan onmiddelijk gestart worden na ondertekening van het bouwcontract.
Moderne nieuwbouwvilla met zeezicht te koop in Benissa.
Deze zeer grote luxe villa bestaat uit 4 verdiepingen die verbonden zijn met een lift, een interne trap en een externe trap.
Op het gelijkvloers is er een inkomhal met een gastentoilet en een zeer ruime woonkamer met een open keuken.
Door de grote schuiframen kan men naar buiten gaan waar er een spectaculair zeezicht is vanop het overdekte terras, vanuit het infinity zwembad en vanop het zonneterras.
Op de eerste verdieping zijn er 2 tweepersoonsslaapkamers, beide met en suite badkamer en een prive terras.
In de eerste kelder zijn er nog 2 tweepersoonsslaapkamers, beide met een en suite badkamer en toegang tot een terras.
Verder is er op dit niveau nog een multifunctionele ruimte en opbergruimte.
Helemaal beneden is er dan een garage voor 2 autos en het technisch lokaal.
Buiten in de mediterrane tuin is er nog parkeerplaats voor 2 autos.
Er worden uitsluitend materialen gebruikt van top kwaliteit en de woning is voorzien van al de hedendaagse technologische snufjes.
Meer informatie op aanvraag.
Thinking of buying in Jávea? Here's what life is really like for foreign residents — the neighbourhoods, lifestyle, cost...
A comprehensive overview of the Spanish real estate market in 2026 — trends, hotspots, prices, and essential tips for in...
Considering living in El Mojón on the Costa Blanca? A practical, honest guide for retirees and second-home buyers explor...