NEW BUILD VILLAS IN BENALMADENA Located in the prestigious La Capellanía area, this exclusive collection of seven Luxurious New Build villas offers unparalleled views of the Mediterranean Sea, majestic mountains, and the scenic landscapes of Mijas and Fuengirola.
The ConceptOur projects are characterised by cutting-edge design, prime locations, and superior quality, offering dream properties to the most discerning clientele.
Situated in the heart of Benalmadena, La Capellania, a very charming and well established area, with beautiful traditional white Spanish villas and green gardens surrounding.
Just 15 minutes from the airport in Malaga and 30 minutes from Marbella, this promotion is raising the area to a new level with the best from both worlds.
Enjoy close proximity to beautiful beaches, world-class golf courses, gourmet restaurants, and vibrant cultural attractions.
This unique villa consists of a spacious ground floor with an open-plan kitchen and living area that flows effortlessly onto expansive terraces and a chill-out area by the curved infinity pool.
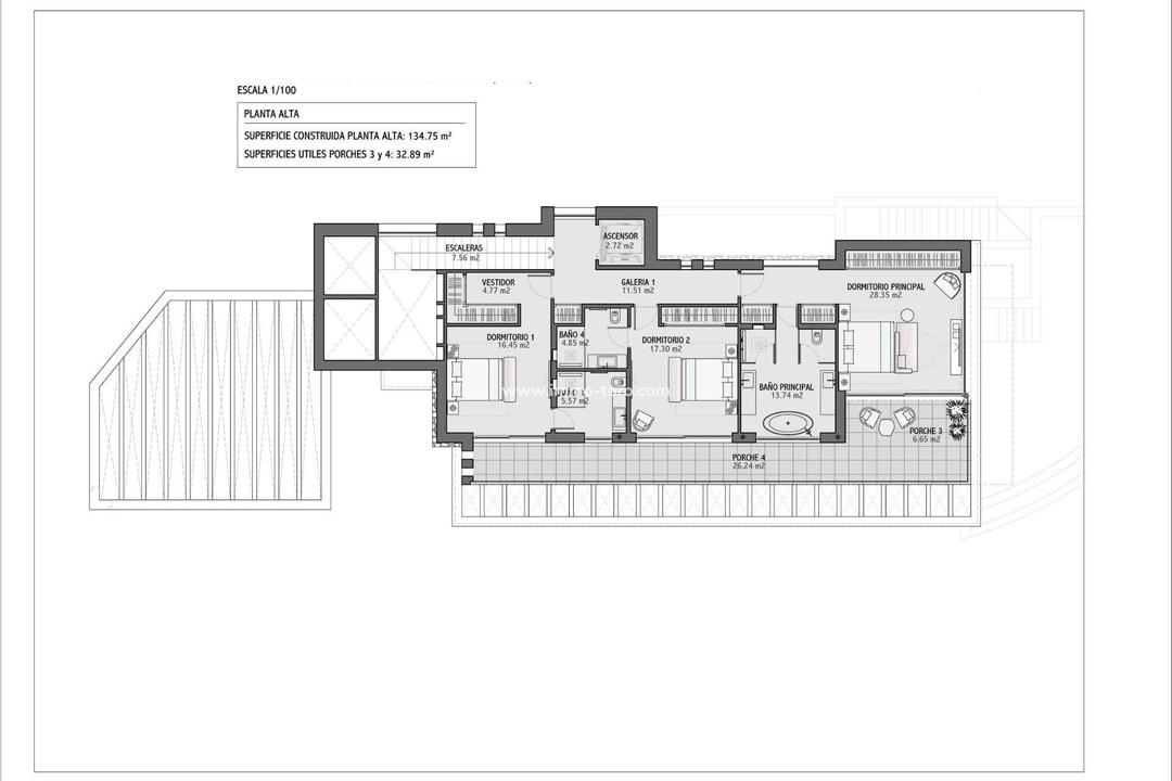
The upper floor features a master suite with a private gallery, along with three additional bedrooms each with en-suite bathrooms, providing ample space for family and guests.
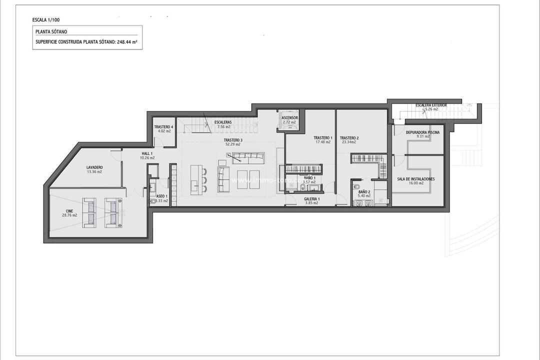
The basement includes a spacious multi-room with a bar, home cinema, and multiple bedrooms with en-suite bathrooms, all accessible via a private elevator.
EXTERIORFOUNDATIONS AND STRUCTURE• Reinforced concrete using insulated and reticular slabs.
EXTERIOR ENCLOSURE• Exterior wall with ceramic bricks of 12 cm.
Extruded EPS polystyrene insulation, 4 cm of insulation Rockwoll or similar and double internal plasterboard backing.
ROOF• Non-passable flat roof with XPS 12 cm insulation in the covered area.• Tiled for solar panels.
FACADE• White scraped monolayer coating and decorated stone walls, depending on the design specification.• PaintedEXTERIOR CARPENTRY• Schüco aluminium frames with thermal bridge break, embedded in living room flooring.• Electric venecian blinds integrated into carpentry from Griesser.
EXTERIOR FLOORING• Porcelanosa 100×100 cm.
OUTDOOR LIGHTING• Exterior wall light fittings and garden beacons according to Exterior Design specifications (if applicable).EXTERIORS• Common garden areas: Finished according to landscaping design specification with irrigation system and lighting.• Private infinity swimming pool: According to design project.
INTERIOR PARTITIONS• Acoustic brick, double, reinforced, with thermal and acoustic insulation "rockwool" if appropriate in the areas defined by the interior design specification.• False ceilings throughout.• Sound reducing ceilings in living areas.
INTERIOR FLOORING• Porcelanosa 100×100 cm and parquet wooden floors in the bedrooms.
• 7 cm skirting integrated into the walls.
INDOOR LIGHTING• Interior LED throughout.• Indirect LED light in curtain boxes and sound reducing ceiling in living room.• Switches and sockets: Bticino Living NowPAINTWORK• Smooth white RAL 9010.BATHROOM COVERINGS• Top of the range ceramics from Porcelanosa.
HEATING AND AIR CONDITIONING• Air conditioning via ducts with direct expansion heat pump.• Air Zone•Electric towel heater in bathrooms.• Under floor heating with water throughout.• Electric underfloor heating in bathrooms.• Aerothermal electric heater.• Installation of air renewal and extraction.
In the immediate surroundings there are all the services available, such as restaurants, golf, supermarkets, schools, health centres, Renfe train station, etc.
Benalmádena is one of the most dynamic and attractive towns on the Costa del Sol.
Its mild climate all year round, beautiful beaches, wide range of leisure activities, infrastructures and good communications make it the perfect place for those who wish to invest in quality of life and wellbeing.
Im Obergeschoss befinden sich eine Master-Suite mit privater Galerie sowie drei weitere Schlafzimmer mit jeweils eigenem Bad, die reichlich Platz für Familie und Gäste bieten.
NEU GEBAUTE VILLEN IN BENALMADENA In der prestigeträchtigen Gegend von La Capellanía gelegen, bietet diese exklusive Kollektion von sieben luxuriösen Neubauvillen einen unvergleichlichen Blick auf das Mittelmeer, majestätische Berge und die malerischen Landschaften von Mijas und Fuengirola.
Das Konzept Unsere Projekte zeichnen sich durch modernstes Design, erstklassige Lagen und höchste Qualität aus und bieten Traumimmobilien für die anspruchsvollste Kundschaft.
La Capellania liegt im Herzen von Benalmadena, einer sehr charmanten und gut etablierten Gegend mit wunderschönen traditionellen weißen spanischen Villen und grünen Gärten in der Umgebung.
Nur 15 Minuten vom Flughafen Málaga und 30 Minuten von Marbella entfernt, hebt diese Promotion die Gegend auf ein neues Niveau mit dem Besten aus beiden Welten.
Genießen Sie die Nähe zu wunderschönen Stränden, Weltklasse-Golfplätzen, Gourmet-Restaurants und lebendigen kulturellen Attraktionen.
Diese einzigartige Villa besteht aus einem geräumigen Erdgeschoss mit einer offenen Küche und einem Wohnbereich, der mühelos in die weitläufigen Terrassen und einen Chill-out-Bereich am geschwungenen Infinity-Pool übergeht.
Im Untergeschoss befinden sich ein geräumiger Mehrzweckraum mit einer Bar, ein Heimkino und mehrere Schlafzimmer mit eigenem Bad, die alle über einen privaten Aufzug erreichbar sind.
AUSSENBEREICH FUNDAMENT UND STRUKTUR - Stahlbeton mit isolierten und netzartigen Platten.
AUSSENVERKLEIDUNG - Außenwand mit Keramikziegeln von 12 cm.
Isolierung aus extrudiertem EPS-Polystyrol, 4 cm Isolierung aus Rockwoll oder ähnlichem und doppelter Innenverkleidung aus Gipskarton.
DACH - Nicht begehbares Flachdach mit XPS 12 cm Isolierung im überdachten Bereich.
- Mit Ziegeln für Sonnenkollektoren.
FASSADE - Einschichtiger weißer Kratzputz und dekorierte Steinwände, je nach Designspezifikation.
- Gestrichen AUSSENTISCHLEREI - Schüco Aluminiumrahmen mit Wärmebrückenunterbrechung, eingebettet in den Bodenbelag des Wohnzimmers.
- In die Schreinerei integrierte elektrische Jalousien von Griesser.
BODENBELAG AUSSEN - Porcelanosa 100×100 cm.
AUSSENBELEUCHTUNG - Außenwandleuchten und Gartenleuchten gemäß den Spezifikationen des Exterior Design (falls zutreffend).
EXTERIORS - Gemeinsame Gartenbereiche: Fertigstellung gemäß den Spezifikationen des Landschaftsdesigns mit Bewässerungssystem und Beleuchtung.
- Privater Infinity-Swimmingpool: Entsprechend dem Entwurfsprojekt.
INNENTRENNWÄNDE - Akustischer Ziegelstein, doppelt, verstärkt, mit thermischer und akustischer Isolierung "rockwool", falls erforderlich, in den Bereichen, die durch die Spezifikation der Innenarchitektur definiert sind.
- Abgehängte Decken überall.
- Schalldämmende Decken in den Wohnbereichen.
BODENBELAG IM INNENBEREICH - Porcelanosa 100×100 cm und Holzparkett in den Schlafzimmern.
- In die Wände integrierte 7 cm hohe Sockelleisten.
INNENBELEUCHTUNG - Innenbeleuchtung durchgehend LED.
- Indirektes LED-Licht in den Vorhangkästen und schalldämpfende Decke im Wohnzimmer.
- Schalter und Steckdosen: Bticino Living Now ANSTRICH - Glattes Weiß RAL 9010.
BADVERKLEIDUNGEN - Keramik der Spitzenklasse von Porcelanosa.
HEIZUNG UND KLIMATISIERUNG - Klimatisierung über Kanäle mit Direktverdampfungs-Wärmepumpe.
- Luftzone -Elektrischer Handtuchheizkörper in den Bädern.
- Fußbodenheizung mit Wasser im ganzen Haus.
- Elektrische Fußbodenheizung in den Bädern.
- Aerothermische elektrische Heizung.
- Installation von Lufterneuerung und -absaugung.
In der unmittelbaren Umgebung gibt es alle Dienstleistungen wie Restaurants, Golf, Supermärkte, Schulen, Gesundheitszentren, Renfe-Bahnhof, etc.
Benalmádena ist eine der dynamischsten und attraktivsten Städte an der Costa del Sol.
Das ganzjährig milde Klima, die schönen Strände, das breite Freizeitangebot, die Infrastrukturen und die guten Verkehrsanbindungen machen Benalmádena zu einem idealen Ort für alle, die in Lebensqualität und Wohlbefinden investieren möchten.
VILLAS DE OBRA NUEVA EN BENALMÁDENA Situada en la prestigiosa zona de La Capellanía, esta exclusiva colección de siete lujosas villas de obra nueva ofrece unas vistas incomparables del mar Mediterráneo, las majestuosas montañas y los pintorescos paisajes de Mijas y Fuengirola.
El ConceptoNuestros proyectos se caracterizan por un diseño vanguardista, ubicaciones privilegiadas y una calidad superior, ofreciendo propiedades de ensueño a la clientela más exigente.
Situado en el corazón de Benalmádena, La Capellanía, una zona muy encantadora y bien establecida, con hermosas villas blancas tradicionales españolas y verdes jardines alrededor.
A sólo 15 minutos del aeropuerto de Málaga y 30 minutos de Marbella, esta promoción está elevando la zona a un nuevo nivel con lo mejor de ambos mundos.
Disfrute de la proximidad a hermosas playas, campos de golf de clase mundial, restaurantes gourmet y vibrantes atracciones culturales.
Esta villa única consta de una espaciosa planta baja con una cocina de planta abierta y sala de estar que fluye sin esfuerzo hacia amplias terrazas y una zona chill-out junto a la piscina infinita curvada.
La planta superior cuenta con una suite principal con galería privada, junto con tres dormitorios adicionales, cada uno con baño en suite, proporcionando un amplio espacio para la familia y los invitados.
El sótano incluye un espacioso salón múltiple con bar, cine en casa y varios dormitorios con baños en suite, todos accesibles a través de un ascensor privado.
EXTERIORCIMIENTOS Y ESTRUCTURA- Hormigón armado mediante forjados aislados y reticulares.
CERRAMIENTO EXTERIOR- Cerramiento exterior con ladrillo cerámico de 12 cm.
Aislamiento de poliestireno extrusionado EPS, 4 cm de aislamiento Rockwoll o similar y doble trasdosado interior de pladur.
CUBIERTA- Cubierta plana no transitable con aislamiento de XPS de 12 cm en la zona cubierta.- Alicatado para paneles solares.
FACHADA- Revestimiento monocapa raspado blanco y paredes de piedra decoradas, según las especificaciones del diseño.- PintadoCARPINTERÍA EXTERIOR- Marcos de aluminio Schüco con rotura de puente térmico, empotrados en pavimento de salón.- Persianas venecianas eléctricas integradas en carpintería de Griesser.
PAVIMENTO EXTERIOR- Porcelanosa 100×100 cm.
ILUMINACIÓN EXTERIOR- Apliques exteriores y balizas de jardín según especificaciones de Diseño Exterior (si procede).EXTERIORES- Zonas comunes ajardinadas: Acabado según especificación de diseño paisajístico con sistema de riego e iluminación.- Piscina infinita privada: Según proyecto de diseño.
TABIQUERÍA INTERIOR- Ladrillo acústico, doble, armado, con aislamiento térmico y acústico "lana de roca" si procede en las zonas definidas por la especificación de diseño interior.- Falsos techos en toda la vivienda.- Techos fonoabsorbentes en zonas de estar.
PAVIMENTOS INTERIORES- Porcelanosa 100×100 cm y parquet de madera en dormitorios.
- Zócalo de 7 cm integrado en las paredes.
ILUMINACIÓN INTERIOR- LED interior en toda la vivienda.- Luz LED indirecta en cajas de cortinas y techo insonorizante en salón.- Interruptores y enchufes: Bticino Living NowPINTURA- Blanco liso RAL 9010.REVESTIMIENTOS DE BAÑO- Cerámica de alta gama de Porcelanosa.
CALEFACCIÓN Y AIRE ACONDICIONADO- Aire acondicionado por conductos con bomba de calor de expansión directa.- Zona Aire-Toallero eléctrico en baños.- Suelo radiante por agua en toda la vivienda.- Suelo radiante eléctrico en baños.- Calefactor eléctrico aerotérmico.- Instalación de renovación y extracción de aire.
En sus inmediaciones dispone de todos los servicios como restaurantes, golf, supermercados, colegios, centros de salud, estación de Renfe, etc.
Benalmádena es una de las localidades más dinámicas y atractivas de la Costa del Sol.
Su clima suave durante todo el año, sus hermosas playas, su amplia oferta de ocio, sus infraestructuras y sus buenas comunicaciones la convierten en el lugar perfecto para quienes desean invertir en calidad de vida y bienestar.
NIEUWBOUW VILLA'S IN BENALMADENA Deze exclusieve collectie van zeven luxe nieuwbouwvilla's ligt in de prestigieuze wijk La Capellanía en biedt een ongeëvenaard uitzicht op de Middellandse Zee, de majestueuze bergen en de schilderachtige landschappen van Mijas en Fuengirola.
Het conceptOnze projecten worden gekenmerkt door baanbrekend design, toplocaties en superieure kwaliteit, en bieden droomhuizen voor de meest veeleisende klanten.
Gelegen in het hart van Benalmadena, La Capellania, een zeer charmante en gevestigde wijk, met prachtige traditionele witte Spaanse villa's en groene tuinen rondom.
Op slechts 15 minuten van het vliegveld in Malaga en 30 minuten van Marbella, tilt deze promotie het gebied naar een nieuw niveau met het beste van beide werelden.
Geniet van de nabijheid van prachtige stranden, golfbanen van wereldklasse, gastronomische restaurants en bruisende culturele attracties.
Deze unieke villa bestaat uit een ruime benedenverdieping met een open keuken en woonkamer die moeiteloos overloopt in uitgestrekte terrassen en een chill-outruimte bij het gebogen overloopzwembad.
De bovenverdieping heeft een master suite met een eigen galerij, samen met drie extra slaapkamers met elk een eigen badkamer, waardoor er voldoende ruimte is voor familie en gasten.
Het souterrain bevat een ruime meerkamer met een bar, een thuisbioscoop en meerdere slaapkamers met eigen badkamers, allemaal bereikbaar via een privélift.
EXTERIEURFUNDERINGEN EN STRUCTUUR- Gewapend beton met geïsoleerde en reticulaire platen.
BUITENMUUR- Buitenmuur met keramische bakstenen van 12 cm.
Geëxtrudeerde EPS-polystyreenisolatie, 4 cm isolatie Rockwoll of gelijkwaardig en dubbele interne gipsplaatrug.
DAK- Niet-passeerbaar plat dak met XPS 12 cm isolatie in het overdekte gedeelte.- Betegeld voor zonnepanelen.
GEVEL- Wit geschraapte monolaagcoating en gedecoreerde stenen muren, afhankelijk van de ontwerpspecificatie.- GeschilderdBUITENSCHRIJNWERK- Schüco aluminium kozijnen met koudebrugonderbreking, ingebed in de vloer van de woonkamer.- Elektrische jaloezieën geïntegreerd in het schrijnwerk van Griesser.
VLOERBEDEKKING BUITEN- Porcelanosa 100×100 cm.
BUITENVERLICHTING- Buitenmuurverlichtingsarmaturen en tuinbakens volgens Exterior Design-specificaties (indien van toepassing).EXTERIEUREN- Gemeenschappelijke tuinen: Afgewerkt volgens landschapsontwerpspecificatie met irrigatiesysteem en verlichting.- Privé overloopzwembad: Volgens ontwerpproject.
BINNENWANDEN- Akoestische baksteen, dubbel, versterkt, met thermische en akoestische isolatie "steenwol" indien nodig in de gebieden die zijn gedefinieerd door het interieur ontwerpspecificatie.- Overal valse plafonds.- Geluiddempende plafonds in woonruimtes.
VLOERBEDEKKING INTERIEUR- Porcelanosa 100×100 cm en houten parketvloeren in de slaapkamers.
- Plinten van 7 cm geïntegreerd in de muren.
BINNENVERLICHTING- Overal LED binnenverlichting.- Indirect LED-licht in gordijnkasten en geluidsreducerend plafond in woonkamer.- Schakelaars en stopcontacten: Bticino Wonen NuVERF- Glad wit RAL 9010.BADKAMERBEKLEDINGEN- Topkwaliteit keramiek van Porcelanosa.
VERWARMING EN AIRCONDITIONING- Airconditioning via kanalen met warmtepomp met directe expansie.- Luchtzone-Elektrische handdoekverwarming in badkamers.- Vloerverwarming met water door het hele huis.- Elektrische vloerverwarming in badkamers.- Aerothermische elektrische verwarming.- Installatie van luchtverversing en -afzuiging.
In de directe omgeving zijn alle voorzieningen aanwezig, zoals restaurants, golfbanen, supermarkten, scholen, gezondheidscentra, Renfe treinstation, enz.
Benalmádena is een van de meest dynamische en aantrekkelijke steden aan de Costa del Sol.
Het milde klimaat het hele jaar door, de prachtige stranden, het ruime aanbod aan vrijetijdsactiviteiten, de infrastructuur en de goede verbindingen maken het de perfecte plek voor wie wil investeren in levenskwaliteit en welzijn.
Thinking of buying in Jávea? Here's what life is really like for foreign residents — the neighbourhoods, lifestyle, cost...
A comprehensive overview of the Spanish real estate market in 2026 — trends, hotspots, prices, and essential tips for in...
Considering living in El Mojón on the Costa Blanca? A practical, honest guide for retirees and second-home buyers explor...