Excellent Opportunity for Sale – Plot with Approved Project and Building License No waiting time for permits!
This is your chance to acquire a plot with a ready-to-start project and building license, featuring a modern, contemporary design that combines style, comfort, and functionality.
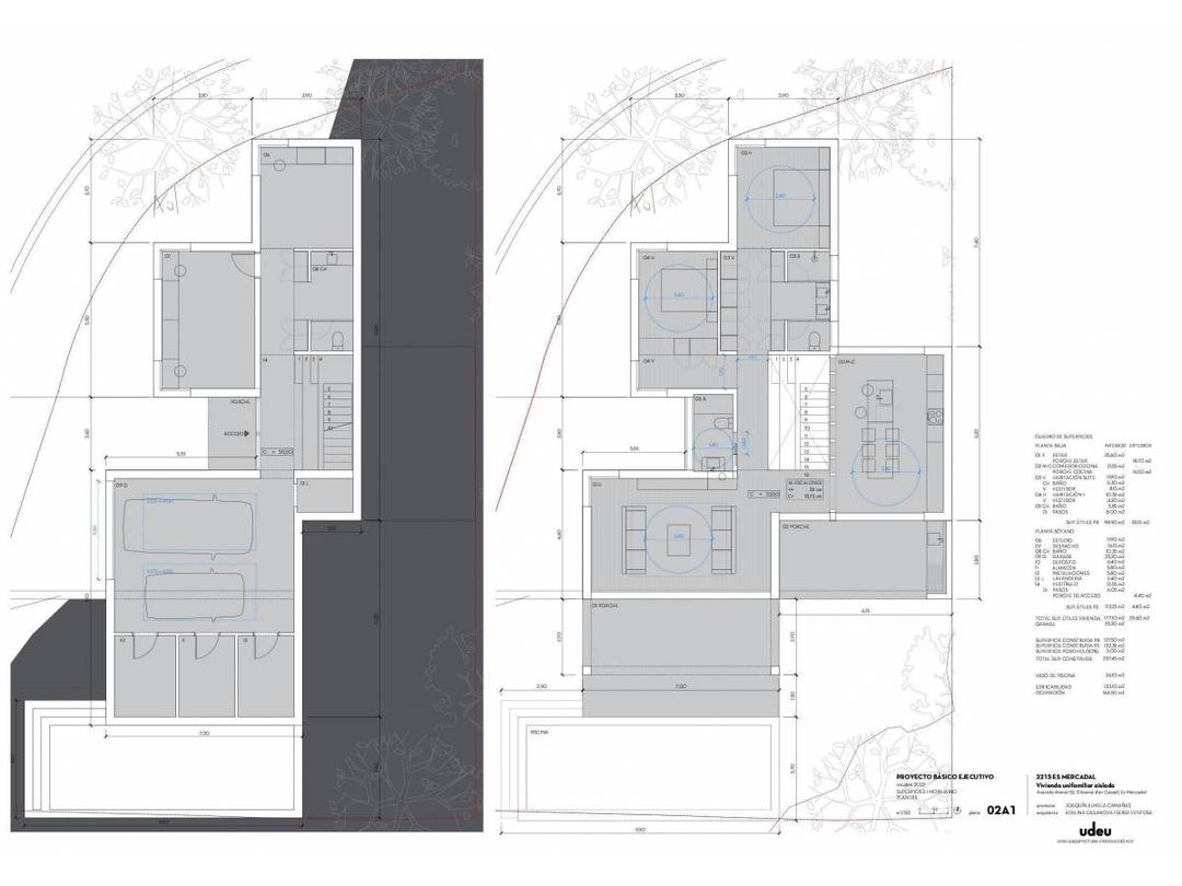
On the main floor, the property offers a spacious kitchen with dining area, a bright living room with direct access to the covered terrace, leading to the private swimming pool and large sun terraces—perfect for relaxing and entertaining.
There are also two double bedrooms with dressing areas and two bathrooms.
On the lower level, you will find a garage, two additional bedrooms, a full bathroom, laundry room, and storage space.
Located in a prime area, within walking distance to a beautiful sandy beach, as well as restaurants and shops, this property offers the perfect balance between tranquility and convenience.
The ideal place for your holidays or a smart investment on the coast.
A unique opportunity not to be missed!
Hervorragende Verkaufschance – Grundstück mit genehmigtem Bauprojekt Keine Wartezeit für Genehmigungen!
Hier ist Ihre Chance, ein Grundstück mit fertig genehmigtem Bauprojekt zu erwerben – mit modernem, zeitgenössischem Design, das Stil, Komfort und Funktionalität vereint.
Im Hauptgeschoss bietet das Haus eine große Küche mit Essbereich, ein helles Wohnzimmer mit direktem Zugang zur überdachten Terrasse, die zur privaten Poolanlage und großen Sonnenterrassen führt – perfekt zum Entspannen.
Außerdem gibt es zwei Doppelschlafzimmer mit Ankleidebereich und zwei Badezimmer.
Im Untergeschoss befinden sich eine Garage, zwei weitere Schlafzimmer, ein voll ausgestattetes Bad, Waschküche und Abstellraum.
In bevorzugter Lage, nur wenige Gehminuten von einem wunderschönen Sandstrand, Restaurants und Geschäften entfernt, bietet dieses Anwesen die perfekte Balance zwischen Ruhe und Bequemlichkeit.
Der ideale Ort für Ihren Urlaub oder eine sichere Investition an der Küste.
Eine einmalige Gelegenheit!
Excelente oportunidad en venta – Parcela con proyecto y licencia aprobada ¡No pierdas tiempo esperando permisos!
Esta es tu oportunidad de adquirir una parcela con proyecto y licencia de construcción lista para empezar, con un diseño moderno y contemporáneo que combina estilo, comodidad y funcionalidad.
En la planta principal, la vivienda ofrece una amplia cocina con zona de comedor, un luminoso salón con acceso directo a la terraza cubierta, y desde allí a la piscina privada y amplias zonas de terraza ideales para disfrutar del sol.
Además, cuenta con dos dormitorios dobles con vestidor y dos baños.
En la planta inferior, encontrarás un garaje, dos dormitorios adicionales, un baño completo, lavadero y espacio de almacenaje.
Ubicada en una zona privilegiada, a poca distancia a pie de una preciosa playa de arena, así como de restaurantes y tiendas, esta propiedad ofrece el equilibrio perfecto entre tranquilidad y comodidad.
El lugar ideal para tus vacaciones o como inversión segura en la costa.
¡Una oportunidad única que no puedes dejar escapar!
Thinking about buying a second home or relocating to Menorca? Discover what daily life is really like, from expat commun...
Discover the 7 best areas to buy property in Menorca in 2023 with our ultimate real estate guide for foreign buyers....
If you're thinking of buying a property on Menorca, you will want to read this important information on the buying proce...