INVESTMENT OPPORTUNITY.
Unique and interesting project to develop a private nursing home on the road between Sant Lluís with Mahón.
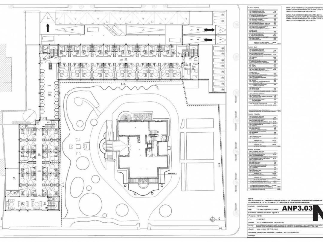
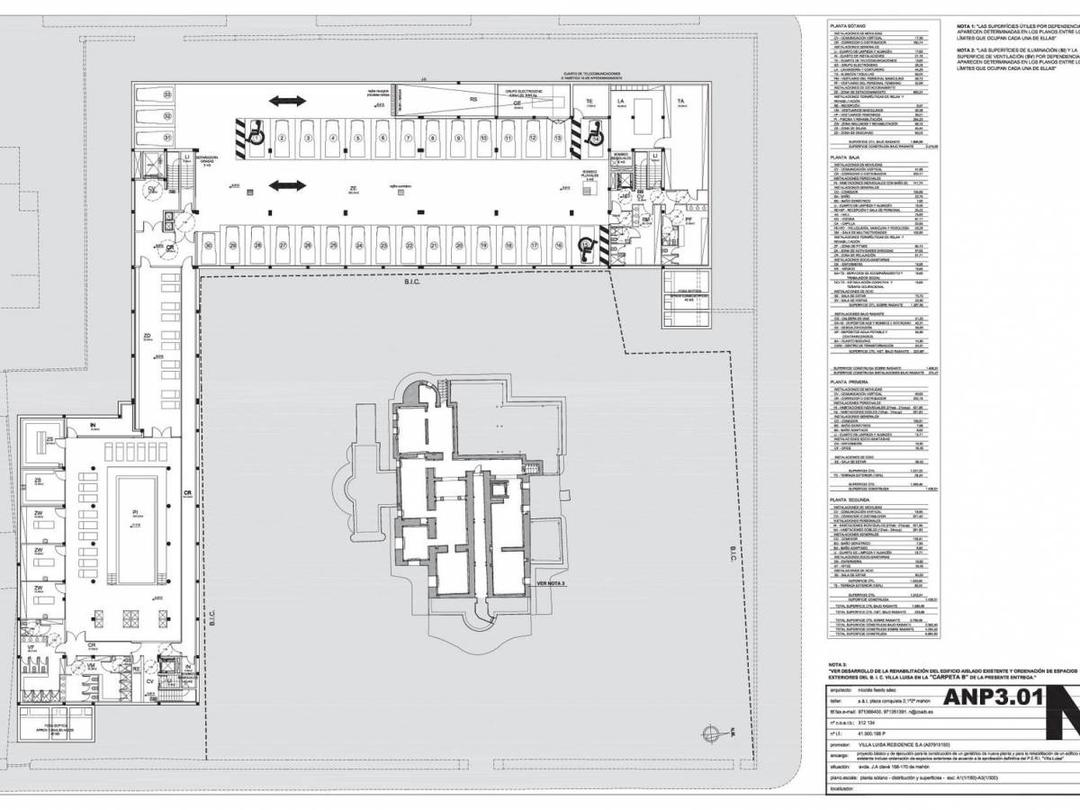
Classified for sanitary and social use, the project spans over more than 6,600 m² of basement, 1st and 2nd floors, as well as the main house of approximately 1000 m² , in need of renovation but but with some beautiful features that can be retained and restored.
The existing house is catalogued for its historical interested and is considered a protected building.
It must be preserved and restored.
A great business opportunity for someone wishing to enter this lucrative sector.
Do not hesitate to request more information.
ATENCIÓN INVERSORES.
Interesante proyecto para desarrollar geriátrico privado, en la carretera que une y conecta Sant Lluís con Mahón y toda su vía de circunvalación.
Calificado como uso socio sanitario, cuenta con ante proyecto con una edificabilidad superior a 6.600 m² (en planta sótano, 1ª y 2ª planta), además de aproximadamente 1000 m² de la casa principal, en deficiente estado pero de bellos rasgos y recuperable.
La casa existente está protegida y no puede ser derruida, si reformada y consolidada.
Está declarada Bien de Interés Cultural, catalogado como monumento histórico.
No dude en solicitar más información.
Thinking about buying a second home or relocating to Menorca? Discover what daily life is really like, from expat commun...
Discover the 7 best areas to buy property in Menorca in 2023 with our ultimate real estate guide for foreign buyers....
If you're thinking of buying a property on Menorca, you will want to read this important information on the buying proce...