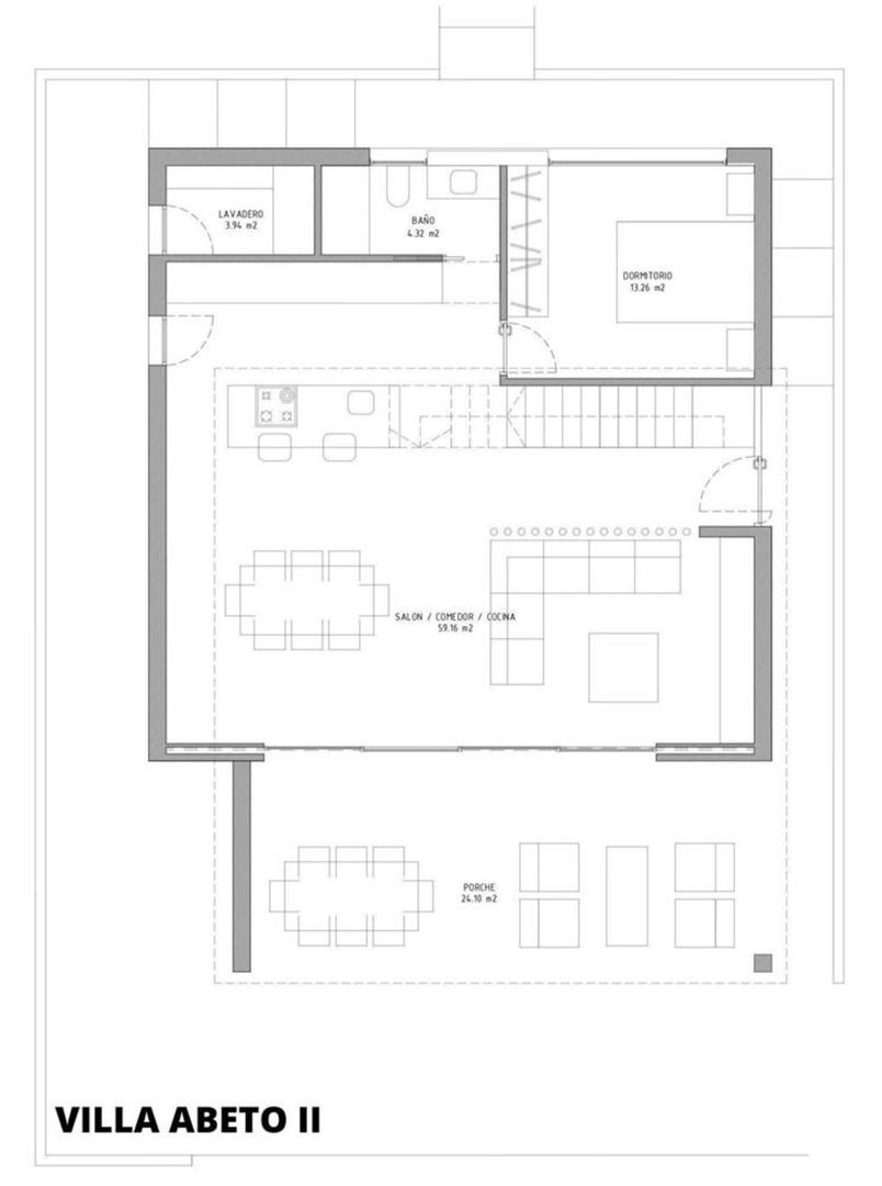
Villa Abeto II, Delivery July 2025.
There are two luxury villas of 180 M2 with infinity pool of 40 M2 and jacuzzi area, large plot of 700 M2 each one, terraced area with sea views, and private garden that surrounds the properties allows you to enjoy all hours of sunshine, every day of the year.
The properties have 4 bedrooms and 3 fully-fitted bathrooms.
Designed on two levels with a contemporary style and open plan concept, comprising a fully-fitted kitchen and lounge-dining room.
The villas are located in Pinar de Campoverde (Alicante), surrounded by services, sport facilities, near several Golf Courses such as Las Colinas and Lo Romero Golf, plus being 10 minute far from Mar Menor and Mediterranean beaches.
The properties will meet the highest standards and will be equipped with: Infinity private pool with jacuzzi area and solar shower.
Terraced areas.
Fully-fitted kitchen: Integrated Fridge.
Induction hob on island, extractor fan embedded on ceiling.
Elevated oven and microwave.
Integrated dishwasher.
Washing machine in laundry room.
Fully-fitted bathrooms: vanity unit with wash basin and mirror.
Built-in shower tray.
Glass shower panel and electric towel heaters in bathrooms.
Fitted wardrobes with drawers.
Interior and exterior lighting.
Installation of video intercom.
Pre-installation for air conditioning.
Garage gate with motor.
*Villa Abeto II, Entrega Julio 2025.
Son dos villas de lujo de 180 M2 con piscina infinity de 40 M2 y zona de jacuzzi, gran parcela de 700 M2 cada una, zona de terrazas con vistas al mar, y jardín privado que rodea las viviendas permite disfrutar de todas las horas de sol, todos los días del año.
* Las viviendas disponen de 4 dormitorios y 3 baños completos.
Diseñado en dos niveles con un estilo contemporáneo y concepto de planta abierta, que comprende una cocina totalmente equipada y salón-comedor.
Las villas están situadas en Pinar de Campoverde (Alicante), rodeadas de servicios, instalaciones deportivas, cerca de varios Campos de Golf como Las Colinas y Lo Romero Golf, además de estar a 10 minutos del Mar Menor y playas del Mediterráneo.
Las viviendas cumplirán con los más altos estándares y estarán equipadas con: Piscina privada infinita con zona de jacuzzi y ducha solar.
Zonas de terrazas.
Cocina totalmente equipada: Frigorífico integrado.
Placa de inducción en isla, extractor empotrado en techo.
Horno y microondas elevados.
Lavavajillas integrado.
Lavadora en lavadero.
Baños completos: mueble con lavabo y espejo.
Plato de ducha empotrado.
Panel de ducha de cristal y calentadores de toallas eléctricos en baños.
Armarios empotrados con cajoneras.
Iluminación interior y exterior.
Instalación de video portero.
Preinstalación de aire acondicionado.
Puerta de garaje con motor.
*Villa Abeto II, Oplevering juli 2025.
Er zijn twee luxe villa's van 180 M2 met overloopzwembad van 40 M2 en jacuzzi, een groot perceel van 700 M2 elk, terrassen met uitzicht op zee, en een privétuin die de woningen omringt zodat je alle uren van de zon kunt genieten, elke dag van het jaar.
* De woningen hebben 4 slaapkamers en 3 volledig uitgeruste badkamers.
Ontworpen op twee niveaus met een eigentijdse stijl en open concept, bestaande uit een volledig ingerichte keuken en woon-eetkamer.
De villa's zijn gelegen in Pinar de Campoverde (Alicante), omgeven door diensten, sportfaciliteiten, in de buurt van verschillende golfbanen zoals Las Colinas en Lo Romero Golf, plus op 10 minuten afstand van Mar Menor en de stranden van de Middellandse Zee.
De woningen voldoen aan de hoogste normen en zijn uitgerust met: Infinity privé zwembad met jacuzzi en zonnedouche.
Terrassen.
Volledig ingerichte keuken: Geïntegreerde koelkast.
Inductiekookplaat op eiland, afzuigkap ingebouwd in plafond.
Verhoogde oven en magnetron.
Geïntegreerde vaatwasser.
Wasmachine in wasruimte.
Volledig ingerichte badkamers: badmeubel met wastafel en spiegel.
Ingebouwde douchebak.
Glazen douchepaneel en elektrische handdoekverwarming in badkamers.
Ingebouwde kasten met laden.
Binnen- en buitenverlichting.
Installatie van video-intercom.
Pre-installatie voor airconditioning.
Garagepoort met motor.