400m.
to the Mediterranean sea, immerse yourself in a luxurious lifestyle at Villa Elite, where every element has been carefully designed to offer you the highest quality and comfort.
Live surrounded by fine sandy beaches, crystal clear waters and a wide range of leisure facilities.
This extraordinary 4 bedroom / 4 bathroom villa , has been built to the highest standards, with hi-tec design kitchen, outdoor BBQ-Kitchen , infinity pool, finished garden.. Just a few minutes away, you will discover an exciting world of restaurants, bars and exclusive shops, where you can satisfy your culinary tastes and enjoy unforgettable moments with your loved ones.
In addition, golf and water sports enthusiasts will find their paradise.
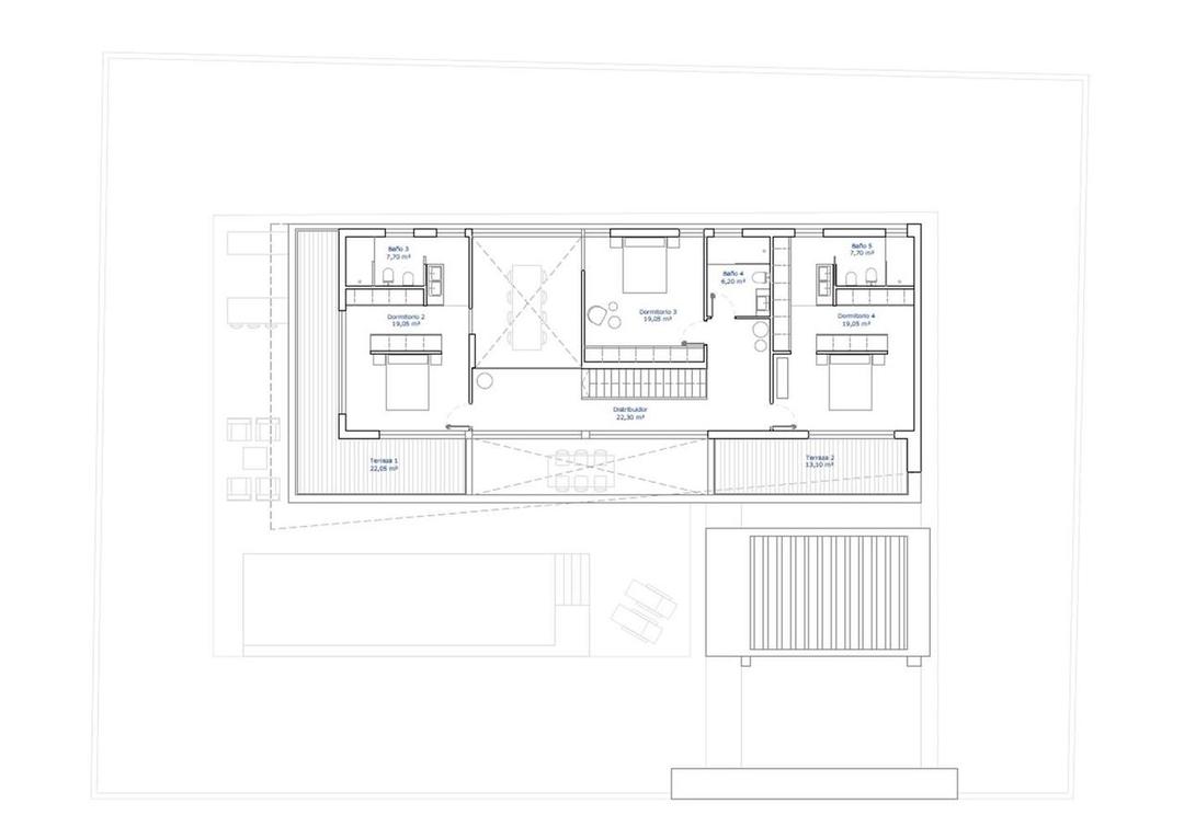
Property plans attached.
A 400 m. del Mar Mediterráneo, sumérjase en un lujoso estilo de vida en Villa Elite, donde cada elemento ha sido cuidadosamente diseñado para ofrecerle la máxima calidad y confort.
Viva rodeado de playas de arena fina, aguas cristalinas y una amplia gama de instalaciones de ocio.
Esta extraordinaria villa de 4 dormitorios / 4 baños , ha sido construida con los más altos estándares, con cocina de diseño hi-tec, barbacoa-cocina exterior, piscina infinita, jardín terminado.. A pocos minutos, descubrirá un apasionante mundo de restaurantes, bares y tiendas exclusivas, donde podrá satisfacer sus gustos culinarios y disfrutar de momentos inolvidables con sus seres queridos.
Además, los amantes del golf y de los deportes náuticos encontrarán su paraíso.
Se adjuntan planos de la propiedad.
400m.
naar de Middellandse Zee, dompel jezelf onder in een luxueuze levensstijl in Villa Elite, waar elk element zorgvuldig is ontworpen om je de hoogste kwaliteit en comfort te bieden.
Leef omringd door fijne zandstranden, kristalhelder water en een breed scala aan recreatiefaciliteiten.
Deze buitengewone villa met 4 slaapkamers en 4 badkamers is gebouwd volgens de hoogste normen, met hi-tec design keuken, buiten BBQ-keuken, overloopzwembad, afgewerkte tuin.
Op slechts een paar minuten afstand ontdek je een spannende wereld van restaurants, bars en exclusieve winkels, waar je je culinaire smaak kunt bevredigen en kunt genieten van onvergetelijke momenten met je geliefden.
Daarnaast vinden golf- en watersportliefhebbers hier hun paradijs.
Plattegronden bijgevoegd.
Considering buying property in San Pedro del Pinatar on the Costa Cálida? This complete area guide explores lifestyle, n...
Considering property in Cabo Roig on the Costa Blanca? Discover what daily life is really like, who the area suits best,...
Explore Cabo Roig on Costa Blanca for stunning beaches, vibrant local life, and excellent property investment opportunit...