This modern villa is located on a quiet plot of 1448 m2 in Benissa and offers breathtaking views of the coast from the Cap D'or in Moraira to the Peñon de Ifach in Calpe.
The villa is located on a steep plot and consists of several cubes distributed over 4 floors alternating with terraces and green areas.
Because of this layout you have a beautiful sea view from every room.
At street level there is parking space for two cars.
Through a staircase you reach the top floor, where there is a hall and the stairs and elevator to the other floors.
There is the possibility of also installing an elevator from the parking area to the hall to create maximum comfort.
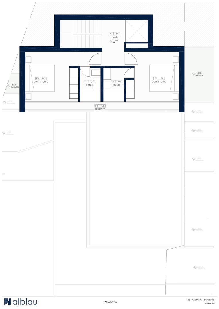
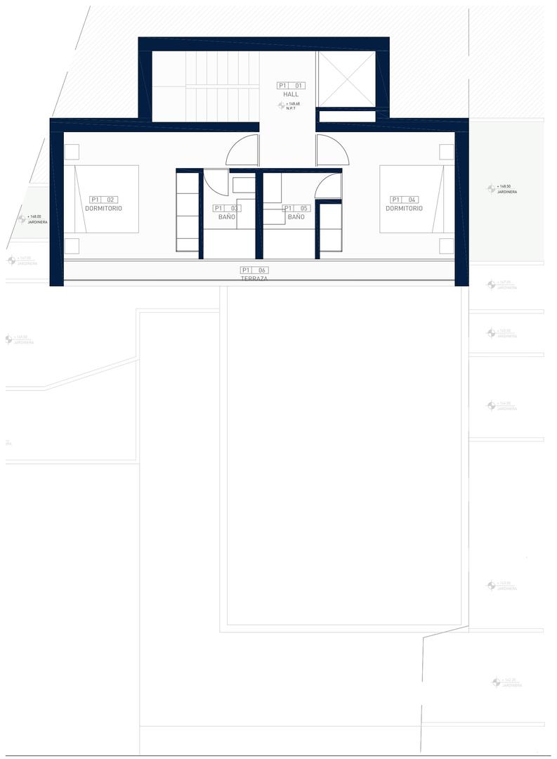
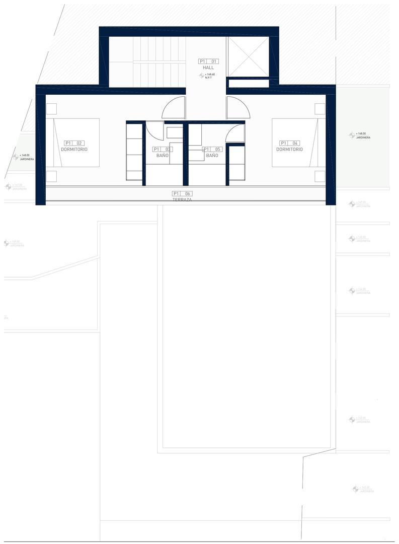
One floor below are two double bedrooms each with an en suite bathroom and with access to a shared balcony.
Another floor below are another two double bedrooms each with an en suite bathroom and access to a large shared terrace.
There is also a laundry room and two green areas on this floor.
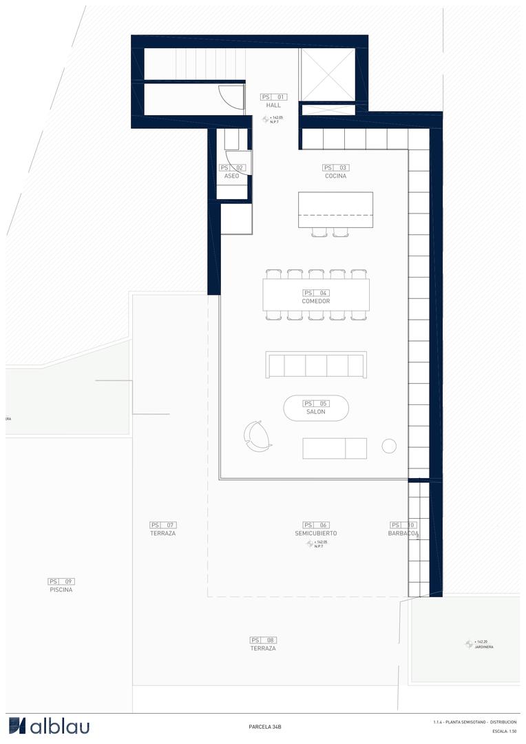
The bone floor consists of a large living-dining room with a stove, a spacious open kitchen with a large island, a guest toilet and a storage room.
Large sliding windows allow access to the poolside terrace from the living room.
There is also a barbecue and the pool is surrounded by green areas.
The villa has underfloor heating and air conditioning.
The beautiful coast of Benissa is only 2 km away and offers several idyllic beaches perfect for sunbathing, snorkeling, etc.
Moreover, the villa is located in a very central location with regard to the surrounding villages and towns.
In just 10 minutes you can reach the large sandy beaches of Calpe as well as the historic center of Benissa.
And in about 20 minutes you are in the tourist port village of Moraira.
Diese moderne Villa befindet sich auf einem ruhigen 1448 m2 großen Grundstück in Benissa und bietet einen atemberaubenden Blick auf die Küste vom Cap D'or in Moraira bis zum Peñon de Ifach in Calpe.
Die Villa befindet sich auf einem steilen Grundstück und besteht aus mehreren Kuben, die sich über 4 Etagen verteilen und sich mit Terrassen und Grünflächen abwechseln.
Durch diese Aufteilung haben Sie von jedem Zimmer aus einen wunderschönen Meerblick.
Auf Straßenebene gibt es einen Parkplatz für zwei Autos.
Über eine Treppe gelangen Sie in die oberste Etage, wo sich eine Halle und die Treppe und der Aufzug zu den anderen Etagen befinden.
Es besteht die Möglichkeit, auch einen Aufzug vom Parkplatz zur Halle einzubauen, um maximalen Komfort zu schaffen.
Eine Etage tiefer befinden sich zwei Doppelschlafzimmer mit jeweils einem eigenen Bad und Zugang zu einem gemeinsamen Balkon.
Eine Etage tiefer befinden sich zwei weitere Doppelschlafzimmer mit jeweils eigenem Bad und Zugang zu einer großen gemeinsamen Terrasse.
Außerdem gibt es auf dieser Etage eine Waschküche und zwei Grünflächen.
Das Erdgeschoss besteht aus einem großen Wohn-Esszimmer mit Kaminofen, einer geräumigen offenen Küche mit einer großen Kochinsel, einem Gäste-WC und einem Abstellraum.
Große Schiebefenster ermöglichen vom Wohnzimmer aus den Zugang zur Terrasse am Pool.
Es gibt auch einen Grill und der Pool ist von Grünflächen umgeben.
Die Villa verfügt über eine Fußbodenheizung und eine Klimaanlage.
Die schöne Küste von Benissa ist nur 2 km entfernt und bietet mehrere idyllische Strände, die zum Sonnenbaden, Schnorcheln usw.
einladen.
Außerdem ist die Villa sehr zentral gelegen, was die umliegenden Dörfer und Städte betrifft.
In nur 10 Minuten erreichen Sie die großen Sandstrände von Calpe sowie das historische Zentrum von Benissa.
Und in knapp 20 Minuten sind Sie in dem touristischen Hafenort Moraira.
Esta moderna villa está situada en una tranquila parcela de 1448 m2 en Benissa y ofrece impresionantes vistas de la costa, desde el Cap D'or en Moraira hasta el Peñón de Ifach en Calpe.
La villa está situada en una parcela escarpada y consta de varios cubos distribuidos en 4 plantas que se alternan con terrazas y zonas verdes.
Esta distribución te ofrece hermosas vistas al mar desde todas las habitaciones.
A nivel de calle, hay aparcamiento para dos coches.
Una escalera te lleva a la planta superior, donde hay un vestíbulo y las escaleras y el ascensor a las demás plantas.
Existe la posibilidad de instalar también un ascensor desde la zona de aparcamiento hasta el vestíbulo para crear la máxima comodidad.
Una planta más abajo hay dos dormitorios dobles, cada uno con baño en suite y con acceso a un balcón compartido.
Otra planta más abajo hay otros dos dormitorios dobles, cada uno con baño en suite y acceso a una gran terraza compartida.
También hay un lavadero y dos zonas verdes en esta planta.
La planta baja consta de un gran salón-comedor con estufa, una espaciosa cocina abierta con una gran isla de cocina, un aseo de invitados y un trastero.
Grandes ventanas correderas permiten acceder a la terraza junto a la piscina desde el salón.
También hay una barbacoa y la piscina está rodeada de zonas verdes.
La villa tiene calefacción por suelo radiante y aire acondicionado.
La hermosa costa de Benissa está a sólo 2 km y ofrece varias playas idílicas perfectas para tomar el sol, bucear, etc.
Además, la villa está situada en un lugar muy céntrico con respecto a los pueblos y ciudades de los alrededores.
En sólo 10 minutos puedes llegar a las grandes playas de arena de Calpe, así como al centro histórico de Benissa.
Y en poco menos de 20 minutos estás en el turístico pueblo portuario de Moraira.
Deze moderne villa is gelegen op een rustig grondstuk van 1448 m2 in Benissa en biedt een adembenemend uitzicht over de kust van aan de Cap D’or in Moraira tot aan de Peñon de Ifach in Calpe.
De villa is gelegen op een steil grondstuk en bestaat uit verschillende kubussen verdeeld over 4 verdiepingen afwisselend met terrassen en groene zones.
Door deze indeling heb je vanuit elke ruimte een prachtig uitzicht op zee.
Op straatniveau is parkeerruimte voorzien voor twee wagens.
Via een trap bereik je de bovenste verdieping, waar zich een hal en de trap en de lift naar de andere verdiepingen bevindt.
Er is de mogelijkheid ook een lift te installeren van de parkeerruimte tot aan de hal om zo een maximaal comfort te creëren.
Eén verdieping lager bevinden zich twee dubbele slaapkamers elk met een en suite badkamer en met toegang tot een gedeeld balkon.
Nog een verdieping lager bevinden zich nogmaals twee dubbele slaapkamers elk met een en suite badkamer en toegang tot een groot gedeeld terras.
Ook is er op deze verdieping een wasruimte en twee groene zones.
De beendenverdieping bestaat uit een grote woon-eetkamer met een kachel, een ruime open keuken met een groot kookeiland, een gastentoilet en een opslagruimte.
Via grote schuiframen is er vanuit de woonkamer toegang tot het terras aan het zwembad.
Er is ook een barbecue en het zwembad is omringd door groene zones.
De villa is voorzien van vloerverwarming en airconditioning.
De prachtige kust van Benissa ligt op slechts 2 km afstand en biedt meerdere idyllische strandjes perfect voor te zonnen, snorkelen, etc.
Bovendien is de villa gelegen op een zeer centrale locatie met betrekking tot de omliggende dorpen en steden.
Op slechts 10 minuten bereik je de grote zandstranden van Calpe als ook historische centrum van Benissa.
En op een kleine 20 minuten ben je in het toeristische havendorpje Moraira.
Thinking of buying in Jávea? Here's what life is really like for foreign residents — the neighbourhoods, lifestyle, cost...
A comprehensive overview of the Spanish real estate market in 2026 — trends, hotspots, prices, and essential tips for in...
Considering living in El Mojón on the Costa Blanca? A practical, honest guide for retirees and second-home buyers explor...