Modern New Build Villa with Luxury Features in Javea Contemporary Mediterranean Living on the Costa Blanca This stunning detached new build villa in Javea combines high quality finishes, elegant design and optimal functionality across three spacious levels.
Located in one of the most desirable coastal towns in the Costa Blanca North, the property offers a peaceful residential environment surrounded by green mountains, natural parks and beautiful beaches.
Javea is renowned for its crystal clear waters, traditional gastronomy and Mediterranean lifestyle, making it an ideal location for both permanent living and investment.
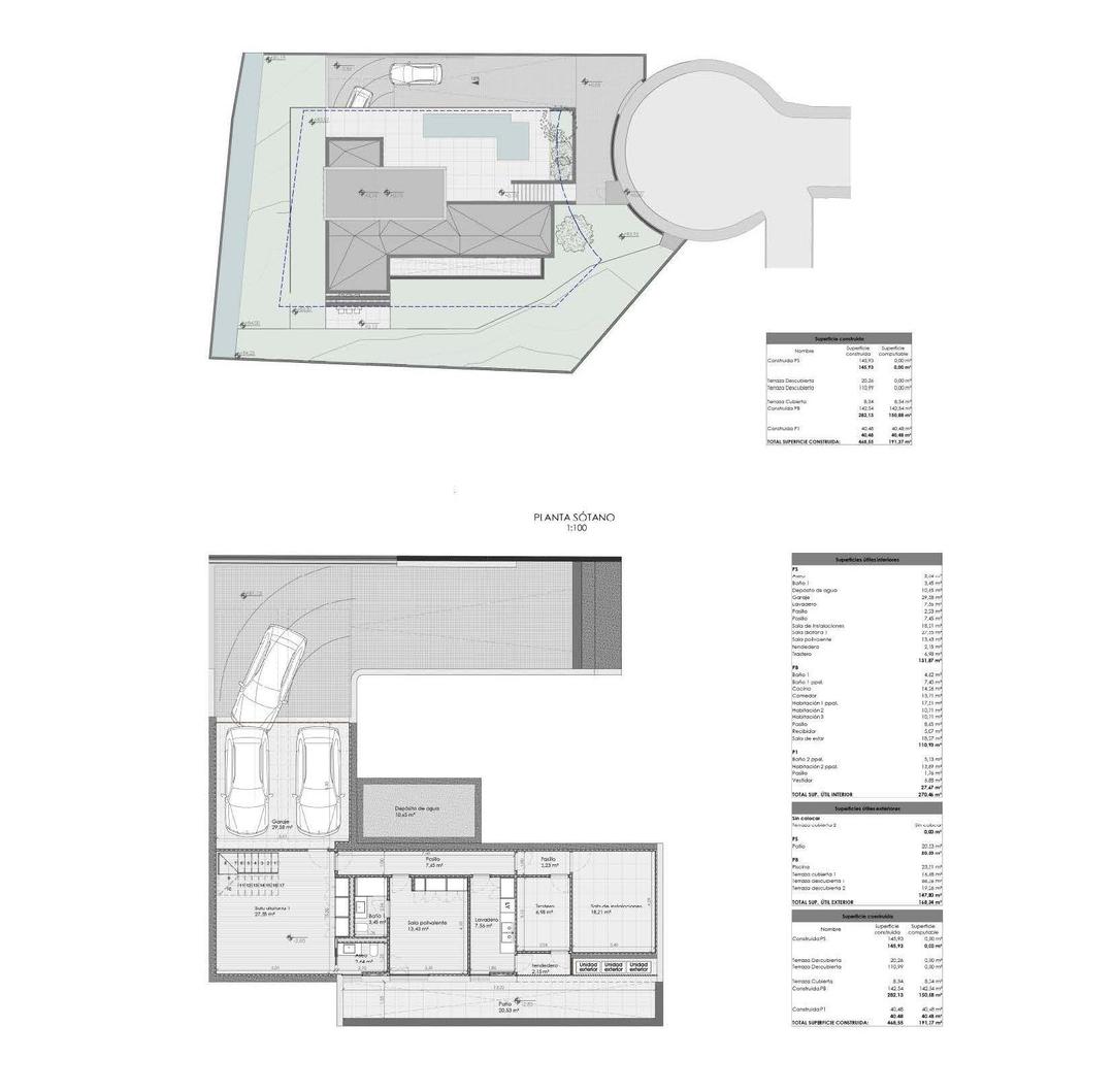
Spacious Basement Designed for Versatility The basement level is thoughtfully designed to meet modern lifestyle needs.
It includes an open garage for two cars, a bathroom, a guest toilet, an open concept room, a multipurpose room and a patio that brings natural light into the space.
This floor provides endless possibilities, whether you envision a gym, entertainment room, office or guest suite.
Elegant Ground Floor with Connected Living Spaces The ground floor features a bright living dining room that integrates seamlessly with the fully equipped kitchen, creating a perfect area for family gatherings.
An entrance hall, guest toilet and hallways add practicality and flow.
This level includes two comfortable bedrooms sharing a modern bathroom and a generous master bedroom with an en suite bathroom, offering privacy and comfort.
Luxurious Upper Floor Master Suite The upper floor is dedicated to a second master bedroom, providing an exclusive retreat with its own en suite bathroom, dressing room and hallway.
This private space ensures comfort and tranquillity with beautiful views of the surrounding green landscapes.
Outdoor Living Designed for the Mediterranean Climate The exterior areas of the property are created for enjoying outdoor living all year round.
It features two covered terraces and two uncovered terraces on the ground floor.
One of the covered terraces surrounds the swimming pool, perfect for summer relaxation, while the uncovered terrace next to the kitchen is ideal for outdoor dining and gatherings.
Equipped with underfloor heating and ducted air conditioning, the villa guarantees comfort in every season.
Prime Location in Javea El Arenal Beach 3 km Javea Port and Marina 7 km Javea Golf Club 3 km Alicante Airport 100 km Valencia Airport 125 km Your Mediterranean Home Awaits Whether you are looking for a luxury residence, a holiday home or a secure long term investment, this villa offers an exceptional lifestyle in Javea.
Contact us today to arrange a visit and discover your future home on the Costa Blanca.
Moderne Neubauvilla mit luxuriöser Ausstattung in Javea Zeitgemäßes mediterranes Wohnen an der Costa Blanca Diese atemberaubende freistehende Neubauvilla in Javea vereint hochwertige Ausstattungsmerkmale, elegantes Design und optimale Funktionalität auf drei großzügigen Ebenen.
Die Immobilie befindet sich in einer der begehrtesten Küstenstädte an der Costa Blanca Nord und bietet eine ruhige Wohnumgebung, umgeben von grünen Bergen, Naturparks und wunderschönen Stränden.
Javea ist bekannt für sein kristallklares Wasser, seine traditionelle Gastronomie und seinen mediterranen Lebensstil, was es zu einem idealen Ort sowohl für dauerhaftes Wohnen als auch für Investitionen macht.
Geräumiges Untergeschoss für Vielseitigkeit Das Untergeschoss ist durchdacht gestaltet, um den Anforderungen des modernen Lebensstils gerecht zu werden.
Es umfasst eine offene Garage für zwei Autos, ein Badezimmer, eine Gästetoilette, einen offenen Raum, einen Mehrzweckraum und eine Terrasse, die natürliches Licht in den Raum bringt.
Diese Etage bietet unendliche Möglichkeiten, egal ob Sie sich einen Fitnessraum, einen Unterhaltungsraum, ein Büro oder eine Gästesuite vorstellen.
Elegantes Erdgeschoss mit miteinander verbundenen Wohnräumen Das Erdgeschoss verfügt über ein helles Wohn-Esszimmer, das nahtlos in die voll ausgestattete Küche übergeht und einen perfekten Bereich für Familienfeiern schafft.
Eine Eingangshalle, eine Gästetoilette und Flure sorgen für Funktionalität und einen fließenden Übergang.
Auf dieser Ebene befinden sich zwei komfortable Schlafzimmer, die sich ein modernes Badezimmer teilen, sowie ein großzügiges Hauptschlafzimmer mit eigenem Bad, das Privatsphäre und Komfort bietet.
Luxuriöse Master-Suite im Obergeschoss Das Obergeschoss ist einem zweiten Hauptschlafzimmer gewidmet, das mit eigenem Bad, Ankleidezimmer und Flur einen exklusiven Rückzugsort bietet.
Dieser private Bereich sorgt für Komfort und Ruhe und bietet einen wunderschönen Blick auf die grüne Landschaft der Umgebung.
Außenbereich für das mediterrane Klima Die Außenbereiche der Immobilie sind so gestaltet, dass man das ganze Jahr über das Leben im Freien genießen kann.
Im Erdgeschoss befinden sich zwei überdachte Terrassen und zwei nicht überdachte Terrassen.
Eine der überdachten Terrassen umgibt den Swimmingpool und ist perfekt für sommerliche Entspannung, während die nicht überdachte Terrasse neben der Küche ideal für Mahlzeiten im Freien und Zusammenkünfte ist.
Ausgestattet mit Fußbodenheizung und Klimaanlage garantiert die Villa Komfort zu jeder Jahreszeit.
Erstklassige Lage in Javea Strand El Arenal 3 km Hafen und Yachthafen von Javea 7 km Golfclub Javea 3 km Flughafen Alicante 100 km Flughafen Valencia 125 km Ihr mediterranes Zuhause wartet auf Sie Ob Sie eine Luxusresidenz, ein Ferienhaus oder eine sichere langfristige Investition suchen, diese Villa bietet Ihnen einen außergewöhnlichen Lebensstil in Javea.
Kontaktieren Sie uns noch heute, um einen Besichtigungstermin zu vereinbaren und Ihr zukünftiges Zuhause an der Costa Blanca zu entdecken.
Villa moderna de nueva construcción con características de lujo en Jávea Vida mediterránea contemporánea en la Costa Blanca Esta impresionante villa independiente de nueva construcción en Jávea combina acabados de alta calidad, un diseño elegante y una funcionalidad óptima en tres amplias plantas.
Situada en una de las localidades costeras más codiciadas de la Costa Blanca Norte, la propiedad ofrece un entorno residencial tranquilo rodeado de verdes montañas, parques naturales y hermosas playas.
Jávea es famosa por sus aguas cristalinas, su gastronomía tradicional y su estilo de vida mediterráneo, lo que la convierte en un lugar ideal tanto para vivir como para invertir.
Amplio sótano diseñado para la versatilidad La planta sótano está cuidadosamente diseñada para satisfacer las necesidades del estilo de vida moderno.
Incluye un garaje abierto para dos coches, un cuarto de baño, un aseo de invitados, una sala de concepto abierto, una sala polivalente y un patio que aporta luz natural al espacio.
Esta planta ofrece infinitas posibilidades, ya sea para un gimnasio, una sala de entretenimiento, una oficina o una suite para invitados.
Elegante planta baja con espacios de estar conectados La planta baja cuenta con un luminoso salón-comedor que se integra a la perfección con la cocina totalmente equipada, creando un espacio perfecto para las reuniones familiares.
El vestíbulo de entrada, el aseo de invitados y los pasillos añaden practicidad y fluidez.
Esta planta incluye dos cómodos dormitorios que comparten un moderno cuarto de baño y un amplio dormitorio principal con cuarto de baño en suite, que ofrece privacidad y comodidad.
Lujosa suite principal en la planta superior La planta superior está dedicada a un segundo dormitorio principal, que ofrece un refugio exclusivo con su propio cuarto de baño en suite, vestidor y pasillo.
Este espacio privado garantiza comodidad y tranquilidad con hermosas vistas de los verdes paisajes circundantes.
Vida al aire libre diseñada para el clima mediterráneo Las zonas exteriores de la propiedad están pensadas para disfrutar de la vida al aire libre durante todo el año.
Cuenta con dos terrazas cubiertas y dos terrazas descubiertas en la planta baja.
Una de las terrazas cubiertas rodea la piscina, perfecta para relajarse en verano, mientras que la terraza descubierta junto a la cocina es ideal para comer al aire libre y celebrar reuniones.
Equipada con calefacción por suelo radiante y aire acondicionado por conductos, la villa garantiza el confort en todas las estaciones.
Ubicación privilegiada en Jávea Playa del Arenal a 3 km Puerto y marina de Jávea a 7 km Club de golf de Jávea a 3 km Aeropuerto de Alicante a 100 km Aeropuerto de Valencia a 125 km Su hogar mediterráneo le espera Tanto si busca una residencia de lujo, una casa de vacaciones o una inversión segura a largo plazo, esta villa le ofrece un estilo de vida excepcional en Jávea.
Póngase en contacto con nosotros hoy mismo para concertar una visita y descubrir su futuro hogar en la Costa Blanca.
Moderne nieuwbouwwoning met luxe voorzieningen in Javea Eigentijds mediterraan wonen aan de Costa Blanca Deze prachtige vrijstaande nieuwbouwwoning in Javea combineert hoogwaardige afwerking, elegant design en optimale functionaliteit over drie ruime verdiepingen.
Gelegen in een van de meest gewilde kustplaatsen aan de Costa Blanca Noord, biedt het pand een rustige woonomgeving, omgeven door groene bergen, natuurparken en prachtige stranden.
Javea staat bekend om zijn kristalheldere water, traditionele gastronomie en mediterrane levensstijl, waardoor het een ideale locatie is voor zowel permanent wonen als investeren.
Ruime kelder ontworpen voor veelzijdigheid De kelderverdieping is zorgvuldig ontworpen om aan de behoeften van de moderne levensstijl te voldoen.
Het omvat een open garage voor twee auto's, een badkamer, een gastentoilet, een open conceptruimte, een multifunctionele ruimte en een patio die natuurlijk licht in de ruimte brengt.
Deze verdieping biedt eindeloze mogelijkheden, of u nu een fitnessruimte, entertainmentruimte, kantoor of gastensuite voor ogen heeft.
Elegante begane grond met aaneengesloten leefruimtes De begane grond beschikt over een lichte woon-eetkamer die naadloos aansluit op de volledig uitgeruste keuken, waardoor een perfecte ruimte ontstaat voor familiebijeenkomsten.
Een entreehal, gastentoilet en gangen zorgen voor extra functionaliteit en een goede doorstroming.
Deze verdieping omvat twee comfortabele slaapkamers die een moderne badkamer delen en een royale hoofdslaapkamer met een en suite badkamer, die privacy en comfort biedt.
Luxe master suite op de bovenverdieping De bovenverdieping is gewijd aan een tweede hoofdslaapkamer, die een exclusief toevluchtsoord biedt met een eigen badkamer, kleedkamer en gang.
Deze privéruimte garandeert comfort en rust met een prachtig uitzicht op het omringende groene landschap.
Buitenleven ontworpen voor het mediterrane klimaat De buitenruimtes van het pand zijn ontworpen om het hele jaar door van het buitenleven te genieten.
Het beschikt over twee overdekte terrassen en twee onoverdekte terrassen op de begane grond.
Een van de overdekte terrassen omringt het zwembad, perfect om in de zomer te ontspannen, terwijl het onoverdekte terras naast de keuken ideaal is om buiten te eten en samen te komen.
De villa is uitgerust met vloerverwarming en airconditioning en garandeert comfort in elk seizoen.
Toplocatie in Javea Strand El Arenal 3 km Haven en jachthaven van Javea 7 km Golfclub Javea 3 km Luchthaven Alicante 100 km Luchthaven Valencia 125 km Uw mediterrane thuis wacht op u Of u nu op zoek bent naar een luxe woning, een vakantiehuis of een veilige langetermijninvestering, deze villa biedt een uitzonderlijke levensstijl in Javea.
Neem vandaag nog contact met ons op om een bezichtiging te regelen en uw toekomstige thuis aan de Costa Blanca te ontdekken.
Thinking of buying in Jávea? Here's what life is really like for foreign residents — the neighbourhoods, lifestyle, cost...
A comprehensive overview of the Spanish real estate market in 2026 — trends, hotspots, prices, and essential tips for in...
Considering living in El Mojón on the Costa Blanca? A practical, honest guide for retirees and second-home buyers explor...