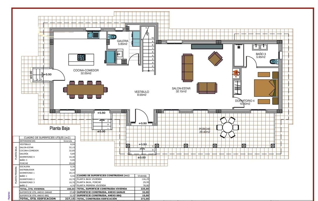
NEW BUILD VILLAS IN PINOSO You can choose Villas with traditional Spanish touches or super modern finishing, bright and clean.
Different legal building plots available (rustic with minimum 10.000 m2), some walking distance to town, some totally private and our most popular ones are within 5-10 mins drive to a town.
We have a plot for every taste, all with amazing views and all have mains water + electric included in the price and high speed internet available.
From the biggest and best builder in the area and use top quality materials for a perfect finish.
All houses include 2m stamped concrete terrace around the pool (colour and pattern to choose), 1m around the house, gated entrance, 3.000 m2 fencing, pre-installed ducted aircon, standard kitchen, security door, german tilt and turn windows (or sliding if prefered), built-in fireplace and chimney, pre-installation for tv and internet, gravel driveway plus a few meters around the house, septic tank.
Bathrooms include a shower column, shower tray or bath, sink units (various colours to choose from) with sinks, taps and mirrors, plus a big selection of wall tiles.
Wide selection of ceramic floor tiles, different colours, wood effect, etc.
Kitchens include cabinets with standard doors and handles, as per plans provided, stainless steel sink and tap, pre-installation for oven, dishwasher, extractor.
Various granite worktops to choose from included in the budget, other stone worktops available as extras.
White goods not included.
Marble staircase (cream, white, or grey) and railings included, plus railings for the front porch.
Big fixed glass window on the staircase for extra light.
Choice of tiles and steps design for swimming pool.
Choice of the granite for the houses' exterior steps and window sils.
You can customise the house to suit, most internal changes are free of charge, the houses can be extended and we can even build your own design.
Upgrade to bigger pool, single or double garage, guest house, etc.
at an extra cost.
The beautiful and thriving town of Pinoso is approximately 45 minutes inland from Alicante and the white beaches of Costa Blanca and close to the Murcia, Alicante border It has a population of just under 8,000.
Pinoso, also known as El Pinos is named after the pine trees that cover the areas mountain ranges.
Pinoso provides a Spanish rural lifestyle, no traffic lights, hardly any traffic, practically the only jams are caused by the tractors taking the grapes to the Bodega.
The fields are planted with vines, almonds and olives.
In February the fields are filled with pink almond blossom.
Pinoso has many bars, restaurants and shops, a new 24 hour medical centre, dentists, two primary schools and 1 secondary school, a theatre.
There's an excellent Sports Centre with outdoor swimming pools, tennis courts, football pitches and gymnasium, library and many other facilities including a beautiful picnic area among the pines, complete with barbecues, seating areas and running water.
NEU GEBAUTE VILLEN IN PINOSO Sie haben die Wahl zwischen Villen mit traditionellem spanischem Flair oder supermoderner Ausstattung, hell und sauber.
Es stehen verschiedene legale Baugrundstücke zur Verfügung (rustikal mit mindestens 10.000 m2), einige in Gehdistanz zur Stadt, einige ganz privat und unsere beliebtesten sind nur 5-10 Minuten mit dem Auto von einer Stadt entfernt.
Wir haben ein Grundstück für jeden Geschmack, alle mit atemberaubender Aussicht und alle haben Wasser und Strom im Preis inbegriffen und High-Speed-Internet verfügbar.
Die Häuser werden vom größten und besten Bauunternehmen in der Gegend gebaut und sind mit hochwertigen Materialien ausgestattet, die für eine perfekte Ausführung sorgen.
Alle Häuser verfügen über eine 2 m lange Terrasse aus gestampftem Beton um den Pool (Farbe und Muster nach Wahl), 1 m um das Haus, einen bewachten Eingang, einen 3.000 m2 großen Zaun, eine vorinstallierte Klimaanlage, eine Standardküche, eine Sicherheitstür, deutsche Dreh-Kipp-Fenster (oder Schiebefenster, falls gewünscht), einen eingebauten Kamin, eine Vorinstallation für Fernsehen und Internet, eine Kiesauffahrt und einige Meter um das Haus herum sowie eine Klärgrube.
Die Bäder verfügen über eine Duschsäule, eine Duschwanne oder eine Badewanne, Waschbecken (verschiedene Farben zur Auswahl) mit Waschbecken, Armaturen und Spiegeln sowie eine große Auswahl an Wandfliesen.
Große Auswahl an keramischen Bodenfliesen, verschiedene Farben, Holzoptik, etc.
Die Küchen beinhalten Schränke mit Standardtüren und Griffen, wie in den Plänen angegeben, Edelstahlspüle und Wasserhahn, Vorinstallation für Ofen, Geschirrspüler, Dunstabzug.
Verschiedene Granit-Arbeitsplatten zur Auswahl sind im Budget enthalten, andere Stein-Arbeitsplatten sind als Extras erhältlich.
Weiße Ware nicht inbegriffen.
Marmortreppe (cremefarben, weiß oder grau) und Geländer inbegriffen, plus Geländer für die vordere Veranda.
Großes festes Glasfenster auf der Treppe für mehr Licht.
Auswahl der Fliesen und der Stufen für das Schwimmbad.
Wahl des Granits für die Außentreppen und Fensterbänke des Hauses.
Sie können das Haus nach Ihren Wünschen gestalten, die meisten internen Änderungen sind kostenlos, die Häuser können erweitert werden und wir können sogar Ihr eigenes Design bauen.
Gegen Aufpreis können Sie einen größeren Pool, eine Einzel- oder Doppelgarage, ein Gästehaus, usw.
erwerben.
Die schöne und blühende Stadt Pinoso liegt etwa 45 Minuten landeinwärts von Alicante und den weißen Stränden der Costa Blanca und nahe der Grenze zwischen Murcia und Alicante.
Sie hat knapp 8.000 Einwohner.
Pinoso, auch bekannt als El Pinos, ist nach den Pinien benannt, die die Bergketten der Gegend bedecken.
Pinoso bietet ein spanisches Landleben, keine Ampeln, kaum Verkehr, praktisch die einzigen Staus werden von den Traktoren verursacht, die die Trauben zur Bodega bringen.
Die Felder sind mit Weinreben, Mandeln und Oliven bepflanzt.
Im Februar sind die Felder mit rosa Mandelblüten gefüllt.
Pinoso hat viele Bars, Restaurants und Geschäfte, ein neues 24-Stunden-Ärztezentrum, Zahnärzte, zwei Grundschulen und eine weiterführende Schule, ein Theater.
Es gibt ein ausgezeichnetes Sportzentrum mit Freibädern, Tennis- und Fußballplätzen, einer Turnhalle, einer Bibliothek und vielen anderen Einrichtungen, darunter ein schöner Picknickplatz unter den Kiefern mit Grillplätzen, Sitzgelegenheiten und fließendem Wasser.
VILLAS DE OBRA NUEVA EN PINOSO Puede elegir villas con toques tradicionales españoles o acabados super modernos, luminosos y limpios.
Diferentes parcelas legales disponibles (rústicas con un mínimo de 10.000 m2), algunas a poca distancia de la ciudad, algunas totalmente privadas y las más populares están a 5-10 minutos en coche de una ciudad.
Tenemos una parcela para cada gusto, todas con vistas impresionantes y todas tienen agua de red + electricidad incluida en el precio e internet de alta velocidad disponible.
Del mayor y mejor constructor de la zona y utilizamos materiales de primera calidad para un acabado perfecto.
Todas las casas incluyen terraza de hormigón estampado de 2m alrededor de la piscina (color y patrón a elegir), 1m alrededor de la casa, entrada cerrada, vallado de 3.000 m2, preinstalación de aire acondicionado por conductos, cocina estándar, puerta de seguridad, ventanas oscilobatientes alemanas (o correderas si se prefiere), chimenea empotrada, preinstalación de televisión e internet, camino de grava más unos metros alrededor de la casa, fosa séptica.
Los baños incluyen columna de ducha, plato de ducha o bañera, muebles de lavabo (varios colores a elegir) con fregaderos, grifos y espejos, además de una gran selección de azulejos de pared.
Amplia selección de baldosas cerámicas para el suelo, de distintos colores, efecto madera, etc.
Las cocinas incluyen armarios con puertas y tiradores estándar, según planos facilitados, fregadero y grifo de acero inoxidable, preinstalación para horno, lavavajillas, extractor.
Varias encimeras de granito a elegir incluidas en el presupuesto, otras encimeras de piedra disponibles como extras.
Electrodomésticos no incluidos.
Escalera de mármol (crema, blanco o gris) y barandillas incluidas, más barandillas para el porche delantero.
Gran ventana fija de cristal en la escalera para más luz.
Elección de los azulejos y del diseño de los escalones de la piscina.
Elección del granito para los escalones exteriores de la casa y los silos de las ventanas.
Puede personalizar la casa a su gusto, la mayoría de los cambios internos son gratuitos, las casas se pueden ampliar e incluso podemos construir su propio diseño.
Puede ampliar su casa con una piscina más grande, garaje individual o doble, casa de invitados, etc., con un coste adicional.
La hermosa y próspera ciudad de Pinoso es de aproximadamente 45 minutos hacia el interior de Alicante y las playas de arena blanca de la Costa Blanca y cerca de la frontera de Murcia, Alicante.
Tiene una población de poco menos de 8.000 habitantes.
Pinoso, también conocido como El Pinos debe su nombre a los pinos que cubren las sierras de la zona.
Pinoso ofrece un estilo de vida rural español, sin semáforos, casi sin tráfico, prácticamente los únicos atascos son causados por los tractores que llevan las uvas a la Bodega.
Los campos están plantados de viñas, almendros y olivos.
En febrero los campos se llenan de almendros en flor de color rosa.
Pinoso tiene muchos bares, restaurantes y tiendas, un nuevo centro médico 24 horas, dentistas, dos escuelas primarias y 1 secundaria, un teatro.
Hay un excelente centro deportivo con piscinas al aire libre, pistas de tenis, campos de fútbol y gimnasio, biblioteca y muchas otras instalaciones, incluyendo una hermosa zona de picnic entre los pinos, con barbacoas, zonas de estar y agua corriente.
NIEUWBOUW VILLA'S IN PINOSO Je kunt villa's kiezen met traditionele Spaanse accenten of supermoderne afwerking, helder en schoon.
Er zijn verschillende wettelijke bouwpercelen beschikbaar (rustiek met een minimum van 10.000 m2), sommige op loopafstand van de stad, sommige volledig privé en onze populairste percelen liggen op 5-10 minuten rijden van een stad.
We hebben een perceel voor elke smaak, allemaal met een prachtig uitzicht en allemaal met leidingwater + elektriciteit inbegrepen in de prijs en snel internet beschikbaar.
Van de grootste en beste bouwer in de omgeving en met materialen van topkwaliteit voor een perfecte afwerking.
Alle huizen zijn inclusief 2m gestempeld betonnen terras rond het zwembad (kleur en patroon naar keuze), 1m rond het huis, gated ingang, 3.000 m2 omheining, vooraf geïnstalleerde airco, standaard keuken, veiligheidsdeur, Duitse draai-kiep ramen (of schuiframen indien gewenst), ingebouwde open haard en schoorsteen, pre-installatie voor tv en internet, grind oprit plus een paar meter rond het huis, septic tank.
De badkamers hebben een douchekolom, douchebak of bad, wastafelmeubels (verschillende kleuren om uit te kiezen) met wastafels, kranen en spiegels, plus een grote keuze aan wandtegels.
Ruime keuze aan keramische vloertegels, verschillende kleuren, houteffect, enz.
Keukens zijn inclusief kasten met standaard deuren en handgrepen, volgens bijgeleverde plannen, roestvrijstalen gootsteen en kraan, voorinstallatie voor oven, vaatwasser, afzuigkap.
Diverse granieten werkbladen om uit te kiezen inbegrepen in het budget, andere stenen werkbladen beschikbaar als extra.
Witgoed is niet inbegrepen.
Marmeren trap (crème, wit of grijs) en leuningen inbegrepen, plus leuningen voor het voorportaal.
Groot vast glazen raam op de trap voor extra licht.
Keuze van tegels en trapontwerp voor zwembad.
Keuze uit graniet voor de buitentrappen en raamstijlen.
Je kunt het huis naar eigen wens aanpassen, de meeste interne veranderingen zijn gratis, de huizen kunnen worden uitgebreid en we kunnen zelfs je eigen ontwerp bouwen.
Upgraden naar een groter zwembad, enkele of dubbele garage, gastenverblijf, enz.
kan tegen meerprijs.
Het mooie en bloeiende stadje Pinoso ligt op ongeveer 45 minuten landinwaarts van Alicante en de witte stranden van de Costa Blanca en dicht bij de grens tussen Murcia en Alicante.
Het heeft iets minder dan 8.000 inwoners.
Pinoso, ook bekend als El Pinos, is vernoemd naar de pijnbomen die de bergketens van het gebied bedekken.
Pinoso biedt een Spaanse landelijke levensstijl, geen stoplichten, nauwelijks verkeer, praktisch de enige opstoppingen worden veroorzaakt door de tractoren die de druiven naar de Bodega brengen.
De velden zijn beplant met wijnstokken, amandelen en olijven.
In februari staan de velden vol met roze amandelbloesem.
Pinoso heeft veel bars, restaurants en winkels, een nieuw 24-uurs medisch centrum, tandartsen, twee basisscholen en 1 middelbare school, een theater.
Er is een uitstekend sportcentrum met buitenzwembaden, tennisbanen, voetbalvelden en fitnessruimte, bibliotheek en vele andere faciliteiten, waaronder een prachtige picknickplaats tussen de pijnbomen, compleet met barbecues, zitjes en stromend water.