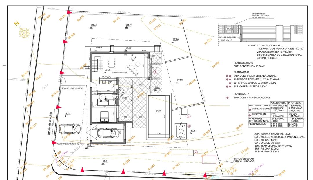
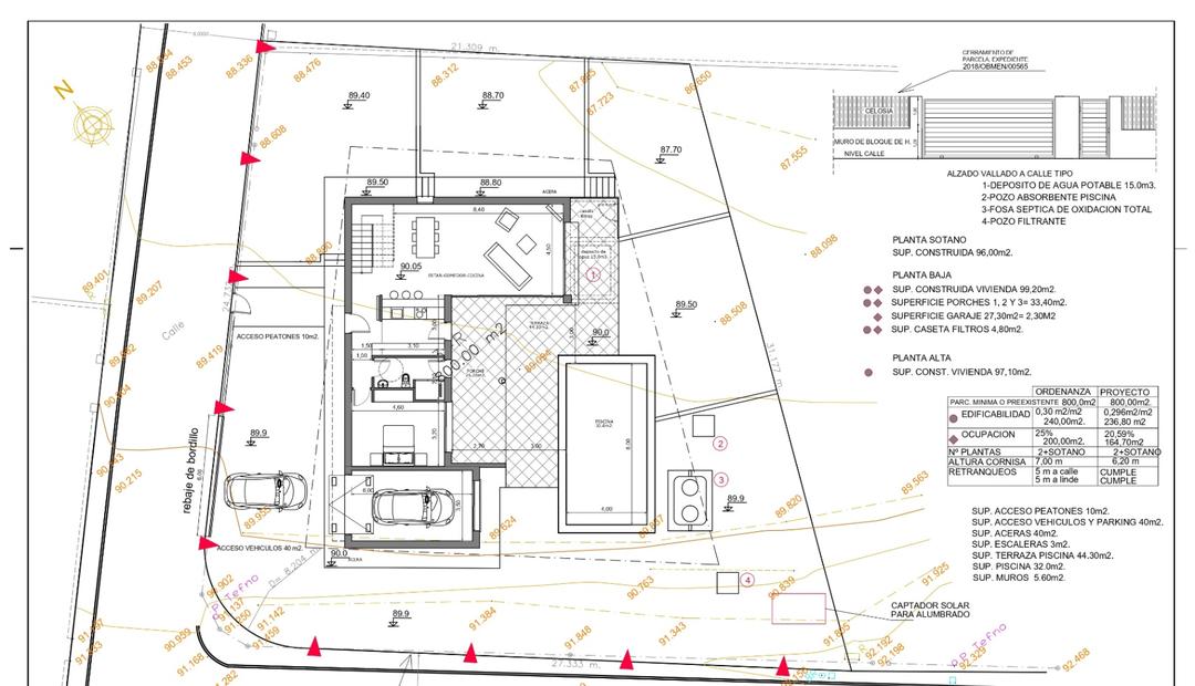
LOCATION:We find this modern villa under construction on a plot of 785m2, just 3km from the center of Calpe and its beaches.
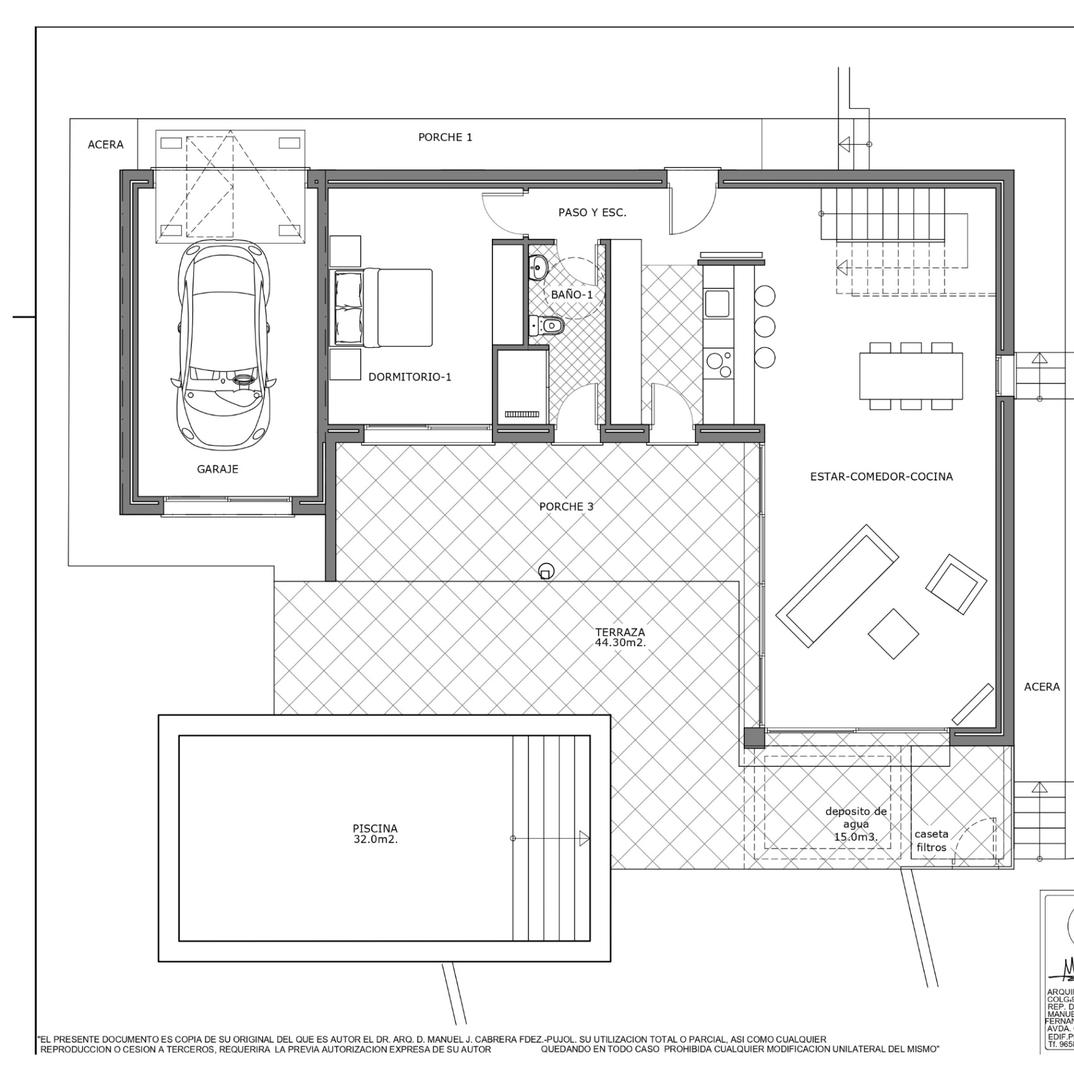
DISTRIBUTION:The house consists of 3 floors with the following distribution:On the ground floor is the spacious living-dining room with open kitchen and direct access to the terrace with the private pool of 4x8 m, a bedroom and a separate bathroom.
In addition, on this floor we find a garage of 27 m2, an easy-to-maintain garden, covered and open terrace.
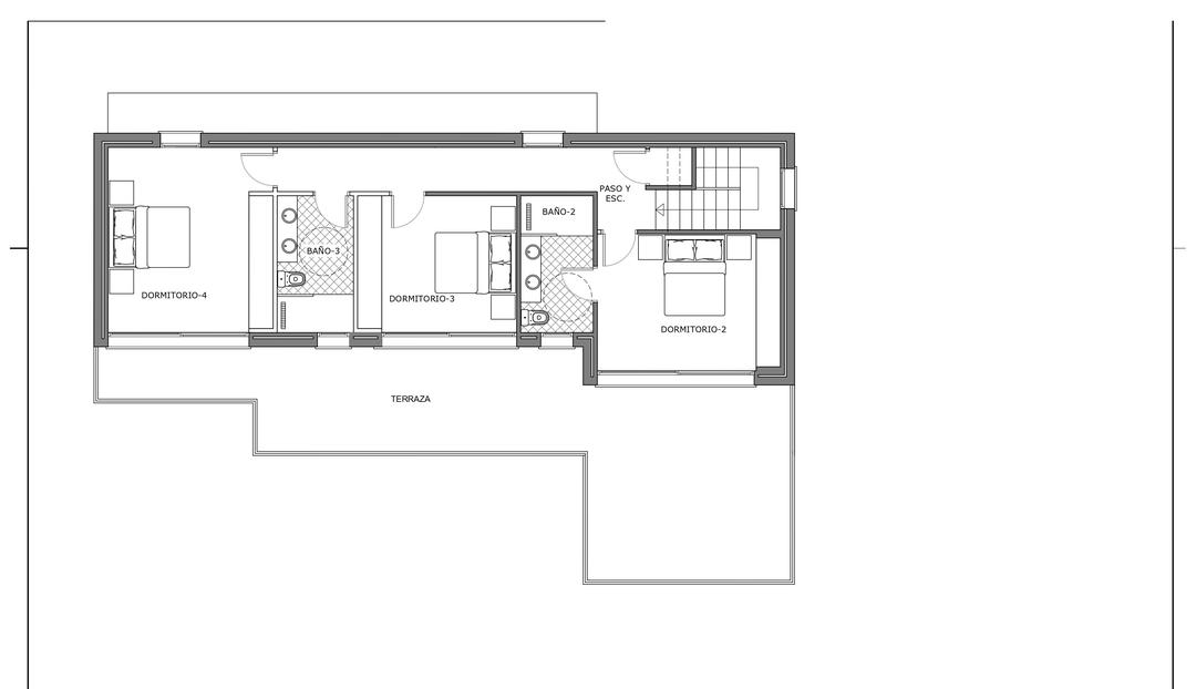
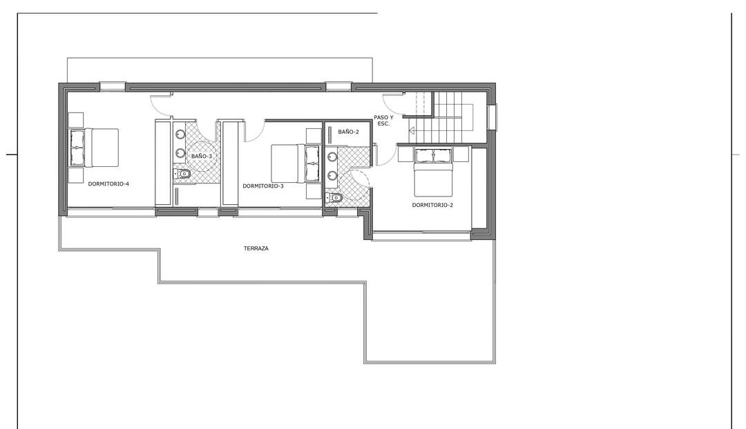
Going up the stairs we go to the upper floor which gives access to 3 more bedrooms, one with an en-suite bathroom and a complete bathroom.
In addition, all rooms have access to an open terrace where you can enjoy the beautiful views offered by this villa.
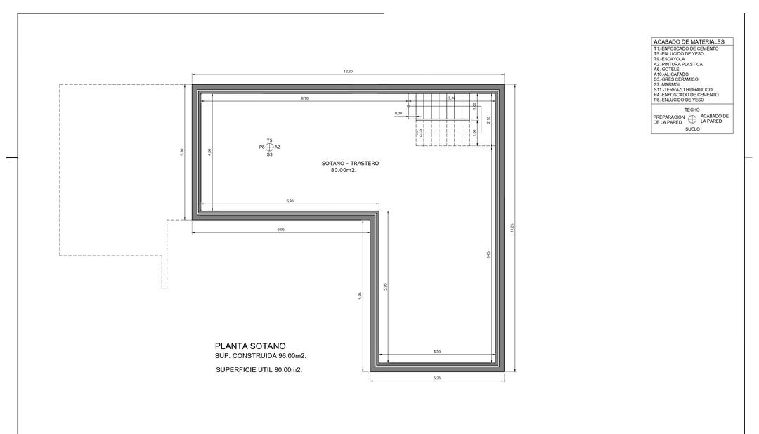
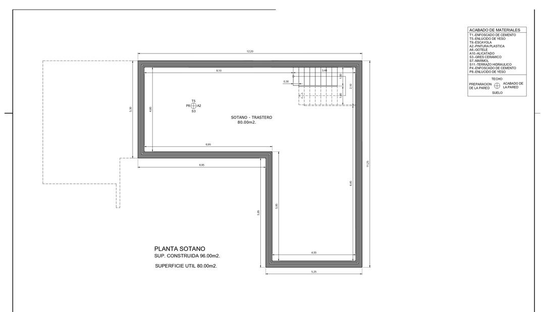
Finally, the basement, where we find a large space that you can convert into whatever you want such as a cinema room, gym area...This villa will be built with high quality materials.
If you would like more information or a visit, please do not hesitate to contact us!
ORT:Wir finden diese moderne Villa im Bau auf einem Grundstück von 785m2, nur 3 km vom Zentrum von Calpe und seinen Stränden entfernt.
VERTEILUNG:Das Haus besteht aus 3 Etagen mit folgender Aufteilung:Im Erdgeschoss befindet sich das großzügige Wohn-Esszimmer mit offener Küche und direktem Zugang zur Terrasse mit dem privaten Pool von 4x8 m, ein Schlafzimmer und ein separates Badezimmer.
Darüber hinaus finden wir auf dieser Etage eine Garage von 27 m2, einen pflegeleichten Garten, eine überdachte und offene Terrasse.
Wenn wir die Treppe hinaufgehen, gelangen wir in die obere Etage, die Zugang zu 3 weiteren Schlafzimmern bietet, eines davon mit eigenem Bad und einem kompletten Badezimmer.
Darüber hinaus haben alle Zimmer Zugang zu einer offenen Terrasse, auf der Sie die schöne Aussicht genießen können, die diese Villa bietet.
Schließlich der Keller, in dem wir einen großen Raum finden, den Sie in alles umwandeln können, was Sie wollen, wie z.
B. einen Kinoraum, einen Fitnessbereich...Diese Villa wird mit hochwertigen Materialien gebaut.
Wenn Sie weitere Informationen oder einen Besuch wünschen, zögern Sie bitte nicht, uns zu kontaktieren!
UBICACIÓN:Encontramos esta villa moderna en construcción sobre una parcela de 785m2, a tan solo 3km del centro de Calpe y de sus playas.
DISTRIBUCIÓN: La vivienda consta de 3 plantas con la siguiente distribución: En la planta baja se encuentra el amplio salón-comedor con cocina abierta y acceso directo a la terraza con la piscina privada de 4x8 m, un dormitorio y un baño independiente.
Además, en esta planta encontramos un garaje de 27 m2, jardín de fácil mantenimiento, terraza cubierta y abierta.
Subiendo las escaleras vamos a la planta alta que da acceso a 3 dormitorios más, uno con baño en suite y un baño completo.
Además todas las habitaciones tienen acceso a un terraza descubierta donde se puede disfrutar las preciosas vistas que ofrece esta villa.
Finalmente, la planta sótano, donde encontramos un gran espacio que lo puede convertir en lo que usted quiera como una sala de cines, zona de gimnasio… Esta villa será construida con materiales de alta calidad.
Si desea más información o una visita, no dude en contactarnos!
PLAATS:We vinden deze moderne villa in aanbouw op een perceel van 785m2, op slechts 3 km van het centrum van Calpe en de stranden.
DISTRIBUTIE:Het huis bestaat uit 3 verdiepingen met de volgende verdeling:Op de begane grond bevindt zich de ruime woon-eetkamer met open keuken en directe toegang tot het terras met het privé zwembad van 4x8 m, een slaapkamer en een aparte badkamer.
Daarnaast vinden we op deze verdieping een garage van 27 m2, een gemakkelijk te onderhouden tuin, overdekt en open terras.
Als we de trap opgaan, gaan we naar de bovenverdieping die toegang geeft tot nog 3 slaapkamers, waarvan één met een en-suite badkamer en een complete badkamer.
Bovendien hebben alle kamers toegang tot een open terras waar u kunt genieten van het prachtige uitzicht dat deze villa biedt.
Tot slot de kelder, waar we een grote ruimte vinden die je kunt ombouwen tot wat je maar wilt, zoals een bioscoopzaal, een fitnessruimte...Deze villa wordt gebouwd met hoogwaardige materialen.
Wilt u meer informatie of een bezoek, aarzel dan niet om contact met ons op te nemen!