NEW BUILD VILLA IN CALPE New Build villa located in one of the residential areas preferred by all the residents of Calpe, due to its proximity to the town centre, the beaches and at the same time because it is a quiet but safe area, as it is located on the outskirts of the town centre.
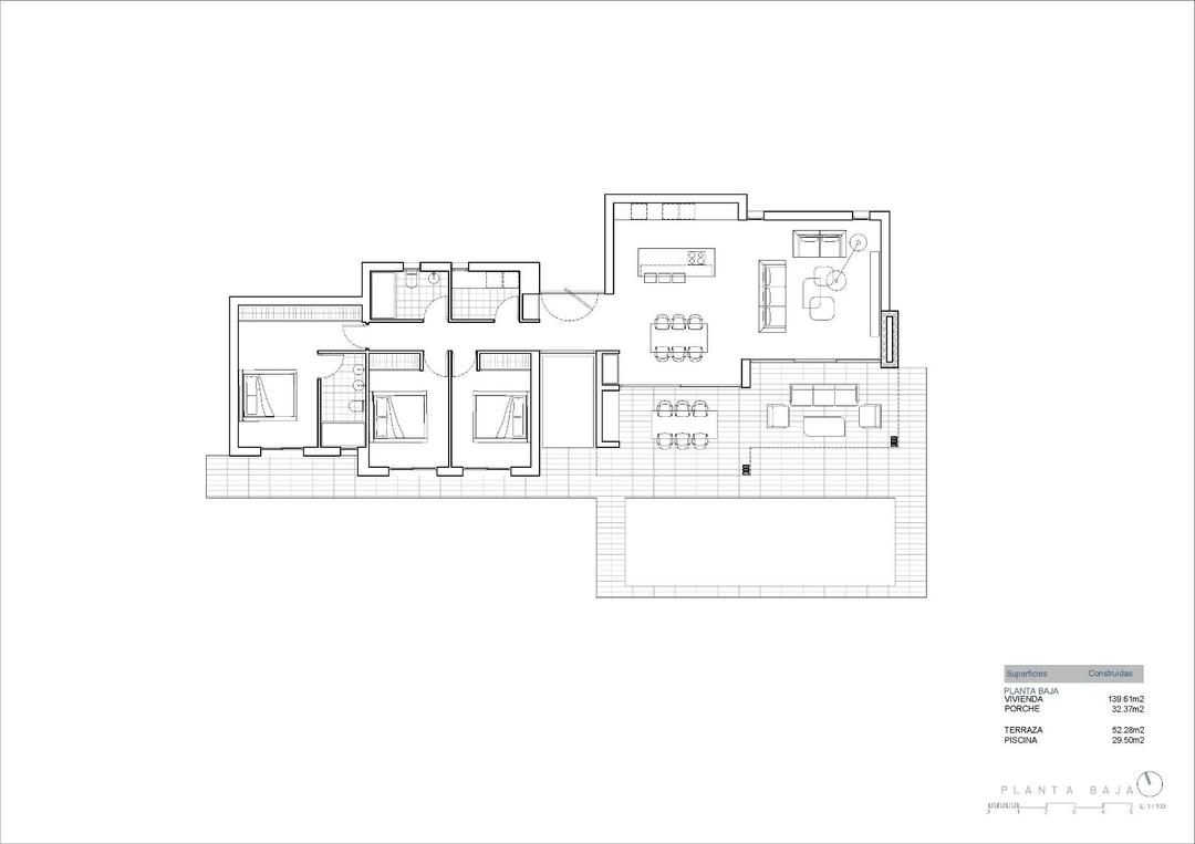
The property has been planned on a single floor, which makes this project practical and comfortable.
The whole plot is fenced and has a hedge of cypress trees inside, which provides privacy and a pleasant environment.
From the main entrance to the house we access to a hall, from which to the left we access to the day area, consisting of a living room with dining room and open kitchen with island.
From the living room we can access to the outside, where we have a covered porch area with barbecue and a large terrace with swimming pool of 40m2.
On the right hand side of the house is the sleeping area, with 4 bedrooms: the master suite with dressing room and bathroom, another bedroom with en-suite bathroom and two further bedrooms sharing a bathroom.
There is also a laundry area.
Outside there is a parking area with a pergola in the form of a sail for two cars.
Calpe, one of the towns of La Marina Alta, lies on the northern coast of the province of Alicante, surrounded by the towns of Altea, Benidorm, Teulada-Moraira, Benissa.
Calpe has a wonderful mixture of old Valencian culture and modern tourist facilities.
It is a great base from which to explore the local area or enjoy the many local beaches.
Calpe alone has three of the most beautiful sandy beaches on the coast.
Calpe also has two Sailing Clubs: Real Club Náutico de Calpe and Club Náutico de Puerto Blanco.
Fishing village of Calpe now transformed into a tourist magnet, the town sits in an ideal location, easily accessed by the A7 motorway and the N332 that runs from Valencia to Alicante; its approximately 1 hour drive from the airport at Alicante and 1,5 hours to Valencias airport.
NEUBAU-VILLA IN CALPE Neubauvilla in einer der von allen Bewohnern Calpes bevorzugten Wohngegenden, da sie sich in der Nähe des Stadtzentrums und der Strände befindet und gleichzeitig eine ruhige, aber sichere Gegend ist, da sie sich am Rande des Stadtzentrums befindet.
Die Immobilie wurde auf einer einzigen Etage geplant, was dieses Projekt praktisch und komfortabel macht.
Das gesamte Grundstück ist eingezäunt und mit einer Zypressenhecke umgeben, was für Privatsphäre und eine angenehme Umgebung sorgt.
Vom Haupteingang des Hauses gelangt man in eine Halle, von der aus man links in den Wohnbereich gelangt, der aus einem Wohnzimmer mit Esszimmer und einer offenen Küche mit Kochinsel besteht.
Vom Wohnzimmer aus haben wir Zugang zum Außenbereich, wo wir eine überdachte Veranda mit Grill und eine große Terrasse mit Schwimmbad von 40m2 haben.
Auf der rechten Seite des Hauses befindet sich der Schlafbereich mit 4 Schlafzimmern: die Master-Suite mit Ankleideraum und Bad, ein weiteres Schlafzimmer mit eigenem Bad und zwei weitere Schlafzimmer, die sich ein Bad teilen.
Es gibt auch einen Waschraum.
Im Außenbereich befindet sich ein Parkplatz mit einer Pergola in Form eines Segels für zwei Autos.
Calpe, einer der Orte der La Marina Alta, liegt an der Nordküste der Provinz Alicante, umgeben von den Orten Altea, Benidorm, Teulada-Moraira und Benissa.
Calpe bietet eine wunderbare Mischung aus alter valencianischer Kultur und modernen touristischen Einrichtungen.
Es ist ein idealer Ausgangspunkt, um die Umgebung zu erkunden oder die vielen Strände zu genießen.
Allein in Calpe gibt es drei der schönsten Sandstrände an der Küste.
Calpe hat auch zwei Segelclubs: Real Club Náutico de Calpe und Club Náutico de Puerto Blanco.
Das Fischerdorf Calpe, das sich zu einem Touristenmagneten entwickelt hat, befindet sich in idealer Lage und ist über die Autobahn A7 und die N332, die von Valencia nach Alicante führt, leicht zu erreichen.
Der Flughafen von Alicante ist etwa eine Stunde und der Flughafen von Valencia 1,5 Stunden entfernt.
VILLA DE OBRA NUEVA EN CALPE Villa de nueva construcción situada en una de las zonas residenciales preferidas por todos los residentes de Calpe, por su proximidad al centro del pueblo, a las playas y al mismo tiempo por ser una zona tranquila pero segura, ya que se encuentra en las afueras del casco urbano.
La vivienda se ha planteado en una sola planta, lo que hace que este proyecto sea práctico y cómodo.
Toda la parcela está vallada y tiene un seto de cipreses en su interior, lo que proporciona privacidad y un entorno agradable.
Desde la entrada principal a la vivienda accedemos a un hall, desde el que a la izquierda accedemos a la zona de día, compuesta por un salón con comedor y cocina abierta con isla.
Desde el salón accedemos al exterior, donde tenemos una zona de porche cubierto con barbacoa y una amplia terraza con piscina de 40m2.
En la parte derecha de la casa se encuentra la zona de descanso, con 4 dormitorios: la suite principal con vestidor y baño, otro dormitorio con baño en suite y dos dormitorios más que comparten un baño.
También hay una zona de lavandería.
En el exterior hay una zona de aparcamiento con una pérgola en forma de vela para dos coches.
Calpe, uno de los pueblos de La Marina Alta, se encuentra en la costa norte de la provincia de Alicante, rodeado por los pueblos de Altea, Benidorm, Teulada-Moraira, Benissa.
Calpe tiene una maravillosa mezcla de antigua cultura valenciana y modernas instalaciones turísticas.
Es una gran base desde la que explorar la zona local o disfrutar de las numerosas playas locales.
Sólo Calpe tiene tres de las más bellas playas de arena de la costa.
Calpe también cuenta con dos clubes de vela: Real Club Náutico de Calpe y Club Náutico de Puerto Blanco.
El pueblo pesquero de Calpe ahora se ha transformado en un imán turístico, la ciudad se encuentra en una ubicación ideal, de fácil acceso por la autopista A7 y la N332 que va desde Valencia a Alicante; es aproximadamente 1 hora en coche desde el aeropuerto de Alicante y 1,5 horas al aeropuerto de Valencia.
NIEUWBOUW VILLA IN CALPE Nieuwbouwvilla gelegen in een van de woonwijken die de voorkeur genieten van alle inwoners van Calpe, vanwege de nabijheid van het stadscentrum, de stranden en tegelijkertijd omdat het een rustige maar veilige buurt is, omdat het aan de rand van het stadscentrum ligt.
De woning is gepland op een enkele verdieping, wat dit project praktisch en comfortabel maakt.
Het hele perceel is omheind en heeft binnen een haag van cipressen, wat zorgt voor privacy en een aangename omgeving.
Vanuit de hoofdingang van het huis hebben we toegang tot een hal, van waaruit we aan de linkerkant toegang hebben tot het daggedeelte, bestaande uit een woonkamer met eetkamer en open keuken met eiland.
Vanuit de woonkamer hebben we toegang tot de buitenkant, waar we een overdekte veranda hebben met barbecue en een groot terras met zwembad van 40m2.
Aan de rechterkant van het huis is het slaapgedeelte, met 4 slaapkamers: de master suite met kleedkamer en badkamer, een andere slaapkamer met en-suite badkamer en nog twee slaapkamers die een badkamer delen.
Er is ook een wasruimte.
Buiten is er een parkeerplaats met een pergola in de vorm van een zeil voor twee auto's.
Calpe, een van de steden van La Marina Alta, ligt aan de noordkust van de provincie Alicante, omringd door de steden Altea, Benidorm, Teulada-Moraira, Benissa.
Calpe heeft een prachtige mix van oude Valenciaanse cultuur en moderne toeristische faciliteiten.
Het is een prima uitvalsbasis om de omgeving te verkennen of te genieten van de vele plaatselijke stranden.
Calpe alleen al heeft drie van de mooiste zandstranden aan de kust.
Calpe heeft ook twee zeilclubs: Real Club Náutico de Calpe en Club Náutico de Puerto Blanco.
Vissersdorp Calpe is nu omgetoverd tot een toeristische trekpleister, de stad ligt op een ideale locatie, gemakkelijk bereikbaar via de snelweg A7 en de N332 die van Valencia naar Alicante loopt; het is ongeveer 1 uur rijden van het vliegveld van Alicante en 1,5 uur van het vliegveld van Valencia.
Thinking of buying in Jávea? Here's what life is really like for foreign residents — the neighbourhoods, lifestyle, cost...
A comprehensive overview of the Spanish real estate market in 2026 — trends, hotspots, prices, and essential tips for in...
Considering living in El Mojón on the Costa Blanca? A practical, honest guide for retirees and second-home buyers explor...