House under construction in modern minimalist style of 253 sq meters distributed in 227 sq meters of living space on ground floor including porch and 26 sq meters of basement.
It is situated on a plot of 800 sq meters with good views located in a natural area surrounded by big trees.
The house will be built in a style that integrates with the landscape, with imitation concrete walls and natural stone decorations in a way that combines ultramodern elements with a traditional rustic touch as shown in the 3 D images.
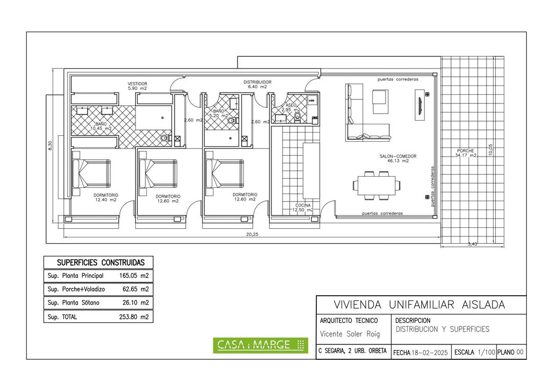
The main floor is distributed in a spacious glazed living-dining room with open plan kitchen, hallway, 3 bedrooms, 2 bathrooms, one of them en suite in the master bedroom, service toilet and a wide covered porch in the form of a cantilever without pillars which leads to the pool terrace.
Air conditioning hot and cold is included throughout the house.
The price includes a swimming pool 9,45 x 3,30 meters as shown in the plans.
The access to the house will be with concrete and a parking for several cars is also included in the price, as well as the metal fencing of the plot.
The kitchen units and electrical appliances will be chosen and paid for by the client.
For further information please contact our sales team.
Im Preis inbegriffen sind ein Swimmingpool 9,45 x 3,30 Meters wie in den Plänen gezeigt.
Eine Klimaanlage warm-kalt ist im ganzen Haus vorhanden.
Im Bau befindliche Wohnungen in einem minimalistischen, modernen Stil von 253 m2, verteilt auf 227 m2 Erdgeschosswohnungen einschließlich Veranda und 26 m2 Keller.
Es befindet sich auf einem Grundstück von 800 m2 mit guter Aussicht in einem natürlichen Gebiet, das von großen Bäumen umgeben ist.
Das Haus wird in einem Stil gebaut, der sich in die Landschaft einfügt, mit imitierten Betonwänden und Natursteindekorationen auf eine Weise, die hochmoderne Elemente mit einem traditionellen rustikalen Touch kombiniert, wie in den 3D-Bildern gezeigt.
Das Erdgeschoss besteht aus einem großen verglasten Wohnzimmer mit offener Küche, Flur, 3 Schlafzimmern, 2 Bädern, eines davon en suite im Hauptschlafzimmer, Service-WC und breiter überdachter Veranda in Form eines Auslegers ohne Säulen, der die Poolterrasse überblickt.
Eine betonierte Zufahrt zum Haus und Parkplätze für mehrere Autos sind ebenfalls im Preis inbegriffen, ebenso wie die Metallumzäunung des Grundstücks.
Küchenmöbel und -geräte werden vom Kunden ausgewählt und bezahlt.
Für weitere Informationen wenden Sie sich bitte an unsere Verkaufsteam.
Vivienda en construcción de estilo moderno minimalista de 253 m2 repartidos en 227 m2 de vivienda en planta baja incluyendo porche y 26 m2 de sótano.
Se sitúa sobre una parcela de 800 m2 con buenas vistas situada en una zona natural rodeada de grandes árboles.
La casa se construirá con un estilo integrador con el paisaje, con paredes imitación hormigón y decoraciones de piedra natural de forma que combine elementos ultramodernos con un toque rústico tradicional según figura en las imágenes 3 D. La planta principal se distribuye en amplio salón comedor acristalado con cocina abierta, pasillo distribuidor, 3 habitaciones, 2 baños uno de ellos en suite en la habitación principal, aseo de servicio y ancho porche cubierto en forma de voladizo sin pilares que da a la terraza de la piscina.
Se incluye aire acondicionado frio-calor por conductos en toda la casa.
El precio incluye una piscina de 9,45 x 3,30 metros tal y como muestran los planos.
El acceso de hormigón hasta la casa y un parking para varios coches está incluido también en el precio, así como el vallado metálico de la parcela.
Los muebles de cocina y electrodomésticos se elegirán y pagarán por el cliente.
Para más información contacte con nuestros asesores comerciales.
Thinking of buying in Jávea? Here's what life is really like for foreign residents — the neighbourhoods, lifestyle, cost...
A comprehensive overview of the Spanish real estate market in 2026 — trends, hotspots, prices, and essential tips for in...
Considering living in El Mojón on the Costa Blanca? A practical, honest guide for retirees and second-home buyers explor...