New Build Villa in Rojales – Modern Design and Prime Location Discover this stunning new build villa in Ciudad Quesada, Rojales, designed with a perfect balance of style, comfort, and functionality.
Surrounded by nature and close to all essential services, this home is an ideal choice for those seeking quality living in the heart of the Costa Blanca.
Spacious Layout with High-End Features This villa has been carefully designed to maximize natural light and open spaces.
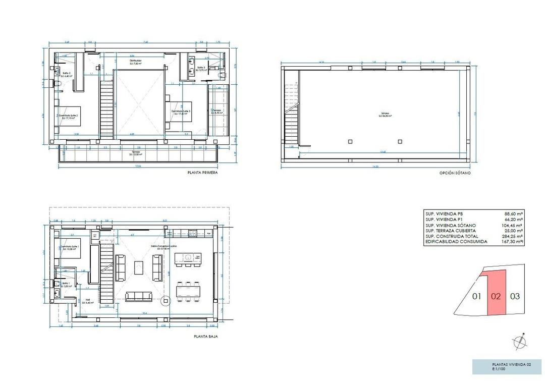
It includes: A large basement with excellent ventilation and natural light, ideal for multiple uses.
Ground floor with a double-height living room, open-plan kitchen with island, one bedroom, and a bathroom.
Upper floor with two en-suite bedrooms, each with access to private terraces.
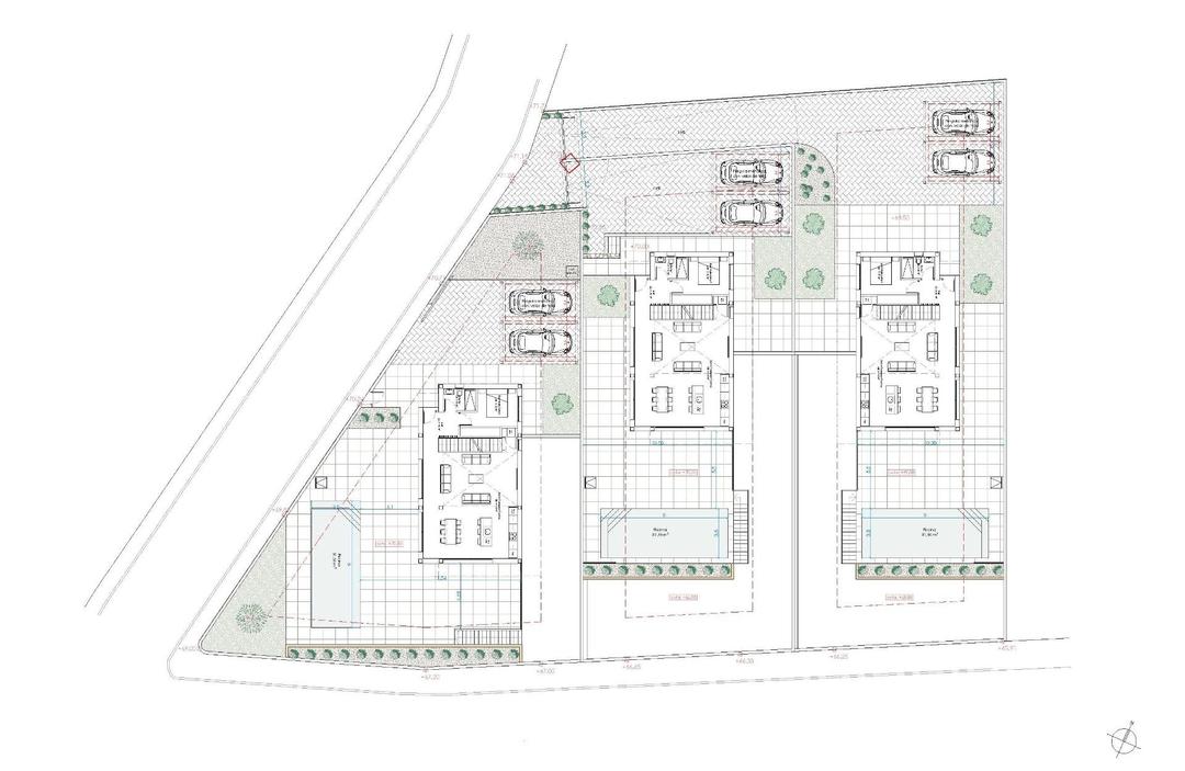
The villa also offers a private 9x3.5 m swimming pool, landscaped garden areas, and multiple terraces for outdoor relaxation.
Quality Finishes and Modern Comfort Built with premium materials, this property is equipped with: Fully furnished bathrooms with mirrors Ducted air conditioning Underfloor heating in bathrooms Aerothermal hot water system Parking space for several vehicles Prime Location in Rojales Located in the charming town of Rojales, this villa enjoys proximity to essential services such as supermarkets, pharmacies, banks, restaurants, and natural parks.
Just 10 minutes from La Marquesa Golf, one of the most prestigious courses in the Costa Blanca, residents can enjoy a top golfing experience surrounded by tradition and quality.
Excellent Connectivity and Nearby Attractions Rojales is strategically positioned, offering excellent road connections: La Marquesa Golf – 3 km Beaches of Guardamar del Segura – 8 km Torrevieja – 12 km Alicante Airport – 40 km Murcia Airport – 55 km In addition, the N-332 and AP-7 highways ensure quick access to nearby towns, shopping centers, marinas, and cultural attractions.
Make Rojales Your New Home Whether you are looking for a permanent residence, a holiday retreat, or a secure investment, this new build villa in Ciudad Quesada offers everything you need for a Mediterranean lifestyle.
Contact us today for more details and to schedule your private viewing.
Neubauvilla in Rojales – Modernes Design und erstklassige Lage Entdecken Sie diese atemberaubende Neubauvilla in Ciudad Quesada, Rojales, die mit einer perfekten Balance aus Stil, Komfort und Funktionalität gestaltet wurde.
Umgeben von Natur und in der Nähe aller wichtigen Dienstleistungen ist dieses Haus die ideale Wahl für alle, die ein hochwertiges Leben im Herzen der Costa Blanca suchen.
Großzügiger Grundriss mit hochwertiger Ausstattung Diese Villa wurde sorgfältig entworfen, um viel Tageslicht und offene Räume zu schaffen.
Sie umfasst: Ein großes Untergeschoss mit ausgezeichneter Belüftung und Tageslicht, ideal für verschiedene Nutzungen.
Erdgeschoss mit einem Wohnzimmer mit doppelter Deckenhöhe, offener Küche mit Kochinsel, einem Schlafzimmer und einem Badezimmer.
Obergeschoss mit zwei Schlafzimmern mit eigenem Bad, jedes mit Zugang zu privaten Terrassen.
Die Villa bietet außerdem einen privaten 9 x 3,5 m großen Swimmingpool, einen angelegten Garten und mehrere Terrassen zum Entspannen im Freien.
Hochwertige Ausstattung und moderner Komfort Diese Immobilie wurde mit hochwertigen Materialien gebaut und ist ausgestattet mit: Komplett möblierten Badezimmern mit Spiegeln Klimaanlage Fußbodenheizung in den Badezimmern Aerothermischem Warmwassersystem Parkplatz für mehrere Fahrzeuge Erstklassige Lage in Rojales Diese Villa liegt in der charmanten Stadt Rojales und in der Nähe aller wichtigen Dienstleistungen wie Supermärkte, Apotheken, Banken, Restaurants und Naturparks.
Nur 10 Minuten vom La Marquesa Golf entfernt, einem der renommiertesten Golfplätze an der Costa Blanca, können die Bewohner ein erstklassiges Golferlebnis inmitten von Tradition und Qualität genießen.
Hervorragende Anbindung und Sehenswürdigkeiten in der Nähe Rojales ist strategisch günstig gelegen und bietet eine hervorragende Verkehrsanbindung: La Marquesa Golf – 3 km Strände von Guardamar del Segura – 8 km Torrevieja – 12 km Flughafen Alicante – 40 km Flughafen Murcia – 55 km Darüber hinaus gewährleisten die Autobahnen N-332 und AP-7 eine schnelle Anbindung an nahegelegene Städte, Einkaufszentren, Yachthäfen und kulturelle Sehenswürdigkeiten.
Machen Sie Rojales zu Ihrem neuen Zuhause Ob Sie einen dauerhaften Wohnsitz, einen Rückzugsort für den Urlaub oder eine sichere Investition suchen, diese neu gebaute Villa in Ciudad Quesada bietet Ihnen alles, was Sie für einen mediterranen Lebensstil benötigen.
Kontaktieren Sie uns noch heute für weitere Informationen und um einen privaten Besichtigungstermin zu vereinbaren.
Villa de nueva construcción en Rojales: diseño moderno y ubicación privilegiada Descubra esta impresionante villa de nueva construcción en Ciudad Quesada, Rojales, diseñada con un equilibrio perfecto entre estilo, comodidad y funcionalidad.
Rodeada de naturaleza y cerca de todos los servicios esenciales, esta vivienda es una opción ideal para quienes buscan una vida de calidad en el corazón de la Costa Blanca.
Amplia distribución con acabados de alta gama Esta villa ha sido cuidadosamente diseñada para maximizar la luz natural y los espacios abiertos.
Incluye: Un amplio sótano con excelente ventilación y luz natural, ideal para múltiples usos.
Planta baja con salón de doble altura, cocina abierta con isla, un dormitorio y un baño.
Planta superior con dos dormitorios en suite, cada uno con acceso a terrazas privadas.
La villa también ofrece una piscina privada de 9x3,5 m, zonas ajardinadas y múltiples terrazas para relajarse al aire libre.
Acabados de calidad y confort moderno Construida con materiales de primera calidad, esta propiedad está equipada con: Baños completamente amueblados con espejos.
Aire acondicionado por conductos.
Calefacción por suelo radiante en los baños.
Sistema de agua caliente aerotérmico.
Aparcamiento para varios vehículos.
Ubicación privilegiada en Rojales Situada en la encantadora localidad de Rojales, esta villa goza de proximidad a servicios esenciales como supermercados, farmacias, bancos, restaurantes y parques naturales.
A solo 10 minutos de La Marquesa Golf, uno de los campos más prestigiosos de la Costa Blanca, los residentes pueden disfrutar de una experiencia de golf de primer nivel rodeados de tradición y calidad.
Excelente conectividad y atracciones cercanas Rojales está estratégicamente situado, ofreciendo excelentes conexiones por carretera: La Marquesa Golf: 3 km Playas de Guardamar del Segura: 8 km Torrevieja: 12 km Aeropuerto de Alicante: 40 km Aeropuerto de Murcia: 55 km Además, las carreteras N-332 y AP-7 garantizan un rápido acceso a las localidades cercanas, centros comerciales, puertos deportivos y atracciones culturales.
Haga de Rojales su nuevo hogar Tanto si busca una residencia permanente, un refugio para las vacaciones o una inversión segura, esta villa de nueva construcción en Ciudad Quesada le ofrece todo lo que necesita para disfrutar del estilo de vida mediterráneo.
Póngase en contacto con nosotros hoy mismo para obtener más detalles y concertar una visita privada.
Nieuwbouwwoning in Rojales – Modern ontwerp en toplocatie Ontdek deze prachtige nieuwbouwwoning in Ciudad Quesada, Rojales, ontworpen met een perfecte balans tussen stijl, comfort en functionaliteit.
Omgeven door natuur en dicht bij alle essentiële voorzieningen is deze woning een ideale keuze voor wie op zoek is naar kwaliteitsvol wonen in het hart van de Costa Blanca.
Ruime indeling met hoogwaardige voorzieningen Deze villa is zorgvuldig ontworpen om zoveel mogelijk natuurlijk licht en open ruimtes te creëren.
De villa beschikt over: Een grote kelder met uitstekende ventilatie en veel natuurlijk licht, ideaal voor verschillende doeleinden.
Begane grond met een woonkamer met dubbel hoog plafond, open keuken met kookeiland, een slaapkamer en een badkamer.
Bovenverdieping met twee slaapkamers met eigen badkamer, elk met toegang tot een privéterras.
De villa biedt ook een privézwembad van 9x3,5 m, aangelegde tuinen en meerdere terrassen om buiten te ontspannen.
Hoogwaardige afwerking en modern comfort Deze woning is gebouwd met hoogwaardige materialen en is voorzien van: Volledig ingerichte badkamers met spiegels Airconditioning Vloerverwarming in de badkamers Aerothermisch warmwatersysteem Parkeerplaats voor meerdere voertuigen Toplocatie in Rojales Deze villa ligt in het charmante stadje Rojales, dicht bij alle voorzieningen zoals supermarkten, apotheken, banken, restaurants en natuurparken.
Op slechts 10 minuten van La Marquesa Golf, een van de meest prestigieuze golfbanen aan de Costa Blanca, kunnen bewoners genieten van een topgolfervaring omringd door traditie en kwaliteit.
Uitstekende verbindingen en bezienswaardigheden in de buurt Rojales is strategisch gelegen en biedt uitstekende wegverbindingen: La Marquesa Golf – 3 km Stranden van Guardamar del Segura – 8 km Torrevieja – 12 km Luchthaven Alicante – 40 km Luchthaven Murcia – 55 km Bovendien zorgen de snelwegen N-332 en AP-7 voor een snelle verbinding met nabijgelegen steden, winkelcentra, jachthavens en culturele bezienswaardigheden.
Maak van Rojales uw nieuwe thuis Of u nu op zoek bent naar een permanente woning, een vakantiehuis of een veilige investering, deze nieuwbouwwoning in Ciudad Quesada biedt alles wat u nodig heeft voor een mediterrane levensstijl.
Neem vandaag nog contact met ons op voor meer informatie en om een privébezichtiging te plannen.
Thinking of buying in Jávea? Here's what life is really like for foreign residents — the neighbourhoods, lifestyle, cost...
A comprehensive overview of the Spanish real estate market in 2026 — trends, hotspots, prices, and essential tips for in...
Considering living in El Mojón on the Costa Blanca? A practical, honest guide for retirees and second-home buyers explor...