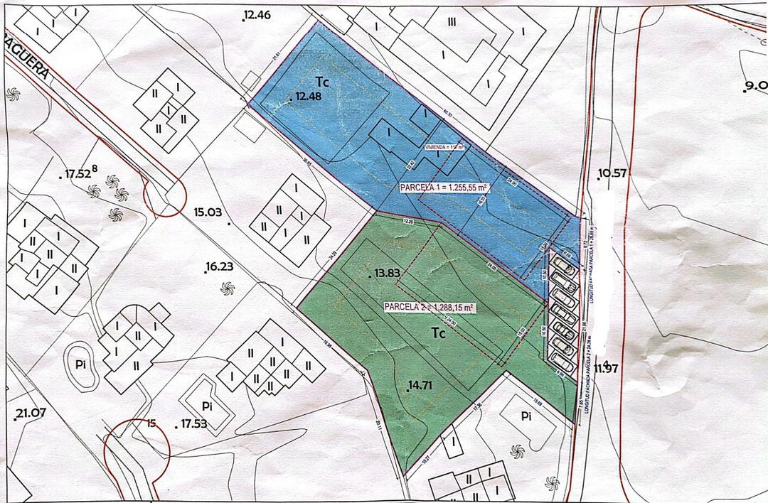
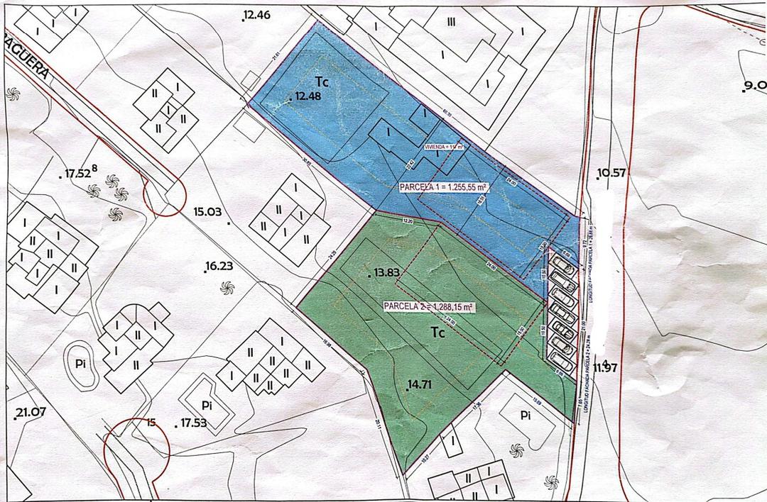
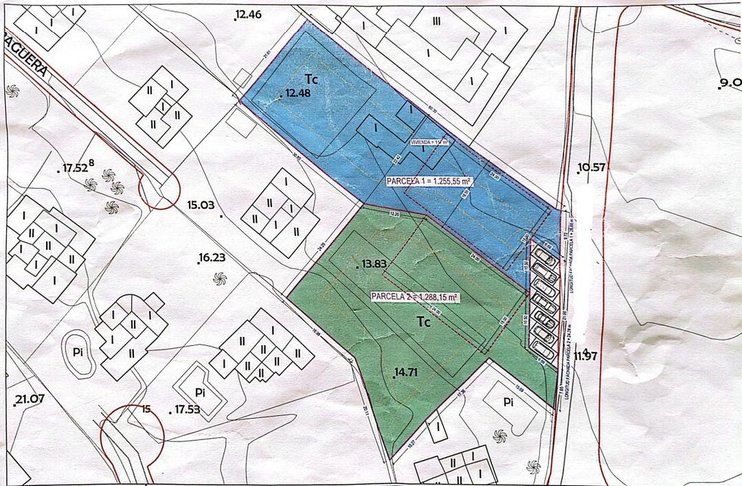
Interesting for investors - Plot of 2,600 m2 with house and possibility of division into two building plotsThis plot is located a very short distance from the sandy beach of Jávea and offers an excellent investment opportunity.
The plot can be perfectly divided into two separate building plots of about 1,300 m2 each, suitable for realising two luxury villas.
Currently, the plot contains a single-storey villa with a built-up area of 152 m².
The property features a living room with open kitchen, a second living-dining room with closed kitchen, three bedrooms, two bathrooms and a patio with a storage room.
This plot is within walking distance of Jávea's sandy beach and enjoys an excellent location near all amenities.
Supermarkets, restaurants, doctors' surgeries, sports facilities and other daily necessities are all within walking distance.
This location combines privacy with the comfort of a central location.
Interessant für Investoren - Grundstück von 2.600 m2 mit Haus und Möglichkeit der Aufteilung in zwei BaugrundstückeDieses Grundstück befindet sich in unmittelbarer Nähe zum Sandstrand von Jávea und bietet eine hervorragende Investitionsmöglichkeit.
Das Grundstück kann perfekt in zwei separate Baugrundstücke von jeweils ca.
1.300 m2 aufgeteilt werden, die sich für die Realisierung von zwei Luxusvillen eignen.
Derzeit befindet sich auf dem Grundstück eine eingeschossige Villa mit einer bebauten Fläche von 152 m².
Die Immobilie verfügt über ein Wohnzimmer mit offener Küche, ein zweites Wohn-Esszimmer mit geschlossener Küche, drei Schlafzimmer, zwei Bäder und einen Innenhof mit Abstellraum.
Das Grundstück ist nur wenige Gehminuten vom Sandstrand von Jávea entfernt und genießt eine hervorragende Lage in der Nähe aller Annehmlichkeiten.
Supermärkte, Restaurants, Arztpraxen, Sportanlagen und andere Dinge des täglichen Bedarfs sind zu Fuß erreichbar.
Diese Lage kombiniert Privatsphäre mit dem Komfort einer zentralen Lage.
Interesante para inversores - Parcela de 2.600 m2 con casa y posibilidad de división en dos parcelas edificablesEsta parcela se encuentra a muy poca distancia de la playa de arena de Jávea y ofrece una excelente oportunidad de inversión.
La parcela se puede dividir perfectamente en dos parcelas edificables independientes de unos 1.300 m2 cada una, aptas para realizar dos villas de lujo.
Actualmente, la parcela contiene una villa de una sola planta con una superficie construida de 152 m².
La propiedad cuenta con un salón con cocina abierta, un segundo salón-comedor con cocina cerrada, tres dormitorios, dos baños y un patio con trastero.
Esta parcela se encuentra a poca distancia de la playa de arena de Jávea y goza de una excelente ubicación cerca de todos los servicios.
Supermercados, restaurantes, consultas médicas, instalaciones deportivas y otras necesidades diarias se encuentran a poca distancia.
Esta ubicación combina la privacidad con la comodidad de una ubicación céntrica.
Interessant voor investeerders – Perceel van 2.600 m2 met woning en opsplitsingsmogelijkheid in twee bouwgrondenDit perceel bevindt zich op zeer korte afstand van het zandstrand van Jávea en biedt een uitstekende investeringskans.
Het terrein kan perfect worden opgesplitst in twee afzonderlijke bouwpercelen van elk ongeveer 1.300 m2, geschikt voor het realiseren van twee luxe villa’s.
Momenteel staat er op het perceel een gelijkvloerse villa met een bebouwde oppervlakte van 152 m².
De woning beschikt over een woonkamer met open keuken, een tweede woon-eetkamer met gesloten keuken, drie slaapkamers, twee badkamers en een patio met een berging.
Dit perceel bevindt zich op wandelafstand van het zandstrand van Jávea en geniet een uitstekende ligging nabij alle voorzieningen.
Supermarkten, restaurants, dokterspraktijken, sportfaciliteiten en andere dagelijkse benodigdheden zijn allemaal te voet bereikbaar.
Deze locatie combineert privacy met het comfort van een centrale ligging.
Thinking of buying in Jávea? Here's what life is really like for foreign residents — the neighbourhoods, lifestyle, cost...
A comprehensive overview of the Spanish real estate market in 2026 — trends, hotspots, prices, and essential tips for in...
Considering living in El Mojón on the Costa Blanca? A practical, honest guide for retirees and second-home buyers explor...