This modern villa is located in Benissa and offers breathtaking views of the coast from the Cap D'or in Moraira to the Peñon de Ifach in Calpe.
The villa is spread over four floors connected by an elevator.
At street level there is parking space for two cars.
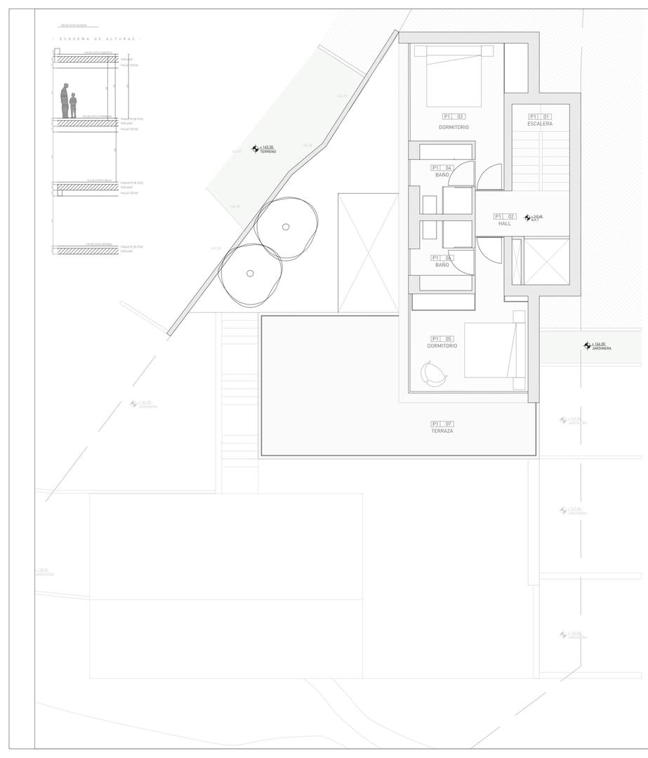
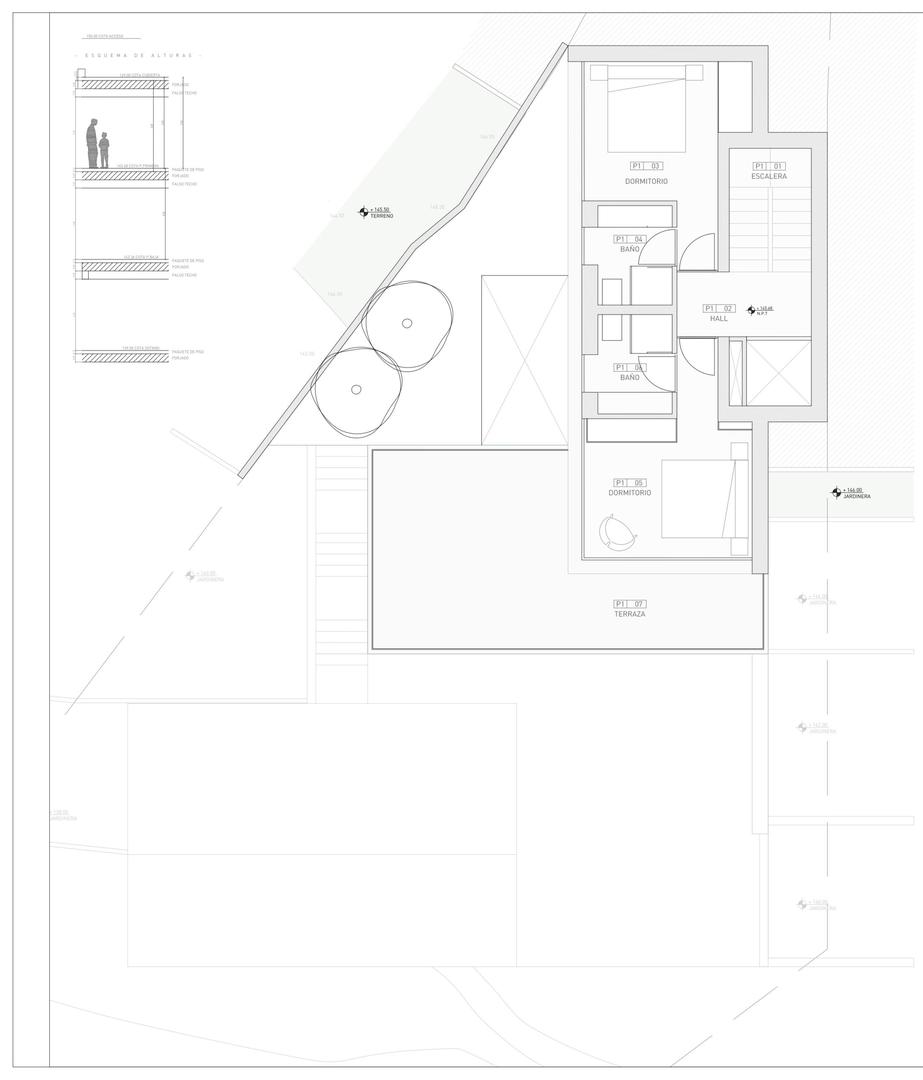
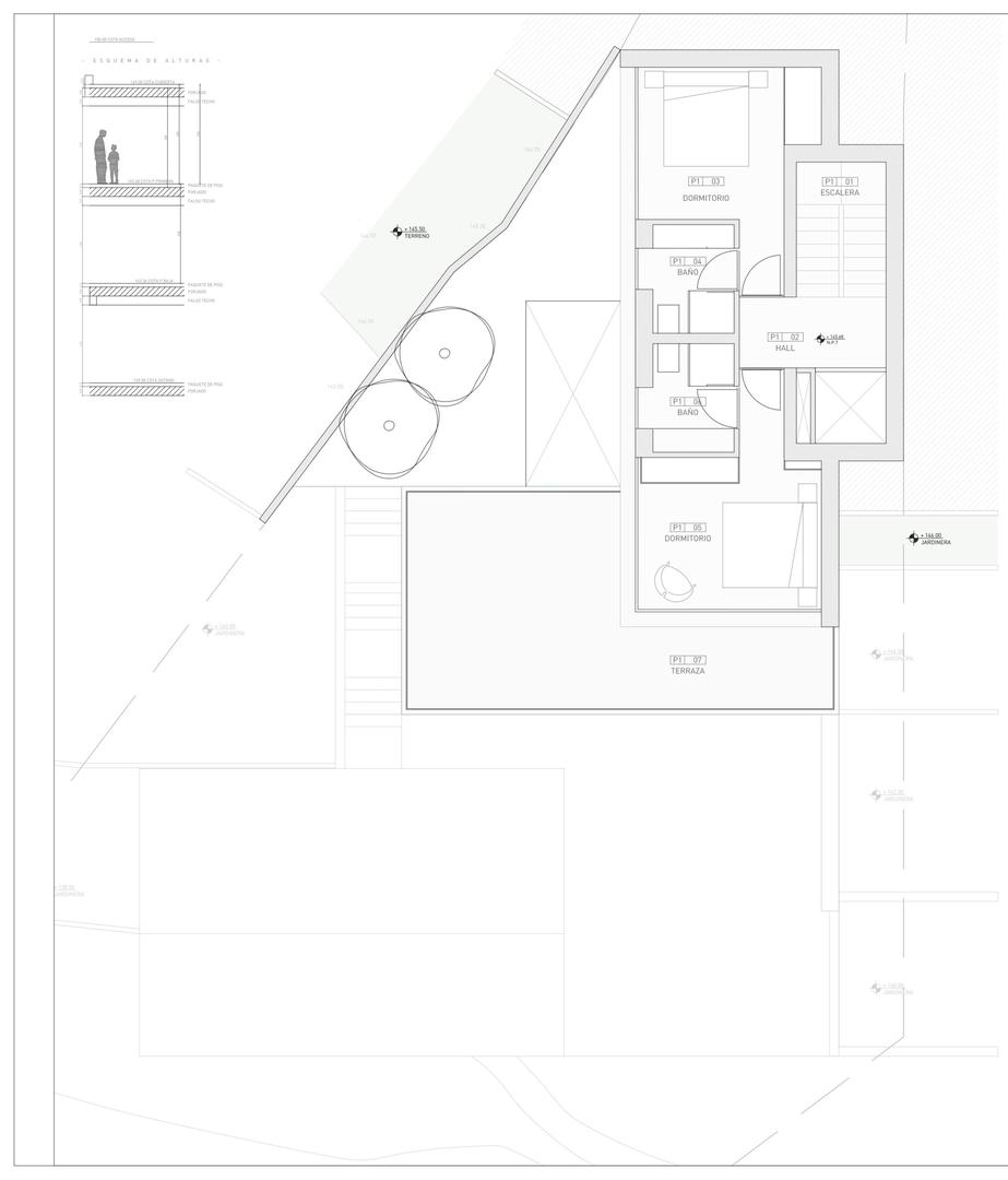
Through a staircase you reach the top floor, where there is a hall and the stairs and elevator to the other floors.
There is the possibility of also installing an elevator from the parking area to the hall to create maximum comfort.
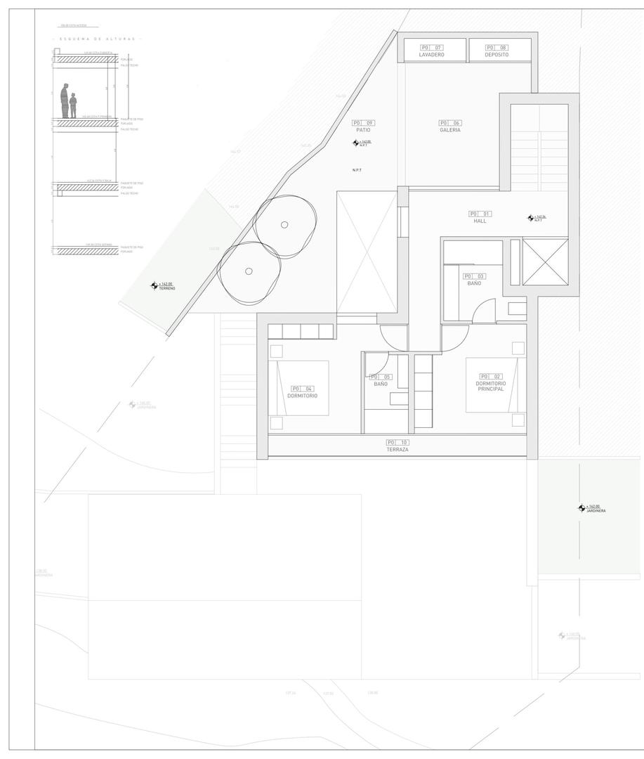
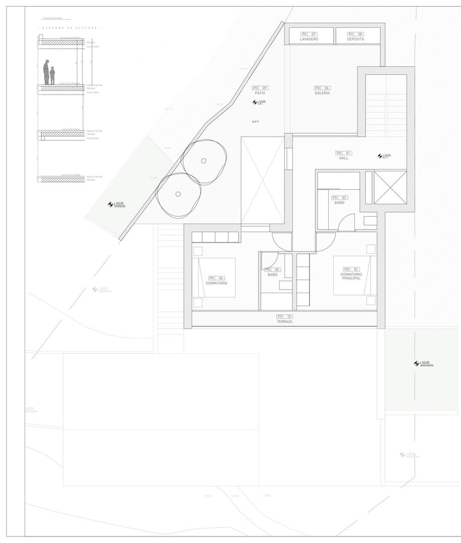
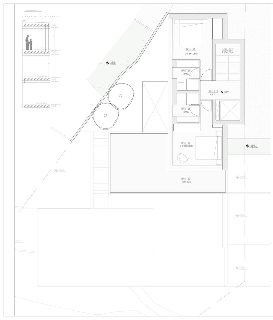
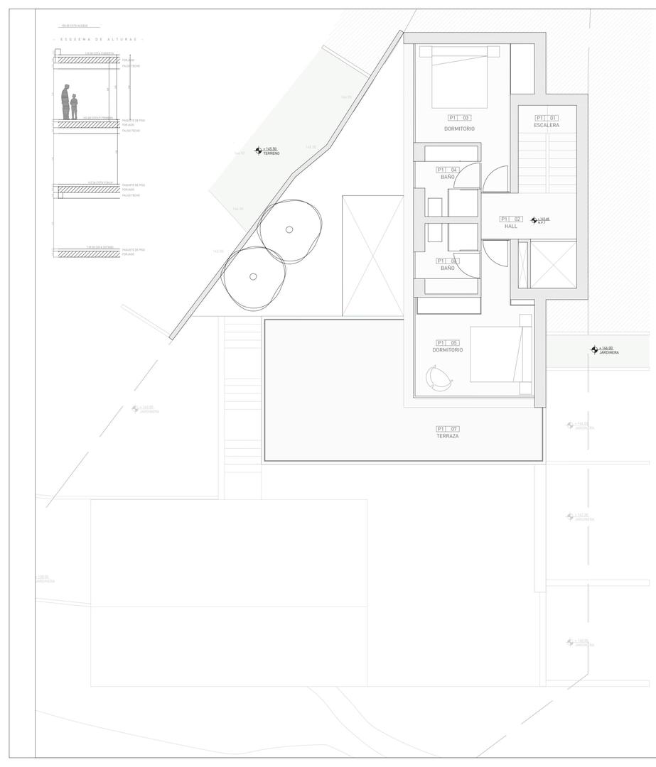
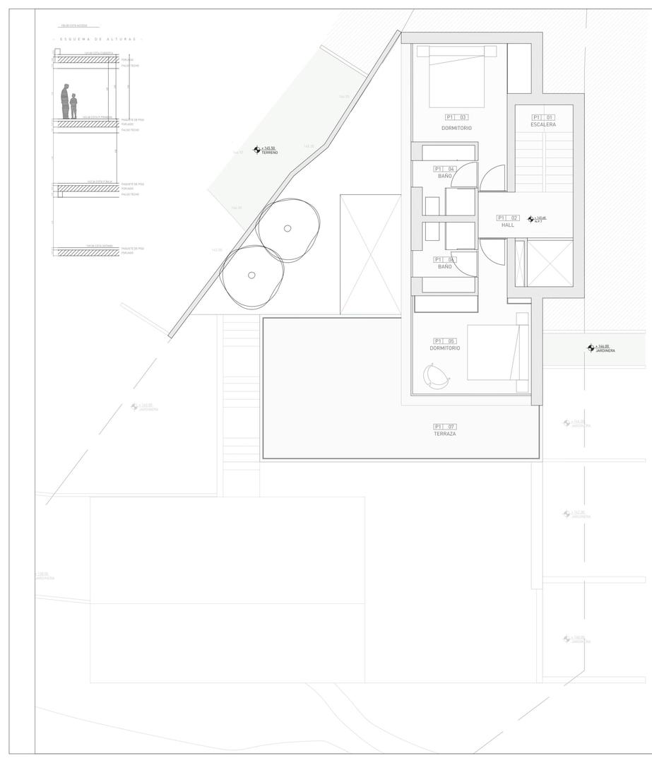
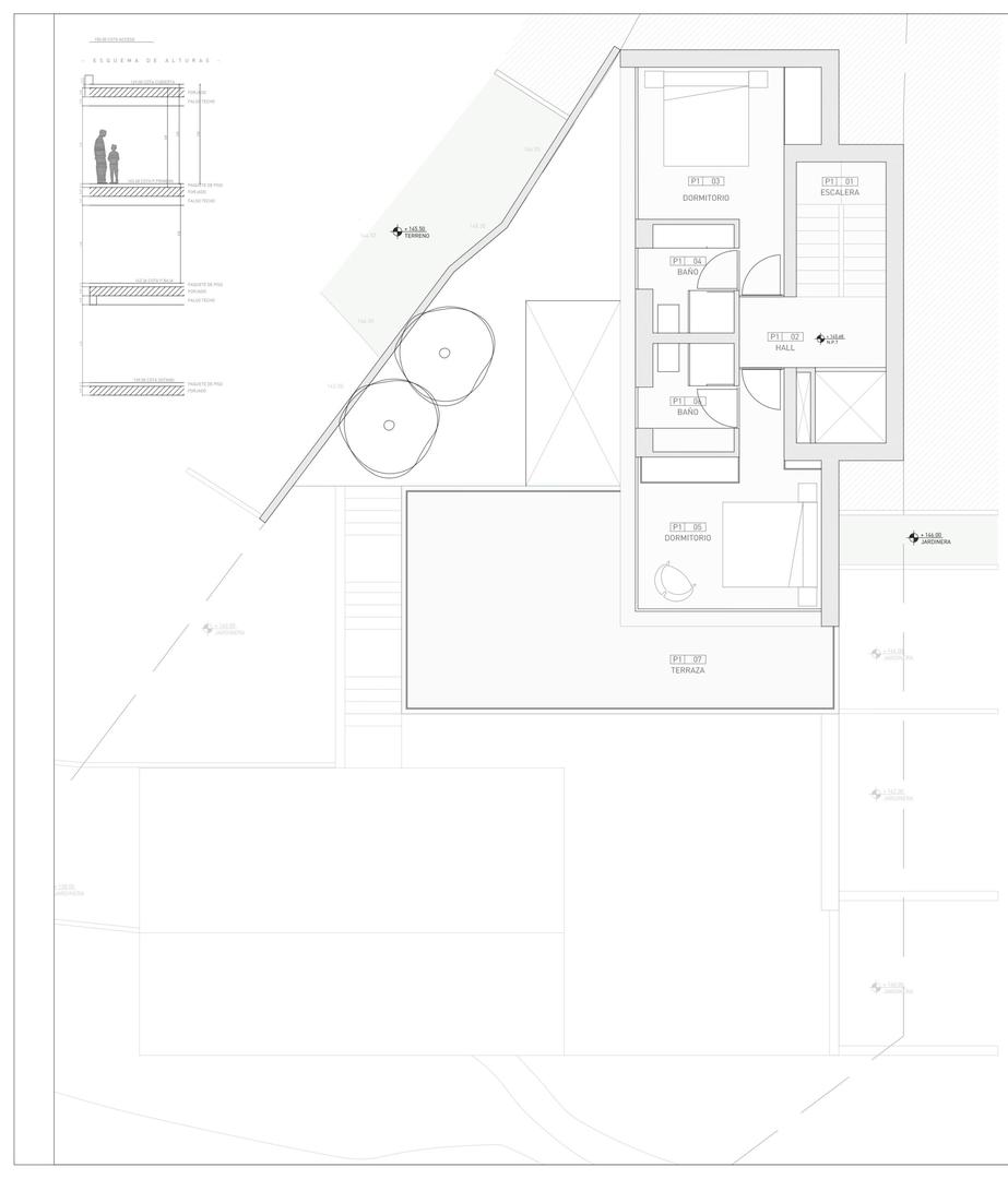
One floor below are two double bedrooms.
Each bedroom has an en suite bathroom and one bedroom has a large terrace.
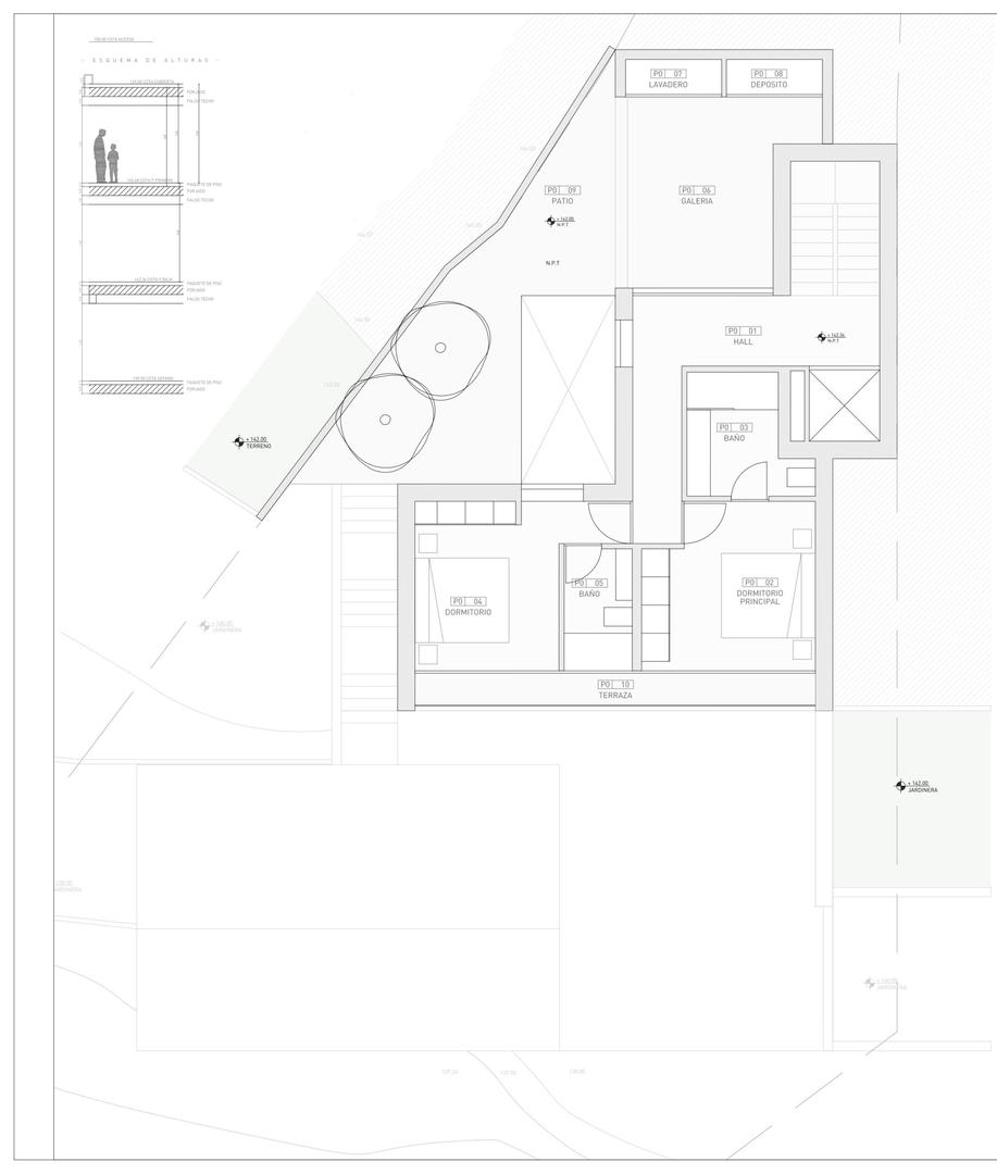
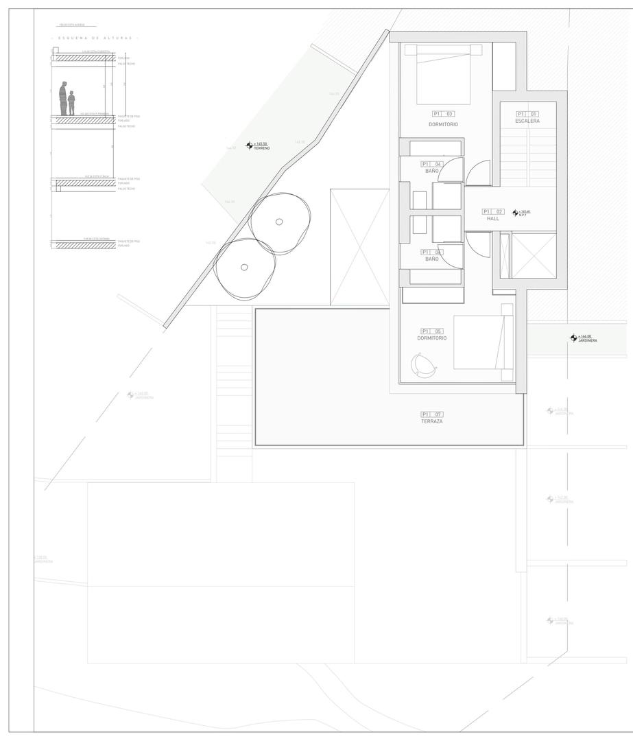
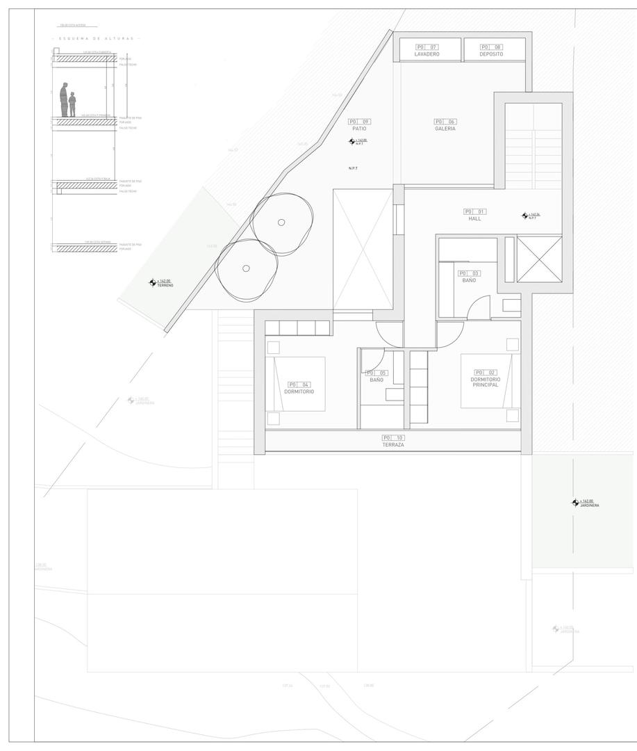
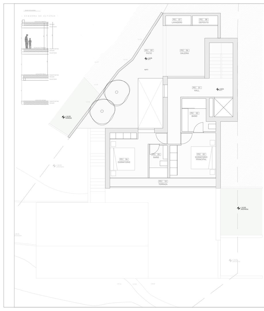
Another floor below are another two double bedrooms, both with en suite bathrooms and with access to a shared balcony.
On this floor there is also a covered terrace, a small garden, a laundry room and a technical room.
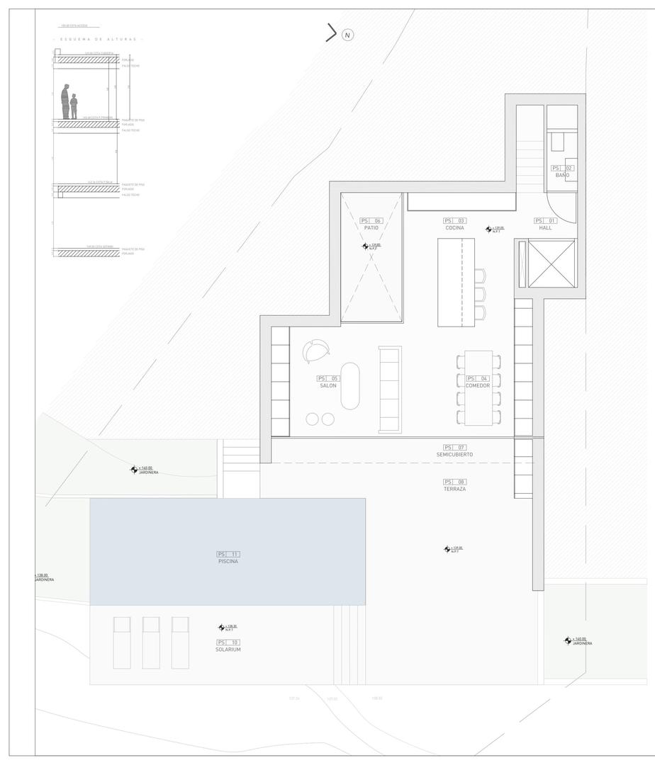
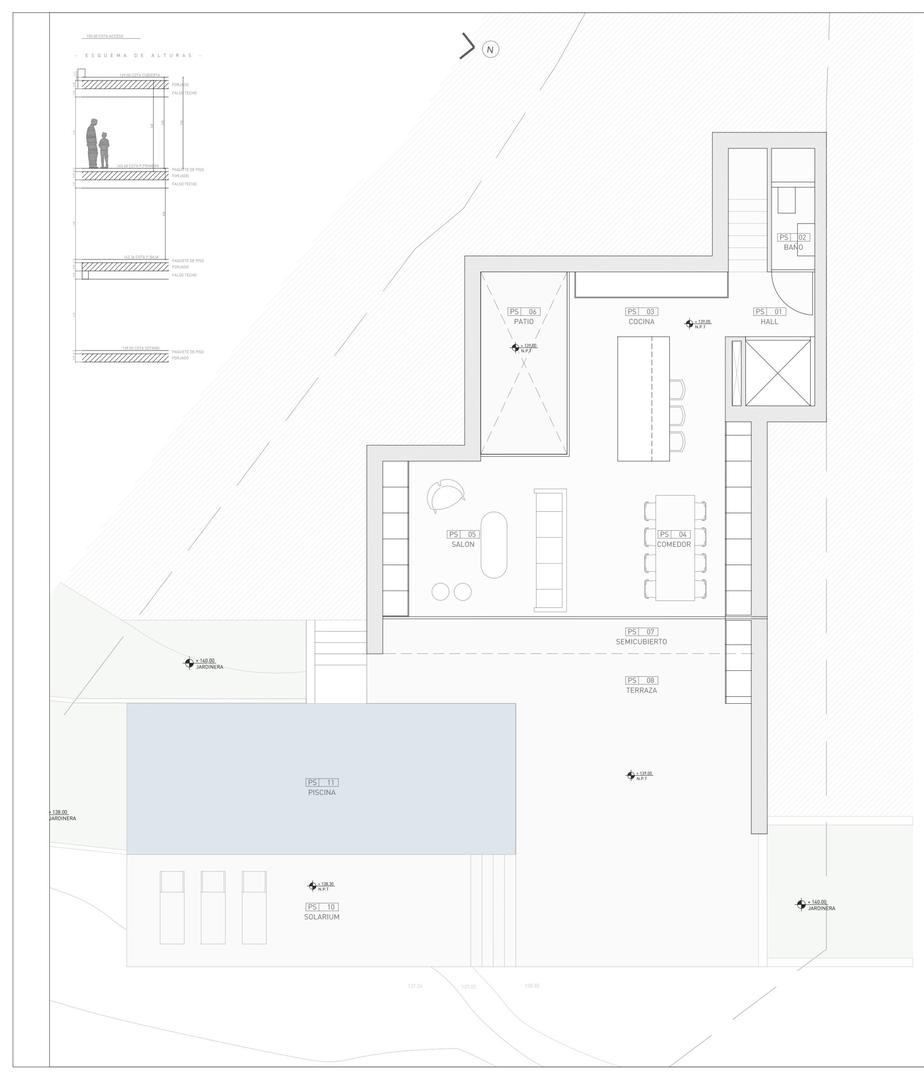
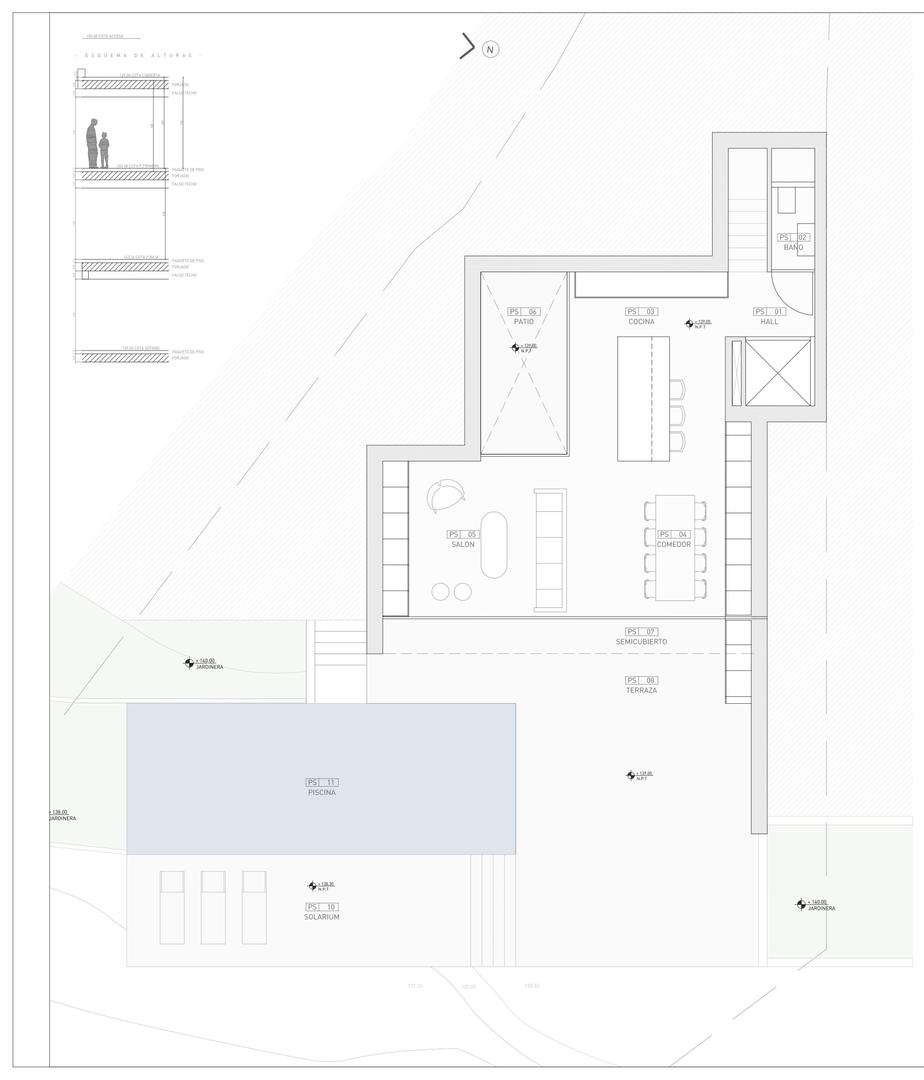
The first floor consists of a very spacious living room with an open kitchen with a large island and a guest toilet.
Outside there is a 3.5 x 10m swimming pool surrounded by a large terrace with a barbecue.
On the west side of the villa there is another patio, therefore on this floor there is not only natural light from the southeast but also from the west.
Through the large windows you can also enjoy the beautiful views from all floors.
The villa has underfloor heating and air conditioning.
The beautiful coast of Benissa is only 2 km away and offers several idyllic beaches perfect for sunbathing, snorkeling, etc.
Moreover, the villa is located in a very central location with regard to the surrounding villages and towns.
In just 10 minutes you can reach the large sandy beaches of Calpe as well as the historic center of Benissa.
And in about 20 minutes you are in the tourist port village of Moraira.
Diese moderne Villa befindet sich in Benissa und bietet einen atemberaubenden Blick über die Küste vom Cap D'or in Moraira bis zum Peñon de Ifach in Calpe.
Die Villa erstreckt sich über vier Etagen, die durch einen Aufzug verbunden sind.
Auf Straßenebene gibt es einen Parkplatz für zwei Autos.
Über eine Treppe gelangen Sie in die oberste Etage, wo sich eine Halle und die Treppe und der Aufzug zu den anderen Etagen befinden.
Es besteht die Möglichkeit, auch einen Aufzug vom Parkplatz zur Halle einzubauen, um maximalen Komfort zu schaffen.
Eine Etage tiefer befinden sich zwei Doppelschlafzimmer.
Jedes Schlafzimmer hat ein eigenes Badezimmer und eines der Schlafzimmer hat eine große Terrasse.
Eine Etage tiefer befinden sich zwei weitere Doppelschlafzimmer, beide mit eigenem Bad und mit Zugang zu einem gemeinsamen Balkon.
Auf dieser Etage gibt es auch eine überdachte Terrasse, einen kleinen Garten, eine Waschküche und einen Technikraum.
Das Erdgeschoss besteht aus einem sehr geräumigen Wohnzimmer mit einer offenen Küche mit einer großen Kochinsel und einer Gästetoilette.
Draußen gibt es einen 3,5 x 10 m großen Swimmingpool, der von einer großen Terrasse mit Grill umgeben ist.
An der Westseite der Villa befindet sich eine weitere Terrasse, so dass diese Etage nicht nur von Südosten, sondern auch von Westen her natürliches Licht erhält.
Durch die großen Fenster können Sie außerdem von allen Etagen aus die schöne Aussicht genießen.
Die Villa verfügt über eine Fußbodenheizung und eine Klimaanlage.
Die schöne Küste von Benissa ist nur 2 km entfernt und bietet mehrere idyllische Strände, die zum Sonnenbaden, Schnorcheln usw.
einladen.
Außerdem ist die Villa sehr zentral gelegen, was die umliegenden Dörfer und Städte betrifft.
In nur 10 Minuten erreichen Sie die großen Sandstrände von Calpe sowie das historische Zentrum von Benissa.
Und in knapp 20 Minuten sind Sie in dem touristischen Hafenort Moraira.
Esta moderna villa está situada en Benissa y ofrece impresionantes vistas de la costa, desde el Cap D'or en Moraira hasta el Peñón de Ifach en Calpe.
La villa se distribuye en cuatro plantas comunicadas por ascensor.
A nivel de calle, hay aparcamiento para dos coches.
Unas escaleras te llevan a la planta superior, donde hay un vestíbulo y las escaleras y el ascensor a las demás plantas.
Existe la posibilidad de instalar también un ascensor desde el aparcamiento hasta el vestíbulo para crear la máxima comodidad.
Un piso más abajo hay dos dormitorios dobles.
Cada dormitorio tiene un cuarto de baño en suite y uno de ellos tiene una gran terraza.
Otra planta más abajo hay otros dos dormitorios dobles, ambos con baño en suite y con acceso a un balcón compartido.
En esta planta también hay una terraza cubierta, un pequeño jardín, un lavadero y una sala técnica.
La planta baja consta de un salón muy espacioso con una cocina abierta con una gran isla de cocina y un aseo de invitados.
En el exterior, hay una piscina de 3,5 x 10 m rodeada de una gran terraza con barbacoa.
Hay otro patio en el lado oeste de la villa, por lo que esta planta no sólo tiene luz natural del sureste, sino también del oeste.
A través de los grandes ventanales, también puedes disfrutar de las hermosas vistas desde todas las plantas.
La villa tiene calefacción por suelo radiante y aire acondicionado.
La hermosa costa de Benissa está a sólo 2 km y ofrece varias playas idílicas perfectas para tomar el sol, bucear, etc.
Además, la villa está situada en un lugar muy céntrico con respecto a los pueblos y ciudades de los alrededores.
En sólo 10 minutos puedes llegar a las grandes playas de arena de Calpe, así como al centro histórico de Benissa.
Y en poco menos de 20 minutos estás en el turístico pueblo portuario de Moraira.
Deze moderne villa is gelegen in Benissa en biedt een adembenemend uitzicht over de kust van aan de Cap D'or in Moraira tot aan de Peñon de Ifach in Calpe.
De villa is verdeeld over vier verdiepen die verbonden zijn met een lift.
Op straatniveau is parkeerruimte voorzien voor twee wagens.
Via een trap bereik je de bovenste verdieping, waar zich een hal en de trap en de lift naar de andere verdiepingen bevindt.
Er is de mogelijkheid ook een lift te installeren van de parkeerruimte tot aan de hal om zo een maximaal comfort te creëren.
Eén verdieping lager bevinden zich twee dubbele slaapkamers.
Elke slaapkamer heeft een en suite badkamer en één slaapkamer heeft een groot terras.
Nog een verdieping lager bevinden zich nogmaals twee dubbele slaapkamers, beiden met een en suite badkamer en met toegang tot een gedeeld balkon.
Op deze verdieping is ook een overdekt terras, een kleine tuin, een wasruimte en een technische ruimte.
De benedenverdieping bestaat uit een zeer ruime woonkamer met een open keuken met een groot kookeiland en een gastentoilet.
Buiten is er een zwembad van 3.5 x 10m dat omringd wordt door een groot terras met een barbecue.
Aan de westkant van de villa is nog een patio, hierdoor is er op deze verdieping niet enkel natuurlijke lichtinval via het zuidoosten maar ook via het westen.
Via de grote ramen kun je bovendien van op alle verdiepen genieten van het prachtige uitzicht.
De villa is voorzien van vloerverwarming en airconditioning.
De prachtige kust van Benissa ligt op slechts 2 km afstand en biedt meerdere idyllische strandjes perfect voor te zonnen, snorkelen, etc.
Bovendien is de villa gelegen op een zeer centrale locatie met betrekking tot de omliggende dorpen en steden.
Op slechts 10 minuten bereik je de grote zandstranden van Calpe als ook historische centrum van Benissa.
En op een kleine 20 minuten ben je in het toeristische havendorpje Moraira.
Thinking of buying in Jávea? Here's what life is really like for foreign residents — the neighbourhoods, lifestyle, cost...
A comprehensive overview of the Spanish real estate market in 2026 — trends, hotspots, prices, and essential tips for in...
Considering living in El Mojón on the Costa Blanca? A practical, honest guide for retirees and second-home buyers explor...