New build villa for sale in Rafalet, JáveaThis villa will be ready by March 2026 (subject to change) and is located in the Rafalet urbanisation 3 km from Jávea beach.
The villa is located on a plot of 1085 m2 and has a built-up area of 329 m2 spread over three floors.
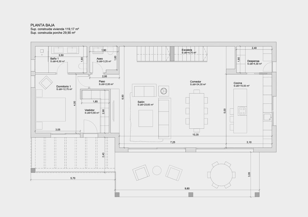
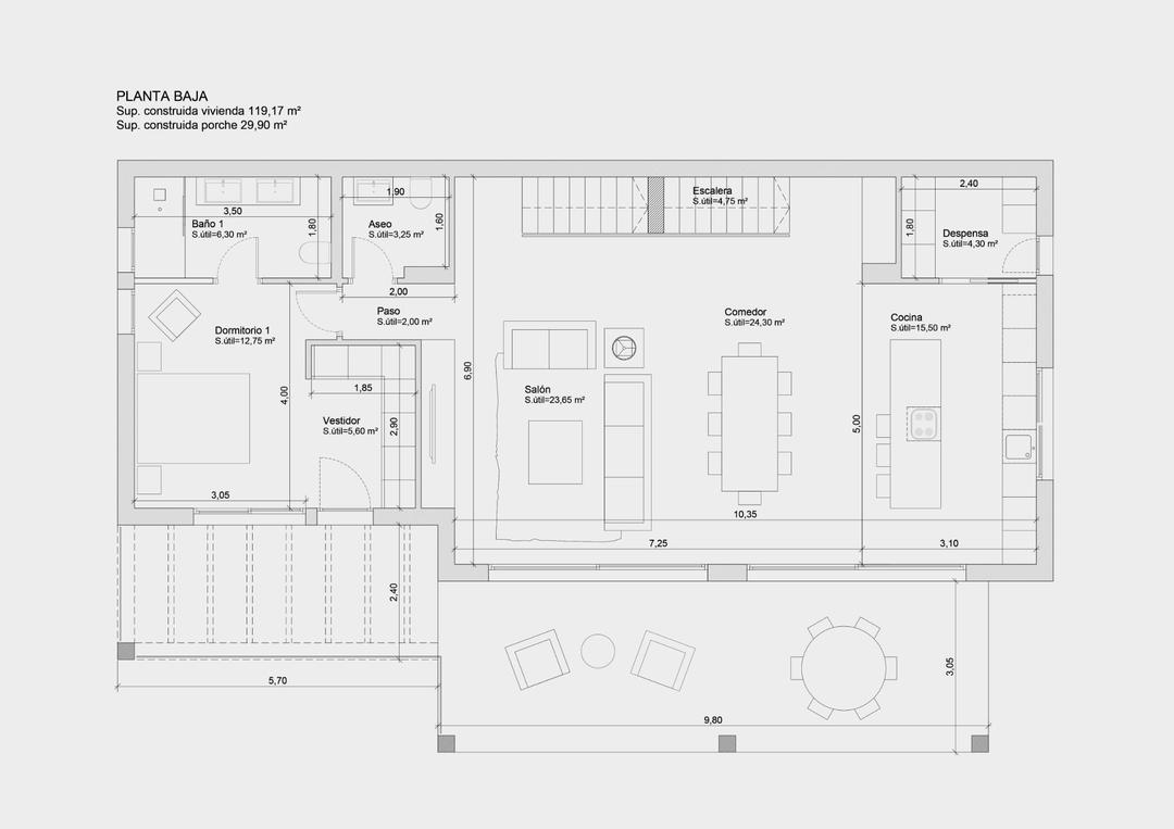
The ground floor consists of a spacious living-dining room with an open kitchen, a master bedroom with a dressing room and an en suite bathroom with double sinks and a guest toilet.
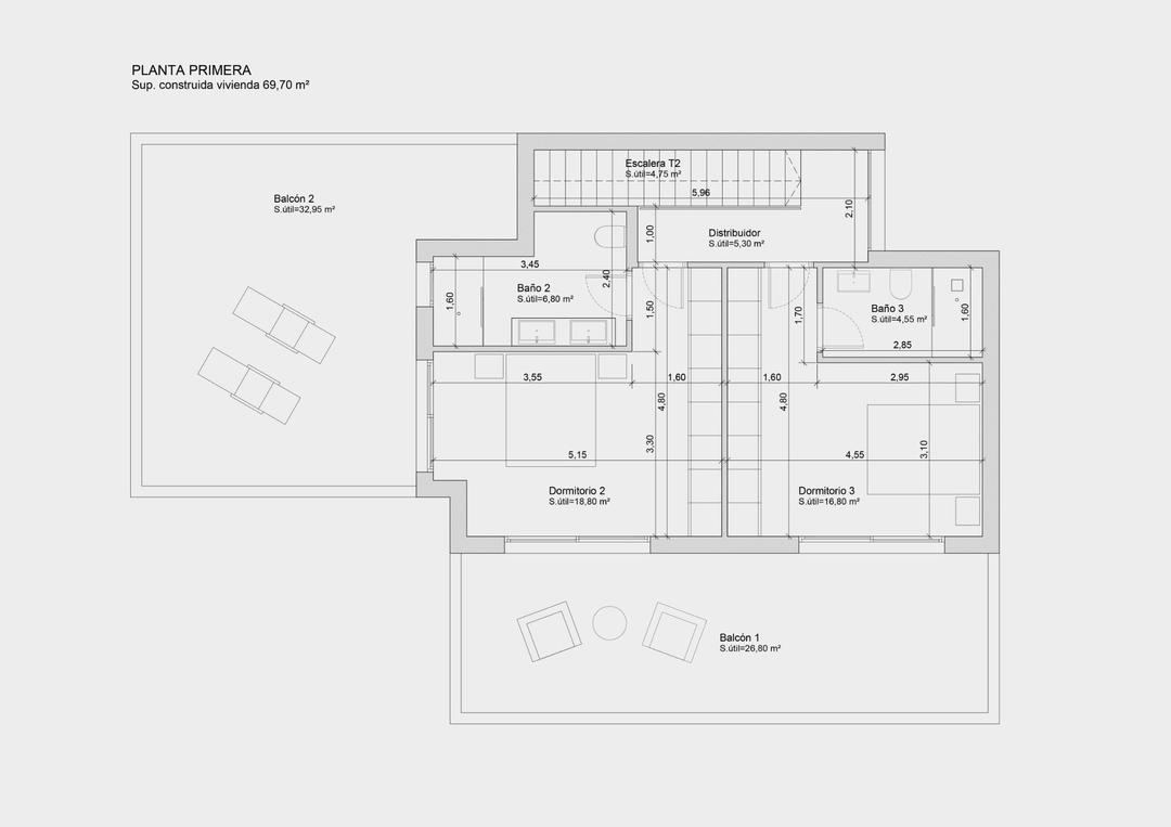
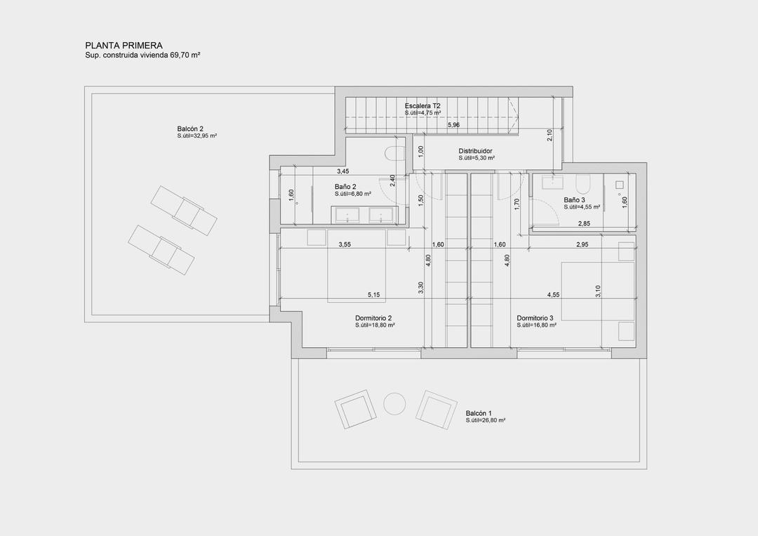
The upper floor consists of two spacious bedrooms, each with an en suite bathroom.
There are also two large terraces on this floor.
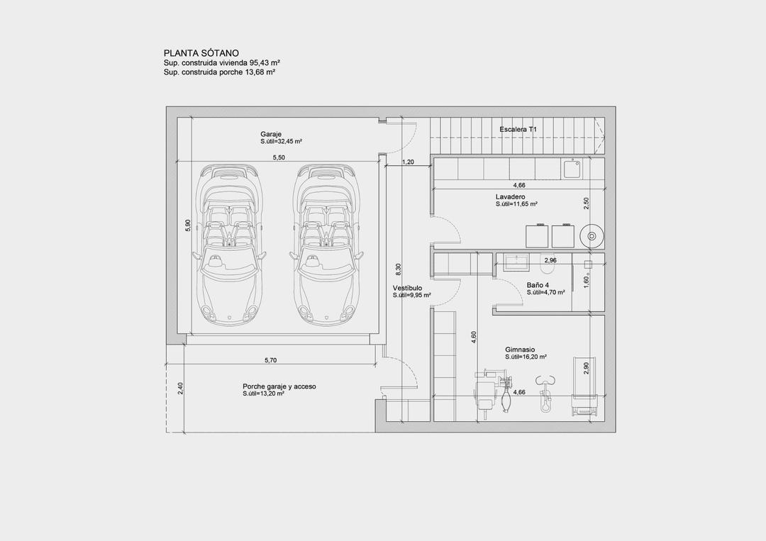
The semi-basement consists of a double garage, a laundry room, a bathroom and a gym.
Outside, there is a spacious covered terrace, a swimming pool with an outdoor shower surrounded by a sun terrace, a garden, a storage room and a driveway to the garage.
The urbansiation Rafalet is a stone's throw from Jávea Golf Club and at and 2 km from Jávea's historic centre.
The beach and port can be reached in a 10-minute drive.
Neubau-Villa zu verkaufen in Rafalet, JáveaDiese Villa wird bis März 2026 fertiggestellt (Änderungen vorbehalten) und befindet sich in der Urbanisation Rafalet, 3 km vom Strand von Jávea entfernt.
Die Villa befindet sich auf einem Grundstück von 1085 m2 und hat eine bebaute Fläche von 329 m2 auf drei Etagen verteilt.
Das Erdgeschoss besteht aus einem geräumigen Wohn-Esszimmer mit offener Küche, einem Hauptschlafzimmer mit Ankleideraum und eigenem Bad mit Doppelwaschbecken und einem Gäste-WC.
Das Obergeschoss besteht aus zwei geräumigen Schlafzimmern, jedes mit eigenem Bad.
Auf dieser Etage befinden sich auch zwei große Terrassen.
Das Halbuntergeschoss besteht aus einer Doppelgarage, einer Waschküche, einem Badezimmer und einem Fitnessraum.
Im Außenbereich gibt es eine große überdachte Terrasse, einen Swimmingpool mit Außendusche, der von einer Sonnenterrasse umgeben ist, einen Garten, einen Abstellraum und eine Zufahrt zur Garage.
Die Urbanisation Rafalet liegt nur einen Steinwurf vom Golfclub Jávea und 2 km vom historischen Zentrum von Jávea entfernt.
Den Strand und den Hafen erreichen Sie in 10 Fahrminuten.
La playa y el puerto están a 10 minutos en coche.
Villa de nueva construcción en venta en Rafalet, JáveaEsta villa estará lista en marzo de 2026 (sujeto a cambios) y está situada en la urbanización Rafalet a 3 km de la playa de Jávea.
La villa se ubica en una parcela de 1085 m2 y tiene una superficie construida de 329 m2 distribuidos en tres plantas.
La planta baja consta de un amplio salón-comedor con cocina abierta, un dormitorio principal con vestidor y baño en suite con doble lavabo y un aseo de invitados.
La planta superior consta de dos amplios dormitorios, cada uno con baño en suite.
También hay dos grandes terrazas en esta planta.
El semisótano consta de un garaje doble, un lavadero, un cuarto de baño y un gimnasio.
En el exterior hay una amplia terraza cubierta, una piscina con ducha exterior rodeada de una terraza solarium, un jardín, un trastero y un camino de entrada al garaje.
La urbanización Rafalet está a un paso del Club de Golf Jávea y a 2 km del centro histórico de Jávea.
Nieuwbouw villa te koop in Rafalet, JáveaDeze villa zal klaar zijn tegen maart 2026 (onder voorbehoud) en is gelegen in de urbanisatie Rafalet op 3 km van het strand van Jávea.
De villa is gelegen op een perceel van 1085 m2 en heeft een bebouwde oppervlakte van 329 m2 verdeeld over drie verdiepen.
De benedenverdieping bestaat uit een ruime woon-eetkamer met een open keuken, een hoofdslaapkamer met een dressing en een en suite badkamer met dubbele wastafel en een gastentoilet.
De bovenverdieping bestaat uit twee ruime slaapkamers, elke met een en suite badkamer.
Op deze verdieping zijn er ook twee grote terrassen.
De semi-kelderverdieping bestaat uit een dubbele garage, een wasruimte, een badkamer en een gym.
Buiten is er een ruim overdekt terras, een zwembad met een buitendouche omringd door een zonneterras, een tuin, een opslagruimte en een oprijlaan naar de garage.
De urbansiatie Rafalet ligt op een steenworp afstand van de golfclub van Jávea en op en op 2 km van het historisch centrum van Jávea.
Het strand en de haven zijn op 10 minuten rijden bereikbaar.
Thinking of buying in Jávea? Here's what life is really like for foreign residents — the neighbourhoods, lifestyle, cost...
A comprehensive overview of the Spanish real estate market in 2026 — trends, hotspots, prices, and essential tips for in...
Considering living in El Mojón on the Costa Blanca? A practical, honest guide for retirees and second-home buyers explor...