This beautiful Mediterranean new build villa is located on a sloping plot of 1079 m2 which coincides with an excellent south-east orientation and offers beautiful views of the sea and the Peñon de Ifach.
The exceptional thing about this plot is that it borders rustic land, so we have a house on urban land with the feeling of living in a Mediterranean forest with sea views.
The decision was made to move as little earth as possible and to blend the villa into the natural relief of the plot.
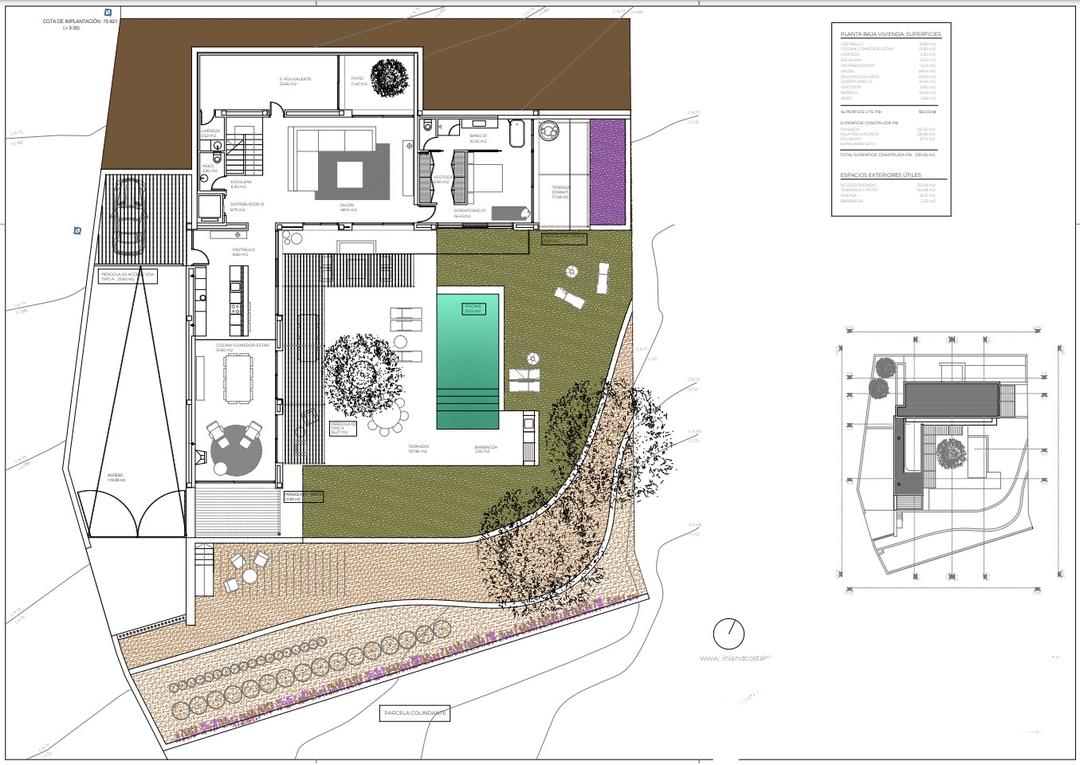
The house is designed in an L-shape which frees up the maximum space within the plot.
One wing has two floors, the other only one.
All rooms have a south or east orientation and enjoy extraordinary views of the sea and a Mediterranean forest.
The house has a strong link with the outdoor spaces, the interior merges with the outside and this brings nature into the house.
The outdoor areas are occupied most months of the year as an extension of this house.
In the east wing of the ground floor there is the heart of the house, the kitchen overlooking the garden and pool, the dining room and a living room with fireplace, all this space is connected to the outside with bright, traditional Mediterranean verandas covered with reed.
The south wing houses on the ground floor an attractive and spacious living room that is very open to the outside, but also opens onto an English patio, which gives us exceptional cross ventilation and great spatial richness.
This light source also illuminates a multi-functional space, ideal for a music room, gym, yoga practice, games room... or the owner's dream.
From the large living room you can access the master suite, giving you independence from the rest of the upstairs bedrooms.
This bedroom has an attractive layout, where the dressing room and the bathroom connect in a circular manner without having to pass through the rest area, but the most attractive aspect is without a doubt the private connection from this suite with again a covered terrace with a Mediterranean veranda and view of the pine forest and the sea.
leads, with two bedrooms and three bathrooms, linked to a continuous balcony overlooking the sea and the Ifach Rock.
Finally, a living area (which can be converted into a third bedroom) with access to two opposite terraces, again cross ventilation runs through the house.
More information on request.
Diese wunderschöne mediterrane Neubauvilla befindet sich auf einem 1079 m2 großen Hanggrundstück, das mit einer hervorragenden Südostausrichtung übereinstimmt und einen wunderschönen Blick auf das Meer und den Peñon de Ifach bietet.
Das Außergewöhnliche an diesem Grundstück ist, dass es an rustikales Land grenzt, sodass wir ein Haus auf Stadtgrundstück haben, mit dem Gefühl, in einem mediterranen Wald mit Meerblick zu leben.
Es wurde beschlossen, so wenig Erde wie möglich zu bewegen und die Villa in das natürliche Relief des Grundstücks einzupassen.
Das Haus ist in L-Form gestaltet, was den größtmöglichen Platz auf dem Grundstück freigibt.
Ein Flügel hat zwei Stockwerke, der andere nur ein.
Alle Zimmer sind nach Süden oder Osten ausgerichtet und genießen einen außergewöhnlichen Blick auf das Meer und einen mediterranen Wald.
Das Haus hat eine starke Verbindung zu den Außenräumen, der Innenraum verschmilzt mit der Außenwelt und bringt so die Natur ins Haus.
Als Erweiterung dieses Hauses sind die Außenbereiche fast das ganze Jahr über bewohnt.
Im Ostflügel des Erdgeschosses befindet sich das Herzstück des Hauses, die Küche mit Blick auf den Garten und den Pool, das Esszimmer und ein Wohnzimmer mit Kamin.
All dieser Raum ist mit der Außenseite durch helle, traditionelle mediterrane überdachte Veranden verbunden Schilf.
Der Südflügel beherbergt im Erdgeschoss ein attraktives und geräumiges Wohnzimmer, das nach außen sehr offen ist, sich aber auch zu einem englischen Patio öffnet, der uns eine außergewöhnliche Querlüftung und großen Raumreichtum bietet.
Diese Lichtquelle beleuchtet auch einen multifunktionalen Raum, ideal für ein Musikzimmer, ein Fitnessstudio, eine Yoga-Übung, ein Spielzimmer ... oder den Traum des Besitzers.
Vom großen Wohnzimmer aus haben Sie Zugang zur Master-Suite und sind so unabhängig von den übrigen Schlafzimmern im Obergeschoss.
Dieses Schlafzimmer hat einen attraktiven Grundriss, bei dem das Ankleidezimmer und das Badezimmer kreisförmig miteinander verbunden sind, ohne dass man durch den Ruhebereich gehen muss.
Der attraktivste Aspekt ist jedoch zweifellos die private Verbindung von dieser Suite mit wiederum einer überdachten Terrasse mit einem Mediterrane Veranda und Blick auf den Pinienwald und das Meer.
führt, mit zwei Schlafzimmern und drei Badezimmern, verbunden mit einem durchgehenden Balkon mit Blick auf das Meer und den Ifach-Felsen.
Schließlich verläuft ein Wohnbereich (der in ein drittes Schlafzimmer umgewandelt werden kann) mit Zugang zu zwei gegenüberliegenden Terrassen, wiederum Querlüftung, durch das Haus.
Weitere Informationen auf Anfrage.
Esta hermosa villa mediterránea de nueva construcción está ubicada en una parcela inclinada de 1079 m2 que coincide con una excelente orientación sureste y ofrece hermosas vistas al mar y al Peñón de Ifach.
Lo excepcional de esta parcela es que linda con terreno rústico, por lo que tenemos una casa en suelo urbano con la sensación de vivir en un bosque mediterráneo con vistas al mar.
Se tomó la decisión de mover la menor cantidad de tierra posible y integrar la villa en el relieve natural del terreno.
La casa está diseñada en forma de L lo que libera el máximo espacio dentro de la parcela.
Un ala tiene dos plantas, la otra sólo una.
Todas las habitaciones tienen orientación sur o este y disfrutan de extraordinarias vistas al mar y al bosque mediterráneo.
La casa tiene un fuerte vínculo con los espacios exteriores, el interior se funde con el exterior y esto trae la naturaleza a la casa.
Las zonas exteriores están ocupadas la mayor parte de los meses del año como una extensión de esta casa.
En el ala este de la planta baja se encuentra el corazón de la casa, la cocina con vistas al jardín y la piscina, el comedor y un salón con chimenea, todo este espacio está conectado al exterior con luminosas y tradicionales terrazas mediterráneas cubiertas con Junco.
El ala sur alberga en planta baja un atractivo y amplio salón muy abierto al exterior, pero también a un patio inglés, lo que nos aporta una excepcional ventilación cruzada y una gran riqueza espacial.
Esta fuente de luz también ilumina un espacio multifuncional, ideal para una sala de música, gimnasio, práctica de yoga, sala de juegos... o el sueño del propietario.
Desde el gran salón se accede a la suite principal, dándole independencia del resto de dormitorios de arriba.
Este dormitorio tiene una atractiva distribución, donde el vestidor y el baño se conectan de forma circular sin tener que pasar por la zona de descanso, pero lo más atractivo es sin duda la conexión privada de esta suite con nuevamente una terraza cubierta con Terraza mediterránea y vistas al pinar y al mar.
conduce, de dos dormitorios y tres baños, comunicado con un balcón corrido con vistas al mar y al peñón de Ifach.
Finalmente, una zona de estar (que se puede convertir en un tercer dormitorio) con acceso a dos terrazas opuestas, nuevamente ventilación cruzada recorre la casa.
Más información bajo petición.
Deze prachtige mediterrane nieuwbouwvilla ligt op een glooiend perceel van 1079 m2 dat samenvalt met een uitstekende zuidoostelijke oriëntatie en een prachtig uitzicht biedt op de zee en de Peñon de Ifach.
Het uitzonderlijke van dit perceel is dat het grenst aan rustiek land, dus we hebben een huis op stedelijke grond met het gevoel in een mediterraan bos te wonen met uitzicht op zee.
Er is ervoor gekozen om zo weinig mogelijk aarde te verplaatsen en de villa te laten opgaan in het natuurlijk reliëf van het grondstuk.
Het huis is ontworpen in een L-vorm waardoor de maximale ruimte binnen het perceel wordt vrijgemaakt.
Eén vleugel heeft twee verdiepingen, de andere slechts één.
Alle kamers hebben een zuid- of oostoriëntatie en genieten van een buitengewoon uitzicht op de zee en een mediterraan bos.
De woning heeft een sterke link met de buitenruimtes, het interieur versmelt met de buitenkant en hierdoor komt de natuur in de woning.
De buitenruimtes worden de meeste maanden van het jaar bewoond als verlengstuk van dit huis.
In de oostelijke vleugel van de begane grond bevindt zich het hart van het huis, de keuken met uitzicht op de tuin en het zwembad, de eetkamer en een woonkamer met open haard, al deze ruimte is met buiten verbonden met lichte, traditionele mediterrane veranda's bedekt met riet.
De zuidvleugel herbergt op de begane grond een aantrekkelijke en ruime woonkamer die zeer open is naar buiten, maar ook uitkomt op een Engelse patio, wat ons een uitzonderlijke dwarsventilatie en een grote ruimtelijke rijkdom geeft.
Deze lichtbron verlicht ook een multifunctionele ruimte, ideaal voor een muziekkamer, sportschool, yogapraktijk, speelkamer... of de droom van de eigenaar.
Vanuit de grote woonkamer heeft u toegang tot de hoofdsuite, waardoor u onafhankelijk wordt van de rest van de slaapkamers op de bovenverdieping.
Deze slaapkamer heeft een aantrekkelijke indeling, waarbij de kleedkamer en de badkamer cirkelvormig op elkaar aansluiten zonder dat ze door de rustruimte hoeven te gaan, maar het meest aantrekkelijke aspect is zonder twijfel de privéverbinding vanuit deze suite met wederom een overdekt terras met een mediterrane veranda en uitzicht op het dennenbos en de zee.
leidt, met twee slaapkamers en drie badkamers, gekoppeld aan een doorlopend balkon met uitzicht op de zee en de Ifach.
Rock, ten slotte, een woongedeelte (dat kan worden omgebouwd tot een derde slaapkamer) met toegang tot twee tegenover elkaar gelegen terrassen, wederom loopt de dwarsventilatie door het huis.
Meer informatie op aanvraag.
Thinking of buying in Jávea? Here's what life is really like for foreign residents — the neighbourhoods, lifestyle, cost...
A comprehensive overview of the Spanish real estate market in 2026 — trends, hotspots, prices, and essential tips for in...
Considering living in El Mojón on the Costa Blanca? A practical, honest guide for retirees and second-home buyers explor...