Be enchanted by this stylish villa project with private pool, located in a modern residential area a stone's throw from the idyllic La Fustera beach.
This project combines contemporary design, high-quality finishes and an excellent location, making it an ideal choice for those looking for comfort and luxury on the Costa Blanca.
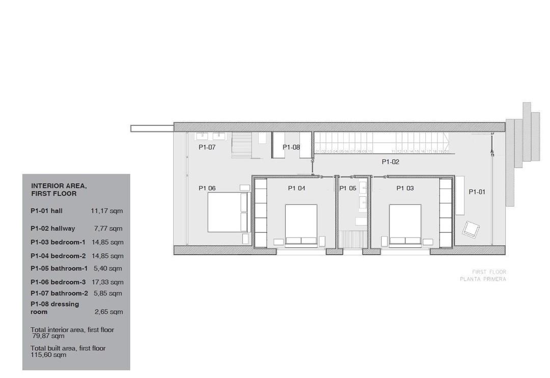
The villa offers a smart layout spread over two floors.
On the first floor you will find a spacious and bright living-dining room, which thanks to large sliding windows gives direct access to the terrace and pool area.
The modern open kitchen is fully integrated into the living space, making cooking and being together perfect.
A sliding glass door leads to a cozy 38 m² patio, a peaceful place to relax or enjoy the outdoors.
There is also a stylish guest toilet, adding to the comfort and functionality of this floor.
Upstairs is the master bedroom with its own en suite bathroom, a luxurious retreat to fully unwind.
In addition to the master bedroom, there are two spacious double bedrooms that share a modern bathroom, ideal for guests or family members.
The large windows in all bedrooms provide plenty of natural light and a connection to the surrounding nature.
The villa project is designed with attention to detail and use of high quality materials.
All rooms are equipped with an efficient air conditioning system with independent temperature control, ensuring an optimal indoor climate.
The double-glazed windows with thermal bridge break and porcelain floors - available in cement gray or beige - add to the modern and high-quality character of the home.
The location of this villa is simply perfect.
The flat plot is located in a modern residential area with excellent infrastructure and larger than average plots, offering more privacy and space.
Only 1.9 km away from the sandy beach La Fustera, you will enjoy a unique combination of tranquility and proximity to amenities, restaurants and recreation.
This villa is a unique opportunity to invest in a modern dream home perfectly suited to Mediterranean living.
With its clean lines, thoughtful design and beautiful location, this property offers everything you need for a luxurious and relaxing life on the Costa Blanca.
Contact us today for more information or to discover the possibilities of this special project!
Lassen Sie sich von diesem eleganten und stilvollen Villenprojekt mit privatem Pool verzaubern, das in einer modernen Wohngegend nur einen Steinwurf vom idyllischen Strand von La Fustera entfernt liegt.
Diese Anlage kombiniert zeitgenössisches Design, hochwertige Ausstattung und eine hervorragende Lage und ist damit die ideale Wahl für alle, die Komfort und Luxus an der Costa Blanca suchen.
Die Villa bietet eine intelligente Aufteilung über zwei Etagen.
Im Erdgeschoss finden Sie ein geräumiges und helles Wohn-Esszimmer, das dank der großen Schiebefenster direkten Zugang zur Terrasse und zum Pool bietet.
Die moderne, offene Küche ist vollständig in den Wohnbereich integriert, so dass Kochen und Zusammensein perfekt miteinander vereinbar sind.
Eine Glasschiebetür führt zu einer gemütlichen 38 m² großen Terrasse, einem ruhigen Ort zum Entspannen oder um die Natur zu genießen.
Außerdem gibt es eine stilvolle Gästetoilette, die den Komfort und die Funktionalität dieser Etage noch erhöht.
Im Obergeschoss befindet sich das Hauptschlafzimmer mit eigenem Bad, ein luxuriöser Rückzugsort, an dem Sie sich vollkommen entspannen können.
Neben dem Hauptschlafzimmer befinden sich zwei geräumige Doppelschlafzimmer, die sich ein modernes Badezimmer teilen, ideal für Gäste oder Familienmitglieder.
Die großen Fenster in allen Schlafzimmern sorgen für viel natürliches Licht und eine Verbindung zur umliegenden Natur.
Das Villenprojekt wurde mit viel Liebe zum Detail und unter Verwendung von hochwertigen Materialien entworfen.
Alle Räume sind mit einer effizienten Klimaanlage mit unabhängiger Temperaturregelung ausgestattet, die für ein optimales Raumklima sorgt.
Die doppelt verglasten Fenster mit Wärmebrückenunterbrechung und die Porzellanböden - erhältlich in Zementgrau oder Beige - tragen zum modernen und hochwertigen Charakter der Immobilie bei.
Die Lage dieser Villa ist einfach perfekt.
Das flache Grundstück befindet sich in einem modernen Wohngebiet mit ausgezeichneter Infrastruktur und überdurchschnittlich großen Grundstücken, die mehr Privatsphäre und Platz bieten.
Nur 1,9 km vom Sandstrand La Fustera entfernt, genießen Sie eine einzigartige Kombination aus Ruhe und Nähe zu Annehmlichkeiten, Restaurants und Freizeitangeboten.
Diese Villa ist eine einzigartige Gelegenheit, in ein modernes Traumhaus zu investieren, das sich perfekt für das mediterrane Leben eignet.
Mit ihren klaren Linien, dem durchdachten Design und der schönen Lage bietet diese Immobilie alles, was Sie für ein luxuriöses und entspanntes Leben an der Costa Blanca brauchen.
Kontaktieren Sie uns noch heute für weitere Informationen oder um die Möglichkeiten dieses besonderen Projekts zu entdecken!
Déjate seducir por este elegante y estiloso proyecto de chalet con piscina privada, situado en una moderna zona residencial a tiro de piedra de la idílica playa de La Fustera.
Este proyecto combina diseño contemporáneo, acabados de alta calidad y una excelente ubicación, lo que la convierte en una opción ideal para quienes buscan comodidad y lujo en la Costa Blanca.
La villa ofrece una elegante distribución en dos plantas.
En la planta baja encontrarás un amplio y luminoso salón-comedor que, gracias a grandes ventanales correderos, da acceso directo a la terraza y la piscina.
La moderna cocina abierta está totalmente integrada en el salón, lo que hace que cocinar y estar juntos sean perfectamente compatibles.
Una puerta corredera de cristal conduce a un acogedor patio de 38 m², un lugar tranquilo para relajarse o disfrutar del aire libre.
También hay un elegante aseo de invitados, que añade comodidad y funcionalidad a esta planta.
Arriba está el dormitorio principal con su propio cuarto de baño en suite, un lujoso refugio para desconectar por completo.
Junto al dormitorio principal hay dos amplios dormitorios dobles que comparten un moderno cuarto de baño, ideal para invitados o familiares.
Los grandes ventanales de todos los dormitorios proporcionan mucha luz natural y una conexión con la naturaleza circundante.
El proyecto de la villa se ha diseñado prestando atención a los detalles y utilizando materiales de alta calidad.
Todas las habitaciones están equipadas con un eficaz sistema de aire acondicionado con control independiente de la temperatura, que garantiza un clima interior óptimo.
Las ventanas de doble acristalamiento con rotura de puente térmico y los suelos de porcelana -disponibles en gris cemento o beige- contribuyen al carácter moderno y de alta calidad de la propiedad.
La ubicación de esta villa es perfecta.
La parcela llana está en una moderna zona residencial con excelentes infraestructuras y parcelas más grandes que la media, lo que ofrece más privacidad y espacio.
A sólo 1,9 km de la playa de arena La Fustera, disfrutarás de una combinación única de tranquilidad y proximidad a servicios, restaurantes y ocio.
Esta villa es una oportunidad única de invertir en una moderna casa de ensueño perfectamente adaptada a la vida mediterránea.
Con sus líneas limpias, su cuidado diseño y su hermosa ubicación, esta propiedad ofrece todo lo que necesitas para una vida lujosa y relajada en la Costa Blanca.¡Ponte en contacto con nosotros hoy mismo para obtener más información o para descubrir las posibilidades de este proyecto especial!
Laat je betoveren door dit strakke en stijlvolle villaproject met privézwembad, gelegen in een moderne woonwijk op een steenworp afstand van het idyllische strand La Fustera.
Dit project combineert hedendaags design, hoogwaardige afwerking en een uitstekende ligging, waardoor het een ideale keuze is voor wie op zoek is naar comfort en luxe aan de Costa Blanca.
De villa biedt een slimme indeling verdeeld over twee verdiepingen.
Op de benedenverdieping vind je een ruime en lichte woon-eetkamer, die dankzij grote schuiframen direct toegang geeft tot het terras en het zwembad.
De moderne open keuken is volledig geïntegreerd in de leefruimte, waardoor koken en samenzijn perfect samengaan.
Een glazen schuifdeur leidt naar een gezellige patio van 38 m², een rustgevende plek om te ontspannen of te genieten van het buitenleven.
Daarnaast is er een stijlvol gastentoilet, wat bijdraagt aan het comfort en de functionaliteit van deze verdieping.
Op de bovenverdieping bevindt zich de hoofdslaapkamer met een eigen en suite badkamer, een luxe toevluchtsoord om volledig tot rust te komen.
Naast de hoofdslaapkamer zijn er twee ruime tweepersoonsslaapkamers die een moderne badkamer delen, ideaal voor gasten of gezinsleden.
De grote raampartijen in alle slaapkamers zorgen voor veel natuurlijk licht en een verbinding met de omringende natuur.
Het villaproject is ontworpen met oog voor detail en gebruik van hoogwaardige materialen.
Alle kamers zijn voorzien van een efficiënte airconditioninginstallatie met onafhankelijke temperatuurregeling, wat zorgt voor een optimaal binnenklimaat.
De dubbele beglazing met koudebrugonderbreking en porseleinen vloeren – beschikbaar in cementgrijs of beige – dragen bij aan het moderne en hoogwaardige karakter van de woning.
De ligging van deze villa is simpelweg perfect.
Het vlakke perceel bevindt zich in een moderne woonwijk met uitstekende infrastructuur en grotere percelen dan gemiddeld, wat meer privacy en ruimte biedt.
Slechts 1,9 km verwijderd van het zandstrand La Fustera, geniet je van een unieke combinatie van rust en nabijheid van voorzieningen, restaurants en recreatie.
Deze villa is een unieke kans om te investeren in een modern droomhuis dat perfect aansluit bij het mediterrane leven.
Met zijn strakke lijnen, doordachte ontwerp en prachtige locatie biedt deze woning alles wat je nodig hebt voor een luxueus en ontspannen leven aan de Costa Blanca.
Neem vandaag nog contact met ons op voor meer informatie of om de mogelijkheden van dit bijzondere project te ontdekken!
Thinking of buying in Jávea? Here's what life is really like for foreign residents — the neighbourhoods, lifestyle, cost...
A comprehensive overview of the Spanish real estate market in 2026 — trends, hotspots, prices, and essential tips for in...
Considering living in El Mojón on the Costa Blanca? A practical, honest guide for retirees and second-home buyers explor...