NEW BUILD VILLAS IN FINESTRAT New Build project of 10 modern design villas, in a natural setting with views of the sea and the mountains, near the Puig Campana golf course, and a short distance from the towns of Finestrat and Benidorm.
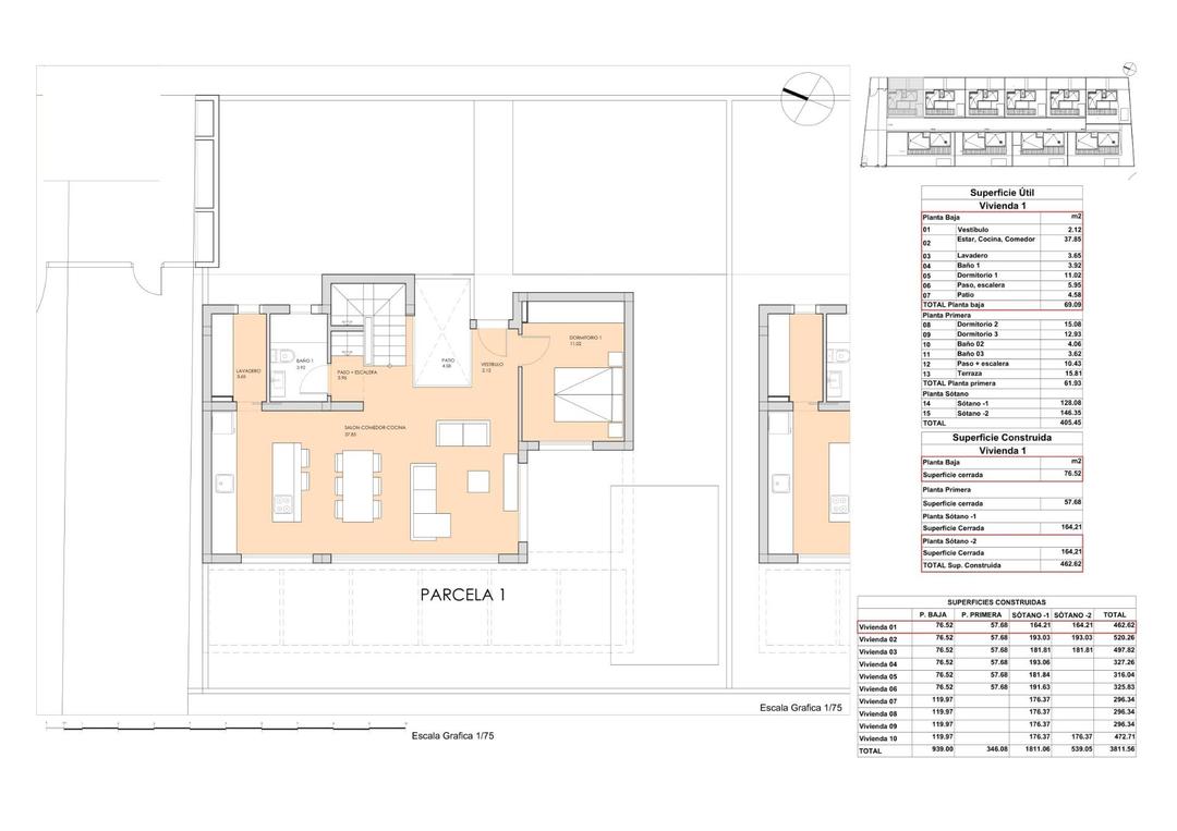
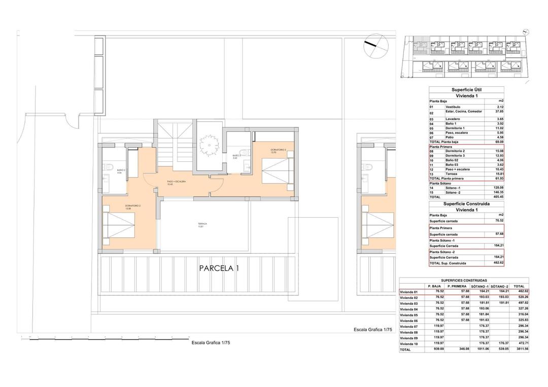
The project will be divided into two construction phases, which in turn include two types of homes, with 1 or 2 floors, 3 double bedrooms, 2 or 3 complete bathrooms, living-dining room with integrated kitchen, laundry room, large terrace and garden, private pool, outdoor parking, 1 or 2 multipurpose basements and in some models closed underground garage.
An options for a solarium at an extra cost.
Villas built with the best qualities and latest advances in construction, among others: - Glass railings that do not break the continuity of the views.
- First quality porcelain stoneware flooring.
- Armoured entrance door.
- Aluminium exterior carpentry with thermal bridge break and double insulating glass with low emissivity with air chamber and safety in areas at risk of breakage.
- Smooth interior carpentry, made of white lacquered wood with stainless steel handles and fittings.
- Fully equipped sliding wardrobes and dressing rooms.
- Production of domestic hot water through a heat pump system with a 100L accumulator tank, with the support of solar panels on the roof.
- High-grade electrical installation 9.2kw.
- Installation of air conditioning through ducts with machines included.
- Minimalist design kitchens, fully equipped with island, furniture and appliances included.
- Private pool with lighting and beach area with pavement or artificial grass.
- Fully customisable multipurpose basement, depending on the model with a garage area for a vehicle and pre-installation for an electric vehicle.
Villas is located in a privileged environment on the Costa Blanca, in an elevated area at the foot of the mountains, surrounded by nature and other similar urbanisations, with excellent views of the sea and its surroundings.
Very well connected by road with the nearby town of Finestrat, 10 minutes by car from shopping censers, the A7 motorway, the beaches and the nearby towns of Benidorm and Villajoyosa, and 30 minutes from the city of Alicante and its international airport.
NEU GEBAUTE VILLEN IN FINESTRAT Neubauprojekt von 10 modernen Design-Villen, in einer natürlichen Umgebung mit Blick auf das Meer und die Berge, in der Nähe des Golfplatzes Puig Campana und in kurzer Entfernung zu den Städten Finestrat und Benidorm.
Das Projekt wird in zwei Bauphasen unterteilt, die wiederum zwei Arten von Häusern umfassen, mit 1 oder 2 Etagen, 3 Doppelschlafzimmern, 2 oder 3 kompletten Badezimmern, Wohn-Esszimmer mit integrierter Küche, Waschküche, großer Terrasse und Garten, privatem Pool, Außenparkplatz, 1 oder 2 Mehrzweckkellern und in einigen Modellen geschlossener Tiefgarage.
Eine Option für ein Solarium gegen Aufpreis.
Villen, die mit den besten Qualitäten und den neuesten Fortschritten in der Konstruktion gebaut werden, unter anderem: - Glasgeländer, die die Kontinuität des Ausblicks nicht unterbrechen.
- Bodenbeläge aus Feinsteinzeug erster Qualität.
- Gepanzerte Eingangstür.
- Aluminium-Außentischlerei mit Wärmebrückenunterbrechung und doppeltem Isolierglas mit niedrigem Emissionsgrad mit Luftkammer und Sicherheit in bruchgefährdeten Bereichen.
- Glatte Innenschreinerarbeiten aus weiß lackiertem Holz mit Griffen und Beschlägen aus Edelstahl.
- Vollständig ausgestattete Schiebeschränke und Ankleideräume.
- Erzeugung von Warmwasser durch ein Wärmepumpensystem mit einem 100-Liter-Speichertank, mit Unterstützung von Sonnenkollektoren auf dem Dach.
- Hochwertige Elektroinstallation 9,2kw.
- Installation von Klimaanlagen durch Kanäle mit Maschinen enthalten.
- Minimalistische Design-Küchen, voll ausgestattet mit Insel, Möbel und Geräte enthalten.
- Privater Pool mit Beleuchtung und Strandbereich mit Pflaster oder Kunstrasen.
- Vollständig anpassbarer Mehrzweckkeller, je nach Modell mit einem Garagenplatz für ein Fahrzeug und Vorinstallation für ein Elektrofahrzeug.
Die Villen befinden sich in einer privilegierten Umgebung an der Costa Blanca, in einer erhöhten Lage am Fuße der Berge, umgeben von Natur und anderen ähnlichen Urbanisationen, mit ausgezeichnetem Blick auf das Meer und die Umgebung.
Sehr gute Verkehrsanbindung mit der nahe gelegenen Stadt Finestrat, 10 Autominuten von den Einkaufszentren, der Autobahn A7, den Stränden und den nahe gelegenen Städten Benidorm und Villajoyosa und 30 Minuten von der Stadt Alicante und ihrem internationalen Flughafen entfernt.
VILLAS DE OBRA NUEVA EN FINESTRAT Proyecto de obra nueva de 10 villas de diseño moderno, en un entorno natural con vistas al mar y a la montaña, cerca del campo de golf Puig Campana, y a poca distancia de las localidades de Finestrat y Benidorm.
El proyecto se dividirá en dos fases de construcción, que a su vez incluyen dos tipos de viviendas, de 1 ó 2 plantas, 3 dormitorios dobles, 2 ó 3 baños completos, salón-comedor con cocina integrada, lavadero, amplia terraza y jardín, piscina privada, parking exterior, 1 ó 2 sótanos polivalentes y en algunos modelos garaje subterráneo cerrado.
Posibilidad de solarium con coste adicional.
Villas construidas con las mejores calidades y los últimos avances en construcción, entre otros - Barandillas de cristal que no rompen la continuidad de las vistas.
- Solería de gres porcelánico de primera calidad.
- Puerta de entrada blindada.
- Carpintería exterior de aluminio con rotura de puente térmico y doble vidrio aislante de baja emisividad con cámara de aire y seguridad en zonas con riesgo de rotura.
- Carpintería interior lisa, de madera lacada en blanco con tiradores y herrajes de acero inoxidable.
- Armarios y vestidores correderos totalmente equipados.
- Producción de agua caliente sanitaria mediante sistema de bomba de calor con depósito acumulador de 100L, con apoyo de placas solares en cubierta.
- Instalación eléctrica de alta gama 9,2kw.
- Instalación de aire acondicionado por conductos con máquinas incluidas.
- Cocinas de diseño minimalista, totalmente equipadas con isla, muebles y electrodomésticos incluidos.
- Piscina privada con iluminación y zona de playa con pavimento o césped artificial.
- Sótano polivalente totalmente personalizable, según modelo con zona de garaje para un vehículo y preinstalación para vehículo eléctrico.
Villas se encuentra en un entorno privilegiado de la Costa Blanca, en una zona elevada al pie de la sierra, rodeada de naturaleza y de otras urbanizaciones similares, con excelentes vistas al mar y sus alrededores.
Muy bien comunicada por carretera con la cercana población de Finestrat, a 10 minutos en coche de los centros comerciales, la autopista A7, las playas y las cercanas poblaciones de Benidorm y Villajoyosa, y a 30 minutos de la ciudad de Alicante y su aeropuerto internacional.
NIEUWBOUW VILLA'S IN FINESTRAT Nieuwbouwproject van 10 moderne designvilla's, in een natuurlijke omgeving met uitzicht op de zee en de bergen, vlakbij de golfbaan Puig Campana en op korte afstand van de steden Finestrat en Benidorm.
Het project wordt verdeeld in twee bouwfasen, die op hun beurt twee typen woningen omvatten, met 1 of 2 verdiepingen, 3 tweepersoonsslaapkamers, 2 of 3 complete badkamers, woon-eetkamer met geïntegreerde keuken, wasruimte, groot terras en tuin, privézwembad, parkeerplaats buiten, 1 of 2 multifunctionele kelders en in sommige modellen een gesloten ondergrondse garage.
Mogelijkheid voor een solarium tegen meerprijs.
Villa's gebouwd met de beste kwaliteiten en de nieuwste ontwikkelingen in de bouw, onder andere: - Glazen balustrades die de continuïteit van het uitzicht niet verbreken.
- Eerste kwaliteit porcellanato vloeren.
- Gepantserde toegangsdeur.
- Aluminium buitenschrijnwerk met koudebrugonderbreking en dubbel isolatieglas met lage emissiviteit met luchtkamer en veiligheid in zones met risico op breuk.
- Gladde binnenschrijnwerkerij van wit gelakt hout met roestvrijstalen handgrepen en beslag.
- Volledig uitgeruste schuifkasten en kleedkamers.
- Productie van sanitair warm water via een warmtepompsysteem met een accumulatorvat van 100 liter, met ondersteuning van zonnepanelen op het dak.
- Hoogwaardige elektrische installatie 9.2kw.
- Installatie van airconditioning via leidingen met machines inbegrepen.
- Minimalistische designkeukens, volledig uitgerust met eiland, meubels en apparatuur inbegrepen.
- Privé zwembad met verlichting en strandgedeelte met bestrating of kunstgras.
- Volledig aanpasbare multifunctionele kelder, afhankelijk van het model met een garageruimte voor een voertuig en pre-installatie voor een elektrisch voertuig.
Villas is gelegen in een bevoorrechte omgeving aan de Costa Blanca, in een verhoogd gebied aan de voet van de bergen, omringd door natuur en andere soortgelijke urbanisaties, met een uitstekend uitzicht op de zee en de omgeving.
Over de weg zeer goed verbonden met de nabijgelegen stad Finestrat, op 10 minuten rijden van winkelcentra, de snelweg A7, de stranden en de nabijgelegen steden Benidorm en Villajoyosa, en op 30 minuten van de stad Alicante en de internationale luchthaven.
Thinking of buying in Jávea? Here's what life is really like for foreign residents — the neighbourhoods, lifestyle, cost...
A comprehensive overview of the Spanish real estate market in 2026 — trends, hotspots, prices, and essential tips for in...
Considering living in El Mojón on the Costa Blanca? A practical, honest guide for retirees and second-home buyers explor...