Discover this magnificent property located on a plot of 785 m², perfect for those seeking comfort and spectacular views.
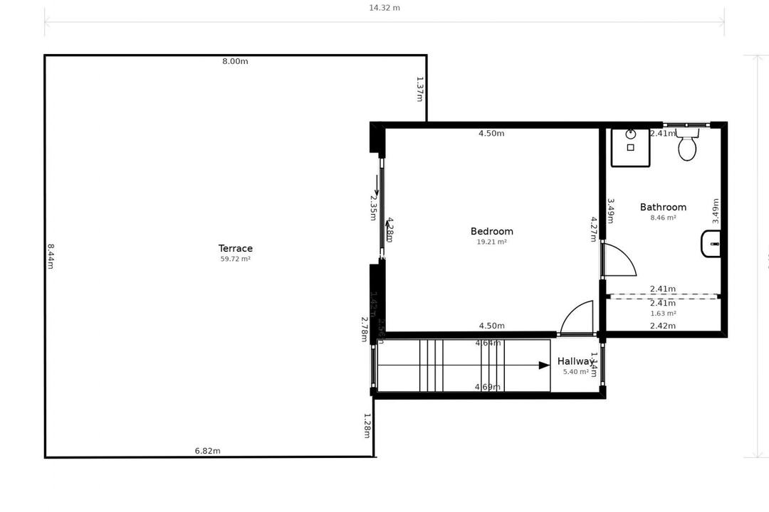
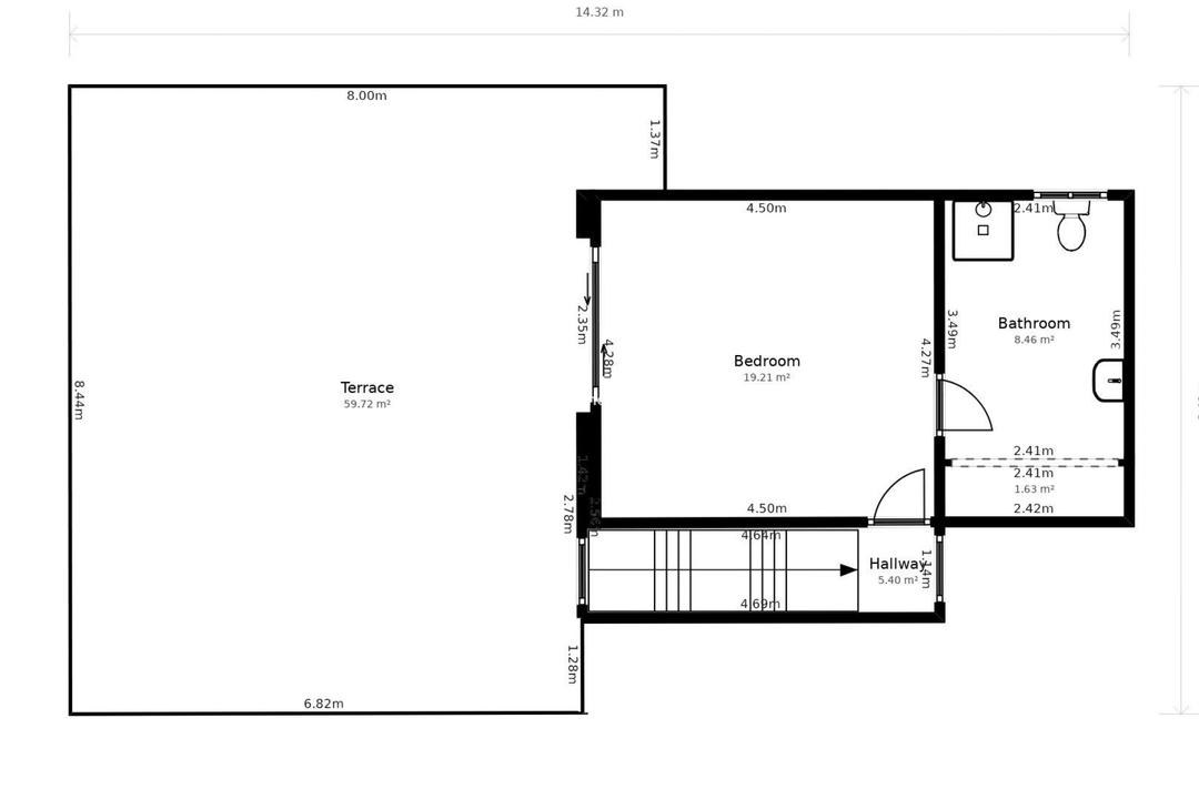
The home features a spacious interior of 115 m² smartly distributed over two floors.
On the ground floor, you will find a cozy foyer leading to a bright living-dining room, as well as a modern open kitchen designed to maximize space.
Additionally, it offers two comfortable bedrooms and an elegant family bathroom, complemented by two terraces where you can enjoy the outdoors.~~On the upper floor stands out the master bedroom equipped with its own ensuite bathroom and impressive private terrace; perfect for relaxing while taking in breathtaking views of the Mediterranean Sea, the iconic Peñón de Ifach rock formation, and nearby salt flats.~~The property also includes exceptional amenities such as centralized heating/cooling system (hot/cold), private pool (8x4 meters), ample landscaped areas ideal for outdoor activities or simply enjoying nature's surroundings.
With enough capacity for several vehicles thanks to its double garages plus additional spaces outside,~it also has its own water well which ensures constant independent supply throughout the year.
Entdecken Sie diese großartige Immobilie auf einem Grundstück von 785 m² – perfekt für diejenigen die Komfort und spektakuläre Ausblicke suchen.
Das Haus bietet eine geräumige Innenfläche von insgesamt ca.115m² , intelligent verteilt über zwei Etagen .
Im Erdgeschoss finden Sie ein gemütliches Foyer , das zu einem hellen Wohn- Esszimmer führt sowie einer modernen offenen Küche gestaltet um den Platz optimal auszunutzen .
Außerdem gibt es zwei komfortable Schlafzimmer und ein elegantes Familienbad ergänzt durch zwei Terrassen wo Sie die frische Luft genießen können .~~Im Obergeschoss sticht das Hauptschlafzimmer hervor ausgestattet mit eigenem Badezimmer en suite sowie beeindruckender privater Terrasse ; perfekt zum Entspannen währenddessen sie atemberaubenden Blick aufs Mittelmeer , dem ikonischen Peñón de Ifach-Felsen [amp;] nahegelegenen Salinen genießen kann.~Die Immobilie beinhaltet auch außergewöhnliche Annehmlichkeiten wie zentrale Heizung/Kühlungssysteme(Ventilation ) einen privaten Pool(8 x4 Meter) große Gartenflächen welche sich hervorragend für Aktivitäten im Freien eignen oder einfach nur um die natürliche Umgebung zu entspannen.
Unterbringungsraum genug vorhanden dass mehrere Fahrzeuge parken könnten dank seiner Doppelgaragen + zusätzlicher Stellplätze draußen ~es hat zudem eigenes Wasserbrunnen was konstante unabhängige Versorgung ganzjährig gewährleistet.
Descubre esta magnífica propiedad ubicada en una parcela de 785 m², ideal para quienes buscan confort y vistas espectaculares.
La vivienda cuenta con un amplio espacio interior de 115 m² que se distribuye inteligentemente entre dos plantas.
En la planta baja encontrarás un acogedor vestíbulo que da paso a un luminoso salón-comedor, así como una moderna cocina abierta diseñada para maximizar el espacio.
Además, dispone de dos cómodas habitaciones y un elegante baño familiar, complementado por dos terrazas donde podrás disfrutar del aire libre.~~En la planta superior destaca el dormitorio principal equipado con su propio cuarto de baño ensuite e impresionante terraza privada; perfecto para relajarte mientras contemplas las impresionantes vistas hacia el mar Mediterráneo, el icónico Peñón de Ifach y las salinas cercanas.~~La propiedad también incluye comodidades excepcionales como climatización frío/calor centralizada, piscina privada (8x4 metros), amplias áreas ajardinadas ideales para actividades al aire libre o simplemente disfrutar del entorno natural.
Con capacidad suficiente para varios vehículos gracias a sus garajes dobles más espacios adicionales en exteriores,~y además posee pozo privado lo cual garantiza suministro constante e independiente durante todo el año.
Ontdek deze prachtige woning gelegen op een perceel van 785 m², ideaal voor wie comfort en spectaculaire uitzichten zoekt.
De woning heeft een ruime binnenruimte van 115 m² die slim is verdeeld over twee verdiepingen.
Op het gelijkvloers vind je een gezellige hal die leidt naar een lichte woonkamer-eetkamer evenals een moderne open keuken ontworpen om ruimte te maximaliseren.
Daarnaast zijn er twee comfortabele slaapkamers en een elegante gezinsbadkamer aanwezig, aangevuld met twee terrassen waar je kunt genieten van het buitenleven.~~Op verdieping bovenin valt vooral slaapkamer uit welke uitgerust is met eigen ensuite badkamer e indrukwekkend prive terras ; perfect om te ontspannen terwijl je geniet vd adembenemend uitzicht op zee Middellandse Zee , iconische Peñón del Ifach and nabijgelegen zoutpannen .~ ~de eigendom bevat ook uitzonderlijke voorzieningen zoals gecentraliseerde klimaatregeling koel / warm ، privépiscine (8 ×4 meter) ,ruime groene ruimtes ideaal voor buitensportactiviteiten of gewoon genieten v natural omgeving .
Met voldoende capaciteit voor meerdere voertuigen dankzij dubbele garageplus extra parkeerplaatsen buitenshuis,heeft bovendien private put wat zorgt voorde constant onafhankelijk water voorziening gedurende heel jaar.
Thinking of buying in Jávea? Here's what life is really like for foreign residents — the neighbourhoods, lifestyle, cost...
A comprehensive overview of the Spanish real estate market in 2026 — trends, hotspots, prices, and essential tips for in...
Considering living in El Mojón on the Costa Blanca? A practical, honest guide for retirees and second-home buyers explor...