THE MEDITERRANEAN LIFESTYLE ALL ON ONE LEVEL The village of Daya Nueva is the perfect combination of a peaceful and comfortable rural lifestyle and the vibrant coastal areas of the Costa Blanca, just a short drive away.
This development of semi-detached and detached new-build villas has been designed with great attention to detail and built to a high standard.
All villas will have their own private pool.
YOUR OWN SPACE TO LIVE, ALL ON ONE LEVELA bright, fresh and modern approach has been incorporated into the design.
Located in a small village in the south of the province of Alicante.
The village is called Daya Nueva.
Newly built single-storey villas in the new part of Daya Nueva.
Just a few minutes' walk from the village centre.
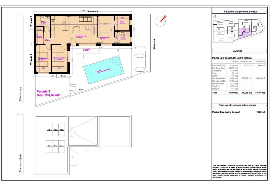
The property consists of 3 bedrooms, 2 bathrooms and a private 18m2 swimming pool.
Living/dining room with double-height ceiling, open kitchen, natural light and option for a solarium at an extra cost.
The master bedroom has the option of a walk-in wardrobe and en-suite bathroom.
Located in a new and quiet residential area, about 10 minutes from the beach of La Marina del Pinet and Guardamar del Segura.
Easy access to the A-70 motorway and approximately 25 minutes from Alicante International Airport.
MEDITERRANE LEBENSQUALITÄT AUF EINER EBENE Das Dorf Daya Nueva ist die perfekte Kombination aus einem ruhigen und komfortablen Landleben und den pulsierenden Küstenorten der Costa Blanca, die nur eine kurze Autofahrt entfernt liegen.
Diese neu gebauten Doppelhaushälften und freistehenden Villen wurden mit viel Liebe zum Detail entworfen und mit einem hohen Maß an Detailgenauigkeit gebaut.
Alle Villen werden über einen eigenen Pool verfügen.
IHR EIGENER WOHNRAUM, ALLES AUF EINER EBENE Das Design zeichnet sich durch ein helles, frisches und modernes Konzept aus.
Die Villen befinden sich in einem kleinen Dorf im Süden der Provinz Alicante.
Der Ort heißt Daya Nueva.
Neubau-Villen auf einer Ebene im neuen Teil von Daya Nueva.
Nur wenige Gehminuten vom Dorfzentrum entfernt.
Die Immobilie verfügt über 3 Schlafzimmer, 2 Badezimmer und einen 18 m² großen privaten Pool.
Wohn-/Esszimmer mit doppelter Deckenhöhe, offene Küche, Tageslicht und Option für eine Sonnenterrasse gegen Aufpreis.
Das Hauptschlafzimmer verfügt über einen begehbaren Kleiderschrank und ein eigenes Bad.
Das Haus liegt in einer neuen und ruhigen Wohngegend, etwa 10 Minuten vom Strand La Marina del Pinet und Guardamar del Segura entfernt.
Gute Anbindung an die Autobahn A-70 und etwa 25 Minuten vom internationalen Flughafen Alicante entfernt.
EL ESTILO DE VIDA MEDITERRÁNEO TODO EN UN NIVEL El pueblo de Daya Nueva es la combinación perfecta entre un estilo de vida rural tranquilo y confortable y las vibrantes zonas costeras de la Costa Blanca a un corto trayecto en coche.
Esta promoción de villas semi independientes y independientes de obra nueva ha sido diseñada con toda la atención al detalle y construido con un alto nivel de detalles.
Todas las villas tendrán su propia piscina privada.
TU PROPIO ESPACIO PARA VIVIR, TODO A UN NIVELSe ha incorporado un enfoque luminoso, fresco y moderno en el diseño.
Ubicadas en un pequeño pueblo en el sur de la provincia de Alicante.
El pueblo se llama Daya Nueva.
Villas de nueva construcción en una sola planta en la parte nueva de Daya Nueva.
A pocos minutos andando del centro del pueblo.
La propiedad consta de 3 dormitorios, 2 baños y una piscina privada de 18m2.
Salón / comedor con techo de doble altura, cocina abierta, luz natural y opción para solarium con un coste extra.
El dormitorio principal tiene opción de walk in closet y baño en suite.
Situado en una zona residencial nueva y tranquila, a unos 10 minutos de la playa de La Marina del Pinet y Guardamar del Segura.
Fácil acceso a la autopista A-70 y aproximadamente a 25 minutos del aeropuerto internacional de Alicante.
DE MEDITERRANE LIFESTYLE OP ÉÉN NIVEAU Het dorp Daya Nueva is de perfecte combinatie van een rustige en comfortabele landelijke levensstijl en de bruisende kustgebieden van de Costa Blanca op slechts een klein eindje rijden.
Dit project van semi-vrijstaande en vrijstaande villa's is met veel oog voor detail ontworpen en gebouwd met een hoog afwerkingsniveau.
Alle villa's krijgen een eigen privézwembad.
UW EIGEN WONING, ALLES OP ÉÉN NIVEAUHet ontwerp is licht, fris en modern.
Gelegen in een klein dorpje in het zuiden van de provincie Alicante.
Het dorp heet Daya Nueva.
Nieuwbouwwoningen op één verdieping in het nieuwe gedeelte van Daya Nueva.
Op slechts enkele minuten lopen van het centrum van het dorp.
De woning bestaat uit 3 slaapkamers, 2 badkamers en een privézwembad van 18 m².
Woon-/eetkamer met dubbel hoog plafond, open keuken, veel natuurlijk licht en mogelijkheid voor een solarium tegen meerprijs.
De hoofdslaapkamer heeft de mogelijkheid voor een inloopkast en een en-suite badkamer.
Gelegen in een nieuwe en rustige woonwijk, op ongeveer 10 minuten van het strand van La Marina del Pinet en Guardamar del Segura.
Gemakkelijke toegang tot de snelweg A-70 en op ongeveer 25 minuten van de internationale luchthaven van Alicante.
Thinking of buying in Jávea? Here's what life is really like for foreign residents — the neighbourhoods, lifestyle, cost...
A comprehensive overview of the Spanish real estate market in 2026 — trends, hotspots, prices, and essential tips for in...
Considering living in El Mojón on the Costa Blanca? A practical, honest guide for retirees and second-home buyers explor...