New villas located in La Romana.
Newly built villas with several models to choose from, with 2 or 3 bedrooms, one or two floors, and built with slabs or a frame structure.
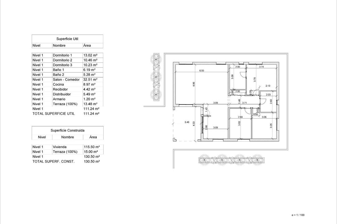
The exact price will be calculated depending on the model and plot chosen.
All villas are built on rustic plots of over 10,000 m2, of which 2,500 m2 will be fenced.
The villas have an open-plan kitchen with living room, fitted wardrobes, private swimming pool, porch and outdoor parking space.
There are several plots to choose from.
The price has been calculated based on a plot priced at £55,000 (if another plot is chosen, the difference will be paid according to the price of the plot).
Self-build project, delivery in approximately 12 months from the granting of the licence.
If you are looking for a peaceful setting, close to typical Spanish villages away from mass tourism, surrounded by mountains, with a very large plot and about 30 minutes from the sea, this is your home.
La Romana is a typical Spanish village with all the amenities you need for everyday life, surrounded by mountains and with several natural areas nearby where you can go hiking or mountain biking.
Located 30 minutes from Alicante airport.
Neubauvillen in La Romana.
Neubauvillen mit verschiedenen Modellen zur Auswahl mit 2 oder 3 Schlafzimmern, 1 oder 2 Etagen und mit Platten- oder Rahmenkonstruktion: Je nach Modell und gewähltem Grundstück wird der genaue Preis berechnet.
Alle Villen werden auf rustikalen Grundstücken von mehr als 10.000 m² gebaut, von denen 2.500 m² eingezäunt werden.
Die Villen verfügen über eine offene Küche mit Wohnzimmer, Einbauschränke, einen privaten Pool, eine Veranda und einen Außenparkplatz.
Es stehen mehrere Grundstücke zur Auswahl.
Für die Berechnung des Preises wurde ein Grundstück mit einem Preis von 62.000 Euro zugrunde gelegt (bei Wahl eines anderen Grundstücks wird die Differenz entsprechend dem Preis desselben zu zahlen oder zu vergüten).
Die Fertigstellung erfolgt im Selbstbau, die Übergabe erfolgt innerhalb von 12 Monaten nach Erteilung der Baugenehmigung.
Wenn Sie eine ruhige Umgebung suchen, in der Nähe von typisch spanischen Dörfern, fernab vom Massentourismus, umgeben von Bergen, mit einem sehr großen Grundstück und nur 30 Minuten vom Meer entfernt, dann ist dies Ihr Zuhause.
La Romana ist ein typisch spanisches Dorf mit allen Dienstleistungen für den täglichen Bedarf, umgeben von Bergen und mehreren Naturlandschaften in der Nähe, in denen Sie Wanderungen oder Mountainbike-Touren unternehmen können.
Das Dorf liegt 30 Minuten vom Flughafen Alicante entfernt.
Villas de obra nueva situadas en La Romana.
Villas de obra nueva con varios modelos a elegir entre 2 o 3 dormitorios, de una o 2 plantas y construidas con losa o con estructura: dependiendo del modelo y la parcela elegida, se calculará el precio exacto.
Todas las villas se construyen en parcelas rústicas de más de 10.000 m2 de los cuales se vallarán 2.500 m2.
Las villas disponen de cocina americana con el salón, armarios empotrados, piscina privada, porche y plaza de parking exterior.
Hay varias parcelas a elegir, para el cálculo del precio se ha considerado una parcela con un precio de 62.000 eur (si se elige otra parcela, se pagará o abonará la diferencia según el precio de la misma).
Realizada en régimen de auto promoción, entrega en unos 12 meses desde la concesión de la licencia.
Si busca un entorno tranquilo, cerca de pueblos típicos españoles alejados de la masificación turística, rodeado de montañas, con una amplísima parcela y a unos 30 minutos del mar, esta es su casa.
La Romana es un típico pueblo español con todos los servicios para el día a día, rodeado de montañas y con varios parajes naturales en las cercanías donde se pueden hacer rutas de senderismo o mountain bike.
Situado a 30 minutos del aeropuerto de Alicante.
Nieuwe villa in La Romana.
Nieuwbouwwoningen met verschillende modellen naar keuze met 2 of 3 slaapkamers, met 1 of 2 verdiepingen en gebouwd met vloerplaten of met een structuur: afhankelijk van het model en het gekozen perceel wordt de exacte prijs berekend.
Alle villa's worden gebouwd op rustieke percelen van meer dan 10.000 m2, waarvan 2.500 m2 omheind zal worden.
De villa's beschikken over een open keuken met woonkamer, inbouwkasten, privézwembad, veranda en buitenparkeerplaats.
Er zijn verschillende percelen beschikbaar.
Voor de prijsberekening is uitgegaan van een perceel met een prijs van 62.000 euro (als u een ander perceel kiest, betaalt u het verschil op basis van de prijs van het perceel).
Het project wordt in eigen beheer uitgevoerd en wordt binnen ongeveer 12 maanden na verlening van de vergunning opgeleverd.
Als u op zoek bent naar een rustige omgeving, dicht bij typisch Spaanse dorpjes, ver weg van het massatoerisme, omgeven door bergen, met een zeer groot perceel en op ongeveer 30 minuten van de zee, dan is dit uw huis.
La Romana is een typisch Spaans dorpje met alle voorzieningen voor het dagelijks leven, omgeven door bergen en met verschillende natuurgebieden in de buurt waar u kunt wandelen of mountainbiken.
Gelegen op 30 minuten van de luchthaven van Alicante.
Thinking of buying in Jávea? Here's what life is really like for foreign residents — the neighbourhoods, lifestyle, cost...
A comprehensive overview of the Spanish real estate market in 2026 — trends, hotspots, prices, and essential tips for in...
Considering living in El Mojón on the Costa Blanca? A practical, honest guide for retirees and second-home buyers explor...