New Build Luxury Villa with Sea Views in La Alberca Polop Contemporary Design in a Peaceful Mountain Setting This exceptional new build villa is located in La Alberca, a quiet residential area in the mountains of Polop.
Surrounded by forest and nature, the property offers panoramic views of the Mediterranean Sea, the mountains and the historic town of Polop.
Designed with vertical architectural elegance, the villa combines privacy, functionality and seamless indoor outdoor living.
Polop is a charming Costa Blanca village known for its traditional atmosphere and natural beauty.
The villa is close to all services in La Nucia, including shops, restaurants, sports centers and schools.
The beaches and lively coastal towns such as Benidorm and Altea are just 15 minutes away.
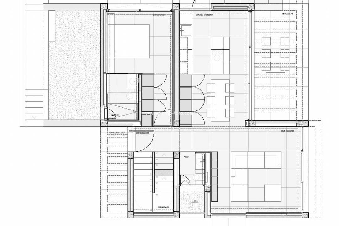
Thoughtfully Designed Distribution Across Three Levels The main floor welcomes you with an entrance hall featuring a built in wardrobe and guest restroom.
This level includes one en suite bedroom with floor to ceiling elevable window doors opening onto a private side terrace.
The bright open plan living and dining area connects directly to a pergola covered terrace and the private saltwater swimming pool, creating a harmonious indoor outdoor lifestyle.
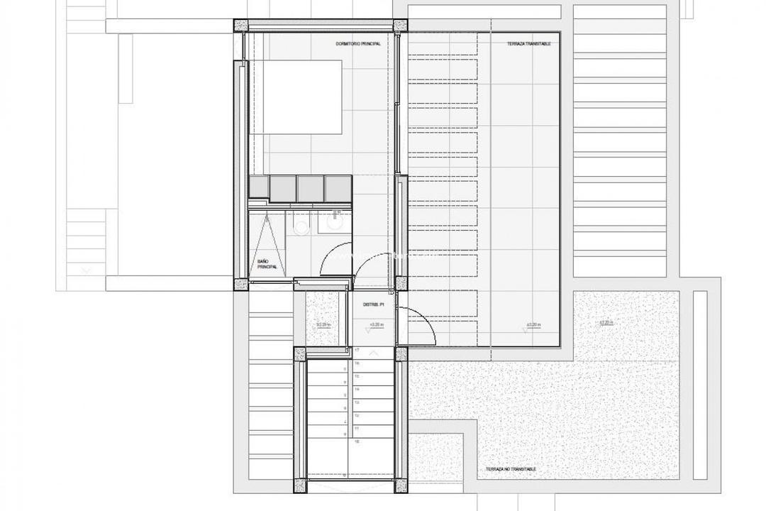
The top floor is dedicated exclusively to the master suite.
This private level offers an en suite bedroom with access to a spectacular 40 m2 terrace and breathtaking panoramic sea and mountain views, ensuring maximum privacy and comfort.
The basement level features two additional bedrooms with large windows overlooking a beautifully designed sunken courtyard that fills the space with natural light.
A shared bathroom, fully equipped laundry room with Haier appliances and two spacious technical and storage rooms complete this floor.
Premium Features and Energy Efficiency The villa includes high quality finishes and advanced systems, such as: Central island kitchen with integrated BOSCH appliances Natural stone countertops indoors and outdoors Panoramic windows with sun protected reinforced glass Mitsubishi aerothermal air conditioning system Underfloor heating pre installation Energy efficiency rating Class A Pre installation for smart home system Private parking for two vehicles The landscaped Mediterranean garden with automatic irrigation and an elegant lower level courtyard enhance privacy and relaxation.
The roof level is prepared for solar panel installation.
Excellent Location and Distances Polop center 2 km La Nucia 4 km Benidorm beaches 12 km Altea 10 km Villaitana Golf 14 km Alicante Airport 65 km Discover Your Private Retreat in Polop This modern sea view villa offers design, privacy and comfort in one of the most attractive natural settings on the Costa Blanca.
Contact us today to arrange a private viewing and secure your new home in La Alberca Polop.
Neubau-Luxusvilla mit Meerblick in La Alberca Polop Modernes Design in ruhiger Berglandschaft Diese außergewöhnliche Neubauvilla befindet sich in La Alberca, einer ruhigen Wohngegend in den Bergen von Polop.
Umgeben von Wald und Natur bietet das Anwesen einen Panoramablick auf das Mittelmeer, die Berge und die historische Stadt Polop.
Die Villa wurde mit vertikaler architektonischer Eleganz entworfen und verbindet Privatsphäre, Funktionalität und nahtloses Wohnen im Innen- und Außenbereich.
Polop ist ein charmantes Dorf an der Costa Blanca, das für seine traditionelle Atmosphäre und seine natürliche Schönheit bekannt ist.
Die Villa liegt in der Nähe aller Dienstleistungen in La Nucia, darunter Geschäfte, Restaurants, Sportzentren und Schulen.
Die Strände und lebhaften Küstenstädte wie Benidorm und Altea sind nur 15 Minuten entfernt.
Durchdachte Aufteilung auf drei Ebenen Das Erdgeschoss empfängt Sie mit einer Eingangshalle mit Einbauschrank und Gästetoilette.
Auf dieser Ebene befindet sich ein Schlafzimmer mit eigenem Bad und raumhohen, hochschiebbaren Fenstertüren, die auf eine private Seitenterrasse führen.
Der helle, offene Wohn- und Essbereich ist direkt mit einer pergolaüberdachten Terrasse und dem privaten Salzwasserpool verbunden und schafft so einen harmonischen Lebensstil zwischen Innen- und Außenbereich.
Die oberste Etage ist ausschließlich der Master-Suite vorbehalten.
Diese private Etage bietet ein Schlafzimmer mit eigenem Bad und Zugang zu einer spektakulären 40 m² großen Terrasse mit atemberaubendem Panoramablick auf das Meer und die Berge, wodurch maximale Privatsphäre und Komfort gewährleistet sind.
Im Untergeschoss befinden sich zwei weitere Schlafzimmer mit großen Fenstern, die auf einen wunderschön gestalteten versunkenen Innenhof blicken, der den Raum mit natürlichem Licht erfüllt.
Ein gemeinsames Badezimmer, eine voll ausgestattete Waschküche mit Haier-Geräten und zwei geräumige Technik- und Abstellräume vervollständigen diese Etage.
Hochwertige Ausstattung und Energieeffizienz Die Villa verfügt über eine hochwertige Ausstattung und fortschrittliche Systeme, wie zum Beispiel: Zentrale Inselküche mit integrierten BOSCH-Geräten Naturstein-Arbeitsplatten im Innen- und Außenbereich Panoramafenster mit sonnengeschütztem, verstärktem Glas Aerothermisches Klimasystem von Mitsubishi Vorinstallation für Fußbodenheizung Energieeffizienzklasse A Vorinstallation für Smart-Home-System Privater Parkplatz für zwei Fahrzeuge Der mediterrane Landschaftsgarten mit automatischer Bewässerung und ein eleganter Innenhof auf der unteren Ebene sorgen für Privatsphäre und Entspannung.
Das Dach ist für die Installation von Sonnenkollektoren vorbereitet.
Ausgezeichnete Lage und Entfernungen Zentrum von Polop 2 km La Nucia 4 km Strände von Benidorm 12 km Altea 10 km Villaitana Golf 14 km Flughafen Alicante 65 km Entdecken Sie Ihren privaten Rückzugsort in Polop Diese moderne Villa mit Meerblick bietet Design, Privatsphäre und Komfort in einer der attraktivsten Naturlandschaften der Costa Blanca.
Kontaktieren Sie uns noch heute, um eine private Besichtigung zu vereinbaren und sich Ihr neues Zuhause in La Alberca Polop zu sichern.
Villa de lujo de nueva construcción con vistas al mar en La Alberca Polop Diseño contemporáneo en un entorno montañoso tranquilo Esta excepcional villa de nueva construcción se encuentra en La Alberca, una tranquila zona residencial en las montañas de Polop.
Rodeada de bosques y naturaleza, la propiedad ofrece vistas panorámicas al mar Mediterráneo, las montañas y la histórica ciudad de Polop.
Diseñada con elegancia arquitectónica vertical, la villa combina privacidad, funcionalidad y una vida interior y exterior sin fisuras.
Polop es un encantador pueblo de la Costa Blanca conocido por su ambiente tradicional y su belleza natural.
La villa está cerca de todos los servicios de La Nucia, incluyendo tiendas, restaurantes, centros deportivos y colegios.
Las playas y las animadas ciudades costeras como Benidorm y Altea están a solo 15 minutos.
Distribución cuidadosamente diseñada en tres niveles La planta principal le da la bienvenida con un vestíbulo de entrada con armario empotrado y aseo para invitados.
Este nivel incluye un dormitorio en suite con puertas ventanas elevables de suelo a techo que dan a una terraza lateral privada.
La luminosa sala de estar y comedor de planta abierta conecta directamente con una terraza cubierta con pérgola y la piscina privada de agua salada, creando un armonioso estilo de vida interior y exterior.
La planta superior está dedicada exclusivamente a la suite principal.
Este nivel privado ofrece un dormitorio en suite con acceso a una espectacular terraza de 40 m2 y unas impresionantes vistas panorámicas al mar y a la montaña, lo que garantiza la máxima privacidad y comodidad.
La planta sótano cuenta con dos dormitorios adicionales con grandes ventanas que dan a un patio hundido de bonito diseño que llena el espacio de luz natural.
Un baño compartido, un lavadero totalmente equipado con electrodomésticos Haier y dos amplios cuartos técnicos y de almacenamiento completan esta planta.
Características premium y eficiencia energética La villa incluye acabados de alta calidad y sistemas avanzados, tales como: Cocina con isla central y electrodomésticos BOSCH integrados Encimeras de piedra natural en interiores y exteriores Ventanas panorámicas con vidrio reforzado con protección solar Sistema de aire acondicionado aerotérmico Mitsubishi Preinstalación de calefacción por suelo radiante Clasificación de eficiencia energética Clase A Preinstalación para sistema domótico Aparcamiento privado para dos vehículos El jardín mediterráneo con riego automático y un elegante patio en el nivel inferior mejoran la privacidad y la relajación.
La azotea está preparada para la instalación de paneles solares.
Excelente ubicación y distancias Centro de Polop a 2 km La Nucia a 4 km Playas de Benidorm a 12 km Altea a 10 km Villaitana Golf a 14 km Aeropuerto de Alicante a 65 km Descubra su refugio privado en Polop Esta moderna villa con vistas al mar ofrece diseño, privacidad y comodidad en uno de los entornos naturales más atractivos de la Costa Blanca.
Póngase en contacto con nosotros hoy mismo para concertar una visita privada y asegurarse su nueva vivienda en La Alberca Polop.
Nieuwbouwwoning met luxe villa met uitzicht op zee in La Alberca Polop Eigentijds ontwerp in een rustige bergachtige omgeving Deze uitzonderlijke nieuwbouwwoning is gelegen in La Alberca, een rustige woonwijk in de bergen van Polop.
Omgeven door bos en natuur biedt het pand een panoramisch uitzicht op de Middellandse Zee, de bergen en het historische stadje Polop.
De villa is ontworpen met verticale architectonische elegantie en combineert privacy, functionaliteit en naadloos binnen- en buitenleven.
Polop is een charmant dorpje aan de Costa Blanca dat bekend staat om zijn traditionele sfeer en natuurlijke schoonheid.
De villa ligt dicht bij alle voorzieningen in La Nucia, waaronder winkels, restaurants, sportcentra en scholen.
De stranden en levendige kustplaatsen zoals Benidorm en Altea liggen op slechts 15 minuten afstand.
Doordacht ontworpen indeling over drie verdiepingen De begane grond verwelkomt u met een inkomhal met ingebouwde kledingkast en gastentoilet.
Op deze verdieping bevindt zich een slaapkamer met eigen badkamer en kamerhoge schuifdeuren die uitkomen op een privéterras aan de zijkant.
De lichte open woon- en eetkamer sluit direct aan op een terras met pergola en het privé zoutwaterzwembad, waardoor een harmonieuze levensstijl binnen en buiten ontstaat.
De bovenste verdieping is exclusief bestemd voor de master suite.
Deze privéverdieping biedt een slaapkamer met eigen badkamer en toegang tot een spectaculair terras van 40 m² en een adembenemend panoramisch uitzicht op zee en de bergen, wat maximale privacy en comfort garandeert.
De kelderverdieping beschikt over twee extra slaapkamers met grote ramen die uitkijken op een prachtig ontworpen verzonken binnenplaats die de ruimte met natuurlijk licht vult.
Een gedeelde badkamer, een volledig uitgeruste wasruimte met Haier-apparatuur en twee ruime technische en opslagruimtes maken deze verdieping compleet.
Premium voorzieningen en energie-efficiëntie De villa is voorzien van hoogwaardige afwerkingen en geavanceerde systemen, zoals: Centrale eilandkeuken met geïntegreerde BOSCH-apparatuur Natuurstenen werkbladen binnen en buiten Panoramische ramen met zonwerend versterkt glas Mitsubishi aerothermisch airconditioningsysteem Voorbereiding voor vloerverwarming Energie-efficiëntieklasse A Voorbereiding voor smart home-systeem Privé parkeerplaats voor twee voertuigen De aangelegde mediterrane tuin met automatische irrigatie en een elegante binnenplaats op een lager niveau zorgen voor meer privacy en ontspanning.
Het dak is voorbereid voor de installatie van zonnepanelen.
Uitstekende locatie en afstanden Centrum van Polop 2 km La Nucia 4 km Stranden van Benidorm 12 km Altea 10 km Villaitana Golf 14 km Luchthaven Alicante 65 km Ontdek uw privétoevluchtsoord in Polop Deze moderne villa met zeezicht biedt design, privacy en comfort in een van de mooiste natuurlijke omgevingen aan de Costa Blanca.
Neem vandaag nog contact met ons op voor een privébezichtiging en verzeker u van uw nieuwe woning in La Alberca Polop.
Thinking of buying in Jávea? Here's what life is really like for foreign residents — the neighbourhoods, lifestyle, cost...
A comprehensive overview of the Spanish real estate market in 2026 — trends, hotspots, prices, and essential tips for in...
Considering living in El Mojón on the Costa Blanca? A practical, honest guide for retirees and second-home buyers explor...