Modern New Build Villas Near Estepona Close to Beach and Valle Romano Golf Contemporary Mediterranean Living on the Costa del Sol Discover this elegant new build villa project located next to Estepona on the Costa del Sol.
Designed with minimalist architecture, clean lines and bright open spaces, these homes combine simplicity, efficiency and timeless Mediterranean style.
With a west facing orientation, the villas enjoy beautiful afternoon light and are ideally positioned close to golf courses, amenities and the beach.
Estepona is one of the most attractive towns on the Costa del Sol, known for its charming old town, marina, sandy beaches and more than 320 days of sunshine per year.
The area offers an exceptional quality of life, blending international gastronomy, local traditions and a relaxed coastal atmosphere.
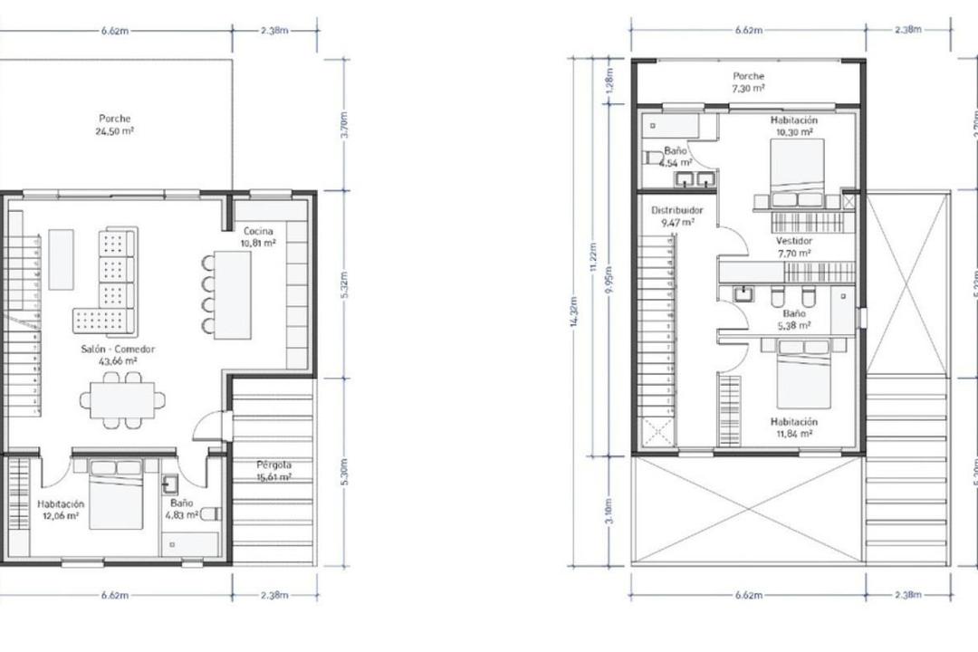
Buyers can choose between two villa sizes to suit their needs: 160 m2 built area on a 434 m2 plot 210 m2 built area on a 629 m2 plot Each villa is distributed over a semi basement and two main levels, offering a balanced and practical layout.
The basement includes a sauna, laundry room and storage area, creating a private wellness and utility space.
On the ground floor, the open plan living room and kitchen connect directly to the front terrace and private ecological swimming pool.
This level also features one bedroom and a full bathroom.
The first floor offers two additional bedrooms and two bathrooms, one of them en suite, along with two uncovered terraces at the front and rear of the property.
Large terraces and a double balcony system extend the living areas outdoors, enhancing the connection between interior spaces and the Mediterranean environment.
Energy Efficient Design and High Quality Specifications These villas are designed for modern living, prioritizing comfort, sustainability and low energy consumption.
Key features include: Fully equipped kitchens and bathrooms Pre installation for ducted air conditioning with aerothermal or heat pump system Renewable energy system for hot water LED recessed lighting throughout Pre wiring for home automation Photovoltaic panels for self consumption 4 kW Energy rating Class A The construction period is approximately 14 months from purchase.
Excellent Location and Distances Beach 1.8 km Valle Romano Golf 1 km Marbella 15 km Puerto Banus 20 km Malaga Airport 75 km Secure Your Contemporary Villa in Estepona This project offers a rare opportunity to own a modern, energy efficient villa in a privileged location near golf and the sea.
Contact us today to receive more information and reserve your new home on the Costa del Sol.
Moderne Neubau-Villen in der Nähe von Estepona, nahe am Strand und dem Golfplatz Valle Romano Zeitgemäßes mediterranes Wohnen an der Costa del Sol Entdecken Sie dieses elegante Neubau-Villenprojekt in der Nähe von Estepona an der Costa del Sol.
Mit ihrer minimalistischen Architektur, klaren Linien und hellen, offenen Räumen verbinden diese Häuser Einfachheit, Effizienz und zeitlosen mediterranen Stil.
Dank ihrer Westausrichtung genießen die Villen wunderschönes Nachmittagslicht und liegen ideal in der Nähe von Golfplätzen, Annehmlichkeiten und dem Strand.
Estepona ist eine der attraktivsten Städte an der Costa del Sol und bekannt für ihre charmante Altstadt, den Yachthafen, die Sandstrände und mehr als 320 Sonnentage im Jahr.
Die Gegend bietet eine außergewöhnliche Lebensqualität und verbindet internationale Gastronomie, lokale Traditionen und eine entspannte Küstenatmosphäre.
Käufer können zwischen zwei Villengrößen wählen, die ihren Bedürfnissen entsprechen: 160 m² bebaute Fläche auf einem 434 m² großen Grundstück 210 m² bebaute Fläche auf einem 629 m² großen Grundstück Jede Villa erstreckt sich über ein Halbuntergeschoss und zwei Hauptetagen und bietet eine ausgewogene und praktische Aufteilung.
Das Untergeschoss umfasst eine Sauna, eine Waschküche und einen Abstellraum und schafft so einen privaten Wellness- und Nutzraum.
Im Erdgeschoss sind das offene Wohnzimmer und die Küche direkt mit der vorderen Terrasse und dem privaten ökologischen Swimmingpool verbunden.
Auf dieser Ebene befinden sich auch ein Schlafzimmer und ein komplettes Badezimmer.
Im ersten Stock befinden sich zwei weitere Schlafzimmer und zwei Badezimmer, eines davon en suite, sowie zwei nicht überdachte Terrassen an der Vorder- und Rückseite des Grundstücks.
Große Terrassen und ein doppeltes Balkonsystem erweitern die Wohnbereiche nach draußen und verstärken die Verbindung zwischen den Innenräumen und der mediterranen Umgebung.
Energieeffizientes Design und hochwertige Ausstattung Diese Villen sind für modernes Wohnen konzipiert und legen Wert auf Komfort, Nachhaltigkeit und geringen Energieverbrauch.
Zu den wichtigsten Merkmalen gehören: Voll ausgestattete Küchen und Badezimmer Vorinstallation für eine Klimaanlage mit Luftwärme- oder Wärmepumpensystem Erneuerbares Energiesystem für Warmwasser LED-Einbauleuchten im gesamten Haus Vorverkabelung für Hausautomation Photovoltaikmodule für den Eigenverbrauch 4 kW Energieeffizienzklasse A Die Bauzeit beträgt ca.
14 Monate ab Kauf.
Ausgezeichnete Lage und Entfernungen Strand 1,8 km Valle Romano Golf 1 km Marbella 15 km Puerto Banus 20 km Flughafen Malaga 75 km Sichern Sie sich Ihre moderne Villa in Estepona Dieses Projekt bietet die seltene Gelegenheit, eine moderne, energieeffiziente Villa in privilegierter Lage in der Nähe von Golfplätzen und dem Meer zu erwerben.
Kontaktieren Sie uns noch heute, um weitere Informationen zu erhalten und Ihr neues Zuhause an der Costa del Sol zu reservieren.
Modernas villas de nueva construcción cerca de Estepona, cerca de la playa y del campo de golf Valle Romano Vida mediterránea contemporánea en la Costa del Sol Descubra este elegante proyecto de villas de nueva construcción situado junto a Estepona, en la Costa del Sol.
Diseñadas con una arquitectura minimalista, líneas limpias y espacios abiertos y luminosos, estas viviendas combinan simplicidad, eficiencia y un estilo mediterráneo atemporal.
Con orientación oeste, las villas disfrutan de una hermosa luz por la tarde y están idealmente situadas cerca de campos de golf, servicios y la playa.
Estepona es una de las localidades más atractivas de la Costa del Sol, conocida por su encantador casco antiguo, su puerto deportivo, sus playas de arena y sus más de 320 días de sol al año.
La zona ofrece una calidad de vida excepcional, que combina la gastronomía internacional, las tradiciones locales y un ambiente costero relajado.
Los compradores pueden elegir entre dos tamaños de villa para adaptarse a sus necesidades: 160 m2 de superficie construida en una parcela de 434 m2 210 m2 de superficie construida en una parcela de 629 m2 Cada villa se distribuye en un semisótano y dos plantas principales, lo que ofrece una distribución equilibrada y práctica.
El sótano incluye una sauna, un lavadero y un trastero, creando un espacio privado de bienestar y utilidad.
En la planta baja, el salón y la cocina de planta abierta conectan directamente con la terraza delantera y la piscina ecológica privada.
Esta planta también cuenta con un dormitorio y un cuarto de baño completo.
La primera planta ofrece dos dormitorios adicionales y dos baños, uno de ellos en suite, junto con dos terrazas descubiertas en la parte delantera y trasera de la propiedad.
Las amplias terrazas y el sistema de balcones dobles amplían las zonas de estar al aire libre, mejorando la conexión entre los espacios interiores y el entorno mediterráneo.
Diseño energéticamente eficiente y especificaciones de alta calidad Estas villas están diseñadas para la vida moderna, priorizando el confort, la sostenibilidad y el bajo consumo energético.
Las características principales incluyen: Cocinas y baños totalmente equipados Preinstalación para aire acondicionado por conductos con sistema aerotérmico o bomba de calor Sistema de energía renovable para agua caliente Iluminación LED empotrada en toda la vivienda Preinstalación para domótica Paneles fotovoltaicos para autoconsumo de 4 kW Clasificación energética de clase A El plazo de construcción es de aproximadamente 14 meses desde la compra.
Excelente ubicación y distancias Playa a 1,8 km Valle Romano Golf a 1 km Marbella a 15 km Puerto Banús a 20 km Aeropuerto de Málaga a 75 km Asegúrese su villa contemporánea en Estepona Este proyecto ofrece una oportunidad única de adquirir una villa moderna y energéticamente eficiente en una ubicación privilegiada cerca del golf y del mar.
Póngase en contacto con nosotros hoy mismo para recibir más información y reservar su nueva vivienda en la Costa del Sol.
Moderne nieuwbouwwoningen nabij Estepona, dicht bij het strand en de golfbaan Valle Romano Eigentijds mediterraan wonen aan de Costa del Sol Ontdek dit elegante nieuwbouwproject met villa's naast Estepona aan de Costa del Sol.
Deze woningen zijn ontworpen met minimalistische architectuur, strakke lijnen en lichte, open ruimtes en combineren eenvoud, efficiëntie en een tijdloze mediterrane stijl.
De villa's liggen op het westen en genieten van prachtig middaglicht.
Ze zijn ideaal gelegen, dicht bij golfbanen, voorzieningen en het strand.
Estepona is een van de aantrekkelijkste steden aan de Costa del Sol, bekend om zijn charmante oude binnenstad, jachthaven, zandstranden en meer dan 320 dagen zon per jaar.
De omgeving biedt een uitzonderlijke levenskwaliteit, met een mix van internationale gastronomie, lokale tradities en een ontspannen kustsfeer.
Kopers kunnen kiezen uit twee villagroottes, afhankelijk van hun behoeften: 160 m2 bebouwde oppervlakte op een perceel van 434 m2 210 m2 bebouwde oppervlakte op een perceel van 629 m2 Elke villa is verdeeld over een semi-kelder en twee hoofdverdiepingen, wat een evenwichtige en praktische indeling oplevert.
De kelder omvat een sauna, wasruimte en opslagruimte, waardoor een privé wellness- en bijkeukenruimte ontstaat.
Op de begane grond sluiten de open woonkamer en keuken direct aan op het terras aan de voorzijde en het privé ecologische zwembad.
Op deze verdieping bevinden zich ook een slaapkamer en een complete badkamer.
De eerste verdieping biedt twee extra slaapkamers en twee badkamers, waarvan één en suite, samen met twee onoverdekte terrassen aan de voor- en achterzijde van het pand.
Grote terrassen en een dubbel balkonsysteem breiden de leefruimtes uit naar buiten, waardoor de verbinding tussen de binnenruimtes en de mediterrane omgeving wordt versterkt.
Energiezuinig ontwerp en hoogwaardige specificaties Deze villa's zijn ontworpen voor modern wonen, waarbij comfort, duurzaamheid en een laag energieverbruik voorop staan.
De belangrijkste kenmerken zijn: Volledig uitgeruste keukens en badkamers Voorbereiding voor airconditioning met aerothermisch of warmtepompsysteem Hernieuwbare energiesysteem voor warm water LED-inbouwverlichting in het hele huis Voorbereiding voor domotica Fotovoltaïsche panelen voor eigen verbruik 4 kW Energieklasse A De bouwtijd bedraagt ongeveer 14 maanden vanaf de aankoop.
Uitstekende locatie en afstanden Strand 1,8 km Valle Romano Golf 1 km Marbella 15 km Puerto Banus 20 km Luchthaven Malaga 75 km Verzeker uzelf van uw moderne villa in Estepona Dit project biedt een zeldzame kans om een moderne, energiezuinige villa te bezitten op een bevoorrechte locatie in de buurt van golf en de zee.
Neem vandaag nog contact met ons op voor meer informatie en reserveer uw nieuwe huis aan de Costa del Sol.
Thinking of buying in Jávea? Here's what life is really like for foreign residents — the neighbourhoods, lifestyle, cost...
A comprehensive overview of the Spanish real estate market in 2026 — trends, hotspots, prices, and essential tips for in...
Considering living in El Mojón on the Costa Blanca? A practical, honest guide for retirees and second-home buyers explor...