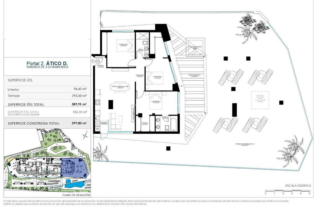
Sea View New Build Homes in Benalmadena, Costa del Sol Modern Homes With Panoramic Sea ViewsDiscover an exclusive residential development of 32 new build homes in the Monte Alto area of Benalmadena.
This boutique project offers 1, 2 and 3 bedroom properties including ground floor units with private gardens, spacious middle floor apartments with generous terraces, and impressive penthouses with large outdoor areas and pergolas.
All homes enjoy panoramic sea views and spectacular views over the bay of Benalmadena.
Exceptional Quality and Functional DesignDesigned to enhance your lifestyle, these homes combine modern style with comfort.
South facing layouts and large terraces, averaging more than 20 m2, ensure exceptional natural light and outdoor living.
Each property includes a fully equipped kitchen with appliances, ducted air conditioning, aerothermal hot water system, and parking space.
Penthouse units include two parking spaces.
Premium Community FacilitiesEnjoy beautifully landscaped gardens and an elegant infinity pool where you can relax while admiring stunning sea views.
Stay active in the fully equipped gym overlooking the Mediterranean.
Every detail has been planned to provide a peaceful and privileged residential experience.
Prime Location in BenalmadenaLocated just 5 minutes on foot from Benalmadena Golf, the development sits in one of the most desirable residential areas of the Costa del Sol.
Benalmadena offers a perfect mix of traditional Andalusian charm and modern coastal living, with more than 300 days of sunshine per year.
Convenient Access to Services and AttractionsOnly 3 km from the beaches and coves of Benalmadena and perfectly connected to public transport, this location offers easy access to all essential services including shopping centers, schools, the regional hospital and three nearby golf courses.
The famous Puerto Marina, one of the top leisure and nautical destinations in Europe, is only a short drive away.
Distances to Key Points of InterestMalaga Airport 15 kmBenalmadena Beach 3 kmBenalmadena Golf 0.4 kmPuerto Marina 6 kmMalaga City Center 20 km Your Luxury Coastal Lifestyle AwaitsExperience the perfect blend of tranquility, comfort and Mediterranean beauty in one of the most sought after areas of the Costa del Sol.
Contact us today and make your dream home with sea views a reality.
Neubauwohnungen mit Meerblick in Benalmádena, Costa del Sol Moderne Wohnungen mit Panoramablick auf das Meer Entdecken Sie eine exklusive Wohnanlage mit 32 Neubauwohnungen in der Gegend Monte Alto in Benalmádena.
Dieses Boutique-Projekt umfasst Wohnungen mit 1, 2 und 3 Schlafzimmern, darunter Erdgeschosswohnungen mit privaten Gärten, geräumige Wohnungen im mittleren Stockwerk mit großzügigen Terrassen und beeindruckende Penthäuser mit großen Außenbereichen und Pergolen.
Alle Wohnungen bieten einen Panoramablick auf das Meer und einen spektakulären Blick über die Bucht von Benalmadena.
Außergewöhnliche Qualität und funktionales Design Diese Wohnungen wurden entworfen, um Ihren Lebensstil zu verbessern, und verbinden modernen Stil mit Komfort.
Die nach Süden ausgerichteten Grundrisse und großen Terrassen mit einer durchschnittlichen Größe von mehr als 20 m² sorgen für außergewöhnliches Tageslicht und ein angenehmes Leben im Freien.
Jede Immobilie verfügt über eine voll ausgestattete Küche mit Geräten, eine Klimaanlage, ein aerothermisches Warmwassersystem und einen Parkplatz.
Die Penthouse-Einheiten verfügen über zwei Parkplätze.
Erstklassige Gemeinschaftseinrichtungen Genießen Sie wunderschön angelegte Gärten und einen eleganten Infinity-Pool, in dem Sie sich entspannen und dabei den atemberaubenden Meerblick bewundern können.
Bleiben Sie aktiv im voll ausgestatteten Fitnessstudio mit Blick auf das Mittelmeer.
Jedes Detail wurde so geplant, dass es ein ruhiges und privilegiertes Wohnerlebnis bietet.
Erstklassige Lage in Benalmádena Nur 5 Gehminuten vom Golfplatz Benalmádena entfernt, befindet sich die Anlage in einer der begehrtesten Wohngegenden der Costa del Sol.
Benalmádena bietet eine perfekte Mischung aus traditionellem andalusischem Charme und modernem Leben an der Küste mit mehr als 300 Sonnentagen im Jahr.
Bequemer Zugang zu Dienstleistungen und Sehenswürdigkeiten Nur 3 km von den Stränden und Buchten von Benalmadena entfernt und perfekt an den öffentlichen Nahverkehr angebunden, bietet dieser Standort einfachen Zugang zu allen wichtigen Dienstleistungen, darunter Einkaufszentren, Schulen, das regionale Krankenhaus und drei nahe gelegene Golfplätze.
Der berühmte Puerto Marina, eines der beliebtesten Freizeit- und Wassersportziele Europas, ist nur eine kurze Autofahrt entfernt.
Entfernungen zu wichtigen Sehenswürdigkeiten Flughafen Málaga 15 km Strand von Benalmádena 3 km Golfplatz Benalmádena 0,4 km Puerto Marina 6 km Stadtzentrum von Málaga 20 km Ihr luxuriöser Lebensstil an der Küste wartet auf Sie Erleben Sie die perfekte Mischung aus Ruhe, Komfort und mediterraner Schönheit in einer der begehrtesten Gegenden der Costa del Sol.
Kontaktieren Sie uns noch heute und verwirklichen Sie Ihr Traumhaus mit Meerblick.
Viviendas de nueva construcción con vistas al mar en Benalmádena, Costa del Sol Viviendas modernas con vistas panorámicas al marDescubra una exclusiva promoción residencial de 32 viviendas de nueva construcción en la zona de Monte Alto, en Benalmádena.
Este proyecto boutique ofrece propiedades de 1, 2 y 3 dormitorios, incluyendo unidades en planta baja con jardines privados, amplios apartamentos en plantas intermedias con generosas terrazas e impresionantes áticos con grandes zonas exteriores y pérgolas.
Todas las viviendas disfrutan de vistas panorámicas al mar y espectaculares vistas a la bahía de Benalmádena.
Calidad excepcional y diseño funcionalDiseñadas para mejorar su estilo de vida, estas viviendas combinan el estilo moderno con la comodidad.
La orientación sur y las amplias terrazas, con una superficie media de más de 20 m2, garantizan una luz natural excepcional y una vida al aire libre.
Cada propiedad incluye una cocina totalmente equipada con electrodomésticos, aire acondicionado por conductos, sistema de agua caliente aerotérmica y plaza de aparcamiento.
Los áticos incluyen dos plazas de aparcamiento.
Instalaciones comunitarias de primera calidadDisfrute de hermosos jardines y de una elegante piscina infinita donde podrá relajarse mientras admira las impresionantes vistas al mar.
Manténgase activo en el gimnasio totalmente equipado con vistas al Mediterráneo.
Cada detalle ha sido pensado para ofrecer una experiencia residencial tranquila y privilegiada.
Ubicación privilegiada en BenalmádenaSituada a solo 5 minutos a pie del campo de golf de Benalmádena, la urbanización se encuentra en una de las zonas residenciales más cotizadas de la Costa del Sol.
Benalmádena ofrece una combinación perfecta entre el encanto tradicional andaluz y la vida costera moderna, con más de 300 días de sol al año.
Cómodo acceso a servicios y atraccionesA solo 3 km de las playas y calas de Benalmádena y perfectamente conectado con el transporte público, esta ubicación ofrece fácil acceso a todos los servicios esenciales, incluyendo centros comerciales, colegios, el hospital regional y tres campos de golf cercanos.
El famoso Puerto Marina, uno de los principales destinos náuticos y de ocio de Europa, se encuentra a poca distancia en coche.
Distancias a puntos de interés claveAeropuerto de Málaga 15 kmPlaya de Benalmádena: 3 kmBenalmádena Golf: 0,4 kmPuerto Marina: 6 kmCentro de Málaga: 20 km Le espera un lujoso estilo de vida costeroDisfrute de la combinación perfecta de tranquilidad, comodidad y belleza mediterránea en una de las zonas más codiciadas de la Costa del Sol.
Póngase en contacto con nosotros hoy mismo y haga realidad la casa de sus sueños con vistas al mar.
Penthouse met zeezicht in Benalmadena, Costa del Sol Moderne woningen met panoramisch zeezichtOntdek een exclusief woonproject met 32 appartementen in de wijk Monte Alto in Benalmadena.
Dit boetiekproject biedt woningen met 1, 2 en 3 slaapkamers, waaronder woningen op de begane grond met privétuinen, ruime appartementen op de middelste verdieping met royale terrassen en indrukwekkende penthouses met grote buitenruimtes en pergola's.
Alle woningen hebben een panoramisch uitzicht op zee en een spectaculair uitzicht over de baai van Benalmadena.
Uitzonderlijke kwaliteit en functioneel ontwerpDeze woningen zijn ontworpen om uw levensstijl te verbeteren en combineren een moderne stijl met comfort.
De zuidgerichte indeling en grote terrassen, gemiddeld meer dan 20 m2, zorgen voor uitzonderlijk veel natuurlijk licht en buitenleven.
Elke woning beschikt over een volledig uitgeruste keuken met apparatuur, airconditioning, een aerothermisch warmwatersysteem en een parkeerplaats.
De penthouses hebben twee parkeerplaatsen.
Eersteklas gemeenschappelijke voorzieningenGeniet van prachtig aangelegde tuinen en een elegant overloopzwembad waar u kunt ontspannen terwijl u geniet van een prachtig uitzicht op zee.
Blijf actief in de volledig uitgeruste fitnessruimte met uitzicht op de Middellandse Zee.
Elk detail is gepland om u een rustige en bevoorrechte woonervaring te bieden.
Toplocatie in BenalmadenaHet project ligt op slechts 5 minuten lopen van Benalmadena Golf, in een van de meest gewilde woonwijken van de Costa del Sol.
Benalmadena biedt een perfecte mix van traditionele Andalusische charme en modern leven aan de kust, met meer dan 300 dagen zon per jaar.
Gemakkelijke toegang tot voorzieningen en attractiesOp slechts 3 km van de stranden en baaien van Benalmadena en perfect verbonden met het openbaar vervoer, biedt deze locatie gemakkelijke toegang tot alle essentiële voorzieningen, waaronder winkelcentra, scholen, het regionale ziekenhuis en drie nabijgelegen golfbanen.
De beroemde Puerto Marina, een van de topbestemmingen voor recreatie en watersport in Europa, ligt op slechts een klein eindje rijden.
Afstanden tot belangrijke bezienswaardighedenLuchthaven Malaga 15 kmStrand van Benalmadena 3 kmBenalmadena Golf 0,4 kmPuerto Marina 6 kmCentrum van Malaga 20 km Uw luxe levensstijl aan de kust wacht op uErvaar de perfecte mix van rust, comfort en mediterrane schoonheid in een van de meest gewilde gebieden van de Costa del Sol.
Neem vandaag nog contact met ons op en maak uw droomhuis met uitzicht op zee werkelijkheid.
Thinking of buying in Jávea? Here's what life is really like for foreign residents — the neighbourhoods, lifestyle, cost...
A comprehensive overview of the Spanish real estate market in 2026 — trends, hotspots, prices, and essential tips for in...
Considering living in El Mojón on the Costa Blanca? A practical, honest guide for retirees and second-home buyers explor...