NEW BUILD RESIDENTIAL COMPLEX NEAR ESTEPONA New Build an exclusive development located in Cancelada, one of the best areas of Estepona's New Golden Mile.
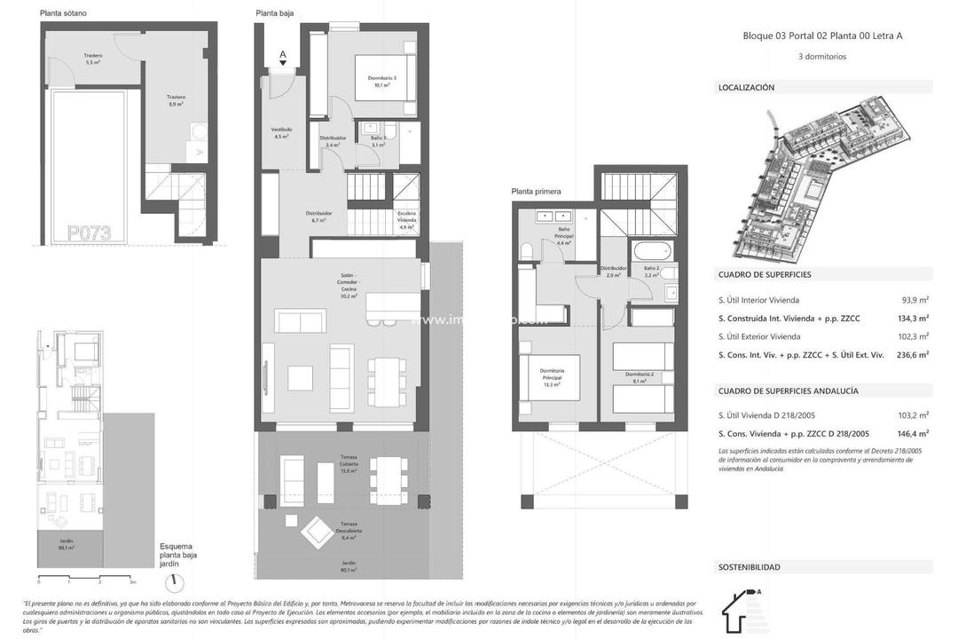
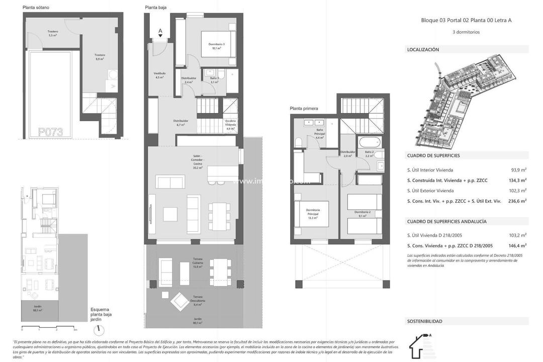
The residential complex has 82 properties distributed over 4 floors, mostly duplexes, with 2 and 3 bedrooms with terraces and/or gardens, as well as penthouses with solariums.
All the properties will have storage room and garage, and in most of them you can enjoy marvellous views of the Mediterranean Sea.
The development has a swimming pool, ideal for enjoying the more than 320 days of sun and good weather that the Costa del Sol has to offer, both alone and with the family.
You will also have access to an equipped indoor gym, outdoor sports area, 2 petanque courts and the exclusive Club House of Cancelada.
Situated in a privileged location, next to Estepona, just a few minutes from the beach and close to golf courses.
Only 10 minutes from Marbella, and 45 minutes from Malaga International Airport.
You can enjoy a real quality of life, with an average annual temperature of 20º and more than 320 days of sunshine a year.
You will enjoy a wide variety of golf courses, kilometres of tranquil coastline, sun, nature, and the gastronomy of the area, from its international restaurants to its welcoming local cuisine.
It perfectly combines the tradition of its cobbled streets of whitewashed houses and patios with their pots of colourful flowers, with modernity and the best leisure facilities on the Costa del Sol.
It boasts a privileged location between the sea and the mountains, making it one of the most attractive tourist destinations in the province.
NEUE WOHNANLAGE IN DER NÄHE VON ESTEPONA Neubau einer exklusiven Wohnanlage in Cancelada, einer der besten Gegenden der neuen Goldenen Meile von Estepona.
Die Wohnanlage verfügt über 82 Wohnungen, die sich auf 4 Etagen verteilen.
Die meisten davon sind Maisonette-Wohnungen mit 2 und 3 Schlafzimmern mit Terrassen und/oder Gärten sowie Penthäuser mit Solarien.
Alle Wohnungen verfügen über einen Abstellraum und eine Garage, und von den meisten kann man einen herrlichen Blick auf das Mittelmeer genießen.
Die Wohnanlage verfügt über einen Swimmingpool, ideal um die mehr als 320 Sonnentage und das gute Wetter an der Costa del Sol zu genießen, sowohl alleine als auch mit der Familie.
Sie haben außerdem Zugang zu einem ausgestatteten Fitnessraum, einem Sportplatz im Freien, 2 Petanque-Plätzen und dem exklusiven Clubhaus von Cancelada.
Die Anlage befindet sich in einer privilegierten Lage in der Nähe von Estepona, nur wenige Minuten vom Strand entfernt und in der Nähe von Golfplätzen.
Nur 10 Minuten von Marbella und 45 Minuten vom internationalen Flughafen Málaga entfernt.
Mit einer durchschnittlichen Jahrestemperatur von 20º und mehr als 320 Sonnentagen im Jahr können Sie eine echte Lebensqualität genießen.
Sie werden eine große Auswahl an Golfplätzen, kilometerlange ruhige Küsten, Sonne, Natur und die Gastronomie der Gegend genießen, von den internationalen Restaurants bis hin zur einladenden lokalen Küche.
Der Ort verbindet auf perfekte Weise die Tradition seiner gepflasterten Straßen mit weiß getünchten Häusern und Innenhöfen mit farbenfrohen Blumenkübeln mit Modernität und den besten Freizeiteinrichtungen der Costa del Sol.
Die privilegierte Lage zwischen dem Meer und den Bergen macht sie zu einem der attraktivsten Reiseziele der Provinz.
COMPLEJO RESIDENCIAL DE OBRA NUEVA CERCA DE ESTEPONA Obra Nueva una exclusiva promoción situada en Cancelada, una de las mejores zonas de la Nueva Milla de Oro de Estepona.
El complejo residencial cuenta con 82 viviendas distribuidas en 4 plantas, en su mayoría dúplex, de 2 y 3 dormitorios con terrazas y/o jardines, así como áticos con solarium.
Todas las viviendas dispondrán de trastero y garaje, y en la mayoría de ellas se podrá disfrutar de maravillosas vistas al Mar Mediterráneo.
La urbanización cuenta con piscina, ideal para disfrutar de los más de 320 días de sol y buen tiempo que ofrece la Costa del Sol, tanto solo como en familia.
También tendrá acceso a un equipado gimnasio cubierto, zona deportiva exterior, 2 pistas de petanca y la exclusiva Casa Club de Cancelada.
Situado en una ubicación privilegiada, junto a Estepona, a pocos minutos de la playa y cerca de campos de golf.
A tan sólo 10 minutos de Marbella, y a 45 minutos del Aeropuerto Internacional de Málaga.
Podrá disfrutar de una verdadera calidad de vida, con una temperatura media anual de 20º y más de 320 días de sol al año.
Disfrutará de una gran variedad de campos de golf, kilómetros de costa tranquila, sol, naturaleza y la gastronomía de la zona, desde sus restaurantes internacionales hasta su acogedora cocina local.
Combina a la perfección la tradición de sus calles empedradas de casas encaladas y patios con macetas de flores de colores, con la modernidad y la mejor oferta de ocio de la Costa del Sol.
Su privilegiada situación entre el mar y la montaña la convierten en uno de los destinos turísticos más atractivos de la provincia.
NIEUWBOUW WOONCOMPLEX BIJ ESTEPONA Nieuwbouw een exclusief project gelegen in Cancelada, een van de beste wijken van Estepona's New Golden Mile.
Het wooncomplex heeft 82 woningen verdeeld over 4 verdiepingen, voornamelijk duplexen, met 2 en 3 slaapkamers met terrassen en/of tuinen, evenals penthouses met solariums.
Alle woningen hebben een berging en garage, en in de meeste kun je genieten van een prachtig uitzicht op de Middellandse Zee.
De urbanisatie heeft een zwembad, ideaal om te genieten van de meer dan 320 dagen zon en mooi weer die de Costa del Sol te bieden heeft, zowel alleen als met het gezin.
Je hebt ook toegang tot een uitgeruste overdekte fitnessruimte, een sportterrein buiten, 2 petanquebanen en het exclusieve Clubhuis van Cancelada.
Gelegen op een bevoorrechte locatie, naast Estepona, op slechts een paar minuten van het strand en dicht bij golfbanen.
Slechts 10 minuten van Marbella en 45 minuten van Malaga International Airport.
Je kunt hier genieten van een echte levenskwaliteit, met een gemiddelde jaartemperatuur van 20º en meer dan 320 dagen zon per jaar.
Je zult genieten van een grote verscheidenheid aan golfbanen, kilometers rustige kustlijn, zon, natuur en de gastronomie van het gebied, van de internationale restaurants tot de gastvrije lokale keuken.
Het combineert perfect de traditie van de geplaveide straten met witgekalkte huizen en patio's met hun potten vol kleurrijke bloemen, met moderniteit en de beste recreatiefaciliteiten aan de Costa del Sol.
Het heeft een bevoorrechte ligging tussen de zee en de bergen, waardoor het een van de meest aantrekkelijke toeristische bestemmingen in de provincie is.
Thinking of buying in Jávea? Here's what life is really like for foreign residents — the neighbourhoods, lifestyle, cost...
A practical guide for British pensioners retiring to Costa del Sol: real costs, visa requirements, top areas, healthcare...
A comprehensive overview of the Spanish real estate market in 2026 — trends, hotspots, prices, and essential tips for in...