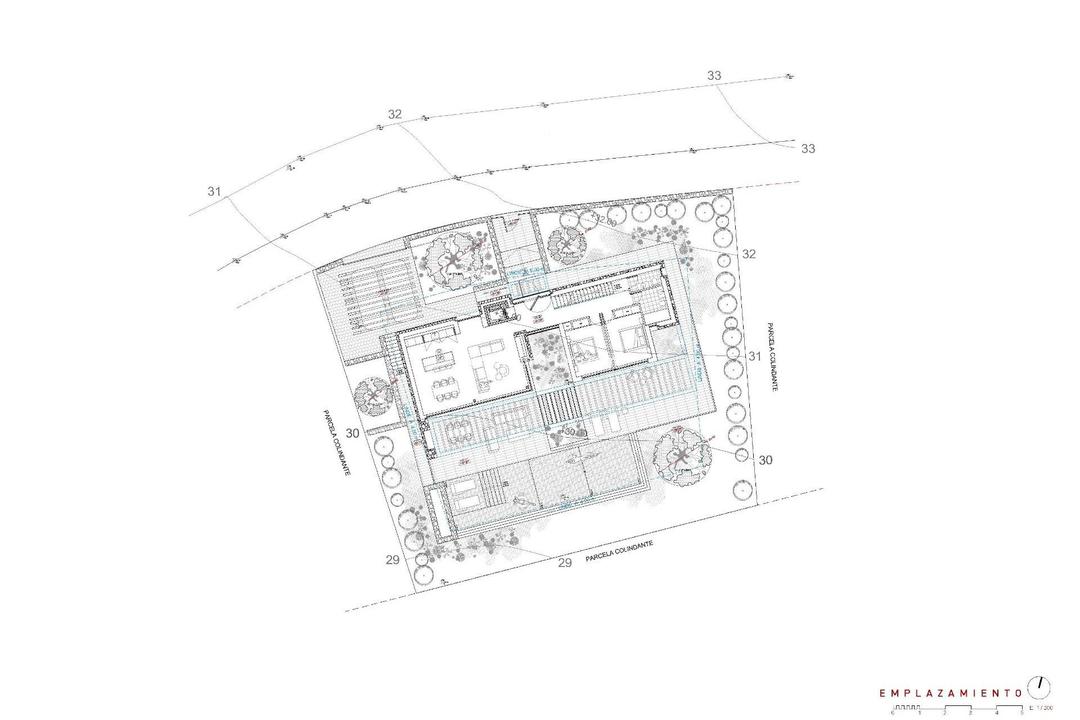
Contemporary Villa with Panoramic Sea Views in La Fustera, Benissa Costa This exclusive new-build villa, designed by a renowned architect and developed by a local developer with more than 20 years experience, sits on an 800 m² plot just a few steps from La Fustera Beach.
Blending Mediterranean warmth with contemporary elegance, the architecture combines natural stone, wood, and soft neutral tones, integrating seamlessly with the coastal landscape.
With a total built area of 716 m² distributed over three levels - basement, ground floor, and first floor - the villa offers a perfect balance between functionality, design, and comfort.
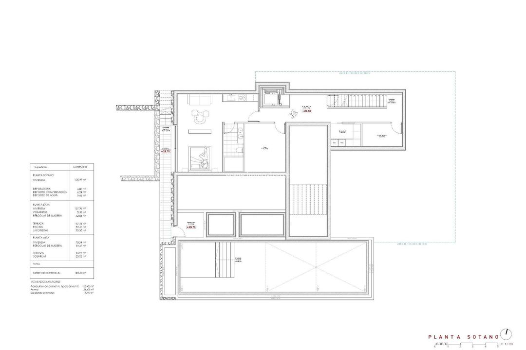
Basement LevelThe lower floor of 105.97 m² is designed for both practicality and leisure.
It includes a fully equipped gym, laundry room, and technical areas, with the option to adapt additional spaces as a wine cellar, cinema, or multipurpose room.
This level also houses the pool’s filtration system and water tanks, ensuring efficient management of all technical installations.
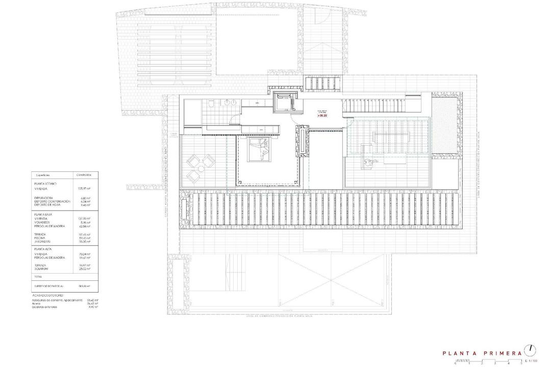
Ground FloorThe main level, with 137.93 m², unfolds in a bright open-plan layout that captures the essence of Mediterranean living.
The spacious living room, dining area, and kitchen open through large floorto-ceiling windows onto the main terrace and infinity pool, framing incredible panoramic sea views that define the character of this home.
Two double bedrooms, a full bathroom, and a guest toilet complete this floor, providing comfort and functionality.
Outside, a wooden pergola shades the outdoor lounge and dining areas, surrounded by lush gardens, sun terraces, and a 59.40 m² infinity pool that visually merges with the sea.
First FloorThe upper level, with 70.19 m², is reserved for the master suite - a private retreat featuring a walk-in closet, en-suite bathroom, and a large private terrace with breathtaking views of the Mediterranean Sea.
A second bedroom or office space completes this floor, which also provides access to a 25.02 m² solarium, ideal for relaxing under the sun and enjoying the serenity of the surroundings.
Exterior and LocationLocated on a quiet residential street surrounded by modern villas, this property enjoys an exceptional position just a 3-minute walk from La Fustera Beach (150m), the Mandala Beach Bar & Restaurant, and essential amenities such as supermarkets and local services.
Designed with an emphasis on light, space, and seamless indoor-outdoor living, this villa embodies the modern Mediterranean lifestyle - elegant, relaxed, and in perfect harmony with its spectacular panoramic sea views.
Secure your dream villa in La Fustera, Benissa Costa, and embrace the ultimate Mediterranean lifestyle with breathtaking sea views and unmatched comfort.
Moderne Villa mit Panoramablick auf das Meer in La Fustera, Benissa Costa Diese exklusive Neubauvilla, die von einem renommierten Architekten entworfen und von einem lokalen Bauträger mit mehr als 20 Jahren Erfahrung entwickelt wurde, befindet sich auf einem 800 m² großen Grundstück, nur wenige Schritte vom Strand La Fustera entfernt.
Die Architektur verbindet mediterrane Wärme mit zeitgenössischer Eleganz und kombiniert Naturstein, Holz und sanfte, neutrale Farbtöne, die sich nahtlos in die Küstenlandschaft einfügen.
Mit einer Gesamtfläche von 716 m², verteilt auf drei Ebenen – Untergeschoss, Erdgeschoss und erster Stock – bietet die Villa eine perfekte Balance zwischen Funktionalität, Design und Komfort.
Untergeschoss Die untere Etage mit 105,97 m² ist sowohl auf Praktikabilität als auch auf Freizeitgestaltung ausgelegt.
Sie umfasst einen voll ausgestatteten Fitnessraum, eine Waschküche und Technikräume, mit der Möglichkeit, zusätzliche Räume als Weinkeller, Kino oder Mehrzweckraum zu nutzen.
Auf dieser Ebene befinden sich auch das Filtersystem und die Wassertanks des Pools, wodurch eine effiziente Verwaltung aller technischen Anlagen gewährleistet ist.
Erdgeschoss Die Hauptetage mit 137,93 m² präsentiert sich in einem hellen, offenen Grundriss, der die Essenz des mediterranen Lebens einfängt.
Das geräumige Wohnzimmer, der Essbereich und die Küche öffnen sich durch große, vom Boden bis zur Decke reichende Fenster zur Hauptterrasse und zum Infinity-Pool und rahmen den unglaublichen Panoramablick auf das Meer ein, der den Charakter dieses Hauses ausmacht.
Zwei Doppelschlafzimmer, ein komplettes Badezimmer und eine Gästetoilette vervollständigen diese Etage und bieten Komfort und Funktionalität.
Im Außenbereich spendet eine Holzpergola Schatten für den Lounge- und Essbereich, der von üppigen Gärten, Sonnenterrassen und einem 59,40 m² großen Infinity-Pool umgeben ist, der optisch mit dem Meer verschmilzt.
Erste Etage Die obere Etage mit 70,19 m² ist für die Master-Suite reserviert – ein privater Rückzugsort mit begehbarem Kleiderschrank, eigenem Bad und einer großen privaten Terrasse mit atemberaubendem Blick auf das Mittelmeer.
Ein zweites Schlafzimmer oder ein Büro vervollständigen diese Etage, die auch Zugang zu einem 25,02 m² großen Solarium bietet, ideal zum Entspannen unter der Sonne und zum Genießen der Ruhe der Umgebung.
Außenbereich und Lage Diese Immobilie befindet sich in einer ruhigen Wohnstraße, umgeben von modernen Villen, und genießt eine außergewöhnliche Lage, nur 3 Gehminuten vom Strand La Fustera (150 m), der Mandala Beach Bar & Restaurant und wichtigen Annehmlichkeiten wie Supermärkten und lokalen Dienstleistungen entfernt.
Diese Villa wurde mit Schwerpunkt auf Licht, Raum und nahtlosem Übergang zwischen Innen- und Außenbereich entworfen und verkörpert den modernen mediterranen Lebensstil – elegant, entspannt und in perfekter Harmonie mit dem spektakulären Panoramablick auf das Meer.
Sichern Sie sich Ihre Traumvilla in La Fustera, Benissa Costa, und genießen Sie den ultimativen mediterranen Lebensstil mit atemberaubendem Meerblick und unvergleichlichem Komfort.
Villa contemporánea con vistas panorámicas al mar en La Fustera, Benissa Costa Esta exclusiva villa de nueva construcción, diseñada por un arquitecto de renombre y desarrollada por un promotor local con más de 20 años de experiencia, se encuentra en una parcela de 800 m² a pocos pasos de la playa de La Fustera.
La arquitectura, que combina la calidez mediterránea con la elegancia contemporánea, integra piedra natural, madera y tonos neutros suaves, integrándose a la perfección en el paisaje costero.
Con una superficie total construida de 716 m² distribuidos en tres niveles (sótano, planta baja y primera planta), la villa ofrece un equilibrio perfecto entre funcionalidad, diseño y comodidad.
Planta sótanoLa planta baja, de 105,97 m², está diseñada para ser práctica y lúdica.
Incluye un gimnasio totalmente equipado, un lavadero y zonas técnicas, con la opción de adaptar espacios adicionales como bodega, cine o sala polivalente.
En esta planta también se encuentran el sistema de filtración de la piscina y los depósitos de agua, lo que garantiza una gestión eficiente de todas las instalaciones técnicas.
Planta bajaLa planta principal, de 137,93 m², se desarrolla en una luminosa distribución diáfana que captura la esencia de la vida mediterránea.
El espacioso salón, el comedor y la cocina se abren a través de grandes ventanales que van del suelo al techo a la terraza principal y a la piscina infinita, enmarcando las increíbles vistas panorámicas al mar que definen el carácter de esta vivienda.
Dos dormitorios dobles, un cuarto de baño completo y un aseo completan esta planta, proporcionando comodidad y funcionalidad.
En el exterior, una pérgola de madera da sombra a las zonas de salón y comedor al aire libre, rodeadas de exuberantes jardines, terrazas y una piscina infinita de 59,40 m² que se funde visualmente con el mar.
Primera plantaLa planta superior, con 70,19 m², está reservada para la suite principal, un refugio privado con vestidor, baño en suite y una gran terraza privada con impresionantes vistas al mar Mediterráneo.
Un segundo dormitorio o espacio de oficina completa esta planta, que también da acceso a un solárium de 25,02 m², ideal para relajarse bajo el sol y disfrutar de la serenidad del entorno.
Exterior y ubicaciónSituada en una tranquila calle residencial rodeada de modernas villas, esta propiedad goza de una ubicación excepcional a solo 3 minutos a pie de la playa de La Fustera (150 m), el Mandala Beach Bar & Restaurant y servicios esenciales como supermercados y servicios locales.
Diseñada con énfasis en la luz, el espacio y la vida interior-exterior sin fisuras, esta villa encarna el estilo de vida mediterráneo moderno: elegante, relajado y en perfecta armonía con sus espectaculares vistas panorámicas al mar.
Asegúrese la villa de sus sueños en La Fustera, Benissa Costa, y disfrute del mejor estilo de vida mediterráneo con impresionantes vistas al mar y un confort inigualable.
Moderne villa met panoramisch uitzicht op zee in La Fustera, Benissa Costa Deze exclusieve nieuwbouwwoning, ontworpen door een gerenommeerde architect en ontwikkeld door een lokale projectontwikkelaar met meer dan 20 jaar ervaring, ligt op een perceel van 800 m², op slechts een steenworp afstand van het strand van La Fustera.
De architectuur combineert mediterrane warmte met eigentijdse elegantie en maakt gebruik van natuursteen, hout en zachte neutrale tinten, waardoor het gebouw naadloos opgaat in het kustlandschap.
Met een totale bebouwde oppervlakte van 716 m², verdeeld over drie verdiepingen - kelder, begane grond en eerste verdieping - biedt de villa een perfecte balans tussen functionaliteit, design en comfort.
KelderDe benedenverdieping van 105,97 m² is ontworpen met het oog op zowel functionaliteit als ontspanning.
Het omvat een volledig uitgeruste fitnessruimte, wasruimte en technische ruimtes, met de mogelijkheid om extra ruimtes aan te passen als wijnkelder, bioscoop of multifunctionele ruimte.
Op dit niveau bevinden zich ook het filtersysteem en de watertanks van het zwembad, waardoor een efficiënt beheer van alle technische installaties wordt gegarandeerd.
Begane grondDe hoofdverdieping, met een oppervlakte van 137,93 m², heeft een lichte, open indeling die de essentie van het mediterrane leven weerspiegelt.
De ruime woonkamer, eetkamer en keuken komen via grote ramen van vloer tot plafond uit op het hoofdterras en het overloopzwembad, met een prachtig panoramisch uitzicht op zee dat het karakter van deze woning bepaalt.
Twee tweepersoonsslaapkamers, een complete badkamer en een gastentoilet maken deze verdieping compleet en bieden comfort en functionaliteit.
Buiten zorgt een houten pergola voor schaduw in de buitenlounge en eetgedeeltes, omgeven door weelderige tuinen, zonneterrassen en een 59,40 m² groot overloopzwembad dat visueel versmelt met de zee.
Eerste verdiepingDe bovenverdieping, met een oppervlakte van 70,19 m², is gereserveerd voor de master suite - een privéretraite met een inloopkast, een en-suite badkamer en een groot privéterras met adembenemend uitzicht op de Middellandse Zee.
Een tweede slaapkamer of kantoorruimte maakt deze verdieping compleet, die ook toegang biedt tot een solarium van 25,02 m², ideaal om te ontspannen in de zon en te genieten van de rust van de omgeving.
Buitenkant en locatieDeze woning ligt in een rustige woonstraat, omringd door moderne villa's, en geniet van een uitzonderlijke ligging op slechts 3 minuten lopen van het strand van La Fustera (150 m), de Mandala Beach Bar & Restaurant en essentiële voorzieningen zoals supermarkten en lokale diensten.
Deze villa is ontworpen met de nadruk op licht, ruimte en een naadloze overgang tussen binnen en buiten, en belichaamt de moderne mediterrane levensstijl: elegant, ontspannen en in perfecte harmonie met het spectaculaire panoramische uitzicht op zee.
Verzeker uzelf van uw droomvilla in La Fustera, Benissa Costa, en omarm de ultieme mediterrane levensstijl met adembenemend uitzicht op zee en ongeëvenaard comfort.
Thinking of buying in Jávea? Here's what life is really like for foreign residents — the neighbourhoods, lifestyle, cost...
A comprehensive overview of the Spanish real estate market in 2026 — trends, hotspots, prices, and essential tips for in...
Considering living in El Mojón on the Costa Blanca? A practical, honest guide for retirees and second-home buyers explor...