Located in the prestigious area of Teulada-Moraira, this stunning traditional Mediterranean-style residence offers a unique combination of classic elegance and modern comfort.
This exceptional home sits on a 1,050 m² plot, providing a spacious and welcoming environment.
With a built area of 589.05 m² and a 572.39 m² garden, this residence is designed to offer maximum comfort and functionality.
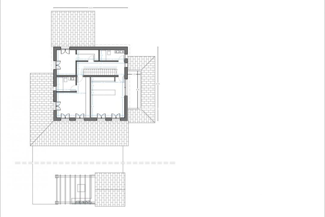
Upon entering, you are greeted by a vestibule leading to a spacious living-dining room with an integrated kitchen, creating an open and bright space perfect for family living and entertaining.
From here, you have direct access to the terrace and pool area, ideal for enjoying the Mediterranean climate.
The ground floor features a master bedroom with an en-suite bathroom and ample storage.
Additionally, there is a second bathroom, a laundry room, and a staircase leading to the upper floor.
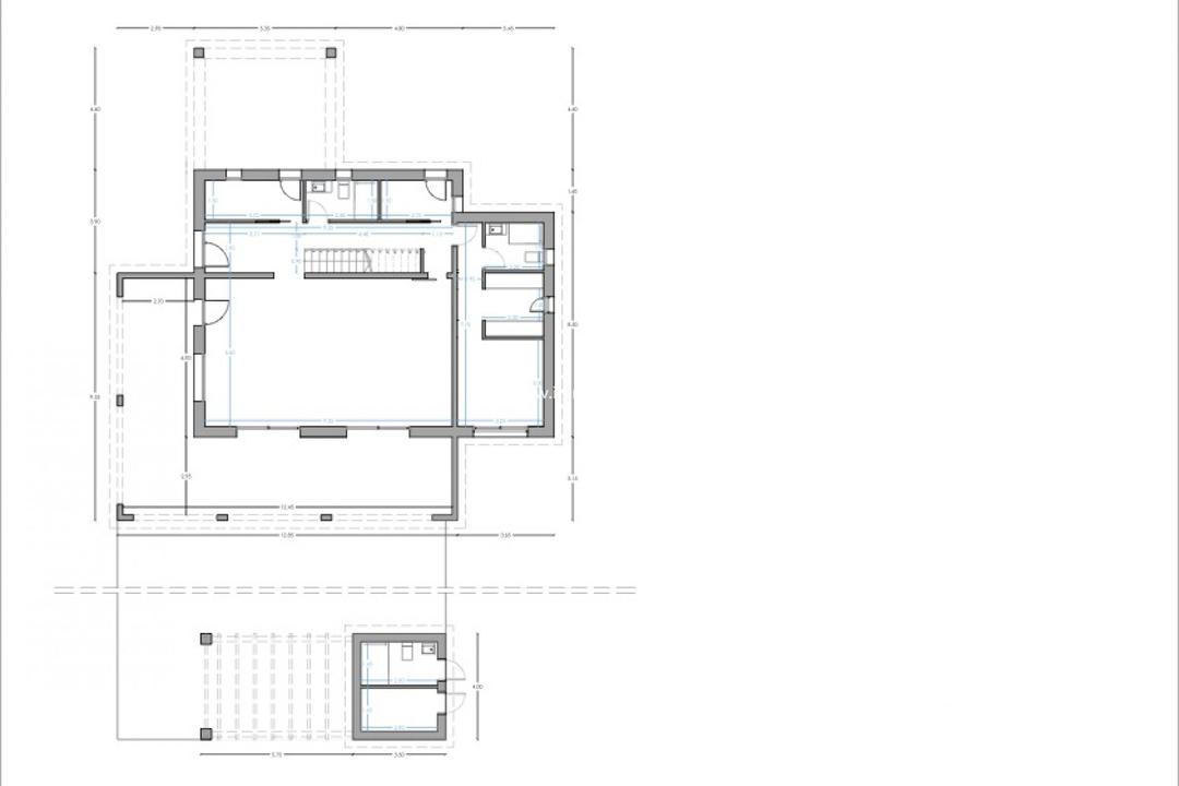
The first floor includes three additional bedrooms, all designed with attention to detail and comfort, and three full bathrooms.
The multifunctional basement houses a wine cellar, providing an ideal space for storing wines and other special products, and offers additional access to the garage, adding convenience and utility to the residence.
The exterior includes multiple terraces with panoramic views and various environments for relaxation or entertaining guests.
The pool, accompanied by a pergola and a terrace porch, creates the perfect setting for summer nights.
The garden adds a touch of nature and tranquility, making this property a true oasis.
This residence is not just a home; it is a lifestyle.
Designed to offer maximum luxury and comfort, it is perfect for those seeking an exclusive residence in a prime location.
Don’t miss the opportunity to live in one of the most beautiful places on the Costa Blanca.
For more information or to schedule a visit, please contact us.
We are here to help you find your dream home.
Diese beeindruckende Residenz im traditionellen mediterranen Stil liegt in der prestigeträchtigen Gegend von Teulada-Moraira und bietet eine einzigartige Kombination aus klassischer Eleganz und modernem Komfort.
Dieses außergewöhnliche Haus befindet sich auf einem 1.050 m² großen Grundstück und bietet eine geräumige und einladende Umgebung.
Mit einer bebauten Fläche von 589,05 m² und einem 572,39 m² großen Garten ist diese Residenz darauf ausgelegt, maximalen Komfort und Funktionalität zu bieten.
Beim Betreten werden Sie von einem Vestibül begrüßt, das zu einem geräumigen Wohn-Essbereich mit integrierter Küche führt, der einen offenen und hellen Raum schafft, der perfekt für das Familienleben und die Unterhaltung geeignet ist.
Von hier aus haben Sie direkten Zugang zur Terrasse und zum Poolbereich, ideal, um das mediterrane Klima zu genießen.
Das Erdgeschoss verfügt über ein Hauptschlafzimmer mit eigenem Bad und reichlich Stauraum.
Zusätzlich gibt es ein zweites Badezimmer, einen Waschraum und eine Treppe, die in das obere Stockwerk führt.
Das erste Obergeschoss umfasst drei weitere Schlafzimmer, die alle mit Liebe zum Detail und Komfort gestaltet sind, sowie drei voll ausgestattete Badezimmer.
Das multifunktionale Untergeschoss beherbergt einen Weinkeller, der ideal für die Lagerung von Weinen und anderen besonderen Produkten ist, und bietet zusätzlichen Zugang zur Garage, was der Residenz zusätzlichen Komfort und Nutzen verleiht.
Der Außenbereich umfasst mehrere Terrassen mit Panoramablick und verschiedenen Bereichen zur Entspannung oder zum Empfang von Gästen.
Der Pool, begleitet von einer Pergola und einem Terrassenporch, schafft die perfekte Kulisse für Sommerabende.
Der Garten verleiht der Immobilie einen Hauch von Natur und Ruhe und macht sie zu einer echten Oase.
Diese Residenz ist nicht nur ein Zuhause; sie ist ein Lebensstil.
Entworfen, um maximalen Luxus und Komfort zu bieten, ist sie perfekt für diejenigen, die eine exklusive Residenz in erstklassiger Lage suchen.
Verpassen Sie nicht die Gelegenheit, in einem der schönsten Orte an der Costa Blanca zu leben.
Für weitere Informationen oder zur Vereinbarung eines Besichtigungstermins kontaktieren Sie uns bitte.
Wir sind hier, um Ihnen zu helfen, Ihr Traumhaus zu finden.
Ubicada en la prestigiosa zona de Teulada-Moraira, esta impresionante residencia de estilo tradicional mediterráneo ofrece una combinación única de elegancia clásica y comodidad moderna.
Esta casa excepcional se asienta en una parcela de 1.050 m², proporcionando un entorno espacioso y acogedor.
Con una superficie construida de 589,05 m² y un jardín de 572,39 m², esta residencia está diseñada para ofrecer el máximo confort y funcionalidad.
Al entrar, se encuentra un vestíbulo que conduce a un amplio salón-comedor con cocina integrada, creando un espacio abierto y luminoso perfecto para la vida familiar y el entretenimiento.
Desde aquí, se accede directamente a la terraza y la zona de la piscina, ideal para disfrutar del clima mediterráneo.
La planta baja dispone de un dormitorio principal con baño en suite y un amplio almacenamiento.
Además, cuenta con un segundo baño, un lavadero y una escalera que conduce a la planta superior.
En la primera planta, se encuentran tres dormitorios adicionales, todos diseñados con atención al detalle y al confort, y tres baños completos.
El sótano multifuncional alberga una bodega, proporcionando un espacio ideal para almacenar vinos y otros productos especiales, y ofrece acceso adicional al garaje, añadiendo comodidad y utilidad a la residencia.
Los exteriores incluyen múltiples terrazas con vistas panorámicas y diferentes ambientes para relajarse o recibir invitados.
La piscina, acompañada por una pérgola y un porche terraza, crea el escenario perfecto para las noches de verano.
El jardín añade un toque de naturaleza y tranquilidad, haciendo de esta propiedad un verdadero oasis.
Esta residencia no es solo una vivienda; es un estilo de vida.
Diseñada para ofrecer el máximo lujo y confort, es perfecta para quienes buscan una residencia exclusiva en una ubicación privilegiada.
No pierda la oportunidad de vivir en uno de los lugares más bellos de la Costa Blanca.
Para más información o para programar una visita, no dude en ponerse en contacto con nosotros.
Estamos aquí para ayudarle a encontrar la casa de sus sueños.
Deze indrukwekkende residentie in traditionele mediterrane stijl ligt in de prestigieuze omgeving van Moraira en biedt een unieke combinatie van klassieke elegantie en modern comfort.
Dit uitzonderlijke huis bevindt zich op een perceel van 1.050 m² en biedt een ruime en gastvrije omgeving.
Met een bebouwde oppervlakte van 589,05 m² en een tuin van 572,39 m² is deze residentie ontworpen om maximaal comfort en functionaliteit te bieden.
Bij binnenkomst wordt u verwelkomd door een vestibule die leidt naar een ruime woon-eetkamer met een geïntegreerde keuken, die een open en lichte ruimte creëert die perfect is voor gezinsleven en entertainment.
Van hieruit heeft u direct toegang tot het terras en het zwembadgedeelte, ideaal om te genieten van het mediterrane klimaat.
De begane grond beschikt over een hoofdslaapkamer met een eigen badkamer en voldoende opslagruimte.
Daarnaast is er een tweede badkamer, een wasruimte en een trap die naar de bovenverdieping leidt.
De eerste verdieping omvat drie extra slaapkamers, die allemaal zijn ontworpen met oog voor detail en comfort, en drie volledige badkamers.
De multifunctionele kelder herbergt een wijnkelder, die een ideale ruimte biedt voor het opslaan van wijnen en andere speciale producten, en biedt extra toegang tot de garage, wat extra gemak en nut toevoegt aan de residentie.
De buitenruimte omvat meerdere terrassen met panoramisch uitzicht en verschillende omgevingen om te ontspannen of gasten te ontvangen.
Het zwembad, vergezeld van een pergola en een terrasveranda, creëert de perfecte setting voor zomeravonden.
De tuin voegt een vleugje natuur en rust toe, waardoor deze eigendom een echte oase is.
Deze residentie is niet zomaar een huis; het is een levensstijl.
Ontworpen om maximaal luxe en comfort te bieden, is het perfect voor diegenen die op zoek zijn naar een exclusieve residentie op een toplocatie.
Mis de kans niet om te wonen op een van de mooiste plekken aan de Costa Blanca.
Neem voor meer informatie of om een bezichtiging te plannen contact met ons op.
Wij zijn hier om u te helpen uw droomhuis te vinden.
Thinking of buying in Jávea? Here's what life is really like for foreign residents — the neighbourhoods, lifestyle, cost...
A comprehensive overview of the Spanish real estate market in 2026 — trends, hotspots, prices, and essential tips for in...
Considering living in El Mojón on the Costa Blanca? A practical, honest guide for retirees and second-home buyers explor...