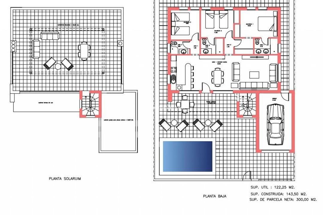
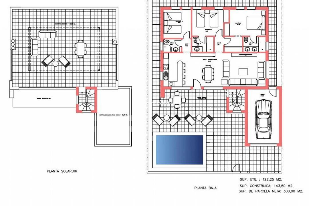
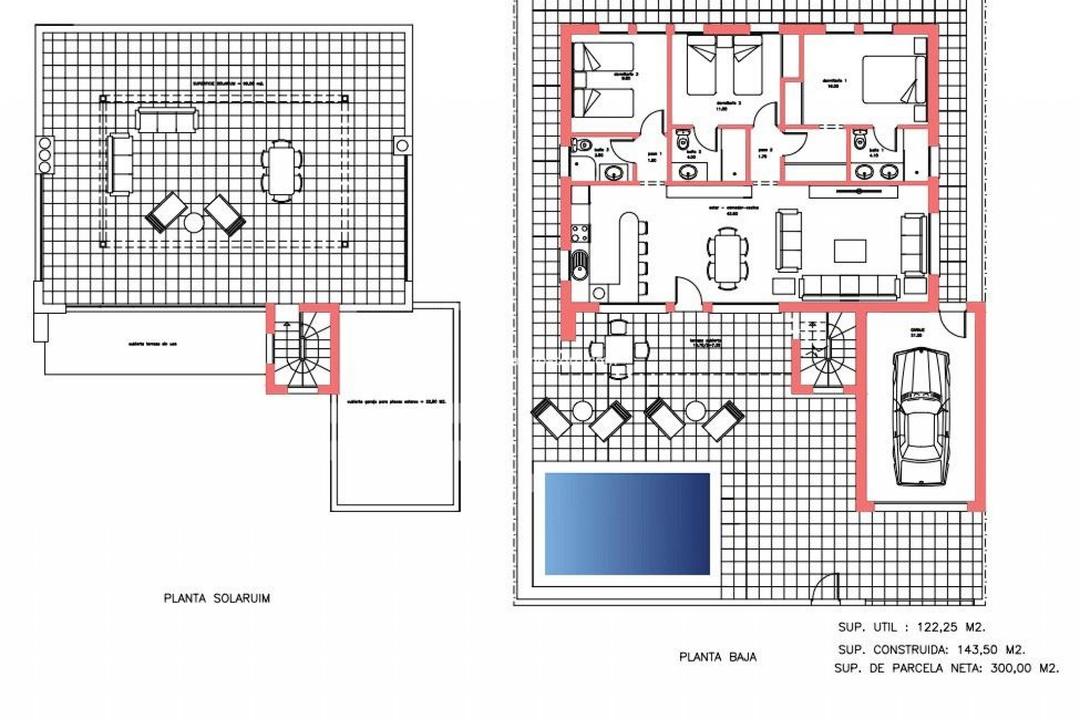
NEW BUILD TOWNHOUSES IN FUENTE ALAMO, MURCIA New Build residential of villas and townhouses in in Fuente Álamo, Murcia.
This location offers an exceptional natural setting, away from the hustle and bustle of the big cities and the tourist pressure of the coast.
Furthermore, we are committed to working from a sustainable development perspective, minimising our environmental impact and maximising integration with the local community.
Here your dreams of a peaceful and sustainable lifestyle come true.
Imagine waking up every morning in a stunning natural setting, surrounded by serene landscapes and the unique beauty of the Murcia countryside.
New build projects prioritise energy efficiency, the use of environmentally friendly materials and harmonious integration with the rural environment.
From property design to development planning to reduce our carbon footprint and promote responsible practices in all operations.
Development giving priority to energy efficiency and community integration to create high quality housing in harmony with the natural environment.
Pre-installation of ducted air conditioning system, hot / cold, installation of machines in the options.
Video intercom system.
Security access door lacquered in colour, with lock and anti-vandalism security fittings.
Wardrobes with boot, lined on the inside, lacquered in white.
Kitchen furniture not included (optional):- Furnished with wall and base units.
Fully equipped.
Possibility of any type of modification by the client.- Stone worktop.- Stainless steel sink, with Roca or similar mixer taps.- Vitroceramic hob, extractor hood and electric oven, stainless steel.
Balay or similar.
Photovoltaic solar panels system, with accumulator tank.
Pre-installation of ducted air-conditioning system, hot/cold, installation of machines in options.
Optional private swimming pool at additional cost with submerged night lighting and purification with saline chlorination system.
Possibility of making modifications to the property, subject to prior valuation approved by both parties.
Fuente Álamo de Murcia is a town and municipality in the Region of Murcia, southern Spain.
It is situated 22 km northwest of Cartagena and 35 km south west of Murcia.
The town lies in the basin of the Mar Menor surrounded by the mountains of Algarrobo, Los Gómez, Los Victorias and the Carrascoy.
The water from these mountains flows down into the Rambla de Fuente Álamo and then onto the Mar Menor.
Fuente Álamo located 30 minutes from Murcia - Corvera airport.
NEU GEBAUTE VILLEN IN FUENTE ALAMO, MURCIA Neubau von Villen und Stadthäusern in Fuente Álamo, Murcia.
Dieser Standort bietet eine außergewöhnliche natürliche Umgebung, weit weg von der Hektik der Großstädte und dem touristischen Druck der Küste.
Darüber hinaus sind wir bestrebt, unter dem Gesichtspunkt der nachhaltigen Entwicklung zu arbeiten, die Auswirkungen auf die Umwelt zu minimieren und die Integration in die lokale Gemeinschaft zu maximieren.
Hier werden Ihre Träume von einem friedlichen und nachhaltigen Lebensstil wahr.
Stellen Sie sich vor, Sie wachen jeden Morgen in einer atemberaubenden natürlichen Umgebung auf, umgeben von ruhigen Landschaften und der einzigartigen Schönheit der Landschaft Murcias.
Bei Neubauprojekten stehen Energieeffizienz, die Verwendung umweltfreundlicher Materialien und die harmonische Integration in die ländliche Umgebung im Vordergrund.
Vom Grundstücksdesign bis zur Erschließungsplanung, um unseren CO2-Fußabdruck zu reduzieren und verantwortungsvolle Praktiken in allen Bereichen zu fördern.
Bei der Entwicklung wird der Energieeffizienz und der Integration in die Gemeinschaft Vorrang eingeräumt, um qualitativ hochwertige Wohnungen in Harmonie mit der natürlichen Umgebung zu schaffen.
Pre-Installation von Kanal-Klimaanlage, warm / kalt, die Installation von Maschinen in den Optionen.
Video-Gegensprechanlage.
Farbig lackierte Sicherheitszugangstür mit Schloss und Vandalismusschutzbeschlägen.
Schränke mit Kofferraum, innen gefüttert, weiß lackiert.
Küchenmöbel nicht inbegriffen (optional): - Jede Art von Änderung durch den Kunden ist möglich.
- Arbeitsplatte aus Stein.
- Spüle aus Edelstahl, mit Mischbatterien von Roca oder ähnlichem.
- Vitrokeramik-Kochfeld, Dunstabzugshaube und Elektrobackofen, Edelstahl.
Balay oder ähnlich.
Photovoltaische Solaranlage, mit Akkumulatortank.
Vorinstallation der Klimaanlage, warm/kalt, Installation von Maschinen in Optionen.
Optionales privates Schwimmbad gegen Aufpreis mit untergetauchter Nachtbeleuchtung und Reinigung mit Kochsalz-Chlor-System.
Es besteht die Möglichkeit, Änderungen an der Immobilie vorzunehmen, vorbehaltlich einer von beiden Parteien genehmigten Bewertung.
Fuente Álamo de Murcia ist eine Stadt und Gemeinde in der Region Murcia in Südspanien.
Sie befindet sich 22 km nordwestlich von Cartagena und 35 km südwestlich von Murcia.
Die Stadt liegt im Becken des Mar Menor, umgeben von den Bergen Algarrobo, Los Gómez, Los Victorias und dem Carrascoy.
Das Wasser aus diesen Bergen fließt in die Rambla de Fuente Álamo und von dort in das Mar Menor.
Fuente Álamo liegt 30 Minuten vom Flughafen Murcia - Corvera entfernt.
VILLAS DE OBRA NUEVA EN FUENTE ALAMO, MURCIA Residencial de obra nueva de villas y adosados en en Fuente Álamo, Murcia.
Esta ubicación ofrece un entorno natural excepcional, alejado del bullicio de las grandes ciudades y de la presión turística de la costa.
Además, estamos comprometidos a trabajar desde una perspectiva de desarrollo sostenible, minimizando nuestro impacto medioambiental y maximizando la integración con la comunidad local.
Aquí sus sueños de un estilo de vida tranquilo y sostenible se hacen realidad.
Imagine despertarse cada mañana en un entorno natural impresionante, rodeado de paisajes serenos y de la belleza única de la campiña murciana.
Los proyectos de nueva construcción priorizan la eficiencia energética, el uso de materiales respetuosos con el medio ambiente y la integración armoniosa con el entorno rural.
Desde el diseño de la propiedad hasta la planificación del desarrollo para reducir nuestra huella de carbono y promover prácticas responsables en todas las operaciones.
Desarrollo dando prioridad a la eficiencia energética y la integración comunitaria para crear viviendas de alta calidad en armonía con el entorno natural.
Pre-instalación de sistema de aire acondicionado por conductos, frío / calor, instalación de máquinas en las opciones.
Sistema de video portero.
Puerta de acceso de seguridad lacada en color, con cerradura y herrajes de seguridad antivandálicos.
Armarios con maletero, forrados interiormente, lacados en blanco.
Muebles de Cocina no incluidos (opcional):- Posibilidad de cualquier tipo de modificación por parte del cliente.- Encimera de piedra.- Fregadero de acero inoxidable, con grifería monomando Roca o similar.- Placa vitrocerámica, campana extractora y horno eléctrico, de acero inoxidable.
Balay o similar.
Sistema de placas solares fotovoltaicas, con depósito acumulador.
Preinstalación de aire acondicionado por conductos, frío/calor, instalación de máquinas en opciones.
Piscina privada opcional con coste adicional con iluminación nocturna sumergida y depuración con sistema de cloración salina.
Posibilidad de realizar modificaciones en la vivienda, previa valoración aprobada por ambas partes.
Fuente Álamo de Murcia es una localidad y municipio de la Región de Murcia, al sur de España.
Está situada a 22 km al noroeste de Cartagena y a 35 km al suroeste de Murcia.
La ciudad se encuentra en la cuenca del Mar Menor, rodeada por las sierras de Algarrobo, Los Gómez, Los Victorias y Carrascoy.
El agua de estas montañas fluye hacia abajo en la Rambla de Fuente Álamo y luego en el Mar Menor.
Fuente Álamo se encuentra a 30 minutos del aeropuerto de Murcia - Corvera.
NIEUWBOUW VILLA'S IN FUENTE ALAMO, MURCIA Nieuwbouw van villa's en koppelbouw in Fuente Álamo, Murcia.
Deze locatie biedt een uitzonderlijke natuurlijke omgeving, weg van de drukte van de grote steden en de toeristische druk van de kust.
Bovendien werken we vanuit het perspectief van duurzame ontwikkeling, minimaliseren we onze impact op het milieu en maximaliseren we de integratie met de lokale gemeenschap.
Hier worden je dromen over een vredige en duurzame levensstijl werkelijkheid.
Stel je voor dat je elke ochtend wakker wordt in een prachtige natuurlijke omgeving, omringd door serene landschappen en de unieke schoonheid van het platteland van Murcia.
Nieuwbouwprojecten geven prioriteit aan energie-efficiëntie, het gebruik van milieuvriendelijke materialen en harmonieuze integratie met de landelijke omgeving.
Van het ontwerp van onroerend goed tot de planning van de ontwikkeling om onze ecologische voetafdruk te verkleinen en verantwoorde praktijken in alle activiteiten te bevorderen.
Ontwikkeling met prioriteit voor energie-efficiëntie en integratie in de gemeenschap om hoogwaardige huisvesting te creëren in harmonie met de natuurlijke omgeving.
Pre-installatie van gekanaliseerd airconditioningsysteem, warm/koud, installatie van machines in de opties.
Video-intercomsysteem.
Veiligheidstoegangsdeur gelakt in kleur, met slot en anti-vandalisme veiligheidsbeslag.
Garderobekasten met koffer, bekleed aan de binnenkant, gelakt in wit.
Keukenmeubels niet inbegrepen (optioneel):- Ingericht met boven- en onderkasten.
Volledig uitgerust.
Mogelijkheid tot elk type aanpassing door de klant.- Stenen werkblad.- Roestvrij stalen gootsteen, met Roca of vergelijkbare mengkranen.- Vitrokeramische kookplaat, afzuigkap en elektrische oven, roestvrij staal.
Balay of gelijkwaardig.
Systeem van fotovoltaïsche zonnepanelen, met buffervat.
Pre-installatie van airconditioning met kanalen, warm/koud, installatie van machines in opties.
Optioneel privé zwembad tegen meerprijs met nachtverlichting en zuivering met zout chloorsysteem.
Mogelijkheid tot het aanbrengen van wijzigingen aan de woning, onder voorbehoud van voorafgaande taxatie goedgekeurd door beide partijen.
Fuente Álamo de Murcia is een stad en gemeente in de regio Murcia, Zuid-Spanje.
Het ligt 22 km ten noordwesten van Cartagena en 35 km ten zuidwesten van Murcia.
De stad ligt in het stroomgebied van de Mar Menor, omringd door de bergen Algarrobo, Los Gómez, Los Victorias en de Carrascoy.
Het water van deze bergen stroomt naar beneden in de Rambla de Fuente Álamo en vervolgens naar de Mar Menor.
Fuente Álamo ligt op 30 minuten van de luchthaven van Murcia - Corvera.
Thinking of buying in Jávea? Here's what life is really like for foreign residents — the neighbourhoods, lifestyle, cost...
A comprehensive overview of the Spanish real estate market in 2026 — trends, hotspots, prices, and essential tips for in...
Considering living in El Mojón on the Costa Blanca? A practical, honest guide for retirees and second-home buyers explor...