New Build Apartments in Bigastro Costa Blanca Modern Residential Living in Vega Baja del Segura This new residential development is located in the heart of the Vega Baja del Segura region, in the charming town of Bigastro, Alicante.
Known for its peaceful atmosphere and traditional surroundings, Bigastro offers an excellent balance between nature, comfort and proximity to the main coastal destinations of the Costa Blanca.
Just minutes from Orihuela and within easy reach of Torrevieja and Guardamar del Segura, this location is ideal for those seeking tranquillity without giving up connectivity and services.
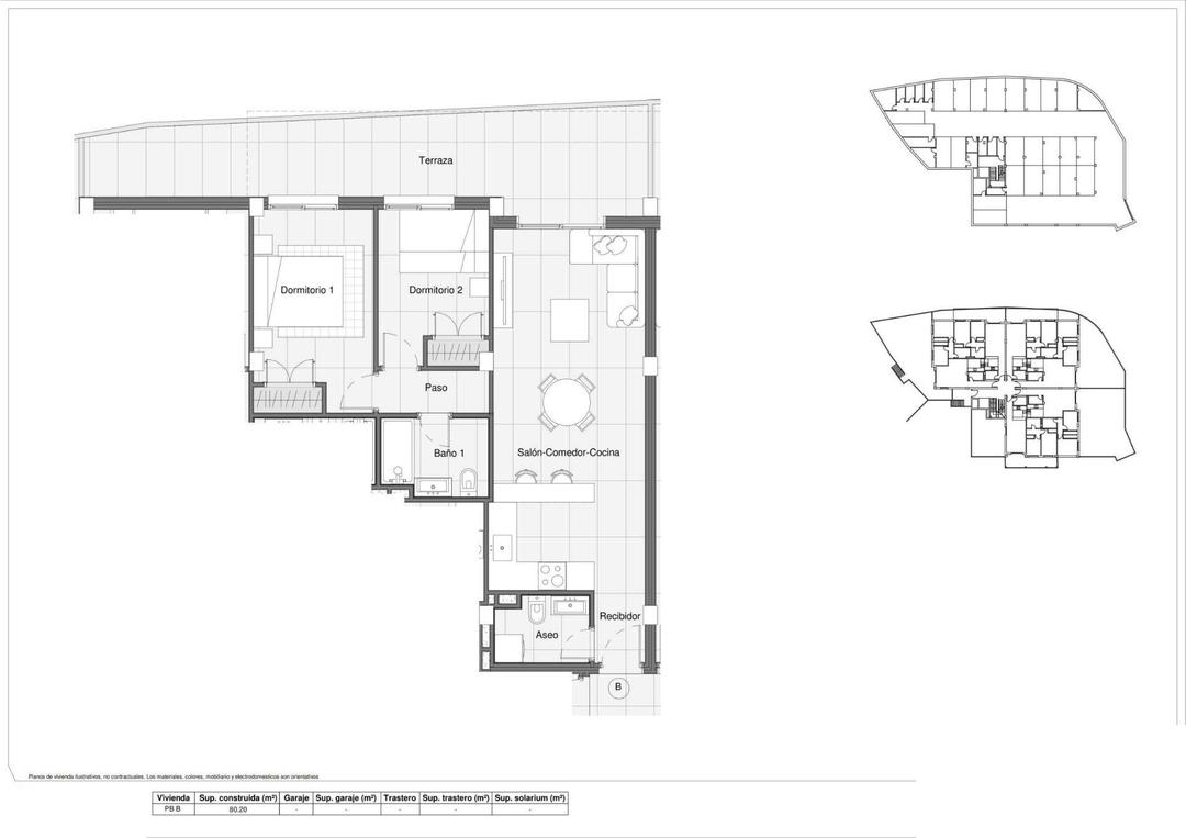
Contemporary Apartments with Outdoor Spaces The building consists of ground floor plus three levels and offers modern apartments with 2 bedrooms, 1 bathroom and 1 guest toilet, with enough space to add an additional shower.
Each home has been designed to maximise space and natural light.
Ground floor apartments feature large terraces or private gardens, middle floor properties offer spacious terraces, and penthouses enjoy private solariums, perfect for outdoor living all year round.
Quality Finishes and Included Features All apartments are delivered with high quality specifications designed for comfort and efficiency.
Features include full air conditioning installation by ducts, furnished kitchens equipped with appliances, electric shutters, and bathrooms fitted with furniture, mirrors and shower screens.
An underground parking space is included with every home, and selected units also benefit from a private storage room.
Communal Areas and Mediterranean Lifestyle The residential complex offers a well designed communal swimming pool and landscaped garden areas, creating a relaxing environment for residents.
Surrounded by traditional farmland, gentle hills and walking trails, the area invites outdoor activities such as walking and cycling, supporting a healthy Mediterranean lifestyle in a safe and welcoming setting.
Bigastro Location and Local Services Bigastro is a cosy municipality in the south of Alicante with all essential services nearby, including supermarkets, schools, medical centres, sports facilities and a varied gastronomic offer.
Despite its calm environment, the town enjoys excellent road connections via the AP 7 motorway, making travel along the Costa Blanca quick and easy.
Neubauwohnungen in Bigastro Costa Blanca Modernes Wohnen in Vega Baja del Segura Diese neue Wohnanlage befindet sich im Herzen der Region Vega Baja del Segura, in der charmanten Stadt Bigastro, Alicante.
Bigastro ist bekannt für seine friedliche Atmosphäre und seine traditionelle Umgebung und bietet eine ausgezeichnete Balance zwischen Natur, Komfort und der Nähe zu den wichtigsten Küstenorten der Costa Blanca.
Nur wenige Minuten von Orihuela entfernt und in der Nähe von Torrevieja und Guardamar del Segura gelegen, ist dieser Standort ideal für diejenigen, die Ruhe suchen, ohne auf Anbindung und Dienstleistungen verzichten zu müssen.
Moderne Wohnungen mit Außenbereichen Das Gebäude besteht aus einem Erdgeschoss und drei Etagen und bietet moderne Wohnungen mit 2 Schlafzimmern, 1 Badezimmer und 1 Gästetoilette, mit genügend Platz für eine zusätzliche Dusche.
Jede Wohnung wurde so gestaltet, dass der Platz und das natürliche Licht optimal genutzt werden.
Die Wohnungen im Erdgeschoss verfügen über große Terrassen oder private Gärten, die Wohnungen in den mittleren Etagen bieten geräumige Terrassen und die Penthäuser verfügen über private Sonnenterrassen, die sich perfekt für das Leben im Freien das ganze Jahr über eignen.
Hochwertige Ausstattung und inklusive Merkmale Alle Wohnungen werden mit hochwertigen Ausstattungsmerkmalen geliefert, die auf Komfort und Effizienz ausgelegt sind.
Zur Ausstattung gehören eine vollwertige Klimaanlage mit Luftkanälen, möblierte Küchen mit Geräten, elektrische Rollläden und Badezimmer mit Möbeln, Spiegeln und Duschwänden.
Zu jeder Wohnung gehört ein Tiefgaragenstellplatz, und ausgewählte Einheiten verfügen zusätzlich über einen privaten Abstellraum.
Gemeinschaftsbereiche und mediterraner Lebensstil Die Wohnanlage verfügt über einen schön gestalteten Gemeinschaftspool und landschaftlich gestaltete Gartenbereiche, die eine entspannte Umgebung für die Bewohner schaffen.
Umgeben von traditionellen Feldern, sanften Hügeln und Wanderwegen lädt die Gegend zu Outdoor-Aktivitäten wie Wandern und Radfahren ein und unterstützt einen gesunden mediterranen Lebensstil in einer sicheren und einladenden Umgebung.
Lage von Bigastro und lokale Dienstleistungen Bigastro ist eine gemütliche Gemeinde im Süden von Alicante, in deren Nähe alle wichtigen Dienstleistungen wie Supermärkte, Schulen, medizinische Zentren, Sportanlagen und ein vielfältiges gastronomisches Angebot zu finden sind.
Trotz ihrer ruhigen Lage verfügt die Stadt über eine hervorragende Verkehrsanbindung über die Autobahn AP 7, sodass man sich schnell und einfach entlang der Costa Blanca fortbewegen kann.
Entfernungen zu wichtigen Sehenswürdigkeiten Stadtzentrum von Orihuela: 5 km Strände von Guardamar del Segura: 25 km Torrevieja: 30 km Einkaufszentrum Zenia Boulevard: 30 km Internationaler Flughafen Alicante Elche: 55 km Nächstgelegene Golfplätze: 20 km Ein ideales Zuhause oder eine ideale Investitionsmöglichkeit Ob Sie nun einen dauerhaften Wohnsitz, ein Ferienhaus oder eine kluge Investition an der Costa Blanca suchen, diese neu gebauten Apartments in Bigastro bieten modernes Design, ein hervorragendes Preis-Leistungs-Verhältnis und eine ausgezeichnete Lage.
Kontaktieren Sie uns noch heute, um weitere Informationen zu erhalten oder einen Besichtigungstermin zu vereinbaren und sich Ihr neues Zuhause in der Region Vega Baja zu sichern.
Todas las viviendas incluyen una plaza de aparcamiento subterráneo y algunas unidades también disponen de un trastero privado.
Zonas comunes y estilo de vida mediterráneo El complejo residencial ofrece una piscina comunitaria bien diseñada y zonas ajardinadas, lo que crea un ambiente relajante para los residentes.
Apartamentos de nueva construcción en Bigastro, Costa Blanca Vida residencial moderna en la Vega Baja del Segura Esta nueva promoción residencial se encuentra en el corazón de la región de la Vega Baja del Segura, en la encantadora localidad de Bigastro, Alicante.
Conocida por su ambiente tranquilo y su entorno tradicional, Bigastro ofrece un excelente equilibrio entre naturaleza, comodidad y proximidad a los principales destinos costeros de la Costa Blanca.
A pocos minutos de Orihuela y con fácil acceso a Torrevieja y Guardamar del Segura, esta ubicación es ideal para aquellos que buscan tranquilidad sin renunciar a la conectividad y los servicios.
Apartamentos contemporáneos con espacios al aire libre El edificio consta de una planta baja y tres niveles y ofrece modernos apartamentos de 2 dormitorios, 1 baño y 1 aseo de invitados, con espacio suficiente para añadir una ducha adicional.
Cada vivienda ha sido diseñada para maximizar el espacio y la luz natural.
Los apartamentos de la planta baja cuentan con amplias terrazas o jardines privados, los de las plantas intermedias ofrecen amplias terrazas y los áticos disfrutan de soláriums privados, perfectos para vivir al aire libre durante todo el año.
Acabados de calidad y características incluidas Todos los apartamentos se entregan con especificaciones de alta calidad diseñadas para ofrecer comodidad y eficiencia.
Las características incluyen instalación completa de aire acondicionado por conductos, cocinas amuebladas y equipadas con electrodomésticos, persianas eléctricas y baños equipados con muebles, espejos y mamparas de ducha.
Rodeada de tierras de cultivo tradicionales, suaves colinas y senderos, la zona invita a realizar actividades al aire libre, como caminar y montar en bicicleta, lo que favorece un estilo de vida mediterráneo saludable en un entorno seguro y acogedor.
Ubicación de Bigastro y servicios locales Bigastro es un acogedor municipio del sur de Alicante que cuenta con todos los servicios esenciales en las inmediaciones, incluyendo supermercados, colegios, centros médicos, instalaciones deportivas y una variada oferta gastronómica.
A pesar de su entorno tranquilo, la localidad disfruta de excelentes conexiones por carretera a través de la autopista AP 7, lo que hace que los desplazamientos por la Costa Blanca sean rápidos y fáciles.
Distancias a puntos de interés clave Centro de Orihuela: 5 km Playas de Guardamar del Segura: 25 km Torrevieja: 30 km Centro comercial Zenia Boulevard: 30 km Aeropuerto Internacional de Alicante-Elche: 55 km Campos de golf más cercanos: 20 km Una vivienda ideal o una oportunidad de inversión Tanto si busca una residencia permanente, una vivienda vacacional o una inversión inteligente en la Costa Blanca, estos apartamentos de nueva construcción en Bigastro ofrecen un diseño moderno, una excelente relación calidad-precio y una ubicación privilegiada.
Póngase en contacto con nosotros hoy mismo para recibir más información o concertar una visita y asegurarse su nueva vivienda en la comarca de la Vega Baja.
Nieuwbouwappartementen in Bigastro Costa Blanca Modern wonen in Vega Baja del Segura Dit nieuwe woonproject ligt in het hart van de regio Vega Baja del Segura, in het charmante stadje Bigastro, Alicante.
Bigastro staat bekend om zijn rustige sfeer en traditionele omgeving en biedt een uitstekende balans tussen natuur, comfort en de nabijheid van de belangrijkste kustbestemmingen van de Costa Blanca.
Op slechts enkele minuten van Orihuela en binnen handbereik van Torrevieja en Guardamar del Segura, is deze locatie ideaal voor wie op zoek is naar rust zonder in te boeten aan bereikbaarheid en voorzieningen.
Eigentijdse appartementen met buitenruimtes Het gebouw bestaat uit een begane grond en drie verdiepingen en biedt moderne appartementen met 2 slaapkamers, 1 badkamer en 1 gastentoilet, met voldoende ruimte om een extra douche toe te voegen.
Elke woning is ontworpen om de ruimte en het natuurlijke licht optimaal te benutten.
De appartementen op de begane grond hebben grote terrassen of privétuinen, de appartementen op de middelste verdiepingen hebben ruime terrassen en de penthouses hebben een eigen solarium, perfect om het hele jaar door buiten te leven.
Hoogwaardige afwerking en inbegrepen voorzieningen Alle appartementen worden opgeleverd met hoogwaardige specificaties die zijn ontworpen voor comfort en efficiëntie.
Tot de voorzieningen behoren volledige airconditioning via luchtkanalen, ingerichte keukens met apparatuur, elektrische rolluiken en badkamers met meubilair, spiegels en doucheschermen.
Bij elke woning hoort een ondergrondse parkeerplaats en sommige woningen hebben ook een eigen berging.
Gemeenschappelijke ruimtes en mediterrane levensstijl Het wooncomplex biedt een goed ontworpen gemeenschappelijk zwembad en aangelegde tuinen, waardoor een ontspannen omgeving voor de bewoners wordt gecreëerd.
Omgeven door traditionele landbouwgrond, glooiende heuvels en wandelpaden, nodigt het gebied uit tot buitenactiviteiten zoals wandelen en fietsen, wat een gezonde mediterrane levensstijl in een veilige en gastvrije omgeving ondersteunt.
Locatie en lokale voorzieningen van Bigastro Bigastro is een gezellige gemeente in het zuiden van Alicante met alle essentiële voorzieningen in de buurt, waaronder supermarkten, scholen, medische centra, sportfaciliteiten en een gevarieerd gastronomisch aanbod.
Ondanks de rustige omgeving beschikt de stad over uitstekende wegverbindingen via de snelweg AP 7, waardoor reizen langs de Costa Blanca snel en gemakkelijk is.
Afstanden tot belangrijke bezienswaardigheden Centrum van Orihuela: 5 km Stranden van Guardamar del Segura: 25 km Torrevieja: 30 km Winkelcentrum Zenia Boulevard: 30 km Internationale luchthaven Alicante Elche: 55 km Dichtstbijzijnde golfbanen: 20 km Een ideale woning of investeringsmogelijkheid Of u nu op zoek bent naar een permanente woning, een vakantiehuis of een slimme investering aan de Costa Blanca, deze nieuwbouwwoningen in Bigastro bieden een modern design, een uitstekende prijs-kwaliteitverhouding en een uitstekende locatie.
Neem vandaag nog contact met ons op voor meer informatie of om een bezichtiging te regelen en uw nieuwe woning in de regio Vega Baja veilig te stellen.
Thinking of buying in Jávea? Here's what life is really like for foreign residents — the neighbourhoods, lifestyle, cost...
A practical guide for British pensioners retiring to Costa del Sol: real costs, visa requirements, top areas, healthcare...
Complete guide to working remotely in Spain in 2026. Learn about the Digital Nomad Visa, tax implications, cost of livin...