Modern New Build Villa Near the Sea in Javea Exclusive Mediterranean Living in Javea Discover this stunning contemporary villa located in one of the most sought after and peaceful areas of Javea, just 800 meters from the sea.
Nestled between pine trees and close to the famous Cala de la Barraca and Cala del Portixol, this residence offers a privileged lifestyle surrounded by nature and coastal beauty.
Javea, situated on the Costa Blanca between Alicante and Valencia, is known for its crystal clear waters, charming old town and year round mild climate, making it one of the most desired destinations in the Mediterranean.
Elegant Design and Bright Open Spaces Designed for comfort and style, this villa features a modern architecture with soft lines, large windows and fluid indoor outdoor integration.
Natural light bathes every corner, creating a warm and inviting ambiance ideal for both living and entertaining.
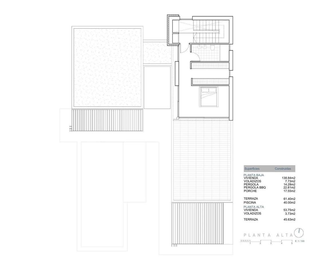
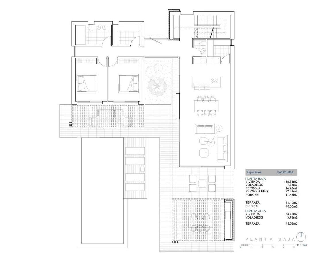
The villa is distributed across two floors and includes Open plan living and dining area with seamless access to terraces and pool Fully furnished open concept kitchen 3 bedrooms and 2 bathrooms plus 1 guest toilet Laundry and pantry room Private garden, terraces and pool area with summer kitchen Private Master Suite and Outdoor Lifestyle The ground floor includes two bedrooms, a bathroom and spacious social areas.
On the upper floor, the master bedroom offers a private sanctuary with en suite bathroom, a generous walk in wardrobe and a 45 m2 terrace, perfect for enjoying sunrise views and Mediterranean breezes.
The outdoor space has been designed for relaxation, featuring a private pool, sun terraces and lush surroundings that ensure tranquility and privacy.
The town is 92 km from Alicante and 105 km from Valencia.
Contact us today for more information or to arrange a viewing of this exclusive modern home in Javea.
Elegantes Design und helle, offene Räume Diese Villa wurde für Komfort und Stil entworfen und zeichnet sich durch eine moderne Architektur mit weichen Linien, großen Fenstern und einer fließenden Integration von Innen- und Außenbereich aus.
Moderne Neubauvilla in Meeresnähe in Javea Exklusives mediterranes Wohnen in Javea Entdecken Sie diese atemberaubende, moderne Villa in einer der begehrtesten und ruhigsten Gegenden von Javea, nur 800 Meter vom Meer entfernt.
Eingebettet zwischen Pinien und in der Nähe der berühmten Cala de la Barraca und Cala del Portixol bietet diese Residenz einen privilegierten Lebensstil inmitten der Natur und der Schönheit der Küste.
Javea liegt an der Costa Blanca zwischen Alicante und Valencia und ist bekannt für sein kristallklares Wasser, seine charmante Altstadt und sein ganzjährig mildes Klima, was es zu einem der begehrtesten Reiseziele im Mittelmeerraum macht.
Natürliches Licht durchflutet jeden Winkel und schafft eine warme und einladende Atmosphäre, die sowohl zum Wohnen als auch zur Unterhaltung ideal ist.
Die Villa erstreckt sich über zwei Etagen und umfasst Offener Wohn- und Essbereich mit nahtlosem Zugang zu Terrassen und Pool Voll ausgestattete offene Küche 3 Schlafzimmer und 2 Badezimmer sowie 1 Gästetoilette Waschküche und Vorratsraum Privater Garten, Terrassen und Poolbereich mit Sommerküche Private Master-Suite und Outdoor-Lifestyle Das Erdgeschoss umfasst zwei Schlafzimmer, ein Badezimmer und großzügige Gemeinschaftsbereiche.
Im Obergeschoss bietet das Hauptschlafzimmer einen privaten Rückzugsort mit eigenem Bad, einem großzügigen begehbaren Kleiderschrank und einer 45 m² großen Terrasse, die sich perfekt eignet, um den Sonnenaufgang und die mediterrane Brise zu genießen.
Der Außenbereich wurde zum Entspannen konzipiert und verfügt über einen privaten Pool, Sonnenterrassen und eine üppige Umgebung, die Ruhe und Privatsphäre garantieren.
Die Stadt liegt 92 km von Alicante und 105 km von Valencia entfernt.
Wichtige Entfernungen Strand und Cala del Portixol: 0,8 km Hafen und Yachthafen von Javea: 8 km Golfclub Javea: 10 km Flughafen Alicante: 100 km Flughafen Valencia: 125 km Ihr mediterranes Zuhause wartet auf Sie Ob Sie einen dauerhaften Wohnsitz, einen luxuriösen Urlaubsort oder eine erstklassige Investition suchen, diese Villa bietet Privatsphäre, Komfort und eine außergewöhnliche Lage an der Küste.
Kontaktieren Sie uns noch heute für weitere Informationen oder um eine Besichtigung dieses exklusiven modernen Hauses in Javea zu vereinbaren.
Moderna villa de nueva construcción cerca del mar en Jávea Vida mediterránea exclusiva en Jávea Descubra esta impresionante villa contemporánea situada en una de las zonas más cotizadas y tranquilas de Jávea, a solo 800 metros del mar.
Ubicada entre pinos y cerca de las famosas Cala de la Barraca y Cala del Portixol, esta residencia ofrece un estilo de vida privilegiado rodeado de naturaleza y belleza costera.
Javea, situada en la Costa Blanca entre Alicante y Valencia, es conocida por sus aguas cristalinas, su encantador casco antiguo y su clima templado durante todo el año, lo que la convierte en uno de los destinos más deseados del Mediterráneo.
Diseño elegante y espacios abiertos y luminosos Diseñada para ofrecer comodidad y estilo, esta villa presenta una arquitectura moderna con líneas suaves, grandes ventanales y una fluida integración entre el interior y el exterior.
La luz natural baña cada rincón, creando un ambiente cálido y acogedor, ideal tanto para vivir como para recibir invitados.
La villa se distribuye en dos plantas e incluye Salón y comedor diáfanos con acceso directo a las terrazas y la piscina Cocina abierta totalmente amueblada 3 dormitorios y 2 baños, además de 1 aseo de invitados Lavadero y despensa Jardín privado, terrazas y zona de piscina con cocina de verano Suite principal privada y estilo de vida al aire libre La planta baja incluye dos dormitorios, un baño y amplias zonas comunes.
En la planta superior, el dormitorio principal ofrece un refugio privado con baño en suite, un amplio vestidor y una terraza de 45 m2, perfecta para disfrutar de las vistas del amanecer y la brisa mediterránea.
El espacio exterior ha sido diseñado para el relax, con una piscina privada, terrazas para tomar el sol y un entorno exuberante que garantiza la tranquilidad y la privacidad.
La ciudad se encuentra a 92 km de Alicante y a 105 km de Valencia.
Distancias clave Playa y Cala del Portixol: 0,8 km Puerto y marina de Javea: 8 km Club de golf de Javea: 10 km Aeropuerto de Alicante: 100 km Aeropuerto de Valencia: 125 km Su hogar mediterráneo le espera Tanto si busca una residencia permanente, un refugio vacacional de lujo o una inversión de primera calidad, esta villa le ofrece privacidad, comodidad y un entorno costero excepcional.
Póngase en contacto con nosotros hoy mismo para obtener más información o concertar una visita a esta exclusiva y moderna vivienda en Jávea.
Moderne nieuwbouwwoning nabij de zee in Javea Exclusief mediterraan wonen in Javea Ontdek deze prachtige moderne villa in een van de meest gewilde en rustige wijken van Javea, op slechts 800 meter van de zee.
Deze woning ligt verscholen tussen pijnbomen en dicht bij de beroemde Cala de la Barraca en Cala del Portixol, en biedt een bevoorrechte levensstijl, omgeven door natuur en de schoonheid van de kust.
Javea, gelegen aan de Costa Blanca tussen Alicante en Valencia, staat bekend om zijn kristalheldere water, charmante oude binnenstad en het milde klimaat het hele jaar door, waardoor het een van de meest gewilde bestemmingen in het Middellandse Zeegebied is.
Elegant ontwerp en lichte open ruimtes Deze villa is ontworpen met het oog op comfort en stijl en heeft een moderne architectuur met zachte lijnen, grote ramen en een vloeiende integratie tussen binnen en buiten.
Natuurlijk licht baadt elke hoek en creëert een warme en uitnodigende sfeer die ideaal is om in te wonen en gasten te ontvangen.
De villa is verdeeld over twee verdiepingen en omvat Open woon- en eetkamer met naadloze toegang tot terrassen en zwembad Volledig ingerichte open keuken 3 slaapkamers en 2 badkamers plus 1 gastentoilet Was- en bijkeuken Privé-tuin, terrassen en zwembad met zomerkeuken Privé master suite en buitenleven De begane grond omvat twee slaapkamers, een badkamer en ruime sociale ruimtes.
Op de bovenverdieping biedt de hoofdslaapkamer een privétoevluchtsoord met een eigen badkamer, een royale inloopkast en een terras van 45 m2, perfect om te genieten van het uitzicht op de zonsopgang en de mediterrane bries.
De buitenruimte is ontworpen om te ontspannen, met een privézwembad, zonneterrassen en een weelderige omgeving die rust en privacy garanderen.
Toplocatie aan de Costa Blanca Noord Javea biedt een uitzonderlijke levensstijl met prachtige stranden, wandelroutes, jachthavens, golfbanen en gastronomische restaurants.
De stad ligt op 92 km van Alicante en 105 km van Valencia.
Belangrijkste afstanden Strand en Cala del Portixol: 0,8 km Haven en jachthaven van Javea: 8 km Golfclub van Javea: 10 km Luchthaven Alicante: 100 km Luchthaven Valencia: 125 km Uw mediterrane thuis wacht op u Of u nu op zoek bent naar een permanente woning, een luxe vakantieverblijf of een eersteklas investering, deze villa biedt privacy, comfort en een uitzonderlijke ligging aan de kust.
Neem vandaag nog contact met ons op voor meer informatie of om een bezichtiging te regelen van deze exclusieve moderne woning in Javea.
Thinking of buying in Jávea? Here's what life is really like for foreign residents — the neighbourhoods, lifestyle, cost...
A comprehensive overview of the Spanish real estate market in 2026 — trends, hotspots, prices, and essential tips for in...
Considering living in El Mojón on the Costa Blanca? A practical, honest guide for retirees and second-home buyers explor...