Exclusive New Build Villas in Ciudad Quesada - Design, Comfort and Privileged Location High Quality Homes in a Privileged Setting Discover these 7 stunning detached villas in Ciudad Quesada - Rojales, one of the most sought after areas of the Costa Blanca South.
With a modern and elegant design, these properties are designed for those looking for a luxury home, whether as a permanent residence or a holiday home.
Located in a privileged natural environment, close to the Salt Lakes of La Mata and Torrevieja, these villas enjoy a unique microclimate that guarantees an exceptional quality of life all year round.
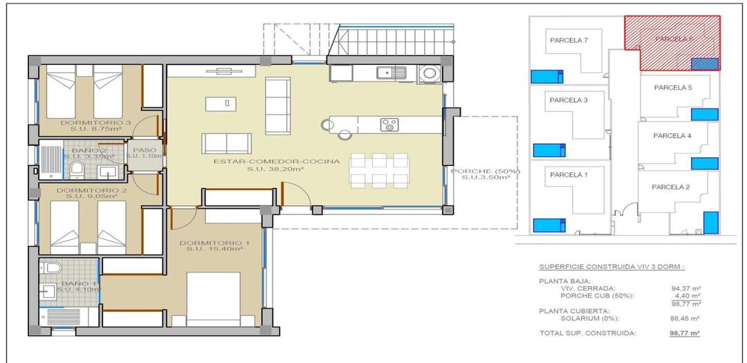
Different Models to Choose From The development offers two types of villas, adapted to different needs and lifestyles: Two-storey villas with 3 double bedrooms and 3 full bathrooms.
Single-storey villas with 3 bedrooms and 2 bathrooms.
All the properties have: Private rooftop solarium, ideal for enjoying the sun and panoramic views.
Private swimming pool and landscaped garden, perfect for relaxing and entertaining.
Private parking space.
In addition, a fully equipped show home is available, where you can appreciate the quality of the materials and luxury finishes.
High End Equipment and Finishes These villas have been designed to ensure maximum comfort and energy efficiency: Fully equipped kitchen with appliances included.
Pre-installation of ducted air conditioning.
Large open spaces and large windows, which provide excellent natural light.
Modern finishes and high quality materials throughout.
Strategic Location and Nearby Connections Ciudad Quesada is a consolidated urbanisation with all the services necessary for day-to-day living: supermarkets, restaurants, health centres and leisure areas.
In addition, its location allows quick access to the main points of interest in the area: Beaches of Guardamar del Segura - 5 km.
Nearest supermarket - 500 m. Torrevieja Hospital - 6 km.
Alicante Airport - 29 km.
Don't miss this opportunity and contact us today for more information or to arrange a viewing of the show home.
Exklusive Neubauvillen in Ciudad Quesada - Design, Komfort und privilegierte Lage Hochwertige Häuser in einer privilegierten Umgebung Entdecken Sie diese 7 atemberaubenden freistehenden Villen in Ciudad Quesada - Rojales, einer der begehrtesten Gegenden an der Costa Blanca Süd.
Mit ihrem modernen und eleganten Design sind diese Immobilien für diejenigen gedacht, die ein luxuriöses Zuhause suchen, sei es als ständiger Wohnsitz oder als Ferienhaus.
In einer privilegierten natürlichen Umgebung gelegen, in der Nähe der Salzseen von La Mata und Torrevieja, genießen diese Villen ein einzigartiges Mikroklima, das das ganze Jahr über eine außergewöhnliche Lebensqualität garantiert.
Verschiedene Modelle zur Auswahl Die Anlage bietet zwei Arten von Villen, die an unterschiedliche Bedürfnisse und Lebensstile angepasst sind: Zweistöckige Villen mit 3 Doppelschlafzimmern und 3 kompletten Badezimmern.
Eingeschossige Villen mit 3 Schlafzimmern und 2 Bädern.
Alle Häuser verfügen über: Privates Solarium auf dem Dach, ideal um die Sonne und den Panoramablick zu genießen.
Privater Swimmingpool und angelegter Garten, ideal zum Entspannen und Unterhalten.
Privater Parkplatz.
Darüber hinaus steht ein voll ausgestattetes Musterhaus zur Verfügung, in dem Sie sich von der Qualität der Materialien und der luxuriösen Ausstattung überzeugen können.
High-End-Ausstattung und -Verarbeitung Diese Villen wurden so konzipiert, dass sie maximalen Komfort und Energieeffizienz gewährleisten: Vollständig ausgestattete Küche mit allen Geräten.
Vorinstallation einer Kanal-Klimaanlage.
Große offene Räume und große Fenster, die viel natürliches Licht hereinlassen.
Moderne Oberflächen und hochwertige Materialien in allen Bereichen.
Strategische Lage und nahe gelegene Verkehrsanbindungen Ciudad Quesada ist eine konsolidierte Urbanisation mit allen für das tägliche Leben notwendigen Dienstleistungen: Supermärkte, Restaurants, Gesundheitszentren und Freizeiteinrichtungen.
Darüber hinaus ermöglicht die Lage einen schnellen Zugang zu den wichtigsten Sehenswürdigkeiten der Gegend: Strände von Guardamar del Segura - 5 km.
Nächster Supermarkt - 500 m. Krankenhaus Torrevieja - 6 km.
Flughafen Alicante - 29 km.
Entdecken Sie Ihr neues Zuhause in Ciudad Quesada Wenn Sie auf der Suche nach einer modernen, geräumigen und gut gelegenen Villa sind, sind diese Immobilien die ideale Wahl.
Lassen Sie sich diese Gelegenheit nicht entgehen und kontaktieren Sie uns noch heute für weitere Informationen oder um einen Besichtigungstermin für das Musterhaus zu vereinbaren.
Exclusivas Villas de Obra Nueva en Ciudad Quesada € Diseño, Confort y Ubicación Privilegiada Viviendas de Alta Calidad en un Entorno Privilegiado Descubra estas 7 impresionantes villas independientes en Ciudad Quesada - Rojales, una de las zonas más codiciadas de la Costa Blanca Sur.
Con un diseño moderno y elegante, estas viviendas están pensadas para quienes buscan un hogar de lujo, ya sea como residencia habitual o casa de vacaciones.
Ubicadas en un entorno natural privilegiado, cerca de los Lagos Salados de La Mata y Torrevieja, estas villas disfrutan de un microclima único que garantiza una calidad de vida excepcional durante todo el año.
Diferentes Modelos para Elegir El residencial ofrece dos tipos de villas, adaptadas a diferentes necesidades y estilos de vida: Villas de dos plantas con 3 dormitorios dobles y 3 baños completos.
Villas de una sola planta con 3 dormitorios y 2 baños.
Todas las viviendas cuentan con: Solárium privado en la azotea, ideal para disfrutar del sol y las vistas panorámicas.
Piscina privada y jardín de diseño, perfectos para el relax y el entretenimiento.
Plaza de aparcamiento privada.
Además, hay disponible una casa piloto completamente equipada, donde podrá apreciar la calidad de los materiales y los acabados de lujo.
Equipamiento y Acabados de Alta Gama Estas villas han sido diseñadas para garantizar el máximo confort y eficiencia energética: Cocina totalmente equipada con electrodomésticos incluidos.
Preinstalación de aire acondicionado por conductos.
Amplios espacios abiertos y grandes ventanales, que proporcionan una excelente iluminación natural.
Acabados modernos y materiales de alta calidad en toda la vivienda.
Ubicación Estratégica y Conexiones Cercanas Ciudad Quesada es una urbanización consolidada con todos los servicios necesarios para el día a día: supermercados, restaurantes, centros de salud y zonas de ocio.
Además, su ubicación permite un acceso rápido a los principales puntos de interés de la zona: Playas de Guardamar del Segura € 5 km.
Supermercado más cercano € 500 m. Hospital de Torrevieja € 6 km.
Aeropuerto de Alicante € 29 km.
Descubra su Nueva Vivienda en Ciudad Quesada Si busca una villa moderna, espaciosa y bien ubicada, estas viviendas son la opción ideal.
No pierda esta oportunidad y contáctenos hoy mismo para obtener más información o programar una visita a la casa piloto.
Grote open ruimtes en grote ramen, die zorgen voor een uitstekende natuurlijke lichtinval.
Moderne afwerking en materialen van hoge kwaliteit.
Pre-installatie van gekanaliseerde airconditioning.
Exclusieve nieuwbouw villa's in Ciudad Quesada - Design, Comfort en Bevoorrechte Locatie Woningen van hoge kwaliteit in een bevoorrechte omgeving Ontdek deze 7 prachtige vrijstaande villa's in Ciudad Quesada - Rojales, een van de meest gewilde gebieden van de Costa Blanca Zuid.
Met een modern en elegant ontwerp zijn deze woningen ontworpen voor diegenen die op zoek zijn naar een luxe woning, hetzij als permanente verblijfplaats of als vakantiehuis.
Gelegen in een bevoorrechte natuurlijke omgeving, dicht bij de zoutmeren van La Mata en Torrevieja, genieten deze villa's van een uniek microklimaat dat het hele jaar door een uitzonderlijke levenskwaliteit garandeert.
Verschillende modellen om uit te kiezen Het project biedt twee soorten villa's, aangepast aan verschillende behoeften en levensstijlen: Villa's met twee verdiepingen, 3 tweepersoonsslaapkamers en 3 complete badkamers.
Villa's met één verdieping, met 3 slaapkamers en 2 badkamers.
Alle woningen hebben: Privé solarium op het dak, ideaal om te genieten van de zon en het panoramische uitzicht.
Privézwembad en aangelegde tuin, perfect om te ontspannen en te entertainen.
Prive parkeerplaats.
Daarnaast is er een volledig uitgeruste modelwoning beschikbaar, waar je de kwaliteit van de materialen en luxe afwerking kunt bewonderen.
High End uitrusting en afwerking Deze villa's zijn ontworpen om maximaal comfort en energie-efficiëntie te garanderen: Volledig ingerichte keuken met apparatuur inbegrepen.
Strategische ligging en nabijgelegen verbindingen Ciudad Quesada is een geconsolideerde urbanisatie met alle voorzieningen die nodig zijn voor het dagelijks leven: supermarkten, restaurants, gezondheidscentra en recreatiegebieden.
Bovendien biedt de locatie snelle toegang tot de belangrijkste bezienswaardigheden in de omgeving: Stranden van Guardamar del Segura - 5 km.
Dichtstbijzijnde supermarkt - 500 m. Ziekenhuis Torrevieja - 6 km.
Luchthaven Alicante - 29 km.
Ontdek je nieuwe huis in Ciudad Quesada Als je op zoek bent naar een moderne, ruime en goed gelegen villa, dan zijn deze woningen de ideale keuze.
Mis deze kans niet en neem vandaag nog contact met ons op voor meer informatie of om een bezichtiging van de modelwoning te regelen.
Thinking of buying in Jávea? Here's what life is really like for foreign residents — the neighbourhoods, lifestyle, cost...
A practical guide for British pensioners retiring to Costa del Sol: real costs, visa requirements, top areas, healthcare...
Complete guide to working remotely in Spain in 2026. Learn about the Digital Nomad Visa, tax implications, cost of livin...