Welcome to this exceptional villa that combines elegance, quality and panoramic sea views.
Situated on a plot of 1003 m² with two pedestrian and vehicle accesses, including one through the communal area of the urbanisation, this property offers an exclusive lifestyle within walking distance of the beaches and the centre of Moraira.
LAYOUT OF THE VILLA: The luxury villa is distributed over 3 floors, standing out for its impressive details and the best qualities: GROUND FLOOR (147.30m²): Spacious bright living room next to the open kitchen with island, a guest toilet and a bedroom with en-suite bathroom.
Outside, we find the dazzling infinity pool, surrounded by a spacious terrace and barbecue area.
UPPER FLOOR (133.65m²): 3 spacious bedrooms, each with its own en-suite bathroom, offering privacy and comfort.
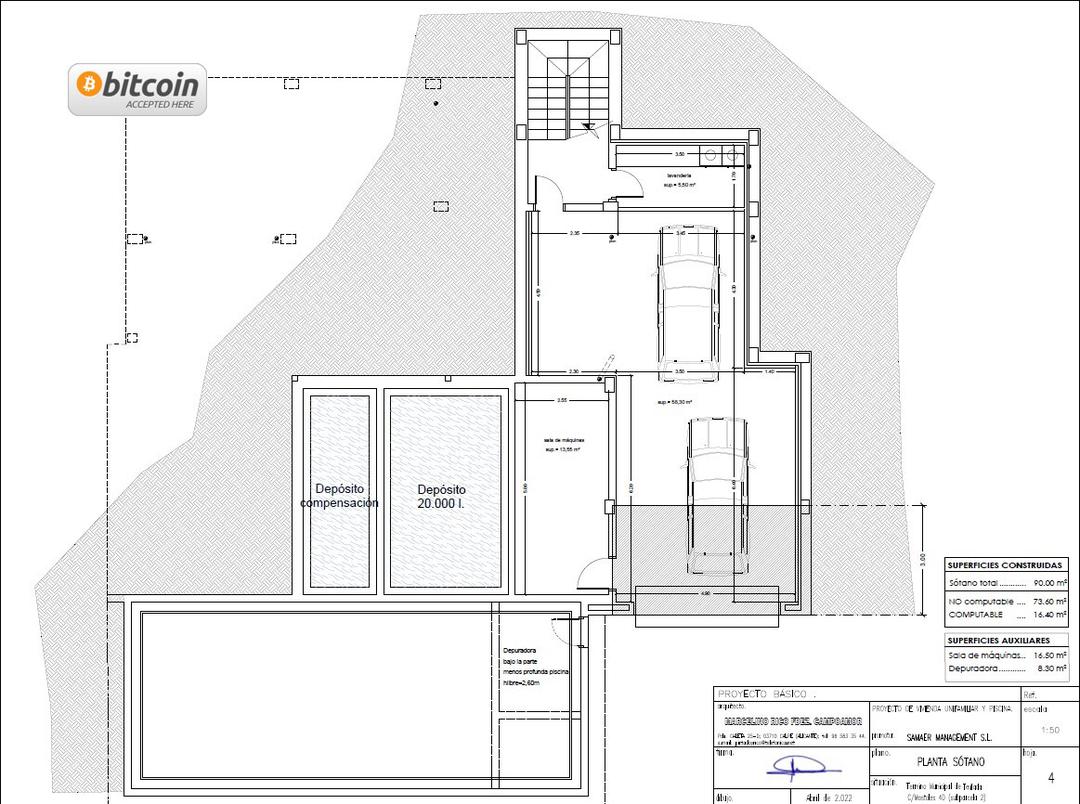
BASEMENT: It houses a double garage and a laundry room, providing functional and practical space.
EXTRAS HIGHLIGHTS: This villa offers the very best in comfort and high-end finishes.
From the Technal carpentry with safety glass to a fully fitted kitchen equipped with Siemens appliances and bathrooms with Roca taps, every detail has been meticulously taken care of.
It also has LED lighting, aerothermal system for hot water and underfloor heating, ducted air conditioning throughout the house, Pre-installation of solar panels.
Solar panel for sanitary water, built-in wardrobes, electric blinds and a complete security system with interior alarm, pre-installation of exterior alarm and security cameras.
OUTDOORS: Enjoy an outdoor lifestyle with a 12x4.5 metre rectangular swimming pool and an overflow system, a large 22m² barbecue area, a practical laundry room and a perfectly landscaped garden.
Automatic access gates ensure your privacy while the A energy rating guarantees efficiency and sustainability.
This exclusive villa is part of a select development comprising six modern residences, each with its own parking.
Located on plot 2, this majestic villa offers an incomparable opportunity for those seeking the highest quality of life in a peaceful and privileged environment.
Willkommen in dieser außergewöhnlichen Villa, die Eleganz, Qualität und Panoramablick auf das Meer vereint.
Auf einem Grundstück von 1003 m² mit zwei Fußgänger- und Fahrzeugzugängen, darunter einer durch den Gemeinschaftsbereich der Urbanisation, bietet diese Immobilie einen exklusiven Lebensstil, nur wenige Gehminuten von den Stränden und dem Zentrum von Moraira entfernt.
AUFTEILUNG DER VILLA: Die Luxusvilla erstreckt sich über 3 Etagen und zeichnet sich durch beeindruckende Details und beste Qualitäten aus: ERDGESCHOSS (147,30m²): Geräumiges helles Wohnzimmer neben der offenen Küche mit Insel, ein Gäste-WC und ein Schlafzimmer mit en-suite Bad.
Im Außenbereich befindet sich der schillernde Infinity-Pool, der von einer geräumigen Terrasse und einem Grillplatz umgeben ist.
OBERGESCHOSS (133,65 m²): 3 geräumige Schlafzimmer, jedes mit eigenem Bad, bieten Privatsphäre und Komfort.
UNTERGESCHOSS: Es beherbergt eine Doppelgarage und eine Waschküche, die funktionalen und praktischen Raum bietet.
EXTRAS HIGHLIGHTS: Diese Villa bietet das Beste an Komfort und hochwertigen Ausstattungen.
Von der Technal-Tischlerei mit Sicherheitsglas bis hin zu einer voll ausgestatteten Küche mit Siemens-Geräten und Badezimmern mit Roca-Armaturen wurde auf jedes Detail geachtet.
Außerdem verfügt es über LED-Beleuchtung, ein aerothermisches System für Warmwasser und Fußbodenheizung sowie eine Klimaanlage im gesamten Haus, Vorinstallation von Sonnenkollektoren.
Solarpanel für Sanitärwasser, Einbauschränke, elektrische Jalousien und ein komplettes Sicherheitssystem mit Innenalarm, Vorinstallation von Außenalarm und Sicherheitskameras.
AUSSEN: Genießen Sie den Lebensstil im Freien mit einem 12x4,5 Meter großen rechteckigen Swimmingpool mit Überlaufsystem, einem 22m² großen Grillplatz, einer praktischen Waschküche und einem perfekt angelegten Garten.
Automatische Zugangstore sorgen für Ihre Privatsphäre, während die Energieklasse A Effizienz und Nachhaltigkeit garantiert.
Diese exklusive Villa ist Teil einer erlesenen Wohnanlage mit sechs modernen Residenzen, die jeweils über einen eigenen Parkplatz verfügen.
Diese majestätische Villa befindet sich auf Parzelle 2 und bietet eine unvergleichliche Gelegenheit für diejenigen, die höchste Lebensqualität in einer ruhigen und privilegierten Umgebung suchen.
Bienvenidos a esta excepcional villa que combina elegancia, calidad y vistas panorámicas al mar.
Situada en una parcela de 1003 m² con dos accesos peatonales y para vehículos, incluyendo uno a través de la zona comunitaria de la urbanización, esta propiedad ofrece un estilo de vida exclusivo a poca distancia de las playas y el centro de Moraira.
DISTRIBUCIÓN DE LA VILLA: La villa de lujo se distribuye en 3 plantas, destacando por sus impresionantes detalles y las mejores calidades: PLANTA BAJA (147.30m²): Amplia sala de estar iluminada junto a la cocina abierta con isla, un aseo de invitados y un dormitorio con baño en suite.
En el exterior, encontramos la deslumbrante piscina infinity, rodeada por una amplia terraza y la zona de barbacoa.
PLANTA ALTA (133.65m²): 3 amplias habitaciones, cada una con su propio baño en suite, ofreciendo privacidad y confort.
PLANTA SÓTANO: Alberga un garaje doble y una lavandería, proporcionando espacio funcional y práctico.
EXTRAS DESTACADOS: Esta villa ofrece lo mejor en comodidades y acabados de alta gama.
Desde la carpintería Technal con cristal de seguridad hasta una cocina completa equipada con electrodomésticos Siemens y baños con grifería de la prestigiosa marca Roca, cada detalle se ha cuidado meticulosamente.
Además, cuenta con iluminación LED, sistema de aerotermia para agua caliente y calefacción por suelo radiante, aire acondicionado por conductos en toda la vivienda, Pre-instalación placas solares.
Panel Solar agua sanitaria, armarios empotrados, persianas eléctricas y un sistema de seguridad completo con alarma interior, preinstalación de alarma exterior y cámaras de seguridad.
EXTERIORES: Disfruta de un estilo de vida al aire libre con una piscina rectangular de 12x4,5 metros y un sistema desbordante, una amplia zona de barbacoa de 22m², un práctico lavadero y un jardín perfectamente diseñado.
Las puertas de acceso automáticas aseguran tu privacidad mientras que la clasificación energética A garantiza eficiencia y sostenibilidad.
Esta exclusiva villa forma parte de una urbanización selecta compuesta por seis modernas residencias, cada una con su propio parking.
Ubicada en la parcela 2, esta majestuosa villa ofrece una oportunidad incomparable para aquellos que buscan la máxima calidad de vida en un entorno tranquilo y privilegiado.
Welkom in deze uitzonderlijke villa die elegantie, kwaliteit en panoramisch uitzicht op zee combineert.
Gelegen op een perceel van 1003 m² met twee voetgangers- en voertuigtoegangen, waaronder één via de gemeenschappelijke ruimte van de urbanisatie, biedt deze woning een exclusieve levensstijl op loopafstand van de stranden en het centrum van Moraira.
INDELING VAN DE VILLA: De luxe villa is verdeeld over 3 verdiepingen en valt op door zijn indrukwekkende details en de beste kwaliteiten: BEGANE GROND (147.30m²): Ruime lichte woonkamer naast de open keuken met kookeiland, een gastentoilet en een slaapkamer met en-suite badkamer.
Buiten vinden we het oogverblindende overloopzwembad, omgeven door een ruim terras en een barbecue.
BOVENVERDIEPING (133,65m²): 3 ruime slaapkamers, elk met een eigen en-suite badkamer, die privacy en comfort bieden.
KELDER: Het herbergt een dubbele garage en een wasruimte, die functionele en praktische ruimte biedt.
EXTRAS HIGHLIGHTS: Deze villa biedt het allerbeste in comfort en high-end afwerking.
Van het Technal timmerwerk met veiligheidsglas tot een volledig uitgeruste keuken met Siemens apparatuur en badkamers met Roca kranen, elk detail is tot in de puntjes verzorgd.
Het heeft ook LED-verlichting, aerothermisch systeem voor warm water en vloerverwarming, airconditioning door het hele huis, Pre-installatie van zonnepanelen.
Zonnepaneel voor sanitair water, ingebouwde kasten, elektrische rolluiken en een compleet beveiligingssysteem met binnenalarm, pre-installatie van buitenalarm en beveiligingscamera's.
BUITEN: Geniet van een levensstijl buiten met een rechthoekig zwembad van 12x4,5 meter en een overloopsysteem, een grote barbecueplaats van 22m², een praktische wasruimte en een perfect aangelegde tuin.
Automatische toegangspoorten garanderen je privacy, terwijl de energieklasse A garant staat voor efficiëntie en duurzaamheid.
Deze exclusieve villa maakt deel uit van een selecte ontwikkeling bestaande uit zes moderne woningen, elk met een eigen parkeerplaats.
Deze majestueuze villa ligt op perceel 2 en biedt een onvergelijkbare kans voor wie op zoek is naar de hoogste levenskwaliteit in een rustige en bevoorrechte omgeving.
Thinking of buying in Jávea? Here's what life is really like for foreign residents — the neighbourhoods, lifestyle, cost...
A comprehensive overview of the Spanish real estate market in 2026 — trends, hotspots, prices, and essential tips for in...
Considering living in El Mojón on the Costa Blanca? A practical, honest guide for retirees and second-home buyers explor...