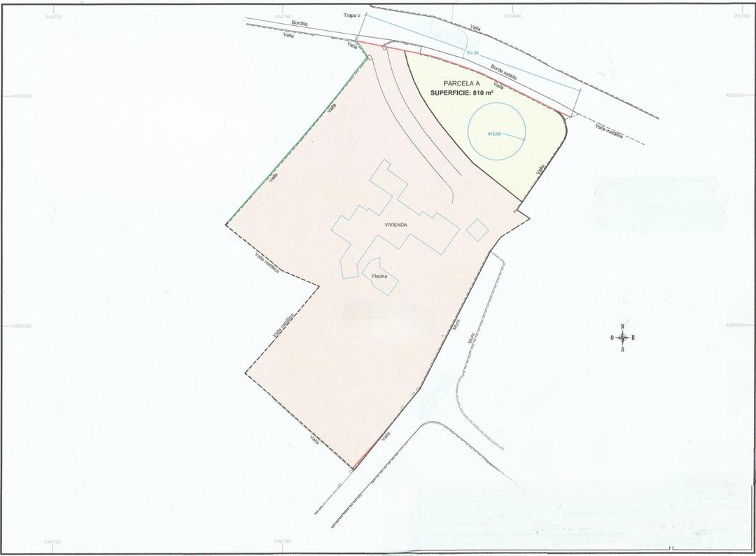
This flat plot with lovely open views has walls on two sides and is presently fenced on the other two sides.
The plot is only a short drive to the beach and supermarket and is conveniently situated between the towns of Moraira and Calpe.Construction will be straight forward, with water and electricity already in the road, deliveries from the roadwill be easy and of course building on a flat plot is a luxury in our area.
Construction of 20% of the plot size will be possible.- Distances:- Supermarket 1.3km- Beach and restaurants 1.9km- Moraira 6.4km- Calpe 6.7km- Motorway access in Benissa 8km- For further information please do not hesitate to contact us.
Dieses flache Grundstück mit herrlicher Aussicht ist an zwei Seiten ummauert und an den beiden anderen Seiten eingezäunt.
Das Grundstück ist nur eine kurze Fahrt zum Strand und Supermarkt und liegt günstig zwischen den Städten Moraira und Calpe.
Der Bau wird einfach sein, mit Wasser und Strom bereits in der Straße, Lieferungen von der Straße wird einfach sein und natürlich bauen auf einem flachen Grundstück ist ein Luxus in unserer Gegend.
Eine Bebauung von 20% der Grundstücksfläche ist möglich.- Entfernungen:- Supermarkt 1,3 km- Strand und Restaurants 1,9 km- Moraira 6.4km- Calpe 6,7 km- Autobahnanschluss in Benissa 8km- Für weitere Informationen zögern Sie bitte nicht, uns zu kontaktieren.
Dit vlakke perceel met prachtig open uitzicht heeft muren aan twee kanten en is momenteel omheind aan de andere twee kanten.
Het perceel ligt op slechts een klein eindje rijden van het strand en de supermarkt en is gunstig gelegen tussen de steden Moraira en Calpe.
Bouwen zal eenvoudig zijn, met water en elektriciteit al in de weg, leveringen vanaf de weg zullen gemakkelijk zijn en natuurlijk is bouwen op een vlak perceel een luxe in ons gebied.
Bouw van 20% van de kavelgrootte is mogelijk.- Afstanden:- Supermarkt 1.3km- Strand en restaurants 1.9km- Moraira 6.4km- Calpe 6.7km- Toegang tot de snelweg in Benissa 8km- Aarzel niet om contact met ons op te nemen voor meer informatie.
Thinking of buying in Jávea? Here's what life is really like for foreign residents — the neighbourhoods, lifestyle, cost...
A comprehensive overview of the Spanish real estate market in 2026 — trends, hotspots, prices, and essential tips for in...
Considering living in El Mojón on the Costa Blanca? A practical, honest guide for retirees and second-home buyers explor...