This special villa will be south east facing and offer wonderful sea views from Moraira to the Penon de Ifach in Calpe.
The architect has designed the villa to make the best use of the space available on the plot.
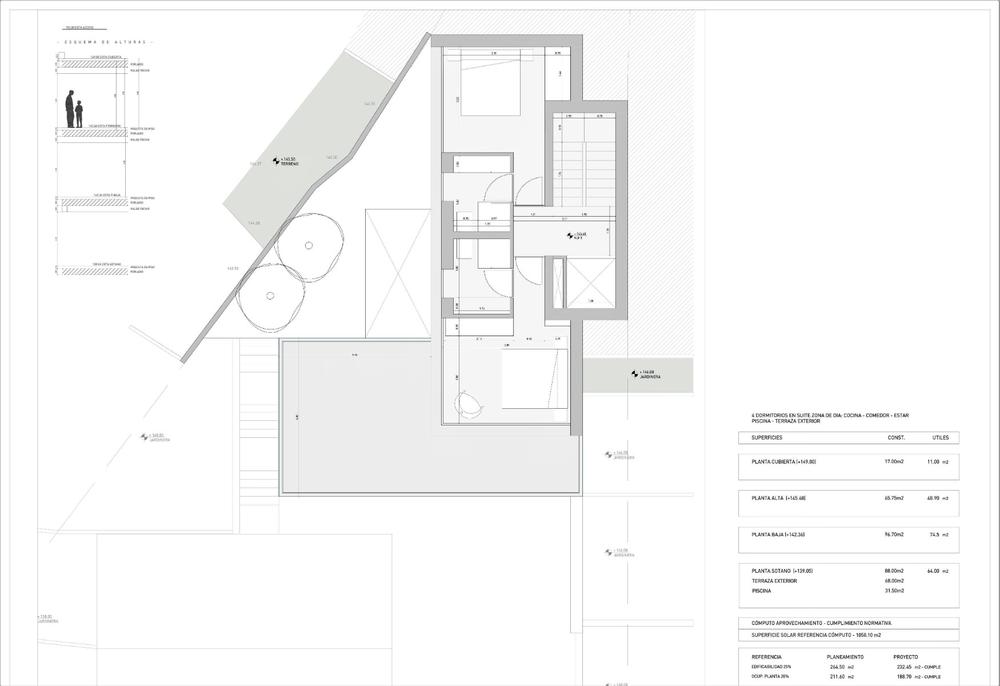
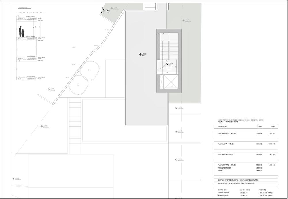
The villa will be distributed over four levels, all with sea views, which will be connected by a lift and an internal staircase.- The parking level is at street level with external staircase down to the entrance level of the villa, a second lift could be installed here.- The access level is sited next to a large flat terrace and includes both lift and staircase- The top floor has two bedrooms, both with en-suite bathrooms- The lower floor has two further bedrooms again with en-suite bathrooms, one of which is the master suite.
Here there is access to a small garden and a covered terrace with access to the laundry room and technical room- The basement level includes the living/dining room, a luxury kitchen with island and a guest toilet, large glass doors maximise the wonderful views.
Outside is a barbecue area, terrace, gardens and the private pool- This project is going to be constructed in one of the most prestigious areas of the northern Costa Blanca, between the towns of Moraira and Calpe.- For further information please do not hesitate to contact us.
Diese besondere Villa wird nach Südosten ausgerichtet sein und einen herrlichen Meerblick von Moraira bis zum Penon de Ifach in Calpe bieten.
Der Architekt hat die Villa so entworfen, dass der verfügbare Platz auf dem Grundstück optimal genutzt wird.
Die Villa verteilt sich auf vier Ebenen, alle mit Meerblick, die durch einen Aufzug und eine interne Treppe verbunden sind.- Die Parkebene befindet sich auf Straßenniveau mit einer Außentreppe hinunter zur Eingangsebene der Villa, hier könnte ein zweiter Aufzug installiert werden.- Die Zugangsebene befindet sich neben einer großen flachen Terrasse und verfügt über einen Aufzug und eine Treppe.- Im Obergeschoss befinden sich zwei Schlafzimmer, beide mit eigenem Bad- In der unteren Etage befinden sich zwei weitere Schlafzimmer, ebenfalls mit eigenem Bad, wovon eines die Master-Suite ist.
Hier gibt es Zugang zu einem kleinen Garten und einer überdachten Terrasse mit Zugang zur Waschküche und zum Technikraum- Im Untergeschoss befinden sich das Wohn-/Esszimmer, eine luxuriöse Küche mit Kochinsel und eine Gästetoilette; große Glastüren sorgen für einen herrlichen Ausblick.
Im Außenbereich gibt es einen Grillplatz, eine Terrasse, Gärten und einen privaten Pool.- Dieses Projekt wird in einer der prestigeträchtigsten Gegenden der nördlichen Costa Blanca, zwischen den Städten Moraira und Calpe, gebaut werden.- Für weitere Informationen zögern Sie bitte nicht, uns zu kontaktieren.
Deze bijzondere villa ligt op het zuidoosten en biedt een prachtig uitzicht op zee van Moraira tot de Penon de Ifach in Calpe.
De architect heeft de villa zo ontworpen dat de beschikbare ruimte op het perceel optimaal wordt benut.
De villa wordt verdeeld over vier verdiepingen, allemaal met uitzicht op zee, die met elkaar verbonden worden door een lift en een interne trap.- Het parkeerniveau is op straatniveau met een buitentrap naar het entreeniveau van de villa, hier zou een tweede lift geïnstalleerd kunnen worden.- Het toegangsniveau ligt naast een groot vlak terras en bevat zowel een lift als een trap.- De bovenste verdieping heeft twee slaapkamers, beide met en-suite badkamer- De onderste verdieping heeft nog twee slaapkamers, ook weer met en-suite badkamers, waarvan er een de master suite is.
Hier is er toegang tot een kleine tuin en een overdekt terras met toegang tot de wasruimte en technische ruimte- Het kelderniveau omvat de woon/eetkamer, een luxe keuken met kookeiland en een gastentoilet, grote glazen deuren maximaliseren het prachtige uitzicht.
Buiten is een barbecueplaats, terras, tuinen en het privézwembad.- Dit project zal worden gebouwd in een van de meest prestigieuze gebieden van de noordelijke Costa Blanca, tussen de steden Moraira en Calpe.- Aarzel niet om contact met ons op te nemen voor meer informatie.
Thinking of buying in Jávea? Here's what life is really like for foreign residents — the neighbourhoods, lifestyle, cost...
A comprehensive overview of the Spanish real estate market in 2026 — trends, hotspots, prices, and essential tips for in...
Considering living in El Mojón on the Costa Blanca? A practical, honest guide for retirees and second-home buyers explor...