This beautiful villa, located 50 meters from the La Marquesa golf course, apart from having clear and beautiful views and offering the tranquility of being in a quiet environment, is a few meters from the commercial center with shops, supermarket, bars and international restaurants .
Just 5 minutes from the town of Rojales with all services and 15 minutes from the spectacular blue flag beaches of Guardamar del Segura.
Alicante-Elche airport is 35 minutes away.
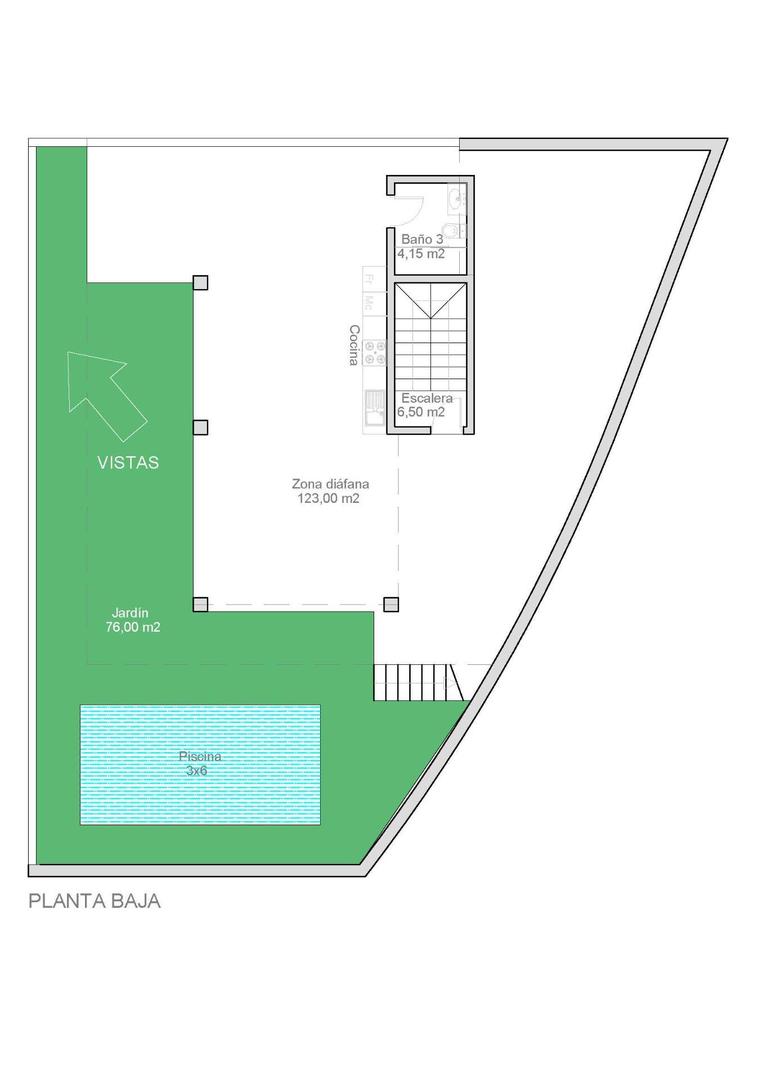
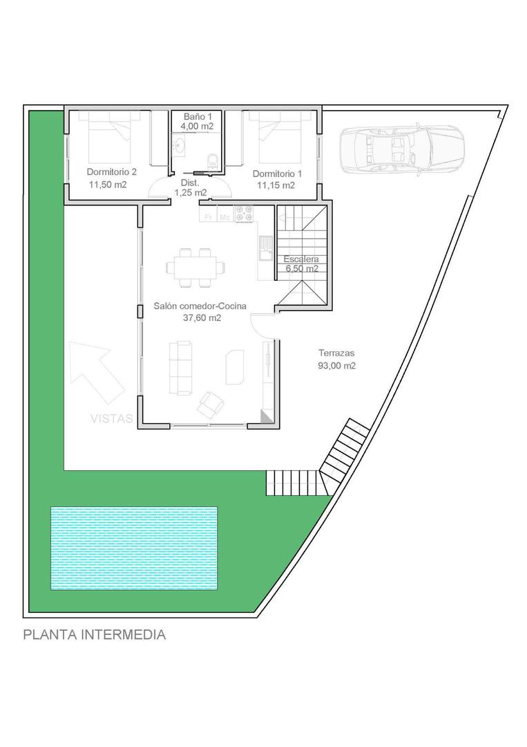
The villa has 335 m2 of plot area, 433 m2 of built area, distributed in 3 floors, one of them being a semi-basement diaphanous of 126 m2.
The villa has 3 bedrooms and 2 bathrooms.
The 3x6 m pool and the large terraces in the garden and pool area will allow you to enjoy the sun and the Costa Blanca climate throughout the year.
In addition, the villa has a solarium and a large parking area.
Live in a large modern villa, enjoying golf, beach, climate and Mediterranean lifestyle!
SCHÖNE GROßE VILLA MIT BLICK AUF DEN GOLFPLATZ "LA MARQUESA"!
Diese schöne Villa, 50 Meter vom Golfplatz La Marquesa entfernt, bietet neben einer klaren und schönen Aussicht und der Ruhe einer ruhigen Umgebung, nur wenige Meter vom Einkaufszentrum mit Geschäften, Supermarkt, Bars und internationalen Restaurants entfernt.
Nur 5 Minuten von der Stadt Rojales mit allen Dienstleistungen und 15 Minuten von den spektakulären Stränden mit Blauer Flagge von Guardamar del Segura entfernt.
Der Flughafen Alicante-Elche ist 35 Minuten entfernt.
Die Villa verfügt über 335 m2 Grundstücksfläche, 433 m2 bebaute Fläche, verteilt auf 3 Etagen, von denen eine ein Halbkeller mit 126 m2 ist.
Die Villa verfügt über 3 Schlafzimmer und 2 Badezimmer.
Der 3x6 m große Pool und die großen Terrassen im Garten- und Poolbereich ermöglichen es Ihnen, das ganze Jahr über die Sonne und das Klima der Costa Blanca zu genießen.
Darüber hinaus verfügt die Villa über ein Solarium und einen großen Parkplatz.
Wohnen Sie in einer großen modernen Villa und genießen Sie Golf, Strand, Klima und mediterranen Lebensstil!
PRECIOSA GRAN VILLA CON VISTAS AL CAMPO DE GOLF “LA MARQUESA”!
Esa preciosa villa, situada a 50 metros del campo de Golf La Marquesa, aparte de tener unas vistas despejadas y bonitas y ofrecer la tranquilidad de estar en un entorno tranquilo, está a escasos metros del centro comercial con tiendas, supermercado, bares y restaurantes internacionales.
A tan solo 5 minutos del pueblo de Rojales con todos los servicios y a 15 minutos de las espectaculares playas, con bandera azul, de Guardamar del Segura.
El aeropuerto Alicante-Elche está a 35 minutos.
La villa cuenta con 335 m2 de superficie de parcela, 433 m2 de superficie construida, distribuidas en 3 pisos, siendo uno de ellos semisotano diafáno de 126 m2.
La villa tiene 3 habitaciones y 2 baños.
La piscina de 3x6 m y las amplias terrazas en la parte de jardín y piscina te permitirán disfrutar del sol y del clima de Costa Blanca durante todo el año.
Además, la villa dispone de solárium y una amplia zona de parking.
Vive en una gran villa moderna, disfrutando del golf, playa, clima y estilo de vida mediterráneo!
MOOIE GEWELDIGE VILLA MET UITZICHT OP DE GOLFCURSUS "LA MARQUESA"!
Deze prachtige villa, gelegen op 50 meter van de golfbaan La Marquesa, heeft niet alleen een helder en prachtig uitzicht en biedt de rust van een rustige omgeving, op een paar meter van het commerciële centrum met winkels, supermarkt, bars en internationale restaurants.
Slechts 5 minuten van de stad Rojales met alle voorzieningen en 15 minuten van de spectaculaire stranden met blauwe vlag van Guardamar del Segura.
De luchthaven Alicante-Elche ligt op 35 minuten afstand.
De villa heeft een perceeloppervlakte van 335 m2 en een bebouwde oppervlakte van 433 m2, verdeeld over 3 verdiepingen, waarvan een semi-kelder doorschijnend is van 126 m2.
De villa heeft 3 slaapkamers en 2 badkamers.
Het zwembad van 3x6 m en de grote terrassen in de tuin en het zwembad zorgen ervoor dat u het hele jaar door kunt genieten van de zon en het klimaat van de Costa Blanca.
Daarnaast heeft de villa een solarium en een grote parkeerplaats.
Wonen in een grote moderne villa, genietend van golf, strand, klimaat en mediterrane levensstijl!
Thinking of buying in Jávea? Here's what life is really like for foreign residents — the neighbourhoods, lifestyle, cost...
A comprehensive overview of the Spanish real estate market in 2026 — trends, hotspots, prices, and essential tips for in...
Considering living in El Mojón on the Costa Blanca? A practical, honest guide for retirees and second-home buyers explor...