Spacious House with Sea Views in a Quiet Area of La Victoria Spacious property offering approximately 500 m² of living and usable space on a 980 m² plot, located in a quiet cul-de-sac in La Victoria.
Puerto de la Cruz can be reached in approximately 15 minutes.
The property extends over three floors and is ideal as a multi-generational home or for combining private residence and rental.
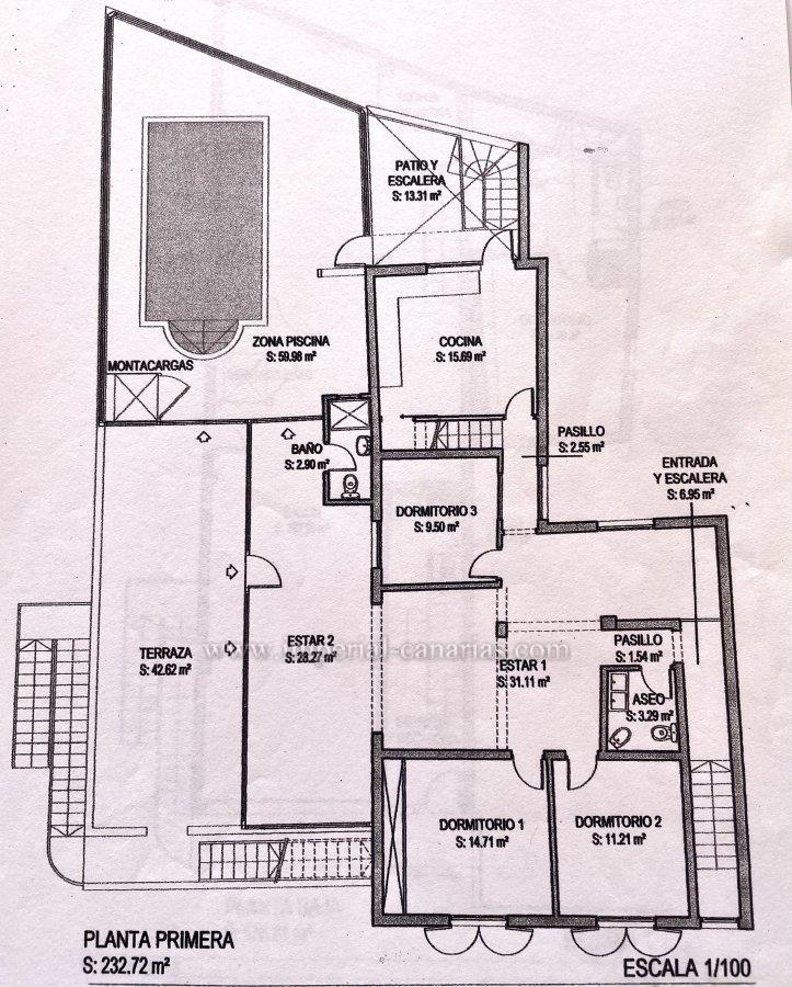
Layout: Main apartment (approx.
232 m²) with large living area, winter garden, terrace with Atlantic views, and indoor pool with Jacuzzi.
Separate apartment on the upper floor (approx.
103 m²) with its own kitchen and bathrooms.
In total, the property offers 7 bedrooms, 3 kitchens, and 6 bathrooms.
Large garage of approx.
173 m² (conversion possible), elevator to the first floor, carport, and several parking spaces.
Features: approx.
60 m² photovoltaic system with 4 battery storage units, continuously modernized and well maintained.
The terraces offer unobstructed views of the Atlantic Ocean and Mount Teide.
Ample space, flexible usage options, and a quiet location with good connections.
Großes Haus mit Meerblick in ruhiger Lage von La Victoria Großzügiges Haus mit ca.
500 m² Wohn- und Nutzfläche auf einem 980 m² Grundstück in ruhiger Sackgasse von La Victoria.
Puerto de la Cruz ist in ca.
15 Minuten erreichbar.
Die Immobilie erstreckt sich über drei Etagen und eignet sich ideal als Mehrgenerationenhaus oder zur Kombination aus Eigennutzung und Vermietung.
Aufteilung: Hauptwohnung (ca.
232 m²) mit großem Wohnbereich, Wintergarten, Terrasse mit Atlantikblick sowie Innenpool mit Jacuzzi.
Separate Wohnung im Obergeschoss (ca.
103 m²) mit eigener Küche und Bädern.
Insgesamt 7 Schlafzimmer, 3 Küchen und 6 Bäder.
Große Garage mit ca.
173 m² (Ausbau möglich), Aufzug bis in die erste Etage, Carport und mehrere Stellplätze.
Ausstattung: ca.
60 m² Photovoltaikanlage mit 4 Batteriespeichern, laufend modernisiert, gepflegter Zustand.
Von den Terrassen genießen Sie einen freien Blick auf den Atlantik und den Teide.
Viel Platz, flexible Nutzungsmöglichkeiten und ruhige Lage mit guter Anbindung
Amplia casa con vistas al mar en zona tranquila de La Victoria Amplia vivienda con aproximadamente 500 m² de superficie construida y útil sobre una parcela de 980 m², situada en una tranquila calle sin salida en La Victoria.
Puerto de la Cruz se encuentra a unos 15 minutos.
La propiedad se distribuye en tres plantas y es ideal como vivienda para varias generaciones o para combinar residencia propia y alquiler.
Distribución: Vivienda principal (aprox.
232 m²) con amplio salón, jardín de invierno, terraza con vistas al Atlántico y piscina interior con jacuzzi.
Apartamento independiente en la planta superior (aprox.
103 m²) con cocina y baños propios.
En total dispone de 7 dormitorios, 3 cocinas y 6 baños.
Gran garaje de aprox.
173 m² (posibilidad de ampliación o conversión), ascensor hasta la primera planta, carport y varias plazas de aparcamiento.
Equipamiento: instalación fotovoltaica de aprox.
60 m² con 4 baterías de almacenamiento, modernizada de forma continua y en buen estado de conservación.
Desde las terrazas se disfruta de vistas abiertas al Atlántico y al Teide.
Mucho espacio, posibilidades de uso flexible y ubicación tranquila con buena conexión.
Thinking about buying property in Tenerife? Explore the best golf areas, lifestyle benefits, expat communities, and what...
Thinking about buying property in Los Cristianos, Tenerife? A calm, practical guide for second-home buyers, retirees, di...
Embark on a journey to Adeje, Tenerife, and uncover the perfect blend of natural beauty, cultural richness, and vibrant ...