NEW BUILD VILLAS IN FINESTRAT New Build Modern villas in Finestrat.
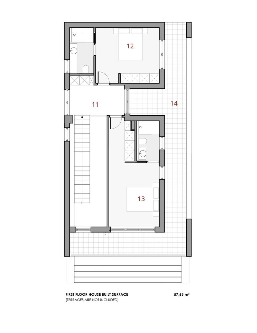
Villas with3 bedrooms and 3 bathrooms, open plan kitchen with lounge area, terrace with magnificent views over Benidorm, private garden with swimming pool and parking space.
It is conceived as a fully walkable space with interior and exterior pathways that provide independent access to each floor.
This design offers various perspectives of the architectural complex and its surroundings, with the sea and Sierra Cortina serving as a picturesque backdrop.
The main entrance to the villa is located at the lower part of the plot, featuring ample parking for two vehicles.
A water feature with lounge chairs introduces you to the ground floor, characterized by wide walls adorned with masonry.
Extending seamlessly from the living room is a terrace, made possible by a large folding window.
Wooden shutters on masonry walls provide a partially covered outdoor area for added comfort.
The pool, with its aquamarine hues and gresite lining, sits adjacent to a pavement area crafted from non-slip porcelain tile with a wood-like appearance.
This space also includes a barbecue area that can be customized to suit the user’s needs, with access from a paved zone through the natural terrain.
Finestrat located in the Marina Baixa region of the Costa Blanca, close to neighbouring Benidorm and about 40 kilometres from the city of Alicante and the international airport.
The village is situated on the mountainside of Puig Campana and offers beautiful views of the mountains, the coast and the Mediterranean Sea.
Benidorm is just a five-minute drive from the properties and offers all the services you would need including shops, bars, restaurants, supermarkets, banks, pharmacies and several private international schools.
NEU GEBAUTE VILLEN IN FINESTRAT Neubau Moderne Villen in Finestrat.
Villen mit 3 Schlafzimmern und 3 Bädern, offener Küche mit Wohnbereich, Terrasse mit herrlichem Blick über Benidorm, privatem Garten mit Schwimmbad und Parkplatz.
Es ist als vollständig begehbarer Raum mit Innen- und Außenwegen konzipiert, die einen unabhängigen Zugang zu jeder Etage ermöglichen.
Dieser Entwurf bietet verschiedene Perspektiven auf den architektonischen Komplex und seine Umgebung, wobei das Meer und die Sierra Cortina als malerische Kulisse dienen.
Der Haupteingang der Villa befindet sich im unteren Teil des Grundstücks und bietet ausreichend Parkmöglichkeiten für zwei Fahrzeuge.
Ein Wasserspiel mit Liegestühlen führt Sie in das Erdgeschoss, das sich durch breite, gemauerte Wände auszeichnet.
An das Wohnzimmer schließt sich nahtlos eine Terrasse an, die durch ein großes Klappfenster ermöglicht wird.
Hölzerne Fensterläden an gemauerten Wänden bieten einen teilweise überdachten Außenbereich für zusätzlichen Komfort.
Der Pool mit seinen aquamarinfarbenen Tönen und seiner Auskleidung aus Gresit grenzt an einen Fußbodenbereich aus rutschfesten Porzellanfliesen in Holzoptik.
Zu diesem Bereich gehört auch ein Grillplatz, der je nach den Bedürfnissen des Nutzers gestaltet werden kann und über einen gepflasterten Bereich durch das natürliche Gelände zugänglich ist.
Finestrat liegt in der Region Marina Baixa an der Costa Blanca, in der Nähe des benachbarten Benidorm und etwa 40 Kilometer von der Stadt Alicante und dem internationalen Flughafen entfernt.
Das Dorf liegt am Berghang des Puig Campana und bietet einen schönen Blick auf die Berge, die Küste und das Mittelmeer.
Benidorm ist nur fünf Autominuten von den Grundstücken entfernt und bietet alle Dienstleistungen, die Sie benötigen, wie Geschäfte, Bars, Restaurants, Supermärkte, Banken, Apotheken und mehrere private internationale Schulen.
VILLAS DE OBRA NUEVA EN FINESTRAT Villas modernas de obra nueva en Finestrat.
Villas con 3 dormitorios y 3 baños, cocina americana con salón, terraza con magníficas vistas sobre Benidorm, jardín privado con piscina y plaza de aparcamiento.
Está concebido como un espacio totalmente transitable con caminos interiores y exteriores que dan acceso independiente a cada planta.
Este diseño ofrece varias perspectivas del conjunto arquitectónico y su entorno, con el mar y Sierra Cortina como pintoresco telón de fondo.
La entrada principal a la villa se encuentra en la parte baja de la parcela, con un amplio aparcamiento para dos vehículos.
Un espejo de agua con tumbonas le introduce en la planta baja, caracterizada por amplias paredes adornadas con mampostería.
Desde el salón se extiende sin solución de continuidad una terraza, posible gracias a un gran ventanal abatible.
Las contraventanas de madera sobre muros de mampostería proporcionan una zona exterior parcialmente cubierta para mayor comodidad.
La piscina, de tonos aguamarina y revestida de gresite, linda con una zona pavimentada de gres porcelánico antideslizante con aspecto de madera.
Este espacio también incluye una zona de barbacoa que se puede personalizar a gusto del usuario, con acceso desde una zona pavimentada a través del terreno natural.
Finestrat se encuentra en la comarca de la Marina Baixa de la Costa Blanca, cerca de la vecina Benidorm y a unos 40 kilómetros de la ciudad de Alicante y del aeropuerto internacional.
El pueblo está situado en la ladera del Puig Campana y ofrece hermosas vistas de las montañas, la costa y el mar Mediterráneo.
Benidorm está a sólo cinco minutos en coche de las propiedades y ofrece todos los servicios que pueda necesitar, incluyendo tiendas, bares, restaurantes, supermercados, bancos, farmacias y varias escuelas privadas internacionales.
NIEUWBOUW VILLA'S IN FINESTRAT Nieuwbouw Moderne villa's in Finestrat.
Villa's met 3 slaapkamers en 3 badkamers, open keuken met zithoek, terras met prachtig uitzicht over Benidorm, privétuin met zwembad en parkeerplaats.
Het is ontworpen als een volledig beloopbare ruimte met binnen- en buitenpaden die onafhankelijke toegang bieden tot elke verdieping.
Dit ontwerp biedt verschillende perspectieven op het architectonische complex en de omgeving, met de zee en Sierra Cortina als schilderachtige achtergrond.
De hoofdingang van de villa ligt aan de onderkant van het perceel, met voldoende parkeergelegenheid voor twee voertuigen.
Een waterpartij met loungestoelen leidt je naar de begane grond, die wordt gekenmerkt door brede muren versierd met metselwerk.
Vanuit de woonkamer loopt een terras naadloos door, mogelijk gemaakt door een groot openslaand raam.
Houten luiken op gemetselde muren zorgen voor een gedeeltelijk overdekte buitenruimte voor extra comfort.
Het zwembad, met aquamarijne tinten en een bekleding van gresiet, grenst aan een bestrating van antislip porseleinen tegels met een houtachtig uiterlijk.
Deze ruimte bevat ook een barbecueplaats die kan worden aangepast aan de behoeften van de gebruiker, met toegang vanaf een verharde zone door het natuurlijke terrein.
Finestrat ligt in de regio Marina Baixa aan de Costa Blanca, vlakbij het naburige Benidorm en op ongeveer 40 kilometer van de stad Alicante en de internationale luchthaven.
Het dorp ligt op de berghelling van Puig Campana en biedt prachtig uitzicht op de bergen, de kust en de Middellandse Zee.
Benidorm ligt op slechts vijf minuten rijden van de woningen en biedt alle voorzieningen die je nodig hebt, zoals winkels, bars, restaurants, supermarkten, banken, apotheken en verschillende internationale privéscholen.