Located in the charming town of Benissa on the Costa Blanca, this architectural gem combines modern design with traditional Mediterranean elements.
This exceptional residence sits on a 770 m² plot, offering an elegant and cozy living space.
With a built area of 831.15 m² and a 356.92 m² garden, the house is designed to maximize comfort and functionality.
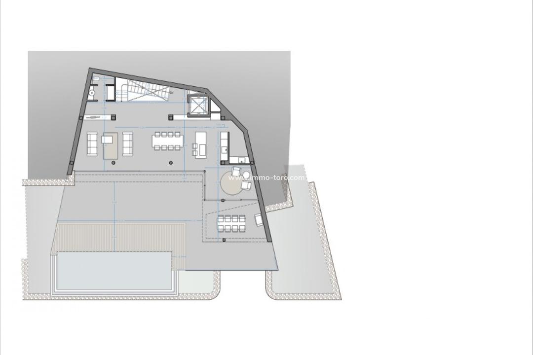
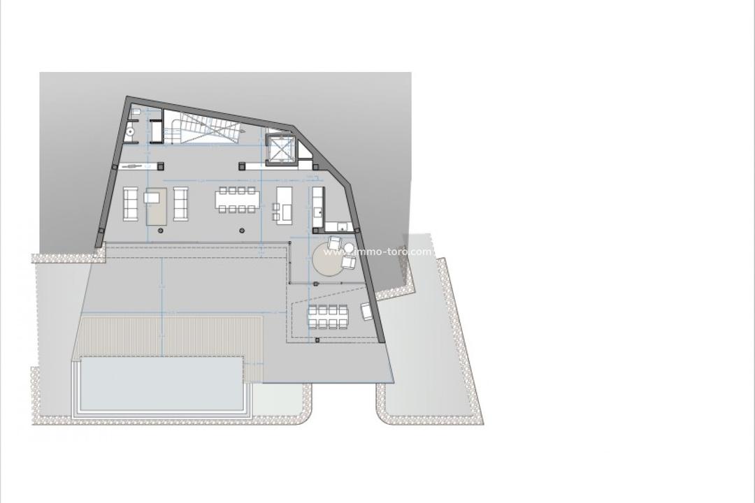
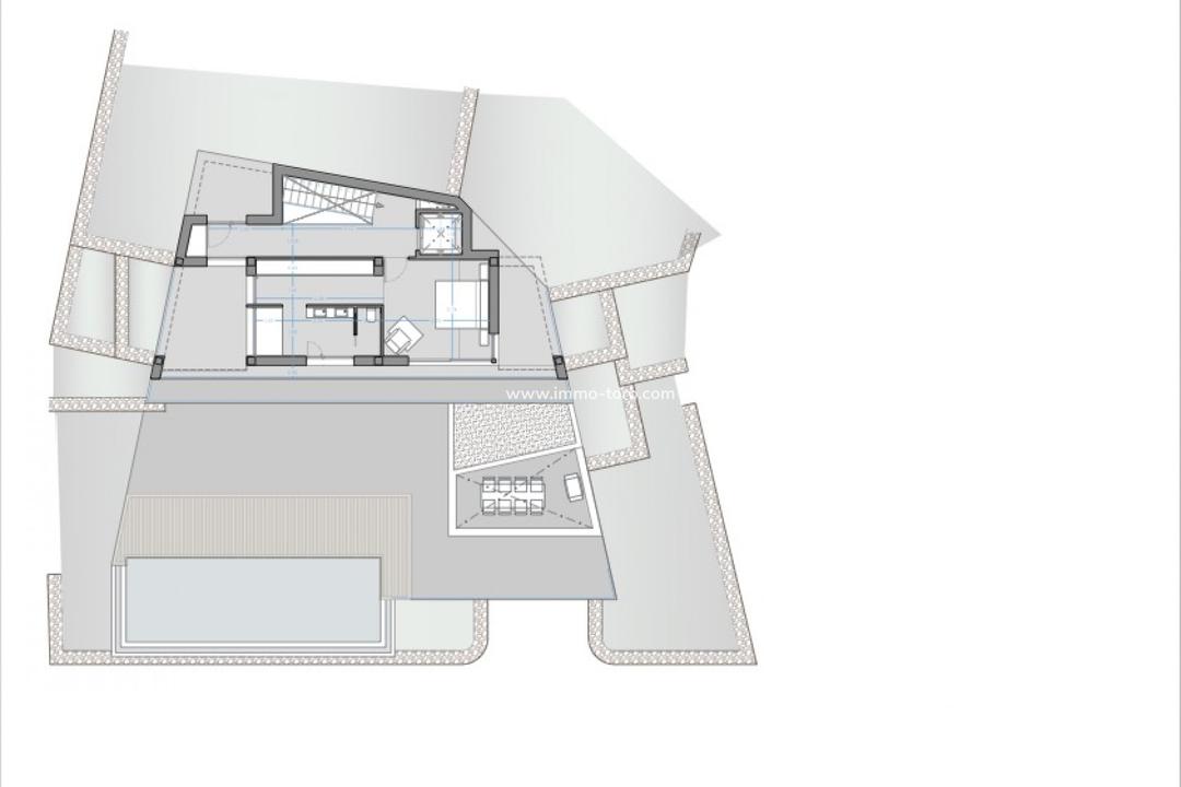
Upon entering, you are welcomed by a spacious living-dining room with an integrated kitchen, creating an open and bright atmosphere that connects directly to the terrace and pool area, ideal for enjoying the Mediterranean climate.
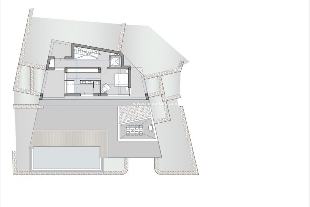
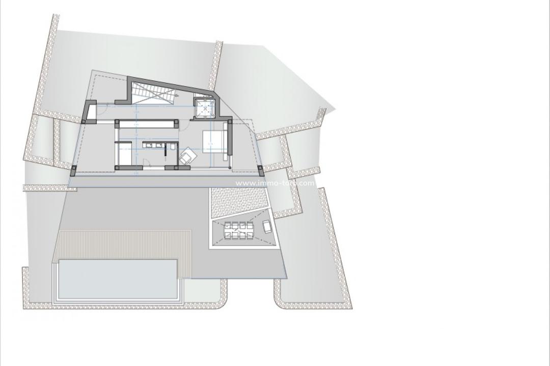
The first floor features four bedrooms designed with attention to detail and comfort, along with three full bathrooms and a functional hallway.
The second floor, which also serves as the main entrance area, includes a hallway and a garage with capacity for several vehicles.
The multifunctional basement houses a wine cellar and offers additional access to the garage, adding convenience and utility to the residence.
The exterior includes multiple terraces with panoramic views and various environments for relaxation or entertaining guests.
The 30.72 m² pool, accompanied by a barbecue pergola, creates the perfect setting for summer nights.
The garden adds a touch of nature and tranquility, making this property a true oasis.
This residence is not just a home; it is a lifestyle.
Designed to offer maximum luxury and comfort, it is perfect for those seeking an exclusive residence in a prime location.
Don’t miss the opportunity to live in one of the most beautiful places on the Costa Blanca.
For more information or to schedule a visit, please contact us.
We are here to help you find your dream home.
Diese architektonische Perle, gelegen in der charmanten Stadt Benissa an der Costa Blanca, vereint modernes Design mit traditionellen mediterranen Elementen.
Diese außergewöhnliche Residenz befindet sich auf einem 770 m² großen Grundstück und bietet einen eleganten und gemütlichen Wohnraum.
Mit einer bebauten Fläche von 831,15 m² und einem Garten von 356,92 m² ist das Haus darauf ausgelegt, Komfort und Funktionalität zu maximieren.
Beim Betreten werden Sie von einem geräumigen Wohn-Essbereich mit integrierter Küche empfangen, der eine offene und helle Atmosphäre schafft und direkt mit der Terrasse und dem Poolbereich verbunden ist – ideal, um das mediterrane Klima zu genießen.
Das erste Obergeschoss verfügt über vier Schlafzimmer, die mit Liebe zum Detail und Komfort gestaltet sind, sowie über drei voll ausgestattete Badezimmer und einen funktionalen Flur.
Das zweite Obergeschoss, das auch als Haupteingangsbereich dient, umfasst einen Flur und eine Garage mit Platz für mehrere Fahrzeuge.
Das multifunktionale Untergeschoss beherbergt einen Weinkeller und bietet zusätzlichen Zugang zur Garage, was der Residenz zusätzlichen Komfort und Nutzen verleiht.
Der Außenbereich umfasst mehrere Terrassen mit Panoramablick und verschiedenen Bereichen zur Entspannung oder zum Empfang von Gästen.
Der 30,72 m² große Pool, begleitet von einer Grillpergola, schafft die perfekte Kulisse für Sommerabende.
Der Garten verleiht der Immobilie einen Hauch von Natur und Ruhe und macht sie zu einer echten Oase.
Diese Residenz ist nicht nur ein Zuhause; sie ist ein Lebensstil.
Entworfen, um maximalen Luxus und Komfort zu bieten, ist sie perfekt für diejenigen, die eine exklusive Residenz in erstklassiger Lage suchen.
Verpassen Sie nicht die Gelegenheit, in einem der schönsten Orte an der Costa Blanca zu leben.
Für weitere Informationen oder zur Vereinbarung eines Besichtigungstermins kontaktieren Sie uns bitte.
Wir sind hier, um Ihnen zu helfen, Ihr Traumhaus zu finden.
Ubicada en la encantadora localidad de Benissa, en la Costa Blanca, se encuentra una joya arquitectónica que fusiona el diseño moderno con elementos tradicionales mediterráneos.
Esta excepcional residencia se asienta en una parcela de 770 m² y ofrece un espacio de vida elegante y acogedor.
Con una superficie construida de 831,15 m² y un jardín de 356,92 m², la casa está diseñada para maximizar el confort y la funcionalidad.
Al entrar, uno es recibido por un amplio salón-comedor con cocina integrada, creando un ambiente abierto y luminoso que conecta directamente con la terraza y la zona de la piscina, ideal para disfrutar del clima mediterráneo.
La planta primera dispone de cuatro dormitorios diseñados con atención al detalle y confort, además de tres baños completos y un distribuidor funcional.
La planta segunda, que también sirve como área de acceso principal, incluye un distribuidor y un garaje con capacidad para varios vehículos.
El sótano multifuncional alberga una bodega y ofrece un acceso adicional al garaje, añadiendo comodidad y utilidad a la residencia.
Los exteriores incluyen múltiples terrazas con vistas panorámicas y distintos ambientes para relajarse o recibir invitados.
La piscina de 30,72 m², acompañada por una pérgola con barbacoa, crea el escenario perfecto para las noches de verano.
El jardín añade un toque de naturaleza y tranquilidad, haciendo de esta propiedad un verdadero oasis.
Esta residencia no es solo una vivienda; es un estilo de vida.
Diseñada para ofrecer el máximo lujo y confort, es perfecta para quienes buscan una residencia exclusiva en una ubicación privilegiada.
No pierda la oportunidad de vivir en uno de los lugares más bellos de la Costa Blanca.
Para más información o para programar una visita, no dude en ponerse en contacto con nosotros.
Estamos aquí para ayudarle a encontrar la casa de sus sueños.
Gelegen in de charmante stad Benissa aan de Costa Blanca, combineert dit architectonische juweel modern design met traditionele mediterrane elementen.
Deze uitzonderlijke residentie bevindt zich op een perceel van 770 m² en biedt een elegante en gezellige leefruimte.
Met een bebouwde oppervlakte van 831,15 m² en een tuin van 356,92 m² is het huis ontworpen om comfort en functionaliteit te maximaliseren.
Bij binnenkomst wordt u verwelkomd door een ruime woon-eetkamer met een geïntegreerde keuken, die een open en lichte sfeer creëert en direct aansluit op het terras en het zwembadgedeelte, ideaal om te genieten van het mediterrane klimaat.
De eerste verdieping beschikt over vier slaapkamers, allemaal ontworpen met oog voor detail en comfort, samen met drie complete badkamers en een functionele hal.
De tweede verdieping, die ook dienst doet als hoofdingang, omvat een hal en een garage met ruimte voor meerdere voertuigen.
De multifunctionele kelder herbergt een wijnkelder en biedt extra toegang tot de garage, wat extra gemak en nut aan de residentie toevoegt.
De buitenruimte omvat meerdere terrassen met panoramisch uitzicht en verschillende omgevingen om te ontspannen of gasten te ontvangen.
Het 30,72 m² grote zwembad, vergezeld van een barbecuepergola, creëert de perfecte setting voor zomernachten.
De tuin voegt een vleugje natuur en rust toe, waardoor deze eigendom een echte oase is.
Deze residentie is niet zomaar een huis; het is een levensstijl.
Ontworpen om maximaal luxe en comfort te bieden, is het perfect voor diegenen die op zoek zijn naar een exclusieve residentie op een toplocatie.
Mis de kans niet om te wonen op een van de mooiste plekken aan de Costa Blanca.
Neem voor meer informatie of om een bezichtiging te plannen contact met ons op.
Wij zijn hier om u te helpen uw droomhuis te vinden.