Modern New Build Villas in Dolores, Alicante Contemporary Living in the Heart of the Vega BajaDiscover this exclusive new build villa development in Dolores, a charming town in the Vega Baja del Segura region, south of Alicante.
Known for its traditional Spanish character and surrounded by lush countryside, Dolores offers a peaceful lifestyle while providing all daily amenities within walking distance — shops, restaurants, schools, and local services.
Situated just 12 km from the beaches of La Marina and Guardamar del Segura, and with easy access to the AP-7 motorway, this residential area is perfectly connected to the main coastal towns of the Costa Blanca.
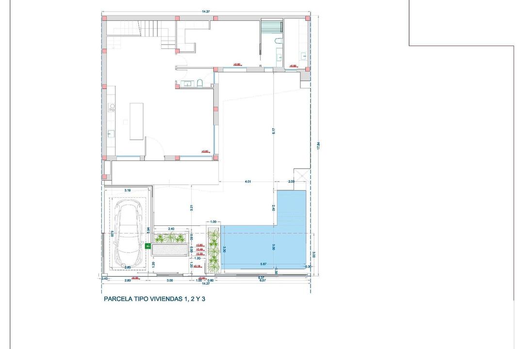
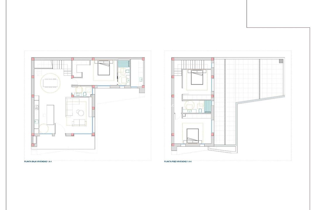
Elegant Modern Villas with Private PoolThese modern two-story villas have been designed for comfort, functionality, and style.
On the ground floor, you’ll find a bright open-plan kitchen connected to the living-dining area, with large sliding doors opening directly to the terrace and private garden with swimming pool.
The ground floor also features one bedroom with an ensuite bathroom, a guest toilet, and a convenient outdoor laundry area.
On the first floor, there are two additional bedrooms, a bathroom, and access to a large 60 m2 open terrace, perfect for sunbathing or relaxing while enjoying the Mediterranean climate.
Each home includes private parking inside the plot.
Quality Finishes and Modern ComfortBuilt with high-quality materials and contemporary design, these villas come fully equipped for year-round living.
Main features include:Exterior carpentry with thermal bridge breakMotorized blindsHot water system powered by aerothermal energyDucted air conditioning fully installedPrivate swimming poolPrivate parking and landscaped garden The interiors combine elegance and functionality, maximizing natural light and offering an exceptional living environment with a strong connection between indoor and outdoor spaces.
Prime Location Close to EverythingDolores enjoys a strategic location, providing a balance between tranquility and accessibility.
Key distances:Beaches of La Marina and Guardamar del Segura: 12 kmAlicante Airport (Elche-El Altet): 30 km (25 minutes by car)Murcia-Corvera Airport: 70 km (1 hour by car)Golf Courses: 15 kmAlicante city: 40 km Live the Mediterranean Lifestyle in DoloresThese new build villas in Dolores offer the perfect combination of modern design, comfort, and proximity to the coast.
Ideal for both permanent residence and holiday living, they provide a serene Mediterranean lifestyle surrounded by nature and convenience.
Contact us today to arrange a viewing and make your dream home in Dolores a reality.
Moderne Neubauvillen in Dolores, Alicante Zeitgemäßes Wohnen im Herzen der Vega Baja Entdecken Sie diese exklusive Neubauvillenanlage in Dolores, einer charmanten Stadt in der Region Vega Baja del Segura südlich von Alicante.
Dolores ist bekannt für seinen traditionellen spanischen Charakter und liegt inmitten einer üppigen Landschaft.
Die Stadt bietet einen ruhigen Lebensstil und gleichzeitig alle Annehmlichkeiten des täglichen Lebens in Laufnähe – Geschäfte, Restaurants, Schulen und lokale Dienstleistungen.
Nur 12 km von den Stränden von La Marina und Guardamar del Segura entfernt und mit guter Anbindung an die Autobahn AP-7 ist dieses Wohngebiet perfekt mit den wichtigsten Küstenstädten der Costa Blanca verbunden.
Elegante, moderne Villen mit privatem Pool Diese modernen zweistöckigen Villen wurden mit Blick auf Komfort, Funktionalität und Stil entworfen.
Im Erdgeschoss befindet sich eine helle, offene Küche, die mit dem Wohn-Essbereich verbunden ist und über große Schiebetüren direkt auf die Terrasse und den privaten Garten mit Swimmingpool führt.
Im Erdgeschoss befinden sich außerdem ein Schlafzimmer mit eigenem Bad, eine Gästetoilette und ein praktischer Waschraum im Außenbereich.
Im ersten Stock befinden sich zwei weitere Schlafzimmer, ein Badezimmer und der Zugang zu einer großen 60 m² großen offenen Terrasse, die sich perfekt zum Sonnenbaden oder Entspannen im mediterranen Klima eignet.
Jedes Haus verfügt über einen privaten Parkplatz auf dem Grundstück.
Hochwertige Ausstattung und moderner Komfort Diese Villen wurden mit hochwertigen Materialien und in zeitgemäßem Design gebaut und sind für das ganze Jahr über komplett ausgestattet.
Zu den Hauptmerkmalen gehören: Außenholzarbeiten mit thermischer Trennung Motorisierte Jalousien Warmwassersystem mit aerothermischer Energie Voll installierte Klimaanlage mit Luftkanälen Privater Swimmingpool Privater Parkplatz und angelegter Garten Die Innenräume verbinden Eleganz und Funktionalität, maximieren das natürliche Licht und bieten ein außergewöhnliches Wohnumfeld mit einer starken Verbindung zwischen Innen- und Außenbereichen.
Erstklassige Lage in der Nähe von allem Dolores genießt eine strategisch günstige Lage, die ein Gleichgewicht zwischen Ruhe und Erreichbarkeit bietet.
Wichtige Entfernungen: Strände von La Marina und Guardamar del Segura: 12 km Flughafen Alicante (Elche-El Altet): 30 km (25 Minuten mit dem Auto) Flughafen Murcia-Corvera: 70 km (1 Stunde mit dem Auto) Golfplätze: 15 km Stadt Alicante: 40 km Erleben Sie den mediterranen Lebensstil in Dolores Diese neu gebauten Villen in Dolores bieten die perfekte Kombination aus modernem Design, Komfort und Nähe zur Küste.
Sie eignen sich sowohl als Dauerwohnsitz als auch als Ferienhaus und bieten einen ruhigen mediterranen Lebensstil inmitten von Natur und Annehmlichkeiten.
Kontaktieren Sie uns noch heute, um einen Besichtigungstermin zu vereinbaren und Ihr Traumhaus in Dolores Wirklichkeit werden zu lassen.
Modernas villas de nueva construcción en Dolores, Alicante Vida contemporánea en el corazón de la Vega BajaDescubra esta exclusiva promoción de villas de nueva construcción en Dolores, una encantadora localidad de la Vega Baja del Segura, al sur de Alicante.
Conocida por su carácter tradicional español y rodeada de exuberantes paisajes, Dolores ofrece un estilo de vida tranquilo y, al mismo tiempo, cuenta con todos los servicios necesarios a poca distancia: tiendas, restaurantes, colegios y servicios locales.
Situada a solo 12 km de las playas de La Marina y Guardamar del Segura, y con fácil acceso a la autopista AP-7, esta zona residencial está perfectamente conectada con las principales localidades costeras de la Costa Blanca.
Elegantes villas modernas con piscina privadaEstas modernas villas de dos plantas han sido diseñadas para ofrecer comodidad, funcionalidad y estilo.
En la planta baja, encontrará una luminosa cocina abierta conectada al salón-comedor, con grandes puertas correderas que dan directamente a la terraza y al jardín privado con piscina.
La planta baja también cuenta con un dormitorio con baño en suite, un aseo de invitados y una práctica zona de lavandería al aire libre.
En la primera planta hay dos dormitorios adicionales, un cuarto de baño y acceso a una gran terraza abierta de 60 m2, perfecta para tomar el sol o relajarse mientras se disfruta del clima mediterráneo.
Cada vivienda incluye aparcamiento privado dentro de la parcela.
Acabados de calidad y comodidad modernaConstruidas con materiales de alta calidad y un diseño contemporáneo, estas villas están totalmente equipadas para vivir todo el año.
Las principales características incluyen:Carpintería exterior con rotura de puente térmicoPersianas motorizadasSistema de agua caliente alimentado por energía aerotérmicaAire acondicionado por conductos totalmente instaladoPiscina privadaAparcamiento privado y jardín ajardinado Los interiores combinan elegancia y funcionalidad, maximizando la luz natural y ofreciendo un entorno de vida excepcional con una fuerte conexión entre los espacios interiores y exteriores.
Ubicación privilegiada cerca de todoDolores goza de una ubicación estratégica, que ofrece un equilibrio entre tranquilidad y accesibilidad.
Distancias clave:Playas de La Marina y Guardamar del Segura: 12 kmAeropuerto de Alicante (Elche-El Altet): 30 km (25 minutos en coche)Aeropuerto de Murcia-Corvera: 70 km (1 hora en coche)Campos de golf: 15 kmCiudad de Alicante: 40 km Viva el estilo de vida mediterráneo en DoloresEstas villas de nueva construcción en Dolores ofrecen la combinación perfecta de diseño moderno, comodidad y proximidad a la costa.
Ideales tanto para residencia permanente como para vacaciones, proporcionan un estilo de vida mediterráneo sereno, rodeado de naturaleza y comodidades.
Póngase en contacto con nosotros hoy mismo para concertar una visita y hacer realidad la casa de sus sueños en Dolores.
Moderne nieuwbouwwoningen in Dolores, Alicante Eigentijds wonen in het hart van de Vega BajaOntdek dit exclusieve nieuwbouwproject van villa's in Dolores, een charmant stadje in de regio Vega Baja del Segura, ten zuiden van Alicante.
Dolores staat bekend om zijn traditionele Spaanse karakter en wordt omgeven door een weelderig landschap.
Het biedt een rustige levensstijl en alle dagelijkse voorzieningen op loopafstand, zoals winkels, restaurants, scholen en lokale diensten.
Deze woonwijk ligt op slechts 12 km van de stranden van La Marina en Guardamar del Segura en biedt gemakkelijke toegang tot de snelweg AP-7, waardoor het perfect verbonden is met de belangrijkste kustplaatsen van de Costa Blanca.
Elegante moderne villa's met privézwembadDeze moderne villa's met twee verdiepingen zijn ontworpen met het oog op comfort, functionaliteit en stijl.
Op de begane grond vindt u een lichte open keuken die in verbinding staat met de woon-eetkamer, met grote schuifdeuren die direct uitkomen op het terras en de privétuin met zwembad.
De begane grond beschikt ook over een slaapkamer met een eigen badkamer, een gastentoilet en een handige wasruimte buiten.
Op de eerste verdieping zijn er twee extra slaapkamers, een badkamer en toegang tot een groot open terras van 60 m2, perfect om te zonnebaden of te ontspannen terwijl u geniet van het mediterrane klimaat.
Elke woning heeft een eigen parkeerplaats op het perceel.
Hoogwaardige afwerking en modern comfortDeze villa's zijn gebouwd met hoogwaardige materialen en een eigentijds ontwerp en zijn volledig uitgerust om het hele jaar door te wonen.
De belangrijkste kenmerken zijn:Buitenbetimmering met thermische onderbrekingGemotoriseerde zonweringWarmwatersysteem op basis van aerothermische energieVolledig geïnstalleerde airconditioning met luchtkanalenPrivézwembadPrivé parkeerplaats en aangelegde tuin Het interieur combineert elegantie en functionaliteit, maximaliseert het natuurlijke licht en biedt een uitzonderlijke leefomgeving met een sterke verbinding tussen binnen- en buitenruimtes.
Toplocatie dicht bij allesDolores ligt op een strategische locatie en biedt een evenwicht tussen rust en bereikbaarheid.
Belangrijkste afstanden:Stranden van La Marina en Guardamar del Segura: 12 kmLuchthaven Alicante (Elche-El Altet): 30 km (25 minuten met de auto)Luchthaven Murcia-Corvera: 70 km (1 uur met de auto)Golfbanen: 15 kmDe stad Alicante: 40 km Leef de mediterrane levensstijl in DoloresDeze nieuwbouwwoningen in Dolores bieden de perfecte combinatie van modern design, comfort en nabijheid tot de kust.
Ze zijn ideaal voor zowel permanente bewoning als vakantieverblijf en bieden een serene mediterrane levensstijl, omgeven door natuur en gemak.
Neem vandaag nog contact met ons op om een bezichtiging te regelen en uw droomhuis in Dolores werkelijkheid te laten worden.
Thinking of buying in Jávea? Here's what life is really like for foreign residents — the neighbourhoods, lifestyle, cost...
A comprehensive overview of the Spanish real estate market in 2026 — trends, hotspots, prices, and essential tips for in...
Considering living in El Mojón on the Costa Blanca? A practical, honest guide for retirees and second-home buyers explor...