NEW BUILD VILLAS IN SAN JUAN DE LOS TERREROS The contemporary and innovative architecture of modern villas arrives to create a residential complex located in the town of San Juan de los Terreros in Pulpí, Almería, in southern Spain.
These carefully crafted homes and residential complex combine an exceptional level of design and quality with the highest standards of sustainability and well-being.
Homes meticulously designed by the technical team of architects, so that light, spaciousness, and orientation endow each home and plot with a special character.
Unique spaces that open the door to a new lifestyle to enjoy.
The foundation and structure of the houses are resolved with reinforced concreate and under ten-year warranty coverage.
Spacious terraces equipped with solid parapets to provide safety on the terrace railings, granting amplitude and luminosity.
The exterior enclosures of the plot will be treated with the same materials used in the house, ensuring integration into the residential complex.
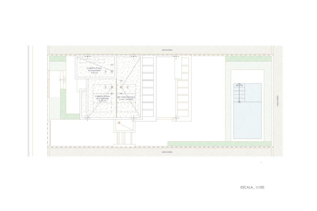
Ventilated and insulated flat roofs on slabs, with different finishes according to their location and use.
The doors to the master bedroom, secondary bathrooms, and toilets will include locks.
The exterior carpentry will consist of windows and French windows made of lacquered Aluminium with roll-up blinds made of aluminium slats, motorized in living rooms.
Video intercom system, which guarantees individual access control for each of the houses.
The bathrooms will be equipped with a sink, toilet, and shower, and the toilets will have a toilet and sink.
The bathrooms feature modern design sanitary appliances, made of vitrified porcelain finished in white, from the Roca brand Gap model, with chrome or matte black single-lever faucets to choose from.
The shower enclosures will be fixed with 8mm tempered glass with a length of 80cm.
Each pre-installation is designed for a system of up to 10 panels, which can be installed with a solar inverter connected to the home€s electrical grid to minimize electricity consumption.
These panels will be integrated onto the roof, in the installation area, hidden from the exterior of the dwelling.
Air entry to the dwellings will be ensured by incorporating a micro ventilation system in the windows of living rooms and bedrooms.
Independent smoke exhaust for kitchen extractor hood.
A home automation pre-installation in the dwelling with preparation for a future installation of home automation for controlling room climate and heating, blinds, and possible intruder alarm systems.
Pre-installation of video surveillance in the parking area and interior zones of the plot.
Each dwelling will have a fully installed kitchen finished in matte white, according to design, with a GOLA system.
The interior cabinets will be white, with hinged doors and drawers with brakes under the ceramic hob, ready to install visible appliances.
Appliances are not included.
Bedrooms with built-in wardrobes will be delivered with sliding doors in matte white.
These homes will feature energy efficiency and savings along with low pollution.
They are designed with a focus on greater efficiency for lower energy consumption, promoting rational energy use while also caring for the environment, quality, and climate comfort within the dwelling.
Low-emissivity glass prevents heat loss to the exterior, resulting in economic savings by retaining heat in the home during winter and preventing heat from entering during summer.
The HVAC and hot water systems are designed with individual systems to maximize the consumption and efficiency of each dwelling.
San Juan de los Terreros is a coastal hamlet belonging to the municipality of Pulpí.
It is known for its magnificent beaches, the last ones in Andalusia.
Off the coast of San Juan de los Terreros, there are two small islets of volcanic nature that form the Natural Monument of Isla de Terreros-Isla Negra.
The most characteristic monument of the town is the Castle of San Juan de los Terreros, built in 1764 on a promontory from which, on clear days, a large part of the coastlines of Almería and Murcia can be seen.
Integrated in the tranquillity and beauty of its own nature, bathed by beaches and coves of crystalline water, classified among the best in Spain.
Surrounded by protected natural landscapes that fill us with calm and at the same time, recharge us with energy, thanks to a vibrant gastronomic, social, and sports offer.
A perfect destination to enjoy with family all year round.
NEU GEBAUTE VILLEN IN SAN JUAN DE LOS TERREROS Die zeitgenössische und innovative Architektur moderner Villen wird in einer Wohnanlage in der Stadt San Juan de los Terreros in Pulpí, Almería, im Süden Spaniens verwirklicht.
Diese sorgfältig gestalteten Häuser und Wohnanlagen vereinen ein außergewöhnliches Design und Qualität mit den höchsten Standards für Nachhaltigkeit und Wohlbefinden.
Die Häuser wurden vom technischen Architektenteam sorgfältig entworfen, so dass Licht, Geräumigkeit und Ausrichtung jedem Haus und jedem Grundstück einen besonderen Charakter verleihen.
Einzigartige Räume, die die Tür zu einem neuen Lebensstil öffnen, den man genießen kann.
Das Fundament und die Struktur der Häuser sind aus Stahlbeton und haben eine zehnjährige Garantie.
Die Fassaden sind so konzipiert, dass der Energiebedarf des Hauses reduziert wird, und werden mit verschiedenen Materialien kombiniert, um eine einheitliche Ästhetik in Bezug auf Komposition und Farbe zu erreichen, wie in den Infografiken dargestellt.
Großzügige Terrassen, die mit massiven Brüstungen ausgestattet sind, um die Sicherheit der Terrassengeländer zu gewährleisten und gleichzeitig Weite und Helligkeit zu schaffen.
Die Außeneinfassungen des Grundstücks werden mit den gleichen Materialien wie das Haus behandelt, um die Integration in den Wohnkomplex zu gewährleisten.
Belüftete und isolierte Flachdächer auf Platten, die je nach Lage und Nutzung unterschiedlich ausgeführt werden.
Die Eingangstür zum Haus wird gepanzert sein.
Die Türen zum Hauptschlafzimmer, zu den Nebenbädern und zu den Toiletten werden mit Schlössern versehen.
Die Außentischlerei besteht aus Fenstern und Fenstertüren aus lackiertem Aluminium mit Rollläden aus Aluminiumlamellen, die in den Wohnräumen motorisiert sind.
Video-Gegensprechanlage, die eine individuelle Zugangskontrolle für jedes der Häuser gewährleistet.
Die Bäder werden mit Waschbecken, Toilette und Dusche ausgestattet, die Toiletten mit Toilette und Waschbecken.
Die Bäder sind mit modernen Design-Sanitärobjekten aus weißem Steinzeug der Marke Roca und des Modells Gap ausgestattet, wobei verchromte oder mattschwarze Einhebelarmaturen zur Auswahl stehen.
Die Duschabtrennungen werden mit 8 mm gehärtetem Glas mit einer Länge von 80 cm befestigt.
Jede Vorinstallation ist für ein System von bis zu 10 Paneelen ausgelegt, die mit einem an das Stromnetz des Hauses angeschlossenen Solarwechselrichter installiert werden können, um den Stromverbrauch zu minimieren.
Die Paneele werden auf dem Dach, im Installationsbereich, von der Außenseite der Wohnung verborgen, installiert.
Die Luftzufuhr zu den Wohnungen wird durch den Einbau eines Mikrolüftungssystems in den Fenstern der Wohn- und Schlafräume gewährleistet.
Unabhängiger Rauchabzug für die Dunstabzugshaube der Küche.
Vorinstallation einer Hausautomation in der Wohnung mit Vorbereitung auf eine spätere Installation von Hausautomation zur Steuerung von Raumklima und Heizung, Jalousien und eventuellen Einbruchmeldeanlagen.
Vorinstallation einer Videoüberwachung des Parkplatzes und der Innenbereiche des Grundstücks.
Jede Wohnung wird mit einer komplett installierten Küche in mattem Weiß nach Entwurf mit einem GOLA-System ausgestattet.
Die Innenschränke werden weiß sein, mit Flügeltüren und Schubladen mit Bremsen unter dem Cerankochfeld, bereit für die Installation sichtbarer Geräte.
Die Geräte sind nicht inbegriffen.
Die Schlafzimmer mit Einbauschränken werden mit Schiebetüren in mattem Weiß geliefert.
Diese Wohnungen zeichnen sich durch Energieeffizienz und -einsparung sowie geringe Umweltbelastung aus.
Sie sind so konzipiert, dass der Schwerpunkt auf einer höheren Effizienz für einen geringeren Energieverbrauch liegt, um eine rationelle Energienutzung zu fördern und gleichzeitig die Umwelt, die Qualität und den Klimakomfort innerhalb der Wohnung zu schützen.
Glas mit niedrigem Emissionsgrad verhindert Wärmeverluste nach außen, was zu wirtschaftlichen Einsparungen führt, da die Wärme im Winter im Haus bleibt und im Sommer nicht eindringt.
Die Heizungs-, Klima- und Warmwassersysteme sind mit individuellen Systemen ausgestattet, um den Verbrauch und die Effizienz der einzelnen Wohnungen zu maximieren.
San Juan de los Terreros ist ein Küstenort, der zur Gemeinde Pulpí gehört.
Er ist bekannt für seine herrlichen Strände, die letzten in Andalusien.
Vor der Küste von San Juan de los Terreros befinden sich zwei kleine Inseln vulkanischer Natur, die das Naturdenkmal Isla de Terreros-Isla Negra bilden.
Das charakteristischste Bauwerk des Ortes ist die Burg von San Juan de los Terreros, die 1764 auf einer Landzunge errichtet wurde, von der aus man an klaren Tagen einen großen Teil der Küsten von Almería und Murcia sehen kann.
Eingebettet in die Ruhe und Schönheit der eigenen Natur, umgeben von Stränden und Buchten mit kristallklarem Wasser, die zu den besten Spaniens zählen.
Umgeben von geschützten Naturlandschaften, die uns mit Ruhe erfüllen und uns gleichzeitig mit Energie aufladen, dank eines lebhaften gastronomischen, sozialen und sportlichen Angebots.
Exklusive Restaurants, Sportclubs und natürlich hervorragende Golfplätze mit Blick auf das Meer wie Aguilón Golf.
Ein perfektes Reiseziel, um es das ganze Jahr über mit der Familie zu genießen.
VILLAS DE OBRA NUEVA EN SAN JUAN DE LOS TERREROS La arquitectura contemporánea e innovadora de las villas modernas llega para crear un complejo residencial situado en la localidad de San Juan de los Terreros en Pulpí, Almería, en el sur de España.
Estas cuidadas viviendas y complejo residencial combinan un excepcional nivel de diseño y calidad con los más altos estándares de sostenibilidad y bienestar.
Viviendas meticulosamente diseñadas por el equipo técnico de arquitectos, para que la luz, la amplitud y la orientación doten a cada vivienda y parcela de un carácter especial.
Espacios únicos que abren la puerta a un nuevo estilo de vida para disfrutar.
La cimentación y estructura de las viviendas están resueltas con hormigón armado y bajo garantía decenal.
Fachadas diseñadas para reducir la demanda energética de la vivienda, combinadas con diversos materiales para conseguir una estética coherente en cuanto a composición y color como se refleja en la infografía.
Amplias terrazas dotadas de sólidos antepechos para proporcionar seguridad en las barandillas de las terrazas, otorgando amplitud y luminosidad.
Los cerramientos exteriores de la parcela se tratarán con los mismos materiales utilizados en la vivienda, garantizando la integración en el conjunto residencial.
Cubiertas planas ventiladas y aisladas sobre forjados, con diferentes acabados según su ubicación y uso.
La puerta de entrada a la vivienda será blindada.
Las puertas del dormitorio principal, baños secundarios y aseos incluirán cerraduras.
La carpintería exterior constará de ventanas y balconeras de Aluminio lacado con persianas enrollables de lamas de aluminio, motorizadas en salones.
Sistema de video portero, que garantiza el control de acceso individual para cada una de las viviendas.
Los cuartos de baño estarán equipados con lavabo, inodoro y ducha, y los aseos dispondrán de inodoro y lavabo.
Los baños cuentan con sanitarios de diseño moderno, de porcelana vitrificada acabada en blanco, de la marca Roca y modelo Gap, con grifería monomando cromada o negro mate a elegir.
Las mamparas de ducha irán fijadas con cristal templado de 8mm con una longitud de 80cm.
Cada preinstalación está diseñada para un sistema de hasta 10 paneles, que pueden instalarse con un inversor solar conectado a la red eléctrica de la vivienda para minimizar el consumo eléctrico.
Estos paneles se integrarán en el tejado, en la zona de instalación, ocultos desde el exterior de la vivienda.
La entrada de aire a las viviendas se asegurará mediante la incorporación de un sistema de microventilación en las ventanas de salones y dormitorios.
Salida de humos independiente para campana extractora de cocina.
Preinstalación de domótica en la vivienda con preparación para una futura instalación de domótica para control de climatización y calefacción de habitaciones, persianas y posibles sistemas de alarma de intrusión.
Preinstalación de videovigilancia en la zona de aparcamiento y zonas interiores de la parcela.
Cada vivienda dispondrá de una cocina totalmente instalada y acabada en color blanco mate, según diseño, con sistema GOLA.
Los armarios interiores serán blancos, con puertas abatibles y cajones con freno bajo placa vitrocerámica, listos para instalar electrodomésticos vistos.
Los electrodomésticos no están incluidos.
Los dormitorios con armarios empotrados se entregarán con puertas correderas en color blanco mate.
Estas viviendas se caracterizarán por su eficiencia y ahorro energéticos, así como por su baja contaminación.
Están diseñadas con un enfoque de mayor eficiencia para un menor consumo energético, promoviendo un uso racional de la energía a la vez que se cuida el medio ambiente, la calidad y el confort climático dentro de la vivienda.
Los vidrios de baja emisividad evitan la pérdida de calor hacia el exterior, lo que se traduce en un ahorro económico al retener el calor en la vivienda durante el invierno y evitar la entrada de calor durante el verano.
Los sistemas de climatización y agua caliente sanitaria están diseñados con sistemas individuales para maximizar el consumo y la eficiencia de cada vivienda.
San Juan de los Terreros es una pedanía costera perteneciente al municipio de Pulpí.
Es conocida por sus magníficas playas, las últimas de Andalucía.
Frente a la costa de San Juan de los Terreros se encuentran dos pequeños islotes de naturaleza volcánica que forman el Monumento Natural de Isla de Terreros-Isla Negra.
El monumento más característico de la localidad es el Castillo de San Juan de los Terreros, construido en 1764 sobre un promontorio desde el que, en días despejados, se divisa gran parte de las costas de Almería y Murcia.
Integrado en la tranquilidad y belleza de su propia naturaleza, bañado por playas y calas de aguas cristalinas, clasificadas entre las mejores de España.
Rodeado de paisajes naturales protegidos que nos llenan de calma y a la vez, nos recargan de energía, gracias a una vibrante oferta gastronómica, social y deportiva.
Restaurantes exclusivos, clubes deportivos y, por supuesto, excelentes campos de golf con vistas al mar como Aguilón Golf.
Un destino perfecto para disfrutar en familia durante todo el año.
NIEUWBOUW VILLA'S IN SAN JUAN DE LOS TERREROS De eigentijdse en innovatieve architectuur van moderne villa's komt samen in een wooncomplex in de stad San Juan de los Terreros in Pulpí, Almería, in Zuid-Spanje.
Deze zorgvuldig ontworpen woningen en het wooncomplex combineren een uitzonderlijk niveau van design en kwaliteit met de hoogste normen op het gebied van duurzaamheid en welzijn.
Woningen die zorgvuldig zijn ontworpen door het technische team van architecten, zodat licht, ruimte en oriëntatie elk huis en elk perceel een speciaal karakter geven.
Unieke ruimtes die de deur openen naar een nieuwe levensstijl om van te genieten.
De fundering en de structuur van de huizen zijn gemaakt van gewapend beton en hebben een garantie van tien jaar.
Gevels ontworpen om de energiebehoefte van het huis te verminderen, gecombineerd met verschillende materialen om een esthetische consistentie te bereiken in termen van compositie en kleur zoals weergegeven in de infografieken.
Ruime terrassen uitgerust met solide borstweringen om veiligheid te bieden op de terrasbalustrades, die amplitude en helderheid verlenen.
De buitenomheiningen van het perceel zullen worden behandeld met dezelfde materialen die in het huis worden gebruikt, waardoor integratie in het wooncomplex wordt gegarandeerd.
Geventileerde en geïsoleerde platte daken op platen, met verschillende afwerkingen afhankelijk van hun locatie en gebruik.
De toegangsdeur van het huis wordt gepantserd.
De deuren naar de hoofdslaapkamer, secundaire badkamers en toiletten worden voorzien van sloten.
Het buitenschrijnwerk bestaat uit ramen en openslaande deuren van gelakt aluminium met rolgordijnen van aluminium lamellen, gemotoriseerd in de woonkamers.
Video-intercomsysteem, dat individuele toegangscontrole garandeert voor elk van de huizen.
De badkamers zijn uitgerust met een wastafel, toilet en douche, en de toiletten hebben een toilet en wastafel.
De badkamers zijn voorzien van modern design sanitair, gemaakt van wit geglazuurd porselein, van het merk Roca en model Gap, met chromen of matzwarte eenhendel kranen om uit te kiezen.
De douchewanden worden bevestigd met 8mm gehard glas met een lengte van 80cm.
Elke pre-installatie is ontworpen voor een systeem van maximaal 10 panelen, die kunnen worden geïnstalleerd met een omvormer die wordt aangesloten op het elektriciteitsnet van de woning om het elektriciteitsverbruik te minimaliseren.
Deze panelen worden geïntegreerd op het dak, in de installatiezone, verborgen van de buitenkant van de woning.
De luchttoevoer naar de woningen wordt verzekerd door het inbouwen van een microventilatiesysteem in de ramen van woon- en slaapkamers.
Onafhankelijke rookafvoer voor de afzuigkap in de keuken.
Een pre-installatie van domotica in de woning met voorbereiding voor een toekomstige installatie van domotica voor het regelen van het klimaat en de verwarming in de kamer, jaloezieën en mogelijke inbraakalarmsystemen.
Pre-installatie van videobewaking op de parkeerplaats en binnenzones van het perceel.
Elke woning krijgt een volledig geïnstalleerde keuken afgewerkt in mat wit, volgens ontwerp, met een GOLA-systeem.
De binnenkasten zullen wit zijn, met scharnierende deuren en laden met remmen onder de keramische kookplaat, klaar om zichtbare apparatuur te installeren.
Apparaten zijn niet inbegrepen.
Slaapkamers met ingebouwde kasten worden geleverd met schuifdeuren in mat wit.
Deze woningen zullen energiezuinig zijn en weinig vervuiling veroorzaken.
Ze zijn ontworpen met een focus op grotere efficiëntie voor lager energieverbruik, waardoor rationeel energiegebruik wordt gestimuleerd en tegelijkertijd zorg wordt gedragen voor het milieu, de kwaliteit en het klimaatcomfort in de woning.
Glas met een lage emissiviteit voorkomt warmteverlies naar buiten, wat resulteert in economische besparingen door warmte in de woning vast te houden in de winter en te voorkomen dat warmte binnenkomt in de zomer.
De HVAC- en warmwatersystemen zijn ontworpen met individuele systemen om het verbruik en de efficiëntie van elke woning te maximaliseren.
San Juan de los Terreros is een kustgehucht dat deel uitmaakt van de gemeente Pulpí.
Het staat bekend om zijn prachtige stranden, de laatste van Andalusië.
Voor de kust van San Juan de los Terreros liggen twee kleine vulkanische eilandjes die het natuurmonument Isla de Terreros-Isla Negra vormen.
Het meest karakteristieke monument van de stad is het kasteel van San Juan de los Terreros, gebouwd in 1764 op een voorgebergte vanwaar, op heldere dagen, een groot deel van de kustlijn van Almería en Murcia te zien is.
Geïntegreerd in de rust en schoonheid van de eigen natuur, badend in stranden en baaien met kristalhelder water, geclassificeerd als een van de beste van Spanje.
Omringd door beschermde natuurlandschappen die ons vervullen met rust en ons tegelijkertijd opladen met energie, dankzij een bruisend gastronomisch, sociaal en sportief aanbod.
Exclusieve restaurants, sportclubs en natuurlijk uitstekende golfbanen met uitzicht op zee zoals Aguilón Golf.
Een perfecte bestemming om het hele jaar door met het gezin van te genieten.