Luxury new build villa for sale on the Montgó, Jávea,This fantastic villa is located in the luxurious urbanisation El Garroferal, situated on the sunny southern flank of the Montgó.
This unique location guarantees expansive views over the mountainous landscape towards the south, with beautiful sunsets to the west.
On the north side, there are close views of the Montgó's impressive rock faces.
The villa has a total built-up area of 337.72 m2 and is spread over three floors.
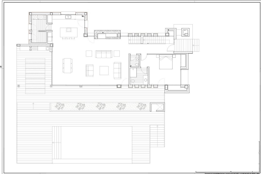
Upon entering the ground floor, you are welcomed by a spacious hall where the stairs to the other floors are located.
For extreme convenience, a guest toilet is also located here.
The hallway opens into a spacious living-dining room with an open kitchen with a large cooking island.
Large sliding windows provide plenty of natural light and give access to the covered poolside terrace.
Adjacent to the kitchen are the laundry room and technical room.
Also on this floor is a bedroom with an en suite bathroom.
From the bedroom there is direct access to the terrace.
The upper floor consists of three bedrooms, each with an en suite bathroom and access to a spacious terrace.
The master bedroom also has a dressing room and a bathroom with bathtub.
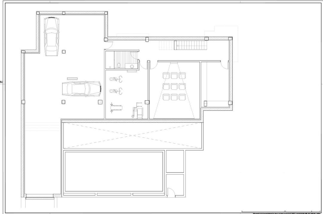
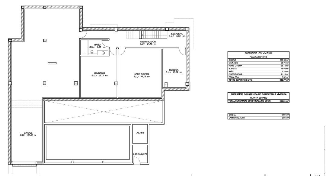
The basement comprises a 130m2 garage, a gym, a home cinema and a wine cellar.
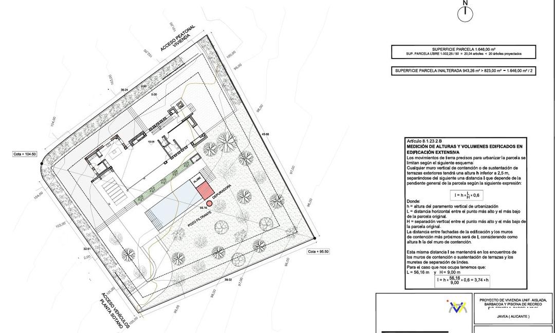
Outside, there is a 5x10m swimming pool surrounded by a spacious terrace and a beautiful garden.
The villa is also equipped with all the luxuries to totally relax.
There is a barbecue with an outdoor kitchen, an outdoor shower, underfloor heating based on an energy-efficient heat pump, air conditioning, automatic gate, etc.
The villa is currently under construction and will be completed by the end of 2025 (subject to change).Plans with dimensions and exact location on request.
Vom Schlafzimmer aus gibt es einen direkten Zugang zur Terrasse.
Das Obergeschoss besteht aus drei Schlafzimmern, jedes mit eigenem Bad und Zugang zu einer großen Terrasse.
Das Hauptschlafzimmer verfügt außerdem über einen Ankleideraum und ein Badezimmer mit Badewanne.
Im Untergeschoss befinden sich eine 130 m2 große Garage, ein Fitnessraum, ein Heimkino und ein Weinkeller.
Im Außenbereich befindet sich ein 5x10m großer Swimmingpool, der von einer großen Terrasse und einem schönen Garten umgeben ist.
Die Villa ist auch mit allem Luxus ausgestattet, um sich vollkommen zu entspannen.
Es gibt einen Grill mit Außenküche, eine Außendusche, eine Fußbodenheizung mit energieeffizienter Wärmepumpe, eine Klimaanlage, ein automatisches Tor, usw.
Luxuriöse Neubau-Villa am Montgó, Jávea, zu verkaufen,Diese fantastische Villa befindet sich in der luxuriösen Urbanisation El Garroferal, die an der sonnigen Südflanke des Montgó gelegen ist.
Diese einzigartige Lage garantiert einen weiten Blick über die bergige Landschaft im Süden, mit wunderschönen Sonnenuntergängen im Westen.
Auf der Nordseite hat man einen nahen Blick auf die beeindruckenden Felswände des Montgó.Die Villa hat eine bebaute Gesamtfläche von 337,72 m2 und ist auf drei Etagen verteilt.
Beim Betreten des Erdgeschosses wird man von einer geräumigen Halle empfangen, in der sich die Treppe zu den anderen Etagen befindet.
Hier befindet sich auch eine Gästetoilette, die sehr praktisch ist.
Vom Flur aus gelangt man in ein geräumiges Wohn-Esszimmer mit einer offenen Küche mit einer großen Kochinsel.
Große Schiebefenster sorgen für viel natürliches Licht und ermöglichen den Zugang zur überdachten Terrasse am Pool.
Angrenzend an die Küche befinden sich die Waschküche und der Technikraum.
Auf dieser Etage befindet sich auch ein Schlafzimmer mit eigenem Bad.
Die Villa befindet sich derzeit im Bau und wird bis Ende 2025 fertiggestellt sein (Änderungen vorbehalten).Pläne mit Abmessungen und genauer Lage auf Anfrage.
Villa de lujo de nueva construcción en venta en el Montgó, Jávea,Esta fantástica villa se encuentra en la lujosa urbanización El Garroferal, situada en el soleado flanco sur del Montgó.
Esta ubicación única garantiza amplias vistas sobre el paisaje montañoso hacia el sur, con hermosas puestas de sol hacia el oeste.
En el lado norte, hay vistas cercanas de las impresionantes paredes rocosas del Montgó.La villa tiene una superficie total construida de 337,72 m2 y se distribuye en tres plantas.
Al entrar en la planta baja, le da la bienvenida un amplio vestíbulo donde se encuentran las escaleras a las otras plantas.
Para mayor comodidad, también hay un aseo de invitados.
El pasillo se abre a un amplio salón-comedor con una cocina abierta con una gran isla de cocina.
Las grandes ventanas correderas proporcionan mucha luz natural y dan acceso a la terraza cubierta junto a la piscina.
Junto a la cocina se encuentran el lavadero y la sala técnica.
También en esta planta hay un dormitorio con baño en suite.
Desde el dormitorio se accede directamente a la terraza.
La planta superior consta de tres dormitorios, cada uno con baño en suite y acceso a una amplia terraza.
El dormitorio principal también tiene un vestidor y un cuarto de baño con bañera.
En el sótano hay un garaje de 130m2, un gimnasio, un home cinema y una bodega.
En el exterior, hay una piscina de 5x10m rodeada de una amplia terraza y un hermoso jardín.
La villa también está equipada con todos los lujos para relajarse totalmente.
Hay una barbacoa con cocina exterior, una ducha exterior, calefacción por suelo radiante basada en una bomba de calor de bajo consumo, aire acondicionado, puerta automática, etc.
La villa está actualmente en construcción y estará terminada a finales de 2025 (sujeto a cambios).Planos con dimensiones y ubicación exacta a petición.
Luxueuze nieuwbouw villa te koop aan de Montgó, Jávea,Deze fantastische villa is gelegen in de luxueuze urbanisatie El Garroferal, gelegen op de zonnige zuidflank van de Montgó.
Deze unieke locatie garandeert een uitgestrekt uitzicht over het bergachtige landschap richting het zuiden, met prachtige zonsondergangen in het westen.
Aan de noordkant is er van dichtbij uitzicht op de impressionante rotswanden van de Montgó.
De villa heeft een totale bebouwde oppervlakte van 337.72 m2 en is verdeeld over drie verdiepen.
Bij binnenkomst op de benedenverdieping wordt u verwelkomd door een ruime hal waar zich de trappen naar de andere verdiepen bevinden.
Voor uiterst gemak bevindt zich hier ook een gastentoilet.
De hal komt uit in een ruime woon-eetkamer met een open keuken met een groot kookeiland.
Grote schuiframen zorgen voor veel natuurlijke licht-inval en geven toegang tot het overdekte terras aan het zwembad.
Aangrenzend aan de keuken bevinden zich de wasruimte en de technische ruimte.
Op deze verdieping bevindt zich ook een slaapkamer met een en suite badkamer.
Vanuit de slaapkamer is er een directe toegang tot het terras.
De bovenverdieping bestaat uit drie slaapkamers, elk met een en suite badkamer en toegang tot een ruim terras.
De hoofdslaapkamer beschikt bovendien over een dressing en een badkamer met badkuip.
De kelderverdieping bestaat uit een garage van 130 m2, een gymzaal, een home cinema en een wijnkelder.
Buiten is er een zwembad van 5x10 m omringd door een ruim terras en een mooie tuin.
De villa is bovendien voorzien van alle luxe om helemaal te relaxen.
Zo is er een barbecue met een buitenkeuken, een buitendouche, vloerverwarming op basis van een energiezuinige warmtepomp, airconditioning, automatische poort, etc.
De villa is momenteel in aanbouw en zal eind 2025 klaar zijn (onder voorbehoud).
Plannen met afmetingen en exacte locatie op aanvraag.