This modern villa is located in the quiet Raco de Nadal urbanization and offers beautiful views over the valley from Benitachell to Cumbre del Sol.
The entire property is on one floor which ensures extreme comfort.
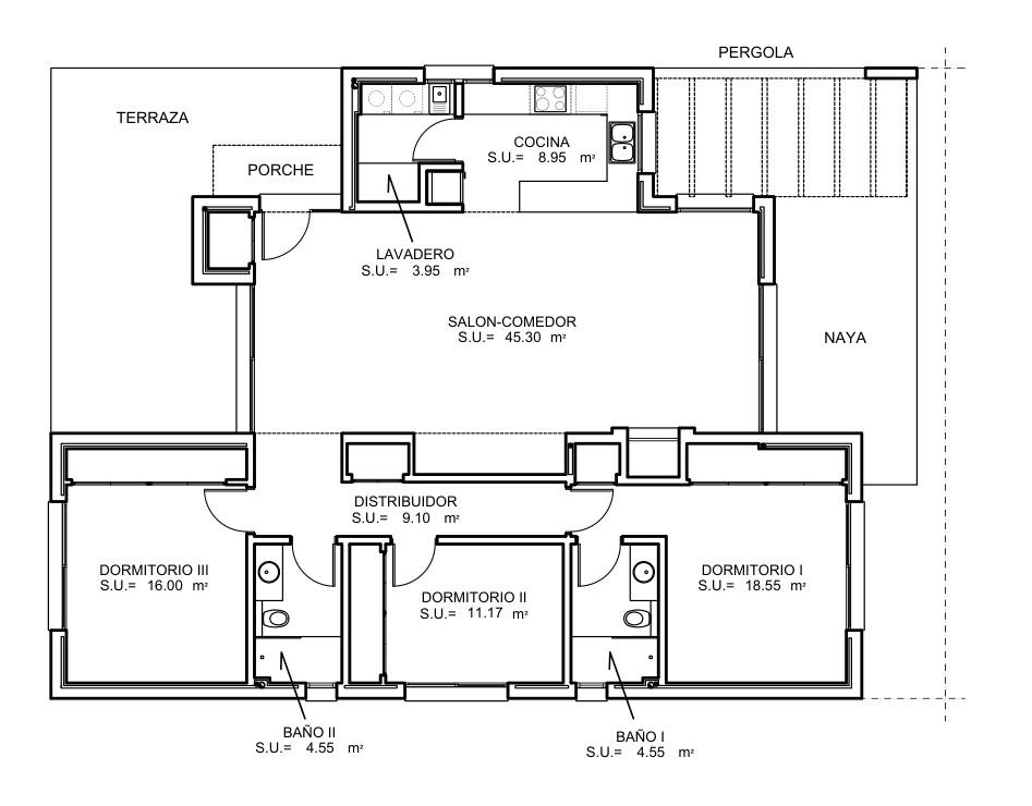
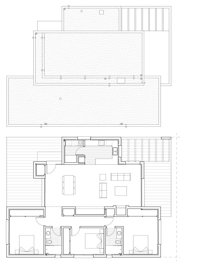
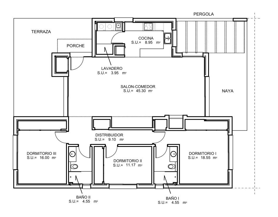
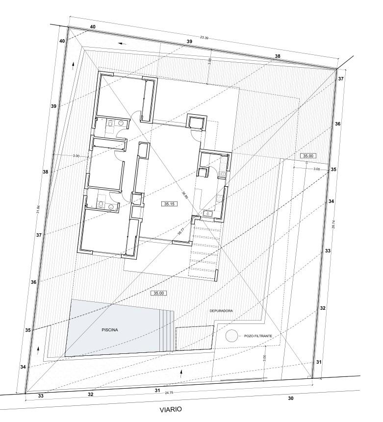
There is a spacious living-dining room with a fully equipped open kitchen, a utility room and three double bedrooms.
Of these, one bedroom has an en suite bathroom, the other two bedrooms share a bathroom.
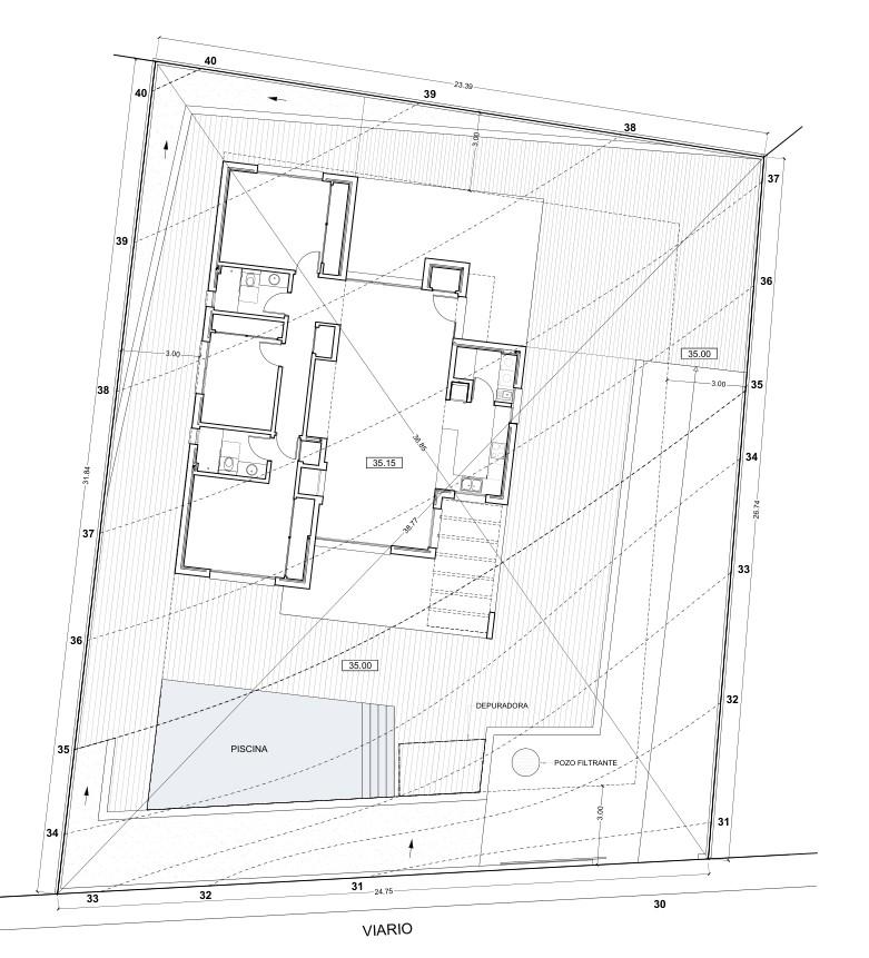
There is also a pergola, a large poolside terrace and parking space.
The property is located at the foot of the Tossal Gros nature reserve where there are several hiking and mountain bike routes.
Both the center of Jávea and that of Moraira can be reached in 15 minutes, also several beautiful beaches both in Jávea and Moraira can be reached in 15 minutes.
The center of Benitachell can be reached in just over 5 minutes.
The villa is currently under construction.
More information on request.
Diese moderne Villa befindet sich in der ruhigen Urbanisation Raco de Nadal und bietet einen wunderschönen Blick über das Tal von Benitachell bis zur Cumbre del Sol.
Das gesamte Anwesen befindet sich auf einer Etage, die ein Höchstmaß an Komfort gewährleistet.
Es gibt ein geräumiges Wohn-Esszimmer mit einer voll ausgestatteten offenen Küche, einen Hauswirtschaftsraum und drei Doppelschlafzimmer.
Davon hat ein Schlafzimmer ein eigenes Bad, während sich die beiden anderen Schlafzimmer ein Bad teilen.
Außerdem gibt es eine Pergola, eine große Terrasse am Pool und einen Parkplatz.
Das Anwesen liegt am Fuße des Naturparks Tossal Gros, wo es mehrere Wander- und Mountainbike-Routen gibt.
Sowohl das Zentrum von Jávea als auch das von Moraira sind in 15 Minuten zu erreichen.
Auch mehrere schöne Strände sowohl in Jávea als auch in Moraira sind in 15 Minuten zu erreichen.
Das Zentrum von Benitachell ist in etwas mehr als 5 Minuten zu erreichen.
Die Villa befindet sich derzeit im Bau.
Weitere Informationen auf Anfrage.
Esta moderna villa está situada en la tranquila urbanización Raco de Nadal y ofrece hermosas vistas sobre el valle de Benitachell a Cumbre del Sol.
Toda la propiedad está en una sola planta, lo que garantiza la máxima comodidad.
Dispone de un amplio salón-comedor con cocina americana totalmente equipada, lavadero y tres dormitorios dobles.
De ellos, uno tiene baño en suite y los otros dos comparten baño.
También hay una pérgola, una gran terraza junto a la piscina y plaza de aparcamiento.
La propiedad se encuentra a los pies de la reserva natural del Tossal Gros, donde hay varias rutas de senderismo y bicicleta de montaña.
Tanto al centro de Jávea como al de Moraira se puede llegar en 15 minutos, también a varias playas preciosas tanto en Jávea como en Moraira se puede llegar en 15 minutos.
El centro de Benitachell se encuentra a poco más de 5 minutos.
La villa está actualmente en construcción.
Más información a petición.
Deze moderne villa is gelegen in de rustige urbanisatie Raco de Nadal en biedt prachtig uitzicht over de vallei van Benitachell tot en met Cumbre del Sol.
De volledige woning bevindt zich op één verdieping wat voor uiterst comfort zorgt.
Er is een ruime woon-eetkamer met een volledig uitgeruste open keuken, een bijkeuken en drie dubbele slaapkamers.
Hiervan heeft één slaapkamer een en suite badkamer, de andere twee slaapkamers delen een badkamer.
Er is ook een pergola, een groot terras aan het zwembad en parkeerruimte.
De woning is gelegen aan de voet van het natuurgebied Tossal Gros waar meerdere wandel- en mountainbike routes lopen.
Zowel het centrum van Jávea als dat van Moraira zijn op 15 minuten te bereiken, ook meerdere prachtige stranden zowel in Jávea als in Moraira zijn op 15 minuten te bereiken.
Het centrum van Benitachell is op iets meer dan 5 minuten te bereiken.
De villa is momenteel onder constructie.
Meer informatie op aanvraag.