Villa with four levels for sale in Moraira.
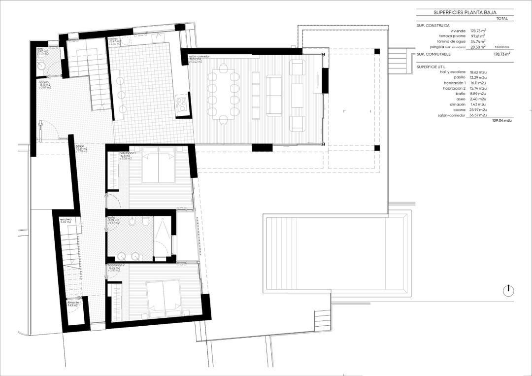
The main floor features a large living/dining area with access to the pool terrace, a spacious kitchen, two double bedrooms with fitted wardrobes and terrace access, a shared bathroom with walk-in shower, and a guest toilet.
On the upper floor, the master bedroom includes an en-suite bathroom, walk-in closet, and private sun terrace.
The property also includes a large underbuild with potential to create up to three additional bedrooms and a garage.
A basement is accessible via stairs from the underbuild.
Extras include an 8x4 m pool, underfloor heating, double glazing, storage space, and off-road parking.
Villa mit vier Etagen zu verkaufen in Moraira.
Die Hauptetage verfügt über einen großen Wohn-/Essbereich mit Zugang zur Poolterrasse, eine geräumige Küche, zwei Doppel-Schlafzimmer mit Einbauschränken und Zugang zur Terrasse, ein gemeinsames Badezimmer mit begehbarer Dusche und ein Gäste-WC.
In der oberen Etage umfasst das Hauptschlafzimmer ein Badezimmer en-suite, einen begehbaren Kleiderschrank und eine private Sonnenterrasse.
Die Immobilie umfasst auch einen großen Unterbau mit Potenzial zur Schaffung von bis zu drei zusätzlichen Schlafzimmern und einer Garage.
Ein Keller ist über Treppen vom Unterbau aus zugänglich.
Zusätzliche Merkmale sind ein 8x4 m Pool, Fußbodenheizung, doppelt verglaste Fenster, Stauraum und Parkmöglichkeiten abseits der Straße.
Villa de cuatro niveles en venta en Moraira.
La planta principal cuenta con una amplia sala de estar/comedor con acceso a la terraza de la piscina, una cocina espaciosa, dos dormitorios dobles con armarios empotrados y acceso a la terraza, un baño compartido con ducha a ras de suelo y un aseo para invitados.
En la planta superior, el dormitorio principal incluye un baño en suite, vestidor y terraza privada.
La propiedad también incluye un gran sótano con potencial para crear hasta tres dormitorios adicionales y un garaje.
El sótano es accesible por escaleras desde el subsuelo.
Las comodidades incluyen una piscina de 8x4 m, calefacción por suelo radiante, doble acristalamiento, espacio de almacenamiento y estacionamiento fuera de la carretera.
Villa met vier verdiepingen te koop in Moraira.
De begane grond heeft een grote woon/eetkamer met toegang tot het poolterras, een ruime keuken, twee dubbele slaapkamers met inbouwkasten en toegang tot het terras, een gedeelde badkamer met inloopdouche en een gasten toilet.
Op de bovenverdieping bevindt zich de master bedroom met een eigen badkamer, inloopkast en privé zonneterras.
Het onroerend goed omvat ook een grote onderbouw met de mogelijkheid om tot drie extra slaapkamers en een garage te creëren.
Een kelder is toegankelijk via een trap vanuit de onderbouw.
Extra's zijn onder andere een zwembad van 8x4 m, vloerverwarming, dubbele beglazing, opbergruimte en parkeren op eigen grond.