Villa under construction in Benitachell will be completed in 14–16 months and offers a southeast orientation with open views.
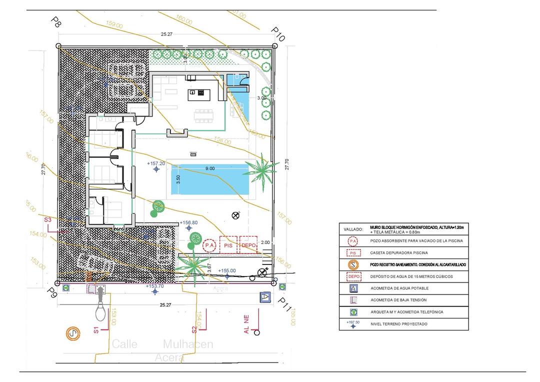
It is located 3.3 km from the village centre and 9.3 km from the beach, and features several terraces, including covered ones, a garden, a private pool, an outdoor kitchen and a garage for two cars.
The villa is equipped with underfloor heating, hot and cold air conditioning and double glazing.
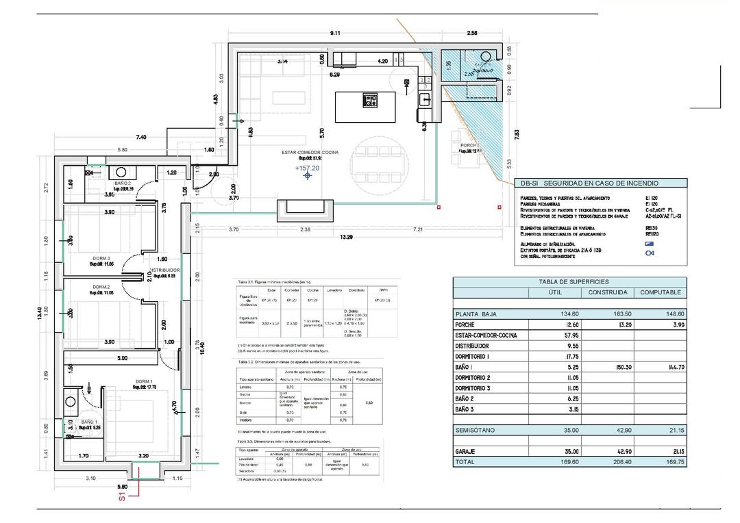
Inside, it contains a living room, a dining room, a kitchen, three bedrooms, two bathrooms—one of them en-suite—and an additional exterior bathroom
Villa im Bau in Benitachell wird in 14–16 Monaten fertiggestellt und bietet eine Südostausrichtung mit offenem Blick.
Sie befindet sich 3,3 km vom Dorfzentrum und 9,3 km vom Strand entfernt und verfügt über mehrere Terrassen, darunter überdachte, einen Garten, einen privaten Pool, eine Außensküche und eine Garage für zwei Autos.
Die Villa ist mit Fußbodenheizung, Klimaanlage mit heißer und kalter Luft sowie Doppelverglasung ausgestattet.
Innen beinhaltet sie ein Wohnzimmer, ein Esszimmer, eine Küche, drei Schlafzimmer, zwei Badezimmer – eines davon en-suite – und ein zusätzliches Badezimmer im Freien.
Villa en construcción en Benitachell que se completará en 14–16 meses y ofrece una orientación sureste con vistas abiertas.
Se encuentra a 3.3 km del centro del pueblo y a 9.3 km de la playa, y cuenta con varias terrazas, incluidas cubiertas, un jardín, una piscina privada, una cocina exterior y un garaje para dos coches.
La villa está equipada con calefacción por suelo radiante, aire acondicionado frío y caliente y doble acristalamiento.
En su interior, contiene un salón, un comedor, una cocina, tres dormitorios, dos baños—uno de ellos en suite—y un baño exterior adicional.
Villa in aanbouw in Benitachell zal binnen 14-16 maanden worden voltooid en biedt een zuidoostelijke oriëntatie met vrij uitzicht.
Het ligt op 3,3 km van het dorpscentrum en 9,3 km van het strand en beschikt over verschillende terrassen, waaronder overdekte, een tuin, een privézwembad, een buitenkeuken en een garage voor twee auto's.
De villa is uitgerust met vloerverwarming, warm en koud airconditioning en dubbel glas.
Van binnen beschikt het over een woonkamer, een eetkamer, een keuken, drie slaapkamers, twee badkamers - waarvan één en suite - en een extra Badezimmer buiten.