Unique plot with sea views in Racó del GalenoThis spacious 1,423 m² plot is located in the exclusive and modern urbanisation Racó del Galeno.
It offers breathtaking panoramic views over the Mediterranean Sea, from Cap d'Or in Moraira to beyond the iconic Peñón de Ifach in Calpe.
Thanks to its south-east orientation, you will enjoy optimal light and stunning sunrises here.
The plot currently houses a traditional villa with a built-up area of 117 m².
There are three interesting development possibilities for this property:1.
Renovation - You can refresh the existing property and quickly enjoy your own place in a prime location.2.
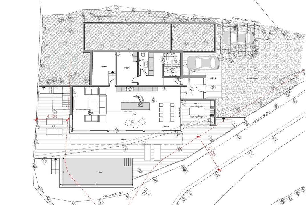
Integral renovation extension - A basic and implementation project is already available, which will allow you to completely transform the property into a modern Ibiza-style villa with Mediterranean charm.
The renders and plans illustrate this option.3.
New construction - You can choose to demolish the current property and create a completely new, large luxurious villa, completely according to your own wishes and style.
The location is ideal: just 5 minutes' drive from the picturesque coastline of Benissa and 10 minutes from the lively centre of Calpe, with its extensive amenities, beaches and restaurants, you have everything at your fingertips here.
More information or a viewing by appointment.
Einzigartiges Grundstück mit Meerblick in Racó del GalenoDieses großzügige 1.423 m² große Grundstück befindet sich in der exklusiven und modernen Urbanisation Racó del Galeno.
Es bietet einen atemberaubenden Panoramablick über das Mittelmeer, vom Cap d'Or in Moraira bis über den ikonischen Peñón de Ifach in Calpe hinaus.
Dank der Südost-Ausrichtung genießen Sie hier optimale Lichtverhältnisse und atemberaubende Sonnenaufgänge.
Auf dem Grundstück befindet sich derzeit eine traditionelle Villa mit einer bebauten Fläche von 117 m².
Für dieses Grundstück gibt es drei interessante Entwicklungsmöglichkeiten:1.
Renovierung - Sie können die bestehende Immobilie auffrischen und schon bald Ihren eigenen Platz in bester Lage genießen.2.
Integrale Renovierung Erweiterung - Es liegt bereits ein Basis- und Ausführungsprojekt vor, mit dem Sie die Immobilie komplett in eine moderne Villa im Ibiza-Stil mit mediterranem Charme verwandeln können.
Die Renderings und Pläne veranschaulichen diese Option.3.
Neubau - Sie können sich dafür entscheiden, das derzeitige Anwesen abzureißen und eine völlig neue, luxuriöse Villa ganz nach Ihren Wünschen und Ihrem Stil zu errichten.
Die Lage ist ideal: nur 5 Autominuten von der malerischen Küste von Benissa und 10 Minuten vom lebhaften Zentrum von Calpe mit seinen umfangreichen Einrichtungen, Stränden und Restaurants entfernt, haben Sie hier alles in Reichweite.
Weitere Informationen oder eine Besichtigung nach Vereinbarung.
Parcela única con vistas al mar en Racó del GalenoEsta espaciosa parcela de 1.423 m² se encuentra en la exclusiva y moderna urbanización Racó del Galeno.
Ofrece impresionantes vistas panorámicas sobre el mar Mediterráneo, desde el Cap d'Or en Moraira hasta más allá del emblemático Peñón de Ifach en Calpe.
Gracias a su orientación sureste, aquí disfrutará de una luz óptima y de impresionantes amaneceres.
La parcela alberga actualmente una villa tradicional con una superficie construida de 117 m².
Existen tres interesantes posibilidades de desarrollo para esta propiedad:1.
Renovación - Puede renovar la propiedad existente y disfrutar rápidamente de su propio hogar en una ubicación privilegiada.2.
Renovación integral y ampliación - Ya está disponible un proyecto básico y de ejecución que le permite transformar completamente la propiedad en una moderna villa de estilo ibicenco con encanto mediterráneo.
Los renders y planos ilustran esta opción.3.
Nueva construcción - Puede optar por demoler la casa actual y construir una villa completamente nueva y lujosa, totalmente de acuerdo con sus propios deseos y estilo.
La ubicación es ideal: a sólo 5 minutos en coche de la pintoresca costa de Benissa y a 10 minutos del animado centro de Calpe, con sus amplios servicios, playas y restaurantes, aquí lo tiene todo a su alcance.
Más información o una visita con cita previa.
Uniek grondstuk met zeezicht in Racó del GalenoDit ruime perceel van 1.423 m² is gelegen in de exclusieve en moderne urbanisatie Racó del Galeno.
Het biedt een adembenemend panoramisch uitzicht over de Middellandse Zee, van Cap d'Or in Moraira tot voorbij de iconische Peñón de Ifach in Calpe.
Dankzij de zuidoostelijke oriëntatie geniet u hier van optimale lichtinval en schitterende zonsopgangen.
Op het perceel bevindt zich momenteel een traditionele villa met een bebouwde oppervlakte van 117 m².
Voor dit object zijn er drie interessante ontwikkelingsmogelijkheden:1.Renovatie – U kunt de bestaande woning opfrissen en snel genieten van uw eigen plek op een toplocatie.2.Integrale renovatie uitbreiding – Er is reeds een basis- en uitvoeringsproject beschikbaar waarmee u de woning volledig kunt transformeren naar een moderne Ibiza-stijl villa met mediterrane charme.
De renders en plannen illustreren deze optie.3.Nieuwbouw – U kunt ervoor kiezen de huidige woning te slopen en een geheel nieuwe, luxueuze villa te realiseren, volledig naar eigen wensen en stijl.
De ligging is ideaal: op slechts 5 minuten rijden van de schilderachtige kustlijn van Benissa en op 10 minuten van het levendige centrum van Calpe, met zijn uitgebreide voorzieningen, stranden en restaurants heeft u hier alles binnen handbereik.
Meer informatie of een bezichtiging op afspraak.