Key Ready Mediterranean Style Villa in Javea with Private Pool and Large Plot Exclusive New Build Home in Valle del Sol Discover this stunning key ready villa located in the peaceful Valle del Sol urbanization, just a short drive from Javea town center and only 2.5 km from the popular El Arenal beach.
Designed with a blend of Mediterranean and Ibiza influences, the property features soft curved lines, exposed wooden beams and vaulted ceilings that create a warm and authentic atmosphere.
Large windows with shutters fill the home with natural light, enhancing the sense of calm and comfort.
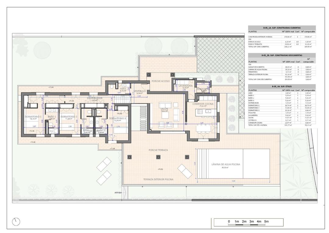
Elegant Single Level Layout Built on a generous 1000 m2 plot, the villa is distributed on one floor for maximum comfort.
It includes a bright living dining area, a fully equipped kitchen, a utility room, three spacious bedrooms with fitted wardrobes, three en suite bathrooms and a guest toilet.
Every detail has been thoughtfully selected, with handcrafted natural stone elements and wooden beams that reflect the traditional charm of the Costa Blanca North.
Outdoor Spaces Designed for Relaxation The exterior of the villa offers an ideal setting for enjoying the Mediterranean lifestyle.
A beautifully landscaped garden, turquoise swimming pool and sun filled terraces provide the perfect space for dining, entertaining and relaxing throughout the year.
The property also includes a pergola with space for two cars, solar panels, dual zone air conditioning, video intercom, alarm system and home automation for lighting.
Prime Location in Javea Javea is one of the most sought after towns on the Costa Blanca North, known for its beautiful beaches, coves, marinas, golf courses, natural parks and excellent gastronomy.
Its mild climate and high quality of life attract residents and investors from all over Europe.
Key distances from the villa: El Arenal Beach 2.5 km Javea Port and Marina 6 km Javea Golf Club 4 km Alicante Airport 100 km Valencia Airport 125 km Your Mediterranean Home Awaits This villa is the ideal choice for those seeking a permanent residence, a luxury holiday home or a high quality investment.
Contact us today to schedule a visit and discover this exceptional property in Javea.
Schlüsselfertige Villa im mediterranen Stil in Javea mit privatem Pool und großem Grundstück Exklusives Neubauhaus in Valle del Sol Entdecken Sie diese atemberaubende, bezugsfertige Villa in der ruhigen Urbanisation Valle del Sol, nur eine kurze Autofahrt vom Stadtzentrum von Javea und nur 2,5 km vom beliebten Strand El Arenal entfernt.
Das Anwesen wurde mit einer Mischung aus mediterranen und Ibiza-Einflüssen gestaltet und zeichnet sich durch weiche, geschwungene Linien, freiliegende Holzbalken und Gewölbedecken aus, die eine warme und authentische Atmosphäre schaffen.
Große Fenster mit Fensterläden füllen das Haus mit natürlichem Licht und verstärken das Gefühl von Ruhe und Komfort.
Elegante einstöckige Aufteilung Die Villa wurde auf einem großzügigen 1000 m² großen Grundstück erbaut und erstreckt sich über eine Etage, um maximalen Komfort zu bieten.
Sie umfasst einen hellen Wohn- und Essbereich, eine voll ausgestattete Küche, einen Hauswirtschaftsraum, drei geräumige Schlafzimmer mit Einbauschränken, drei Badezimmer en suite und ein Gäste-WC.
Jedes Detail wurde sorgfältig ausgewählt, mit handgefertigten Natursteinelementen und Holzbalken, die den traditionellen Charme der Costa Blanca Nord widerspiegeln.
Außenbereiche zum Entspannen Der Außenbereich der Villa bietet den idealen Rahmen, um den mediterranen Lebensstil zu genießen.
Ein wunderschön angelegter Garten, ein türkisfarbener Swimmingpool und sonnendurchflutete Terrassen bieten den perfekten Raum, um das ganze Jahr über zu speisen, sich zu unterhalten und zu entspannen.
Zur Immobilie gehören außerdem eine Pergola mit Platz für zwei Autos, Sonnenkollektoren, eine Zweizonen-Klimaanlage, eine Video-Gegensprechanlage, eine Alarmanlage und eine Hausautomation für die Beleuchtung.
Erstklassige Lage in Javea Javea ist eine der begehrtesten Städte an der Costa Blanca Nord und bekannt für ihre schönen Strände, Buchten, Yachthäfen, Golfplätze, Naturparks und ihre ausgezeichnete Gastronomie.
Das milde Klima und die hohe Lebensqualität ziehen Einwohner und Investoren aus ganz Europa an.
Wichtige Entfernungen von der Villa: Strand El Arenal 2,5 km Hafen und Yachthafen von Javea 6 km Golfclub Javea 4 km Flughafen Alicante 100 km Flughafen Valencia 125 km Ihr mediterranes Zuhause wartet auf Sie Diese Villa ist die ideale Wahl für diejenigen, die einen dauerhaften Wohnsitz, ein luxuriöses Ferienhaus oder eine hochwertige Investition suchen.
Kontaktieren Sie uns noch heute, um einen Besichtigungstermin zu vereinbaren und diese außergewöhnliche Immobilie in Javea zu entdecken.
Villa mediterránea llave en mano en Jávea con piscina privada y gran parcela Exclusiva vivienda de nueva construcción en Valle del Sol Descubra esta impresionante villa llave en mano situada en la tranquila urbanización Valle del Sol, a poca distancia en coche del centro de Jávea y a solo 2,5 km de la popular playa de El Arenal.
Diseñada con una mezcla de influencias mediterráneas e ibicencas, la propiedad presenta suaves líneas curvas, vigas de madera a la vista y techos abovedados que crean un ambiente cálido y auténtico.
Las grandes ventanas con contraventanas llenan la casa de luz natural, lo que aumenta la sensación de calma y comodidad.
Elegante distribución en una sola planta Construida en una generosa parcela de 1000 m2, la villa se distribuye en una sola planta para ofrecer el máximo confort.
Incluye un luminoso salón-comedor, una cocina totalmente equipada, un lavadero, tres amplios dormitorios con armarios empotrados, tres baños en suite y un aseo de invitados.
Cada detalle ha sido cuidadosamente seleccionado, con elementos de piedra natural hechos a mano y vigas de madera que reflejan el encanto tradicional de la Costa Blanca Norte.
Espacios exteriores diseñados para el relax El exterior de la villa ofrece un entorno ideal para disfrutar del estilo de vida mediterráneo.
Un jardín bellamente diseñado, una piscina de color turquesa y terrazas soleadas proporcionan el espacio perfecto para comer, entretenerse y relajarse durante todo el año.
La propiedad también incluye una pérgola con espacio para dos coches, paneles solares, aire acondicionado de doble zona, videoportero, sistema de alarma y domótica para la iluminación.
Ubicación privilegiada en Jávea Jávea es una de las localidades más codiciadas de la Costa Blanca Norte, conocida por sus hermosas playas, calas, puertos deportivos, campos de golf, parques naturales y excelente gastronomía.
Su clima templado y su alta calidad de vida atraen a residentes e inversores de toda Europa.
Distancias clave desde la villa: Playa del Arenal 2,5 km Puerto y marina de Jávea 6 km Club de golf de Jávea 4 km Aeropuerto de Alicante a 100 km Aeropuerto de Valencia a 125 km Su hogar mediterráneo le espera Esta villa es la opción ideal para quienes buscan una residencia permanente, una casa de vacaciones de lujo o una inversión de alta calidad.
Póngase en contacto con nosotros hoy mismo para concertar una visita y descubrir esta excepcional propiedad en Jávea.
Sleutelklare villa in mediterrane stijl in Javea met privézwembad en groot perceel Exclusieve nieuwbouwwoning in Valle del Sol Ontdek deze prachtige, sleutelklare villa in de rustige urbanisatie Valle del Sol, op slechts een klein eindje rijden van het centrum van Javea en op slechts 2,5 km van het populaire strand El Arenal.
Het pand is ontworpen met een mix van mediterrane en Ibiza-invloeden en heeft zachte, gebogen lijnen, zichtbare houten balken en gewelfde plafonds die een warme en authentieke sfeer creëren.
Grote ramen met luiken vullen het huis met natuurlijk licht, wat het gevoel van rust en comfort versterkt.
Elegante indeling op één niveau De villa is gebouwd op een royaal perceel van 1000 m2 en is voor maximaal comfort verdeeld over één verdieping.
Het omvat een lichte woon-eetkamer, een volledig uitgeruste keuken, een bijkeuken, drie ruime slaapkamers met inbouwkasten, drie en suite badkamers en een gastentoilet.
Elk detail is zorgvuldig gekozen, met handgemaakte natuurstenen elementen en houten balken die de traditionele charme van de Costa Blanca Noord weerspiegelen.
Buitenruimtes ontworpen om te ontspannen De buitenkant van de villa biedt een ideale omgeving om te genieten van de mediterrane levensstijl.
Een prachtig aangelegde tuin, een turquoise zwembad en zonovergoten terrassen bieden de perfecte ruimte om het hele jaar door te dineren, te entertainen en te ontspannen.
De woning beschikt ook over een pergola met ruimte voor twee auto's, zonnepanelen, airconditioning met twee zones, een video-intercom, een alarmsysteem en domotica voor de verlichting.
Toplocatie in Javea Javea is een van de meest gewilde plaatsen aan de Costa Blanca Noord, bekend om zijn prachtige stranden, baaien, jachthavens, golfbanen, natuurparken en uitstekende gastronomie.
Het milde klimaat en de hoge levenskwaliteit trekken bewoners en investeerders uit heel Europa aan.
Belangrijkste afstanden vanaf de villa: El Arenal-strand 2,5 km Haven en jachthaven van Javea 6 km Golfclub van Javea 4 km Luchthaven Alicante 100 km Luchthaven Valencia 125 km Uw mediterrane thuis wacht op u Deze villa is de ideale keuze voor wie op zoek is naar een permanente woning, een luxe vakantiehuis of een hoogwaardige investering.
Neem vandaag nog contact met ons op om een bezichtiging te plannen en deze uitzonderlijke woning in Javea te ontdekken.